€890.000
9.805.130 NOK
Send forespørsel Kontakt

Enebolig · Nybygg Alicante - Costa Blanca · Orihuela Costa

€890.000
9.805.130 NOK
Send forespørsel Kontakt

Kjennetegn

Tilleggsfunksjoner

Soverom: 3
Baderom: 4
Inne: 203m2
Tomt: 592m2
Basseng: Ja
Location: Coastal
Parking - Space
Beach: 700 Meters
Terrace: 140 Msq.
Useable Build Space: 158 Msq.
Near Commercial Center
Gated
Solarium: Yes
Private Pool
Garden
Near Schools
Double Bedrooms: 3
Number of Parking Spaces: 2
I nærheten av trær
I nærheten av bussrute
Send forespørsel

Beskrivelse

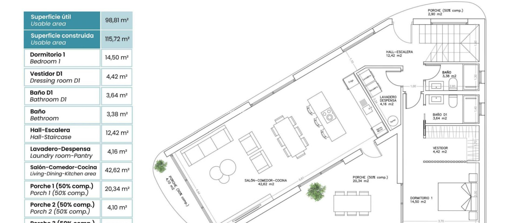
Villa i La Zenia som redefinerer begrepet middelhavsluksus Bare 700 meter fra stranden i La Zenia, en av de mest eksklusive på Orihuela Costa, kombinerer denne imponerende villaen moderne design, eksklusive omgivelser og en uovertruffen beliggenhet. Et hjem skapt for de som søker det eksepsjonelle: privatliv, absolutt komfort og en unik opplevelse av livet ved havet. Denne frittliggende luksusvillaen ligger på en stor tomt på 592 m² og har 3 soverom og 4 bad, fordelt på to etasjer med store og lyse rom. I første etasje flyter en spektakulær åpen stue-spisestue over i designerkjøkkenet og åpner seg gjennom store vinduer mot den private hagen og bassenget med boblebad, noe som skaper en perfekt kontinuitet mellom inne og ute. Dette området blir en ekte oase av avslapning, ideell for å nyte det privilegerte klimaet på Costa Blanca. Baksiden av huset har egen inngang og privat parkeringsplass for 2 biler, noe som garanterer komfort og privatliv. På samme etasje ligger et hovedsoverom med garderobe og eget bad, i tillegg til et ekstra bad for gjester. Første etasje har to ekstra soverom, begge med eget bad, garderobe og direkte tilgang til en stor terrasse med spektakulær utsikt over omgivelsene. I øverste etasje ligger det private solariet, utstyrt med dusj og sommerkjøkken, et eksklusivt rom for å nyte de gyldne solnedgangene over havet og golfbanen. Hver detalj er nøye utvalgt for å tilby maksimal komfort og raffinement: doble vinduer, pansret inngangsdør, elektriske persienner, videodørtelefon, hjemmestyring, komplette bad med gulvvarme, aerotermisk system, sentral klimaanlegg og LED-belysning innvendig og utvendig. Det møblerte kjøkkenet er utstyrt med hvitevarer av høy kvalitet, med mulighet for tilpasning av finishen, og fullfører dette mesterverket av design og eleganse. Beliggenheten er uovertruffen. Bare noen få minutter unna ligger noen av Middelhavets mest eksklusive golfbaner, som Villamartín Golf, Las Ramblas Golf, Campoamor Golf og Las Colinas Golf & Country Club, som alle er internasjonalt anerkjente destinasjoner. I tillegg ligger Alicante-Elche internasjonale lufthavn bare 45 minutter unna med bil, og Murcia-Corvera lufthavn 35 minutter unna, noe som gir perfekte forbindelser til de viktigste europeiske byene. Omgitt av de mest ikoniske strendene på Orihuela Costa, som La Zenia, Cala Capitán og Cala Cerrada, og like i nærheten av det eksklusive kjøpesenteret La Zenia Boulevard, kombinerer denne villaen privatliv, eleganse og nærhet til alt som definerer den mest eksklusive middelhavsstilen. Denne villaen er ikke bare et hjem, men et arkitektonisk verk designet for de som søker det ekstraordinære. Kontakt oss og oppdag privilegiet ved å bo i en av de mest eksklusive villaene på Costa Blanca.

Plassering

Kontakt oss Send forespørsel

Responsable del tratamiento: Mediaterrean y Mar Eindom, SL, Finalidad del tratamiento: Gestión y control de los servicios ofrecidos a través de la página Web de Servicios inmobiliarios, Envío de información a traves de newsletter y otros, Legitimación: Por consentimiento, Destinatarios: No se cederan los datos, salvo para elaborar contabilidad, Derechos de las personas interesadas: Acceder, rectificar y suprimir los datos, solicitar la portabilidad de los mismos, oponerse altratamiento y solicitar la limitación de éste, Procedencia de los datos: El Propio interesado, Información Adicional: Puede consultarse la información adicional y detallada sobre protección de datos Aquí.

© 2026 Medimar Eiendom · · Juridisk merknad Privatliv Cookies Web kart

Design and CRM: Mediaelx

Send forespørsel WhatsApp