Виллы · Новостройки Alicante - Costa Blanca · Orihuela Costa

Характеристики

Дополнительные возможности

спальни: 3
В ванных комнатах: 4
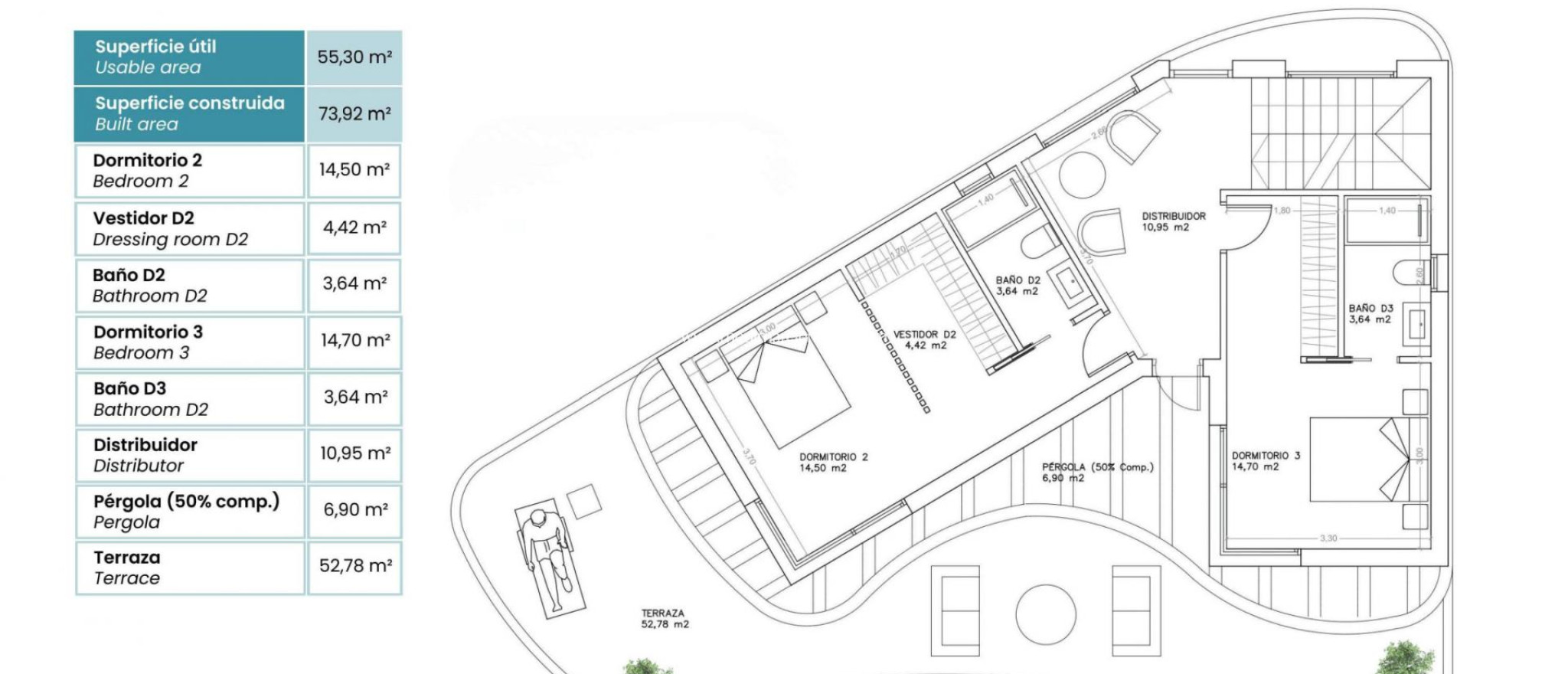
построен: 203m2
участок: 592m2
Бассейн: да
Gated
Solarium: Yes
Private Pool
Garden
Near Schools
Double Bedrooms: 3
Number of Parking Spaces: 2
Рядом с деревьями
Рядом с автобусным маршрутом
Местоположение: Прибрежный
Parking - Space
Beach: 700 Meters
Terrace: 140 Msq.
Useable Build Space: 158 Msq.
Near Commercial Center
Делать запрос

Описание

Вилла в Ла Зения, которая переосмысливает концепцию средиземноморского роскоши Всего в 700 метрах от пляжа Ла Зения, одного из самых эксклюзивных на побережье Ориуэла, эта впечатляющая вилла сочетает в себе современный дизайн, эксклюзивное окружение и непревзойденное расположение. Дом, созданный для тех, кто ищет исключительное: уединение, абсолютный комфорт и уникальный опыт жизни у моря. Расположенная на просторном участке площадью 592 м², эта роскошная отдельно стоящая вилла имеет 3 спальни и 4 ванные комнаты и состоит из двух этажей с просторными и светлыми помещениями. На первом этаже впечатляющая гостиная-столовая открытого типа плавно переходит в дизайнерскую кухню и через большие окна выходит в частный сад и к бассейну с джакузи, создавая идеальную непрерывность между внутренним и внешним пространством. Эта зона становится настоящим оазисом релаксации, идеальным для наслаждения привилегированным климатом Коста-Бланки. Задняя часть дома имеет отдельный вход и частную парковку на 2 машины, что гарантирует удобство и уединение. На этом же этаже находится главная спальня с гардеробной и ванной комнатой, а также дополнительная ванная комната для гостей. На первом этаже расположены две дополнительные спальни, обе с ванными комнатами, гардеробными и прямым выходом на большую террасу с потрясающим видом на окрестности. На верхнем этаже находится частный солярий, оборудованный душем и летней кухней, эксклюзивное место, где можно наслаждаться золотыми закатами над морем и гольф-полем. Каждая деталь была тщательно подобрана, чтобы обеспечить максимальный комфорт и изысканность: двойное остекление, бронированная входная дверь, электрические жалюзи, видеодомофон, система домашней автоматизации, ванные комнаты с подогревом пола, система аэротермии, канальная система кондиционирования и светодиодное освещение внутри и снаружи. Кухня, меблированная и оборудованная бытовой техникой высокого класса, с возможностью индивидуальной отделки, дополняет это шедевр дизайна и элегантности. Расположение не может быть лучше. В нескольких минутах езды находятся одни из самых эксклюзивных полей для гольфа на Средиземноморье, такие как Villamartín Golf, Las Ramblas Golf, Campoamor Golf и Las Colinas Golf & Country Club, все из которых являются международными достопримечательностями. Кроме того, международный аэропорт Аликанте-Эльче находится всего в 45 минутах езды на машине, а аэропорт Мурсия-Корвера - в 35 минутах, что обеспечивает отличное сообщение с основными европейскими городами. Окруженная самыми знаковыми пляжами побережья Ориуэла-Коста, такими как Ла Зения, Кала Капитан и Кала Серрада, и расположенная в непосредственной близости от эксклюзивного торгового центра La Zenia Boulevard, эта вилла сочетает в себе уединение, элегантность и близость ко всему, что определяет самый изысканный средиземноморский стиль жизни. Эта вилла — не просто жилье, а архитектурное произведение, созданное для тех, кто ищет нечто необычное. Свяжитесь с нами и откройте для себя привилегию жить в одной из самых эксклюзивных вилл на побережье Коста-Бланка.

Место нахождения

Свяжитесь с нами Делать запрос

Responsable del tratamiento: Mediaterrean y Mar Eindom, SL, Finalidad del tratamiento: Gestión y control de los servicios ofrecidos a través de la página Web de Servicios inmobiliarios, Envío de información a traves de newsletter y otros, Legitimación: Por consentimiento, Destinatarios: No se cederan los datos, salvo para elaborar contabilidad, Derechos de las personas interesadas: Acceder, rectificar y suprimir los datos, solicitar la portabilidad de los mismos, oponerse altratamiento y solicitar la limitación de éste, Procedencia de los datos: El Propio interesado, Información Adicional: Puede consultarse la información adicional y detallada sobre protección de datos Aquí.
Делать запрос WhatsApp