EINBÝLISHÚS · Nýbygging Alicante - Costa Blanca · Orihuela Costa

Einkenni

Önnur lögun

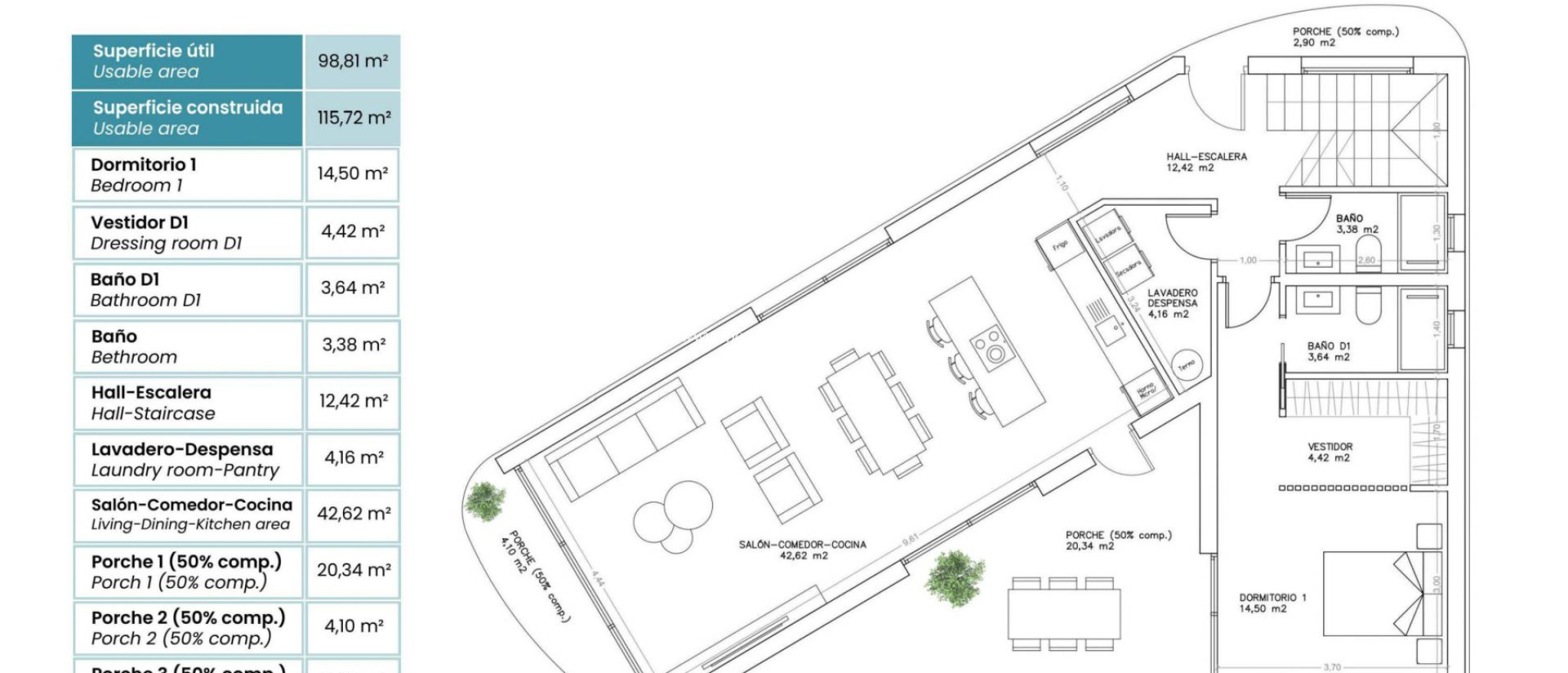
Svefnherbergi: 3
Baðherbergi: 4
Byggir: 203m2
Söguþráður: 592m2
Pool:
Double Bedrooms: 3
Number of Parking Spaces: 2
Lähellä puita
Lähellä bussilinjaa
Parking - Space
Beach: 700 Meters
Terrace: 140 Msq.
Useable Build Space: 158 Msq.
Near Commercial Center
Gated
Solarium: Yes
Private Pool
Garden
Near Schools
Gera fyrirspurn

Lýsing

Villa í La Zenia sem endurskilgreinir hugtakið Miðjarðarhafslúxus Aðeins 700 metra frá La Zenia ströndinni, einni af einkareknustu ströndum Orihuela Costa, sameinar þessi glæsilega villa nútímalega hönnun, einkarétt umhverfi og einstaka staðsetningu. Heimili hannað fyrir þá sem leita að því einstaka: næði, algjörum þægindum og einstakri lífsreynslu við sjóinn. Staðsett á rúmgóðri 592 fermetra lóð, er þessi einbýlishús með 3 svefnherbergjum og 4 baðherbergjum og er dreift á tveimur hæðum með rúmgóðum og björtum herbergjum. Á jarðhæðinni rennur stórkostleg opin stofa-borðstofa inn í hönnunareldhúsið og opnast í gegnum stóra glugga út á einkagarðinn og sundlaugina með nuddpotti, sem skapar fullkomna samfellu milli inni og úti. Þetta svæði verður sannkallaður slökunarvinur, tilvalinn til að njóta hins forréttinda loftslags á Costa Blanca. Aftan á eigninni er sjálfstæður aðgangur og einkabílastæði fyrir 2 bíla, sem tryggir þægindi og næði. Á sömu hæð er hjónaherbergi með fataherbergi og sérbaðherbergi, sem og auka baðherbergi fyrir gesti. Á fyrstu hæðinni eru tvö svefnherbergi til viðbótar, bæði með sérbaðherbergjum, fataskápum og beinum aðgangi að stórri verönd með stórkostlegu útsýni yfir umhverfið. Á efstu hæðinni er einkarekinn sólpallur með sturtu og sumareldhúsi, einstakt rými til að njóta gullinna sólsetra yfir hafið og golfvöllinn. Sérhver smáatriði hefur verið vandlega valið til að bjóða upp á hámarks þægindi og fágun: tvöföld glerjun, styrktar inngangshurðir, rafmagnsgluggar, myndbandssímakerfi, sjálfvirkt heimiliskerfi, baðherbergi með gólfhita, lofthitakerfi, loftkælingu og LED lýsingu að innan og utan. Innréttað eldhús, búið hágæða tækjum og með möguleika á að sérsníða fráganginn, fullkomnar þetta meistaraverk hönnunar og glæsileika. Staðsetningin er óviðjafnanleg. Aðeins nokkurra mínútna fjarlægð eru nokkrir af einstökustu golfvöllum Miðjarðarhafsins, eins og Villamartín Golf, Las Ramblas Golf, Campoamor Golf og Las Colinas Golf & Country Club, sem allir eru alþjóðlega þekktir áfangastaðir. Auk þess er Alicante-Elche alþjóðaflugvöllurinn aðeins í 45 mínútna akstursfjarlægð og Murcia-Corvera flugvöllurinn er í 35 mínútna fjarlægð, sem býður upp á fullkomnar tengingar við helstu evrópskar borgir. Umkringd helgimynda ströndum Orihuela Costa, eins og La Zenia, Cala Capitán og Cala Cerrada, og mjög nálægt hinni einkaréttu verslunarmiðstöð La Zenia Boulevard, sameinar þessi villa næði, glæsileika og nálægð við allt sem einkennir úrvals Miðjarðarhafslífsstíl. Þessi villa er ekki bara heimili, heldur byggingarlistarverk hannað fyrir þá sem sækjast eftir því óvenjulega. Hafðu samband við okkur og uppgötvaðu þau forréttindi að búa í einni af einkaréttustu villunum á Costa Blanca.

Staðsetning

Hafðu samband við okkur Gera fyrirspurn

Responsable del tratamiento: Mediaterrean y Mar Eindom, SL, Finalidad del tratamiento: Gestión y control de los servicios ofrecidos a través de la página Web de Servicios inmobiliarios, Envío de información a traves de newsletter y otros, Legitimación: Por consentimiento, Destinatarios: No se cederan los datos, salvo para elaborar contabilidad, Derechos de las personas interesadas: Acceder, rectificar y suprimir los datos, solicitar la portabilidad de los mismos, oponerse altratamiento y solicitar la limitación de éste, Procedencia de los datos: El Propio interesado, Información Adicional: Puede consultarse la información adicional y detallada sobre protección de datos Aquí.

© 2026 Medimar Eiendom · All rights reserved · Legal athugið Privacy Cookies Web Map

Design and CRM: Mediaelx

Gera fyrirspurn WhatsApp