€890.000
€890.000
Een vraag doen Contact

Villa · Nieuw gebouw Alicante - Costa Blanca · Orihuela Costa

€890.000
€890.000
Een vraag doen Contact

Kenmerken

Extra functies

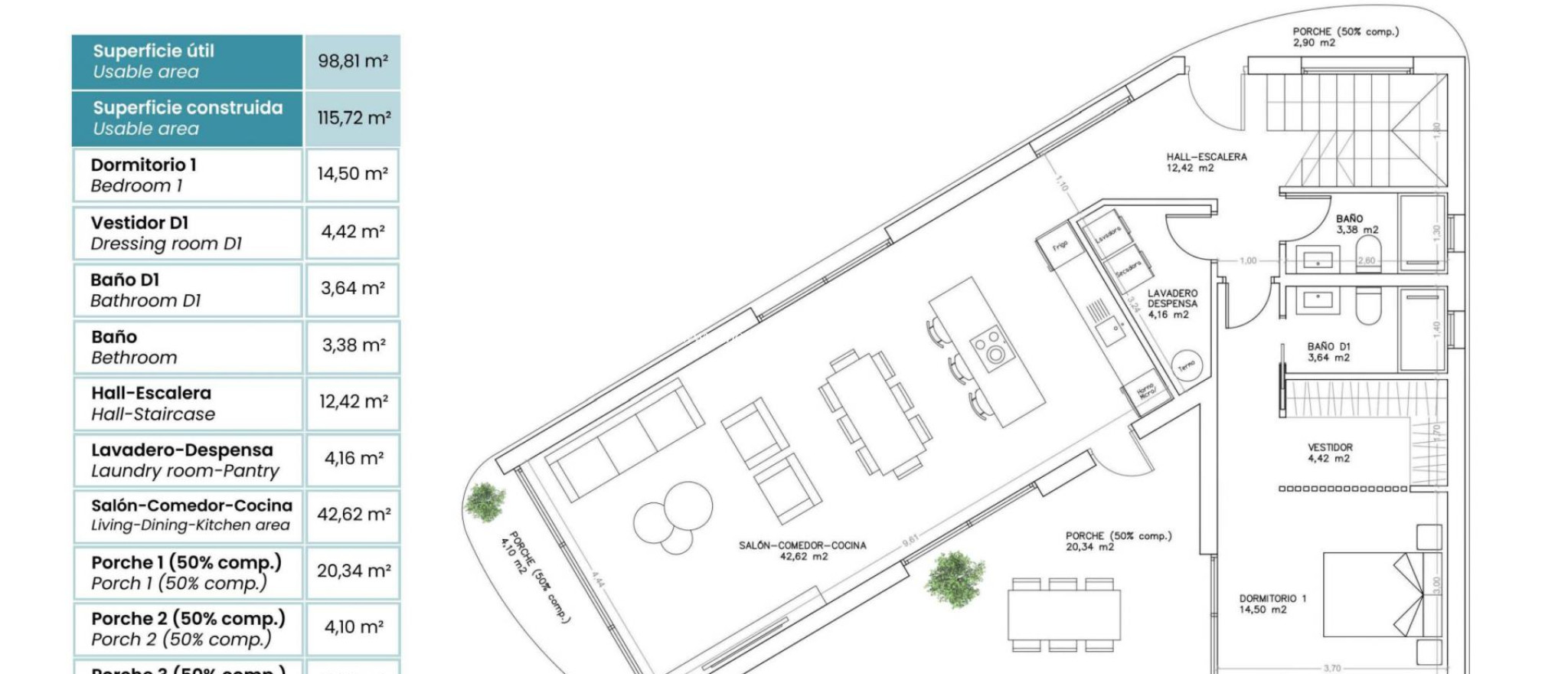
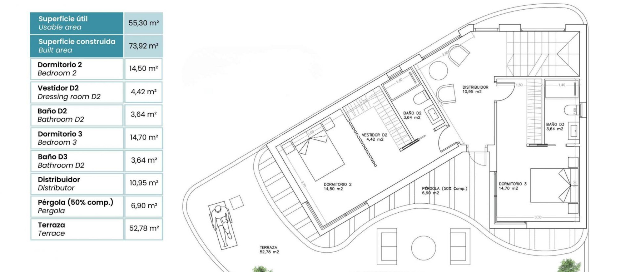
Slaapkamers: 3
Badkamers: 4
Gebouwd: 203m2
Plot: 592m2
Zwembad: Ja
Gated
Solarium: Yes
Private Pool
Garden
Near Schools
Double Bedrooms: 3
Number of Parking Spaces: 2
Dichtbij bomen
Dichtbij busroute
Location: Coastal
Parking - Space
Beach: 700 Meters
Terrace: 140 Msq.
Useable Build Space: 158 Msq.
Near Commercial Center
Een vraag doen

Beschrijving

Villa in La Zenia die het concept van mediterrane luxe herdefinieert Op slechts 700 meter van het strand van La Zenia, een van de meest exclusieve stranden van Orihuela Costa, combineert deze indrukwekkende villa een eigentijds ontwerp, een exclusieve omgeving en een ongeëvenaarde locatie. Een woning ontworpen voor wie op zoek is naar het uitzonderlijke: privacy, absoluut comfort en een unieke levenservaring aan zee. Deze vrijstaande luxe villa ligt op een ruim perceel van 592 m² en heeft 3 slaapkamers en 4 badkamers, verdeeld over twee verdiepingen met ruime en lichte ruimtes. Op de begane grond loopt een spectaculaire open woon-eetkamer over in de designkeuken en opent zich via grote ramen naar de privétuin en het zwembad met jacuzzi, waardoor een perfecte continuïteit tussen binnen en buiten ontstaat. Deze ruimte is een ware oase van ontspanning, ideaal om te genieten van het bevoorrechte klimaat van de Costa Blanca. De achterkant van het huis heeft een aparte toegang en een privéparkeerplaats voor 2 auto's, wat comfort en privacy garandeert. Op dezelfde verdieping bevindt zich een hoofdslaapkamer met kleedkamer en en-suite badkamer, evenals een extra gastenbadkamer. Op de eerste verdieping bevinden zich twee extra slaapkamers, beide met een eigen badkamer, kleedkamer en directe toegang tot een groot terras met een spectaculair uitzicht op de omgeving. Op de bovenste verdieping bevindt zich het privé-solarium, uitgerust met een douche en een zomerkeuken, een exclusieve ruimte om te genieten van de gouden zonsondergangen boven de zee en de golfbaan. Elk detail is zorgvuldig gekozen om maximaal comfort en verfijning te bieden: dubbele beglazing, gepantserde voordeur, elektrische rolluiken, videofoon, domoticasysteem, complete badkamers met vloerverwarming, aerothermisch systeem, airconditioning via kanalen en ledverlichting binnen en buiten. De ingerichte keuken met hoogwaardige apparatuur, met de mogelijkheid om de afwerking aan te passen, maakt dit meesterwerk van design en elegantie compleet. De locatie is onverslaanbaar. Op slechts enkele minuten afstand liggen enkele van de meest exclusieve golfbanen van het Middellandse Zeegebied, zoals Villamartín Golf, Las Ramblas Golf, Campoamor Golf en Las Colinas Golf & Country Club, allemaal internationale topbestemmingen. Bovendien ligt de internationale luchthaven van Alicante-Elche op slechts 45 minuten rijden en de luchthaven van Murcia-Corvera op 35 minuten, waardoor u perfecte verbindingen heeft met de belangrijkste Europese steden. Omgeven door de meest emblematische stranden van de Orihuela Costa, zoals La Zenia, Cala Capitán en Cala Cerrada, en vlakbij het exclusieve winkelcentrum La Zenia Boulevard, combineert deze villa privacy, elegantie en nabijheid tot alles wat de meest selecte mediterrane levensstijl kenmerkt. Deze villa is niet alleen een woning, maar een architectonisch meesterwerk, ontworpen voor mensen die op zoek zijn naar het buitengewone. Neem contact met ons op en ontdek het voorrecht om in een van de meest exclusieve villa's aan de Costa Blanca te wonen.

Plaats

Neem contact met ons op Een vraag doen

Responsable del tratamiento: Mediaterrean y Mar Eindom, SL, Finalidad del tratamiento: Gestión y control de los servicios ofrecidos a través de la página Web de Servicios inmobiliarios, Envío de información a traves de newsletter y otros, Legitimación: Por consentimiento, Destinatarios: No se cederan los datos, salvo para elaborar contabilidad, Derechos de las personas interesadas: Acceder, rectificar y suprimir los datos, solicitar la portabilidad de los mismos, oponerse altratamiento y solicitar la limitación de éste, Procedencia de los datos: El Propio interesado, Información Adicional: Puede consultarse la información adicional y detallada sobre protección de datos Aquí.

© 2026 Medimar Eiendom · All rights reserved · Colofon Privacy Cookies Web plan

Design and CRM: Mediaelx

Een vraag doen WhatsApp