€890.000
€890.000
Göra en förfrågan Kontakta

Villa · Nybyggnad Alicante - Costa Blanca · Orihuela Costa

€890.000
€890.000
Göra en förfrågan Kontakta

Egenskaper

Sovrum: 3
Badrum: 4
Byggd: 203m2
Tomt: 592m2
Slå samman: Ja
Plats: Kustnära
Parking - Space
Beach: 700 Meters
Terrace: 140 Msq.
Useable Build Space: 158 Msq.
Near Commercial Center
Gated
Solarium: Yes
Private Pool
Garden
Near Schools
Double Bedrooms: 3
Number of Parking Spaces: 2
Nära träd
Nära busslinje
Göra en förfrågan

Beskrivning

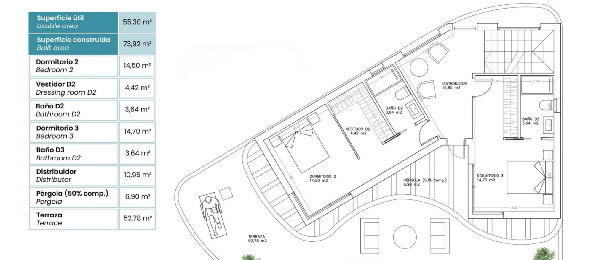
Villa i La Zenia som omdefinierar begreppet medelhavslyx Bara 700 meter från stranden i La Zenia, en av de mest exklusiva på Orihuela Costa, kombinerar denna imponerande villa modern design, exklusiv miljö och ett oslagbart läge. Ett hem skapat för dem som söker det exceptionella: avskildhet, absolut komfort och en unik livsupplevelse vid havet. Belägen på en stor tomt på 592 m² har denna fristående lyxvilla 3 sovrum och 4 badrum och är fördelad på två våningar med rymliga och ljusa utrymmen. På bottenvåningen flyter ett spektakulärt vardagsrum med öppen planlösning över i det designade köket och öppnar sig genom stora fönster mot den privata trädgården och poolen med jacuzzi, vilket skapar en perfekt kontinuitet mellan interiör och exteriör. Detta område blir en verklig oas av avkoppling, idealisk för att njuta av det privilegierade klimatet på Costa Blanca. Baksidan av huset har separat ingång och privat parkeringsplats för 2 bilar, vilket garanterar komfort och avskildhet. På samma våning finns ett master bedroom med klädkammare och badrum en suite, samt ett extra gästbadrum. På första våningen finns ytterligare två sovrum, båda med eget badrum, klädkammare och direkt tillgång till en stor terrass med spektakulär utsikt över omgivningen. På översta våningen finns det privata solariet, utrustat med dusch och sommarkök, ett exklusivt utrymme för att njuta av de gyllene solnedgångarna över havet och golfbanan. Varje detalj har noggrant valts ut för att erbjuda maximal komfort och sofistikering: dubbelglas, säkerhetsdörr, elektriska persienner, videodörr, hemmabiosystem, badrum med golvvärme, aerotermiskt system, luftkonditionering och LED-belysning inomhus och utomhus. Det möblerade köket är utrustat med högklassiga vitvaror, med möjlighet till personlig anpassning av ytbehandlingar, och fulländar detta mästerverk av design och elegans. Läget är oslagbart. Bara några minuter bort ligger några av Medelhavets mest exklusiva golfbanor, såsom Villamartín Golf, Las Ramblas Golf, Campoamor Golf och Las Colinas Golf & Country Club, alla internationellt kända destinationer. Dessutom ligger Alicante-Elche internationella flygplats bara 45 minuters bilresa bort och Murcia-Corvera flygplats 35 minuter bort, vilket ger perfekta förbindelser till de viktigaste europeiska städerna. Omgiven av de mest emblematiska stränderna på Orihuela Costa, såsom La Zenia, Cala Capitán och Cala Cerrada, och mycket nära det exklusiva köpcentret La Zenia Boulevard, kombinerar denna villa avskildhet, elegans och närhet till allt som definierar den mest exklusiva medelhavslivsstilen. Denna villa är inte bara ett hus, utan ett arkitektoniskt mästerverk skapat för dem som söker det extraordinära. Kontakta oss och upptäck privilegiet att bo i en av de mest exklusiva villorna på Costa Blanca.

Plats

Kontakta oss Göra en förfrågan

Responsable del tratamiento: Mediaterrean y Mar Eindom, SL, Finalidad del tratamiento: Gestión y control de los servicios ofrecidos a través de la página Web de Servicios inmobiliarios, Envío de información a traves de newsletter y otros, Legitimación: Por consentimiento, Destinatarios: No se cederan los datos, salvo para elaborar contabilidad, Derechos de las personas interesadas: Acceder, rectificar y suprimir los datos, solicitar la portabilidad de los mismos, oponerse altratamiento y solicitar la limitación de éste, Procedencia de los datos: El Propio interesado, Información Adicional: Puede consultarse la información adicional y detallada sobre protección de datos Aquí.

© 2026 Medimar Eiendom · All rights reserved · Juridisk anteckning Privatliv Cookies Web karta

Design and CRM: Mediaelx

Göra en förfrågan WhatsApp