€469.000
5.166.973 NOK
Send forespørsel Kontakt

Leilighet · Nybygg Alicante - Costa Blanca · Orihuela Costa

€469.000
5.166.973 NOK
Send forespørsel Kontakt

Kjennetegn

Tilleggsfunksjoner

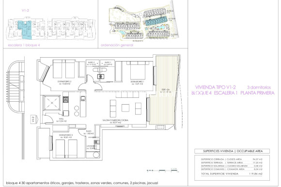
Soverom: 3
Baderom: 2
Inne: 146m2
Basseng: Ja
I nærheten av bussrute
Parking - Space
Useable Build Space: 84 Msq.
Terrace: 17 Msq.
Beach: 500 Meters
Near Commercial Center
Oppbevaring / Trastero
Communal Pool
Gated
Number of Parking Spaces: 1
Location: Coastal, Urbanisation
Air Conditioning: Pre-Installed
Heis/heis
Near Schools
Double Bedrooms: 3
I nærheten av trær
Send forespørsel

Beskrivelse

NYBYGG BOLIG PÅ PLAYA FLAMENCA!!! Fra en veletablert utvikler er vi stolte over å kunne tilby dette nettopp utgitte nye boligområdet kun 500 m fra havet ved populære Playa Flamenca (Orihuela Costa). Bolig med fine fellesbassenger, boblebad og fine felleshager. Alle tjenester som supermarkeder, barer og restauranter, osv. er innen gangavstand på et meget sentralt sted ved Orihuela Costa. Stort utvalg av typer å velge mellom: studioer, leiligheter med 1, 2 eller 3 soverom. Lave etasjer med private hager eller toppetasjer med private solarier. Alle husene kommer med parkeringsplass og bod inkludert i prisen. Zenia Boulevard kjøpesenter 1 km unna, og flere golfbaner som Villamartin, Campoamor innen 5 km fra dette boligområdet vil gjøre en ideell beliggenhet for ferien eller permanent opphold.

Plassering

Kontakt oss Send forespørsel

Responsable del tratamiento: Mediaterrean y Mar Eindom, SL, Finalidad del tratamiento: Gestión y control de los servicios ofrecidos a través de la página Web de Servicios inmobiliarios, Envío de información a traves de newsletter y otros, Legitimación: Por consentimiento, Destinatarios: No se cederan los datos, salvo para elaborar contabilidad, Derechos de las personas interesadas: Acceder, rectificar y suprimir los datos, solicitar la portabilidad de los mismos, oponerse altratamiento y solicitar la limitación de éste, Procedencia de los datos: El Propio interesado, Información Adicional: Puede consultarse la información adicional y detallada sobre protección de datos Aquí.

© 2026 Medimar Eiendom · · Juridisk merknad Privatliv Cookies Web kart

Design and CRM: Mediaelx

Send forespørsel WhatsApp