€469.000
€469.000
Realizar una consulta Contactar

Apartamento · Obra Nueva Alicante - Costa Blanca · Orihuela Costa

€469.000
€469.000
Realizar una consulta Contactar

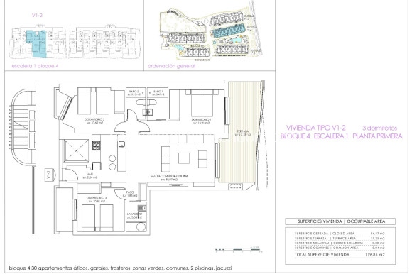
Características

Características adicionales

Habitaciones: 3
Baños: 2
Construidos: 146m2
Piscina:
Ubicación: Costa, Urbanización
Aire acondicionado preinstalado
Ascensor
Escuelas cerca
Dormitorios Dobles: 3
Cerca de árboles
Cerca de la línea de autobús
Aparcamiento - Plaza
Espacio edificable útil: 84 m2
Terraza: 17 m2
Playa: 500 Metros
Cerca centro comercial
Almacenamiento / Trastero
Piscina comunitaria
Vallado
Número de plazas de Parking: 1
Realizar una consulta

Descripción

RESIDENCIAL DE OBRA NUEVA EN PLAYA FLAMENCA !!! De un promotor de gran experiencia en la zona, estamos orgullosos de ofrecer este nuevo residencial recién lanzado a la venta a solo 500 m del mar en la popular zona de Playa Flamenca (Orihuela Costa). Residencial con bonitas piscinas comunitarias, jacuzzis y bonitos jardines comunes. Todos los servicios como supermercados, bares y restaurantes, etc. se encuentran a poca distancia en un lugar muy céntrico de Orihuela Costa. Amplia variedad de tipos para elegir: estudios, apartamentos de 1, 2 o 3 habitaciones. Pisos bajos con jardines privados o áticoss con solarium privados. Todas las viviendas cuentan con plaza de garaje y trastero incluidos en el precio. El centro comercial Zenia Boulevard a 1 km y varios campos de golf como Villamartín, Campoamor a 5 km de este residencial lo convertirán en un lugar ideal para sus vacaciones o su vida permanente.

Localización

Contacte con Nosotros Realizar una consulta

Responsable del tratamiento: Mediaterrean y Mar Eindom, SL, Finalidad del tratamiento: Gestión y control de los servicios ofrecidos a través de la página Web de Servicios inmobiliarios, Envío de información a traves de newsletter y otros, Legitimación: Por consentimiento, Destinatarios: No se cederan los datos, salvo para elaborar contabilidad, Derechos de las personas interesadas: Acceder, rectificar y suprimir los datos, solicitar la portabilidad de los mismos, oponerse altratamiento y solicitar la limitación de éste, Procedencia de los datos: El Propio interesado, Información Adicional: Puede consultarse la información adicional y detallada sobre protección de datos Aquí.

© 2026 Medimar Eiendom · All rights reserved · Nota legal Privacidad Cookies Mapa Web

Design and CRM: Mediaelx

Realizar una consulta WhatsApp