Апартаменты · Новостройки Alicante - Costa Blanca · Orihuela Costa

Характеристики

Дополнительные возможности

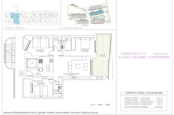
спальни: 3
В ванных комнатах: 2
построен: 146m2
Бассейн: да
Useable Build Space: 84 Msq.
Terrace: 17 Msq.
Beach: 500 Meters
Near Commercial Center
Хранение / Трастеро
Communal Pool
Gated
Number of Parking Spaces: 1
Location: Coastal, Urbanisation
Air Conditioning: Pre-Installed
Лифт/подъемник
Near Schools
Double Bedrooms: 3
Рядом с деревьями
Рядом с автобусным маршрутом
Parking - Space
Делать запрос

Описание

НОВАЯ ЖИЛОЙ ДОМ НА PLAYA FLAMENCA !!! От хорошо зарекомендовавшего себя застройщика мы с гордостью предлагаем этот только что построенный новый жилой комплекс всего в 500 м от моря на популярном пляже Плайя Фламенка (Ориуэла Коста). Жилой дом с хорошими коммунальными бассейнами, джакузи и красивыми общими садами. Все услуги, такие как супермаркеты, бары, рестораны и т. Д., Находятся в нескольких минутах ходьбы в самом центре Ориуэла Коста. Большой выбор типов на выбор: студии, апартаменты с 1, 2 или 3 спальнями. Низкие этажи с частными садами или верхние этажи с частными соляриями. Все дома идут с парковочным местом и кладовой, включенными в цену. Торговый центр Zenia Boulevard в 1 км и несколько полей для гольфа, таких как Villamartin, Campoamor в пределах 5 км от этого жилого комплекса, сделают идеальное место для вашего отпуска или постоянного проживания.

Место нахождения

Свяжитесь с нами Делать запрос

Responsable del tratamiento: Mediaterrean y Mar Eindom, SL, Finalidad del tratamiento: Gestión y control de los servicios ofrecidos a través de la página Web de Servicios inmobiliarios, Envío de información a traves de newsletter y otros, Legitimación: Por consentimiento, Destinatarios: No se cederan los datos, salvo para elaborar contabilidad, Derechos de las personas interesadas: Acceder, rectificar y suprimir los datos, solicitar la portabilidad de los mismos, oponerse altratamiento y solicitar la limitación de éste, Procedencia de los datos: El Propio interesado, Información Adicional: Puede consultarse la información adicional y detallada sobre protección de datos Aquí.
Делать запрос WhatsApp