€469.000
€469.000
Een vraag doen Contact

Appartement · Nieuw gebouw Alicante - Costa Blanca · Orihuela Costa

€469.000
€469.000
Een vraag doen Contact

Kenmerken

Extra functies

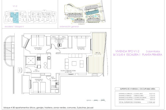
Slaapkamers: 3
Badkamers: 2
Gebouwd: 146m2
Zwembad: Ja
Location: Coastal, Urbanisation
Air Conditioning: Pre-Installed
Lift
Near Schools
Double Bedrooms: 3
Dichtbij bomen
Dichtbij busroute
Parking - Space
Useable Build Space: 84 Msq.
Terrace: 17 Msq.
Beach: 500 Meters
Near Commercial Center
Opslag / Trastero
Communal Pool
Gated
Number of Parking Spaces: 1
Een vraag doen

Beschrijving

NIEUWBOUW WOONPLAATS IN PLAYA FLAMENCA!!! Van een gevestigde ontwikkelaar zijn we trots om deze net vrijgegeven nieuwe woonwijk aan te bieden op slechts 500 m van zee in het populaire Playa Flamenca (Orihuela Costa). Residentieel met mooie gemeenschappelijke zwembaden, jacuzzi's en mooie gemeenschappelijke tuinen. Alle diensten zoals supermarkten, bars en restaurants, etc zijn op loopafstand op een zeer centrale plek aan Orihuela Costa. Grote verscheidenheid aan typen om uit te kiezen: studio's, appartementen met 1, 2 of 3 slaapkamers. Lage verdiepingen met privétuinen of bovenste verdiepingen met privésolariums. Alle woningen hebben een parkeerplaats en een berging inbegrepen in de prijs. Het winkelcentrum Zenia Boulevard op 1 km afstand en verschillende golfbanen zoals Villamartin, Campoamor binnen 5 km van deze woonwijk zullen een ideale locatie zijn voor uw vakantie of uw permanente bewoning.

Plaats

Neem contact met ons op Een vraag doen

Responsable del tratamiento: Mediaterrean y Mar Eindom, SL, Finalidad del tratamiento: Gestión y control de los servicios ofrecidos a través de la página Web de Servicios inmobiliarios, Envío de información a traves de newsletter y otros, Legitimación: Por consentimiento, Destinatarios: No se cederan los datos, salvo para elaborar contabilidad, Derechos de las personas interesadas: Acceder, rectificar y suprimir los datos, solicitar la portabilidad de los mismos, oponerse altratamiento y solicitar la limitación de éste, Procedencia de los datos: El Propio interesado, Información Adicional: Puede consultarse la información adicional y detallada sobre protección de datos Aquí.

© 2026 Medimar Eiendom · All rights reserved · Colofon Privacy Cookies Web plan

Design and CRM: Mediaelx

Een vraag doen WhatsApp