€575.000
6.222.363 NOK
Send forespørsel Kontakt

Rekkehus · Nybygg Almeria · Mojacar

€575.000
6.222.363 NOK
Send forespørsel Kontakt

Kjennetegn

Tilleggsfunksjoner

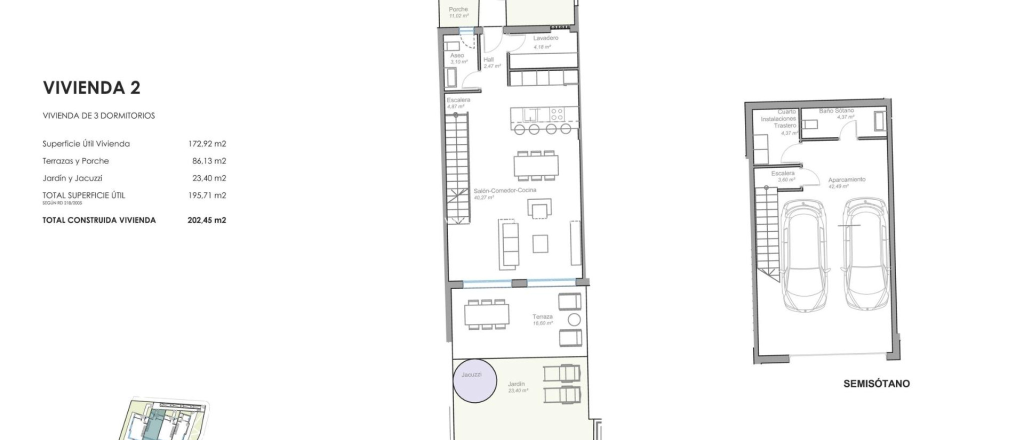
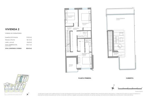
Soverom: 3
Baderom: 3
Inne: 172m2
Tomt: 34m2
Gated
Solarium: Yes
I nærheten av golf / golfanlegg
First Line to the Sea
Location: Coastal, Urbanisation
Garden
Views: Sea
Near Schools
Double Bedrooms: 3
Number of Parking Spaces: 2
Parking - Space
Useable Build Space: 160 Msq.
Terrace: 75 Msq.
Beach: 30 Meters
Near Commercial Center
Oppbevaring / Trastero
Toalett: 1
Send forespørsel

Beskrivelse

Eksklusive nybyggede strandhus til salgs i Mojácar, Costa de Almería

Boutique-boliger ved sjøen i et av Mojácars mest attraktive områder
Oppdag et eksepsjonelt boligkompleks bestående av kun 10 eksklusive boliger ved stranden i La Mena-området i Mojácar. Denne privilegerte beliggenheten gir direkte tilgang over Paseo del Mediterraneo til den gylne sanden og det krystallklare vannet i Middelhavet. Området er omgitt av strandklubber, restauranter og en fredelig kystatmosfære, og er ideelt for de som søker en raffinert livsstil ved sjøen. Mojácar Playa og Parador de Mojácar ligger bare 3 km unna, og tilbyr et bredt utvalg av tjenester, underholdning og naturskjønnhet.

Elegante boliger designet for komfort og havutsikt
Dette unike prosjektet tilbyr boliger med tre soverom og tre bad i to forskjellige utførelser. Kjøpere kan velge mellom fire rekkehus med privat solarium og valgfri boblebad, eller seks tomannsboliger, hver med eget svømmebasseng. Alle boligene har en stor kjellergarasje med plass til to biler, romslige terrasser og store hageområder som gir maksimal utendørs nytelse og havutsikt.

Høykvalitets spesifikasjoner og tilpasningsmuligheter
Hver eiendom er utstyrt med et fullt installert aerotermisk klimaanlegg, som sikrer maksimal energieffektivitet og komfort gjennom hele året. Kjøkkenene leveres umøblerte, slik at eierne kan tilpasse designet etter eget ønske, med et komplett innredningsprosjekt inkludert. Ytterligere funksjoner inkluderer forhåndsinstallasjon for smarthusteknologi, forsterket inngangsdør og høykvalitets byggematerialer som forbedrer sikkerhet, design og holdbarhet.

Førsteklasses beliggenhet med utmerket tilknytning
Beliggende i et rolig strandområde, har utviklingen praktisk tilgang til viktige destinasjoner langs Costa de Almería. Mojácar Pueblo, med sine pittoreske hvitkalkede gater, ligger bare en kort kjøretur unna. Populære severdigheter inkluderer:
Mojácar Playa 3 km
Parador de Mojácar 3 km
Marina de Garrucha 12 km
Campo de golf Marina Golf 6 km
Aeropuerto de Almería 80 km
Aeropuerto de Murcia Corvera 150 km

Sikre deg din egen strandbolig i Mojácar
Opplev en livsstil hvor havet blir en del av hverdagen og luksus smelter sammen med kystens ro. Enten du er på utkikk etter et feriested, en permanent bolig eller en eksklusiv investering, tilbyr dette boutique-prosjektet ved stranden enestående verdi. Kontakt oss i dag for å få mer informasjon eller avtale en visning.

Plassering

Kontakt oss Send forespørsel

Responsable del tratamiento: Mediaterrean y Mar Eindom, SL, Finalidad del tratamiento: Gestión y control de los servicios ofrecidos a través de la página Web de Servicios inmobiliarios, Envío de información a traves de newsletter y otros, Legitimación: Por consentimiento, Destinatarios: No se cederan los datos, salvo para elaborar contabilidad, Derechos de las personas interesadas: Acceder, rectificar y suprimir los datos, solicitar la portabilidad de los mismos, oponerse altratamiento y solicitar la limitación de éste, Procedencia de los datos: El Propio interesado, Información Adicional: Puede consultarse la información adicional y detallada sobre protección de datos Aquí.

© 2026 Medimar Eiendom · · Juridisk merknad Privatliv Cookies Web kart

Design and CRM: Mediaelx

Send forespørsel WhatsApp