Таунхаусы · Новостройки Almeria · Mojacar

Характеристики

Дополнительные возможности

спальни: 3
В ванных комнатах: 3
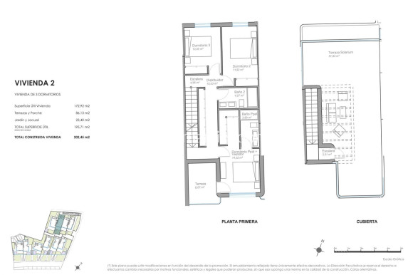
построен: 172m2
участок: 34m2
Gated
Solarium: Yes
Рядом с гольфом / гольф-курортом
First Line to the Sea
Location: Coastal, Urbanisation
Garden
Views: Sea
Near Schools
Double Bedrooms: 3
Number of Parking Spaces: 2
Parking - Space
Useable Build Space: 160 Msq.
Terrace: 75 Msq.
Beach: 30 Meters
Near Commercial Center
Хранение / Трастеро
Туалет: 1
Делать запрос

Описание

Эксклюзивные новые дома на берегу моря на продажу в Мохакаре, Коста-де-Альмерия

Бутик-жилье на берегу моря в одном из самых престижных районов Мохакара
Откройте для себя исключительный жилой бутик, состоящий всего из 10 эксклюзивных домов, расположенных на берегу моря в районе Ла-Мена в Мохакаре. Это привилегированное место расположение предлагает прямой доступ через Пасео-дель-Медитерранео к золотистым пескам и кристально чистым водам Средиземного моря. Окруженный пляжными клубами, ресторанами и спокойной прибрежной атмосферой, этот район идеально подходит для тех, кто ищет изысканный образ жизни на побережье. Мохакар-Плайя и Парадор-де-Мохакар находятся всего в 3 км отсюда, предлагая широкий спектр услуг, развлечений и природных красот.

Элегантные дома, спроектированные для комфорта и видов на море
Этот уникальный комплекс предлагает недвижимость с тремя спальнями и тремя ванными комнатами, доступную в двух конфигурациях. Покупатели могут выбрать между четырьмя таунхаусами с частным солярием и дополнительным джакузи или шестью двухквартирными виллами, каждая с собственным бассейном. Все дома включают в себя большой подземный гараж на две машины, просторные террасы и большие сады, которые позволяют максимально наслаждаться пребыванием на свежем воздухе и видами на море.

Высококачественные характеристики и возможности индивидуальной настройки
Каждый дом оборудован полностью установленной аэротермической системой кондиционирования, обеспечивающей максимальную энергоэффективность и комфорт в течение всего года. Кухни поставляются без мебели, что позволяет владельцам персонализировать их дизайн, с включенным полным проектом отделки. Дополнительные функции включают предварительную установку для технологии «умный дом», усиленную входную дверь и высококачественные строительные материалы, которые повышают безопасность, дизайн и долговечность.

Выгодное расположение с отличной транспортной доступностью
Расположенный в тихом прибрежном районе, комплекс имеет удобный доступ к ключевым местам вдоль побережья Коста-де-Альмерия. Мохакар-Пуэбло с его живописными белоснежными улочками находится всего в нескольких минутах езды. Популярные достопримечательности включают:
Мохакар-Плайя 3 км
Парадор-де-Мохакар 3 км
Марина-де-Гарруча 12 км
Поле для гольфа Marina Golf 6 км
Аэропорт Альмерии 80 км
Аэропорт Мурсии Корвера 150 км

Обеспечьте себе дом на первой линии пляжа в Мохакаре
Насладитесь образом жизни, в котором море становится частью вашей повседневной жизни, а роскошь сочетается с прибрежным спокойствием. Если вы ищете место для отдыха, постоянного проживания или эксклюзивную инвестицию, этот бутиковый комплекс на берегу моря предлагает вам непревзойденную ценность. Свяжитесь с нами сегодня, чтобы получить дополнительную информацию или договориться о просмотре.

Место нахождения

Изображений

Свяжитесь с нами Делать запрос

Responsable del tratamiento: Mediaterrean y Mar Eindom, SL, Finalidad del tratamiento: Gestión y control de los servicios ofrecidos a través de la página Web de Servicios inmobiliarios, Envío de información a traves de newsletter y otros, Legitimación: Por consentimiento, Destinatarios: No se cederan los datos, salvo para elaborar contabilidad, Derechos de las personas interesadas: Acceder, rectificar y suprimir los datos, solicitar la portabilidad de los mismos, oponerse altratamiento y solicitar la limitación de éste, Procedencia de los datos: El Propio interesado, Información Adicional: Puede consultarse la información adicional y detallada sobre protección de datos Aquí.
Делать запрос WhatsApp