RAÐHÚS · Nýbygging Almeria · Mojacar

Einkenni

Önnur lögun

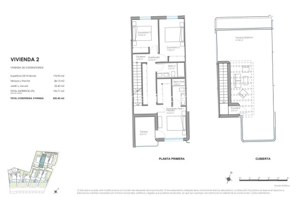
Svefnherbergi: 3
Baðherbergi: 3
Byggir: 172m2
Söguþráður: 34m2
Gated
Solarium: Yes
Lähellä golfkenttää / golfkeskuksen kiinteistöä
First Line to the Sea
Location: Coastal, Urbanisation
Garden
Views: Sea
Near Schools
Double Bedrooms: 3
Number of Parking Spaces: 2
Parking - Space
Useable Build Space: 160 Msq.
Terrace: 75 Msq.
Beach: 30 Meters
Near Commercial Center
Geymsla / Geymsla
Salerni: 1
Gera fyrirspurn

Lýsing

Nýbyggð einbýlishús til sölu við ströndina í Mojácar, Costa de Almería. Búsetustíll við sjávarsíðuna á einu eftirsóttasta svæði Mojácar. Uppgötvaðu einstakt íbúðabústað sem samanstendur af aðeins 10 einbýlishúsum staðsett við ströndina á La Mena svæðinu í Mojácar. Þessi einstaka staðsetning býður upp á beinan aðgang yfir Paseo del Mediterraneo að gullnum sandi og kristaltæru vatni Miðjarðarhafsins. Umkringt strandklúbbum, veitingastöðum og friðsælu strandstemningu er þetta svæði tilvalið fyrir þá sem sækjast eftir fáguðum lífsstíl við sjávarsíðuna. Mojácar Playa og Parador de Mojácar eru aðeins 3 km í burtu og bjóða upp á fjölbreytt úrval þjónustu, afþreyingar og náttúrufegurð. Glæsileg heimili hönnuð með þægindi og útsýni yfir hafið í huga. Þessi einstaka þróun býður upp á eignir með þremur svefnherbergjum og þremur baðherbergjum í tveimur útfærslum. Kaupendur geta valið á milli fjögurra raðhúsa með einkaþakveri og valfrjálsum nuddpotti, eða sex parhúsa, hvert með eigin einkasundlaug. Öll húsin eru með stórum bílskúr í kjallara fyrir tvo bíla, rúmgóðum veröndum og rúmgóðum garðsvæðum sem hámarka útiveruna og útsýnið yfir hafið. Hágæða forskriftir og sérstillingarmöguleikar Hver eign er búin fullbúnu loftkælingarkerfi sem tryggir hámarks orkunýtni og þægindi allt árið. Eldhúsin eru án húsgagna, sem gerir eigendum kleift að sérsníða hönnun sína, með fullkomnu skreytingarverkefni innifalið. Meðal annarra eiginleika eru foruppsetning fyrir snjallheimilistækni, styrktar inngangshurðir og hágæða byggingarefni sem auka öryggi, hönnun og endingu. Frábær staðsetning með frábærum tengingum Staðsett í rólegu strandhverfi, býður þróunin upp á þægilegan aðgang að helstu áfangastöðum meðfram Costa de Almería. Mojácar Pueblo, með fallegum hvítkalkuðum götum, er aðeins í stuttri akstursfjarlægð. Vinsælir áhugaverðir staðir eru meðal annars: Mojácar Playa 3 km Parador de Mojácar 3 km Marina de Garrucha 12 km Campo de golf Marina Golf 6 km Aeropuerto de Almería 80 km Aeropuerto de Murcia Corvera 150 km Tryggðu þér strandheimili í Mojácar. Upplifðu lífsstíl þar sem sjórinn verður hluti af daglegu lífi þínu og lúxus blandast við strandró. Hvort sem þú ert að leita að frístað, fastri búsetu eða einstakri fjárfestingu, þá býður þetta lúxusíbúðaverkefni við ströndina upp á óviðjafnanlegt verðmæti. Hafðu samband við okkur í dag til að fá frekari upplýsingar eða bóka skoðun.

Staðsetning

Hafðu samband við okkur Gera fyrirspurn

Responsable del tratamiento: Mediaterrean y Mar Eindom, SL, Finalidad del tratamiento: Gestión y control de los servicios ofrecidos a través de la página Web de Servicios inmobiliarios, Envío de información a traves de newsletter y otros, Legitimación: Por consentimiento, Destinatarios: No se cederan los datos, salvo para elaborar contabilidad, Derechos de las personas interesadas: Acceder, rectificar y suprimir los datos, solicitar la portabilidad de los mismos, oponerse altratamiento y solicitar la limitación de éste, Procedencia de los datos: El Propio interesado, Información Adicional: Puede consultarse la información adicional y detallada sobre protección de datos Aquí.

© 2026 Medimar Eiendom · All rights reserved · Legal athugið Privacy Cookies Web Map

Design and CRM: Mediaelx

Gera fyrirspurn WhatsApp