€354.900
3.909.933 NOK
Send forespørsel Kontakt

Rekkehus · Nybygg Alicante - Costa Blanca · Pilar de la Horadada

€354.900
3.909.933 NOK
Send forespørsel Kontakt

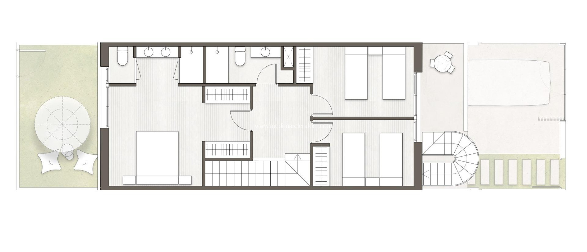
Kjennetegn

Tilleggsfunksjoner

Soverom: 3
Baderom: 2
Inne: 112m2
Tomt: 40m2
Basseng: Ja
Communal Pool
Gated
Solarium: Yes
Number of Parking Spaces: 1
Location: Coastal, Urbanisation
Air Conditioning: Pre-Installed
Garden
Near Schools
Double Bedrooms: 3
I nærheten av bussrute
Parking - Space
Brukbart byggeareal: 100 Msq.
Beach: 2600 Meters
Terrace: 75 Msq.
Near Commercial Center
Toalett: 1
Send forespørsel

Beskrivelse

Nybygde rekkehus og hjørnerekkehus i Pilar de la Horadada Moderne livsstil i hjertet av Costa Blanca Velkommen til dette eksklusive nybygget med 12 moderne rekkehus og hjørnerekkehus, som ligger i den livlige kystbyen Pilar de la Horadada, på sørspissen av Costa Blanca. Denne førsteklasses beliggenheten tilbyr en perfekt balanse mellom middelhavsstil og bekvemmelighet, med alle daglige tjenester, butikker, barer og restauranter innen gangavstand. De gylne strendene Torre de la Horadada og Mil Palmeras ligger bare 3 km unna, og er ideelle for stranddager, vannsport og lange spaserturer langs strandpromenaden. Allsidige boligtyper som passer til din livsstil Prosjektet har flere ulike planløsninger som er designet for komfort og funksjonalitet: Rekkehus med 2 eller 3 soverom, hvert med 2 bad og 1 gjestetoalett Private hager foran og bak Privat parkering på tomten Terrasse i første etasje og privat takterrasse med åpen utsikt Hjørneenheter er tilgjengelige med større tomter for ekstra uteplass Alle boligene har lyse og åpne oppholdsrom, fullt utstyrt kjøkken med over- og underskap og moderne innredning overalt. Førsteklasses beliggenhet med utmerket tilgjengelighet Pilar de la Horadada har gode forbindelser til viktige steder på Costa Blanca og Costa Cálida, noe som gjør det ideelt for permanent opphold, ferier eller utleieinvesteringer. De viktigste severdighetene i nærheten inkluderer: Strendene i Torre de la Horadada og Mil Palmeras - 3 km Lo Romero golfbane - 6 km Corvera lufthavn (Murcia) - 40 km Alicante internasjonale lufthavn - 55 km Kjøpesenteret Zenia Boulevard - 14 km San Pedro del Pinatar marina - 11 km I tillegg til kystens sjarm tilbyr Pilar de la Horadada et bredt spekter av fritidsaktiviteter, inkludert sykkelruter, turstier og en rekke sportsfasiliteter. Ditt ideelle hjem under solen Enten du er ute etter en feriebolig, en helårsbolig eller en smart utleieinvestering, gir disse nybygde rekkehusene i Pilar de la Horadada eksepsjonell verdi i en av de mest ettertraktede kystbyene i regionen. Kontakt oss i dag for mer informasjon eller for å avtale et besøk.

Plassering

Kontakt oss Send forespørsel

Responsable del tratamiento: Mediaterrean y Mar Eindom, SL, Finalidad del tratamiento: Gestión y control de los servicios ofrecidos a través de la página Web de Servicios inmobiliarios, Envío de información a traves de newsletter y otros, Legitimación: Por consentimiento, Destinatarios: No se cederan los datos, salvo para elaborar contabilidad, Derechos de las personas interesadas: Acceder, rectificar y suprimir los datos, solicitar la portabilidad de los mismos, oponerse altratamiento y solicitar la limitación de éste, Procedencia de los datos: El Propio interesado, Información Adicional: Puede consultarse la información adicional y detallada sobre protección de datos Aquí.

© 2026 Medimar Eiendom · · Juridisk merknad Privatliv Cookies Web kart

Design and CRM: Mediaelx

Send forespørsel WhatsApp