€354.900
€354.900
Een vraag doen Contact

Geschakelde Woning · Nieuw gebouw Alicante - Costa Blanca · Pilar de la Horadada

€354.900
€354.900
Een vraag doen Contact

Kenmerken

Extra functies

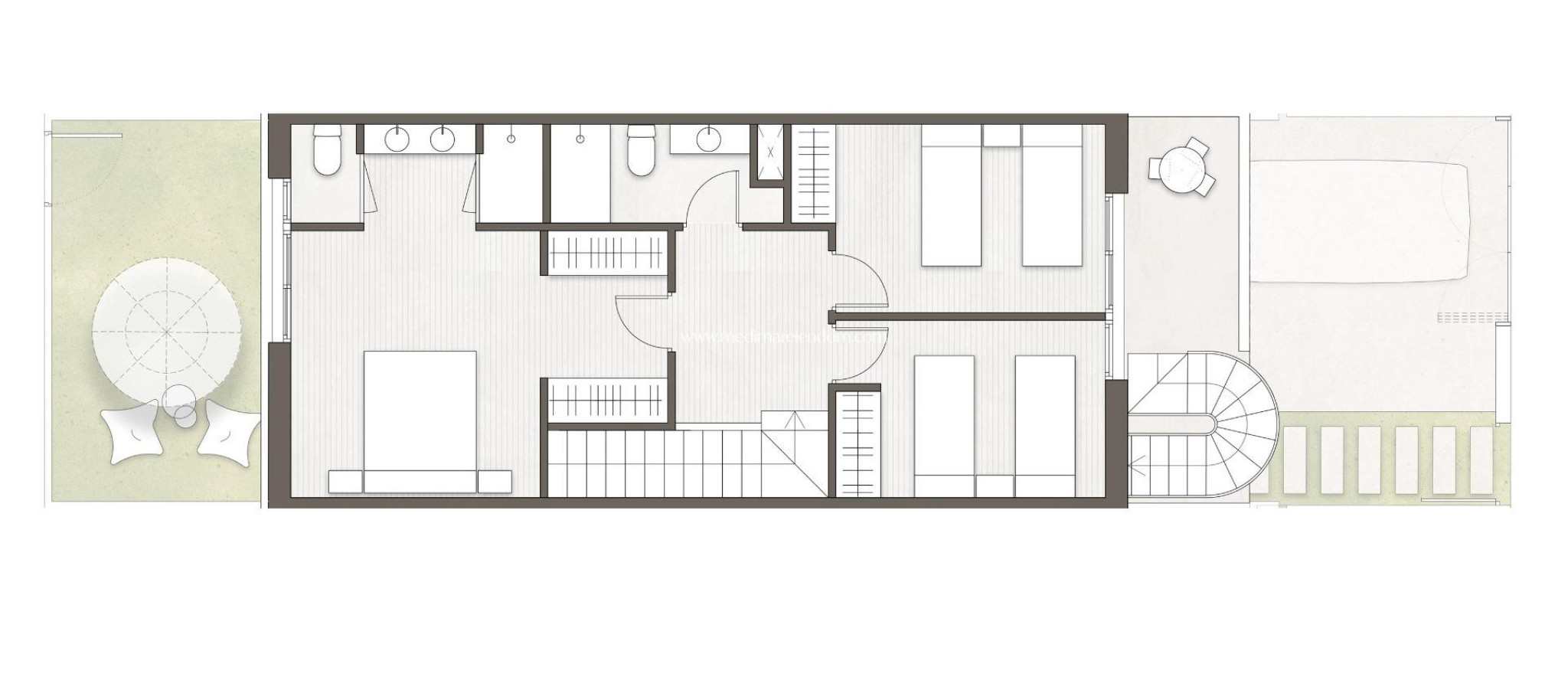
Slaapkamers: 3
Badkamers: 2
Gebouwd: 112m2
Plot: 40m2
Zwembad: Ja
Communal Pool
Gated
Solarium: Yes
Number of Parking Spaces: 1
Location: Coastal, Urbanisation
Air Conditioning: Pre-Installed
Garden
Near Schools
Double Bedrooms: 3
Dichtbij busroute
Parking - Space
Bruikbare bouwruimte: 100 Msq.
Beach: 2600 Meters
Terrace: 75 Msq.
Near Commercial Center
Toilet: 1
Een vraag doen

Beschrijving

Nieuwbouwwoningen en hoekwoningen in Pilar de la Horadada Hedendaags wonen in het hart van de Costa Blanca Welkom in dit exclusieve nieuwbouwproject van 12 moderne herenhuizen en hoekwoningen, gelegen in de levendige kustplaats Pilar de la Horadada, in het zuidelijke puntje van de Costa Blanca. Deze toplocatie biedt een perfecte balans tussen mediterrane levensstijl en gemak, met alle dagelijkse voorzieningen, winkels, bars en restaurants op loopafstand. De gouden stranden van Torre de la Horadada en Mil Palmeras liggen op slechts 3 km afstand, ideaal voor stranddagen, watersporten en lange wandelingen langs de boulevard. Veelzijdige woningtypes voor uw levensstijl Het project omvat verschillende woningindelingen die zijn ontworpen voor comfort en functionaliteit: Herenhuizen met 2 of 3 slaapkamers, elk met 2 badkamers en 1 gastentoilet Privétuinen voor en achter Privé parkeerplaats op het perceel Terras op de eerste verdieping en privé dakterras met vrij uitzicht Hoekwoningen beschikbaar met grotere kavels voor extra buitenruimte Alle woningen beschikken over lichte en open woonruimten, volledig uitgeruste keukens met boven- en onderkasten en een moderne afwerking. Toplocatie met uitstekende bereikbaarheid Pilar de la Horadada is goed verbonden met belangrijke locaties aan de Costa Blanca en Costa Cálida, waardoor het ideaal is voor permanente bewoning, vakanties of investeringen in verhuur. De belangrijkste bezienswaardigheden in de buurt zijn onder andere: Stranden van Torre de la Horadada en Mil Palmeras - 3 km Lo Romero golfbaan - 6 km Luchthaven Corvera (Murcia) - 40 km Internationale luchthaven Alicante - 55 km Winkelcentrum Zenia Boulevard - 14 km Jachthaven van San Pedro del Pinatar - 11 km Naast de charme van de kust biedt Pilar de la Horadada een breed scala aan vrijetijdsactiviteiten, waaronder fietsroutes, wandelpaden en een verscheidenheid aan sportfaciliteiten. Je ideale huis onder de zon Of je nu op zoek bent naar een vakantieverblijf, een fulltime woning of een slimme verhuurinvestering, deze nieuwbouwhuizen in Pilar de la Horadada bieden uitzonderlijke waarde in een van de meest gewilde kustplaatsen in de regio. Neem vandaag nog contact met ons op voor meer informatie of om een bezichtiging te plannen.

Plaats

Neem contact met ons op Een vraag doen

Responsable del tratamiento: Mediaterrean y Mar Eindom, SL, Finalidad del tratamiento: Gestión y control de los servicios ofrecidos a través de la página Web de Servicios inmobiliarios, Envío de información a traves de newsletter y otros, Legitimación: Por consentimiento, Destinatarios: No se cederan los datos, salvo para elaborar contabilidad, Derechos de las personas interesadas: Acceder, rectificar y suprimir los datos, solicitar la portabilidad de los mismos, oponerse altratamiento y solicitar la limitación de éste, Procedencia de los datos: El Propio interesado, Información Adicional: Puede consultarse la información adicional y detallada sobre protección de datos Aquí.

© 2026 Medimar Eiendom · All rights reserved · Colofon Privacy Cookies Web plan

Design and CRM: Mediaelx

Een vraag doen WhatsApp