€220.500
2.386.141 NOK
Send forespørsel Kontakt

Rekkehus · Nybygg Murcia · La Union

€220.500
2.386.141 NOK
Send forespørsel Kontakt

Kjennetegn

Tilleggsfunksjoner

Soverom: 3
Baderom: 1
Inne: 173m2
Basseng: Ja
Parking - Space
Terrace: 47 Msq.
Beach: 1600 Meters
Oppbevaring / Trastero
Toalett: 1
Communal Pool
Gated
Solarium: Yes
Number of Parking Spaces: 1
Location: Coastal, Urbanisation
Air Conditioning: Pre-Installed
Views: Sea
Near Schools
Double Bedrooms: 3
Useable Build Space: 76 Msq.
Under-Build / Basement
Send forespørsel

Beskrivelse

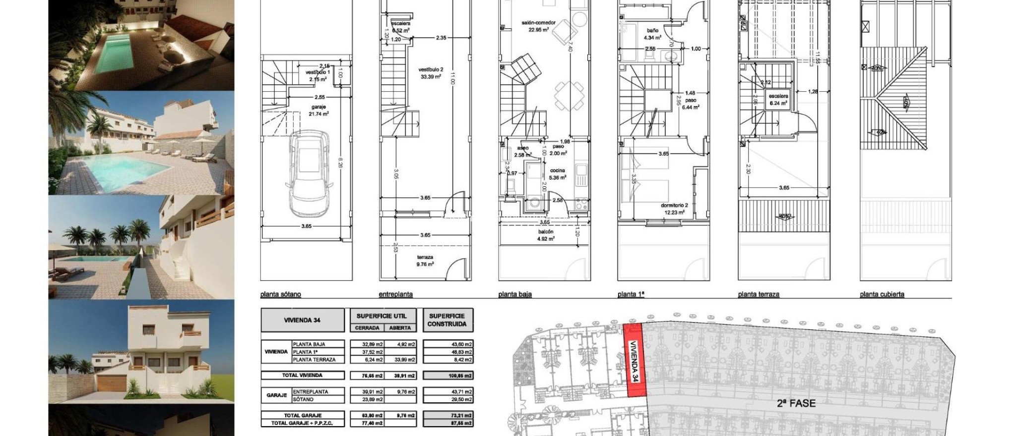
Nybyggede rekkehus med havutsikt i Portman Murcia Eksklusivt boligområde i Portman Bay Dette eksklusive boligprosjektet med 39 nybyggede rekkehus ligger høyt oppe i Portman og tilbyr panoramautsikt over Middelhavet og den vakre Portman Bay. Boligene ligger bare 1,6 km fra stranden og er designet for å omfavne den autentiske middelhavsstilen i fredelige og privilegerte naturomgivelser. Portman er en sjarmerende kystby omgitt av beskyttende fjell og åpen mot havet, med sørlig beliggenhet og milde temperaturer hele året. Området er ideelt for friluftsentusiaster, med tur- og terrengsykkelløyper, krystallklart vann for svømming og en avslappet atmosfære som er perfekt for å koble av. Samtidig ligger det bare 15 minutter med bil fra Cartagena, hvor du finner kjøpesentre, sykehus, kulturelle attraksjoner og en livlig marina. Moderne rekkehus med 2 og 3 soverom og privat solarium Prosjektet tilbyr rekkehus med 2 og 3 soverom, 1 komplett bad og 1 gjestetoalett, fordelt på 3 eller 4 etasjer, pluss et privat solarium på taket. Hver eiendom er nøye designet for å maksimere komfort, funksjonalitet og naturlig lys. Fra ditt private solarium kan du nyte 360 graders utsikt over havet og det omkringliggende landskapet, noe som skaper et unikt rom for avslapning, soling eller underholdning. Høykvalitets spesifikasjoner og praktiske rom Disse nybygde boligene leveres med materialer av høy kvalitet og moderne finish, inkludert: Moderne kjøkken utstyrt med hvitevarer fra toppmerker Pansret inngangsdør Bad med servantskap, speil, dusjvegger og elektriske håndkletørkere Aerotermisk system for varmt vann Forhåndsinstallasjon for split-klimaanlegg Romslig privat underjordisk garasje og oppbevaringsområde Store oppbevaringsområder gir ideell plass til sykler, strandutstyr eller dykkerutstyr, noe som gjør disse boligene perfekte for de som liker de mange friluftsaktivitetene som er tilgjengelige i regionen. Fellesområder for avslapning og sosialt samvær Boligkomplekset har anlagte hager og et felles svømmebasseng, som gir beboerne et komfortabelt og trygt miljø hvor de kan slappe av og nyte tiden med familie og venner. Avstander til viktige severdigheter Strand 1,6 km Cartagena 15 km La Manga Club Golf 12 km Cartagena havn 15 km Murcia internasjonale lufthavn 35 km Alicante lufthavn 120 km Oppdag din middelhavsstil i Portman Enten du er på utkikk etter en permanent bolig eller et feriehus ved sjøen, tilbyr disse rekkehusene i Portman utsikt, komfort og et eksepsjonelt naturmiljø. Kontakt oss i dag for å få mer informasjon eller for å avtale et besøk til dette enestående nye boligprosjektet.

Plassering

Kontakt oss Send forespørsel

Responsable del tratamiento: Mediaterrean y Mar Eindom, SL, Finalidad del tratamiento: Gestión y control de los servicios ofrecidos a través de la página Web de Servicios inmobiliarios, Envío de información a traves de newsletter y otros, Legitimación: Por consentimiento, Destinatarios: No se cederan los datos, salvo para elaborar contabilidad, Derechos de las personas interesadas: Acceder, rectificar y suprimir los datos, solicitar la portabilidad de los mismos, oponerse altratamiento y solicitar la limitación de éste, Procedencia de los datos: El Propio interesado, Información Adicional: Puede consultarse la información adicional y detallada sobre protección de datos Aquí.

© 2026 Medimar Eiendom · · Juridisk merknad Privatliv Cookies Web kart

Design and CRM: Mediaelx

Send forespørsel WhatsApp