RAÐHÚS · Nýbygging Murcia · La Union

Einkenni

Önnur lögun

Svefnherbergi: 3
Baðherbergi: 1
Byggir: 173m2
Pool:
Near Schools
Double Bedrooms: 3
Useable Build Space: 76 Msq.
Under-Build / Basement
Parking - Space
Terrace: 47 Msq.
Beach: 1600 Meters
Geymsla / Geymsla
Salerni: 1
Communal Pool
Gated
Solarium: Yes
Number of Parking Spaces: 1
Location: Coastal, Urbanisation
Air Conditioning: Pre-Installed
Views: Sea
Gera fyrirspurn

Lýsing

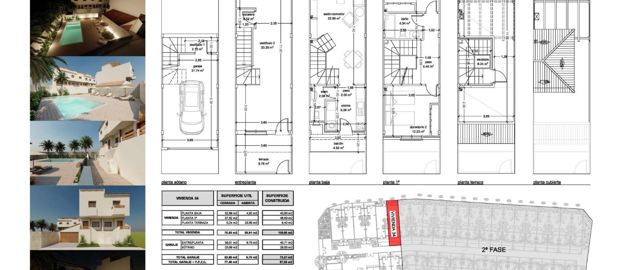
Nýbyggð raðhús með sjávarútsýni í Portman, Murcia. Sérstök íbúðarhúsnæði í Portman-flóa. Þetta einstaka þróunarverkefni með 39 nýbyggðum raðhúsum er staðsett á hæð í Portman og býður upp á útsýni yfir Miðjarðarhafið og fallega Portman-flóann. Þessi hús eru aðeins 1,6 km frá ströndinni og eru hönnuð til að tileinka sér ekta Miðjarðarhafslífsstíl í friðsælu og einstöku náttúrulegu umhverfi. Portman er heillandi strandbær umkringdur verndandi fjöllum og opinn sjónum, með suðursátt og mildu hitastigi allt árið um kring. Svæðið er tilvalið fyrir útivistarfólk, með göngu- og fjallahjólaleiðum, kristaltæru vatni til sunds og afslappaðri stemningu sem er fullkomin til að slaka á. Á sama tíma er það aðeins 15 mínútna akstur frá Cartagena, þar sem þú finnur verslunarmiðstöðvar, sjúkrahús, menningarstaði og líflega smábátahöfn. Nútímaleg raðhús með 2 og 3 svefnherbergjum og sérþakverönd. Þróunin býður upp á raðhús með 2 og 3 svefnherbergjum, 1 baðherbergi og 1 gestasalerni, dreift yfir 3 eða 4 hæðir ásamt sérþakverönd. Hver eign hefur verið vandlega hönnuð til að hámarka þægindi, virkni og náttúrulegt ljós. Frá einkareknum sólarverönd geturðu notið 360 gráðu útsýnis yfir hafið og landslagið í kring, sem skapar einstakt rými til að slaka á, sólbaða þig eða skemmta þér. Hágæða forskriftir og hagnýt rými Þessi nýbyggðu heimili eru afhent með hágæða efni og nútímalegri frágangi, þar á meðal: Nútímaleg eldhús búin tækjum frá fyrsta flokks vörumerkjum Brynvarðar inngangshurðir Baðherbergi með snyrtiskápum, speglum, sturtuklefa og rafmagnshandklæðaofnum Loftræstikerfi fyrir heitt vatn Fyrirfram uppsetning á aparte loftræstikerfi Rúmgóð einkabílskúr og geymslurými í neðri hæð Stór geymslurými bjóða upp á kjörinn geymslupláss fyrir reiðhjól, strandbúnað eða köfunarbúnað, sem gerir þessi heimili að fullkomnum fyrir þá sem njóta þeirrar fjölmörgu útivistar sem í boði er á svæðinu. Sameiginleg rými fyrir slökun og félagslegt líf Íbúðarhverfið er með landslagaða garða og sameiginlega sundlaug, sem býður íbúum upp á þægilegt og öruggt umhverfi til að slaka á og njóta samveru með fjölskyldu og vinum. Fjarlægðir að helstu áhugaverðum stöðum: Strönd 1,6 km, Cartagena 15 km, La Manga Club Golf 12 km, Höfnin í Cartagena 15 km, Murcia alþjóðaflugvöllurinn 35 km, Alicante flugvöllurinn 120 km. Uppgötvaðu Miðjarðarhafslífsstílinn þinn í Portman. Hvort sem þú ert að leita að fastri búsetu eða frístundahúsi við sjóinn, þá bjóða þessi raðhús í Portman upp á útsýni, þægindi og einstakt náttúrulegt umhverfi. Hafðu samband við okkur í dag til að fá frekari upplýsingar eða til að bóka heimsókn í þetta einstaka nýja verkefni.

Staðsetning

Hafðu samband við okkur Gera fyrirspurn

Responsable del tratamiento: Mediaterrean y Mar Eindom, SL, Finalidad del tratamiento: Gestión y control de los servicios ofrecidos a través de la página Web de Servicios inmobiliarios, Envío de información a traves de newsletter y otros, Legitimación: Por consentimiento, Destinatarios: No se cederan los datos, salvo para elaborar contabilidad, Derechos de las personas interesadas: Acceder, rectificar y suprimir los datos, solicitar la portabilidad de los mismos, oponerse altratamiento y solicitar la limitación de éste, Procedencia de los datos: El Propio interesado, Información Adicional: Puede consultarse la información adicional y detallada sobre protección de datos Aquí.

© 2026 Medimar Eiendom · All rights reserved · Legal athugið Privacy Cookies Web Map

Design and CRM: Mediaelx

Gera fyrirspurn WhatsApp