€349.000
3.844.933 NOK
Send forespørsel Kontakt

Penthouse · Nybygg Alicante - Costa Blanca · Torrevieja

€349.000
3.844.933 NOK
Send forespørsel Kontakt

Kjennetegn

Tilleggsfunksjoner

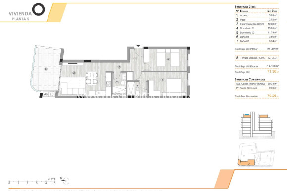
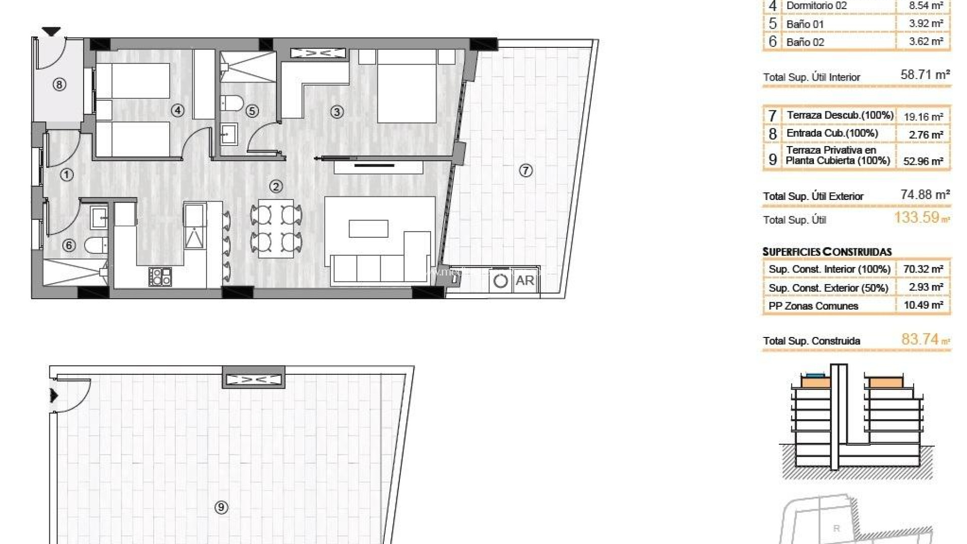
Soverom: 2
Baderom: 2
Inne: 79m2
Basseng: Ja
Terrace: 72 Msq.
Near Commercial Center
Solarium: 53 kvm.
Communal Pool
Gated
Air Conditioning: Pre-Installed
Double Bedrooms: 2
Heis/heis
Near Schools
I nærheten av barneparker
I nærheten av bussrute
Gym
Location: Coastal
Parking - Space
Beach: 400 Meters
Useable Build Space: 83 Msq.
Send forespørsel

Beskrivelse

Nybyggede leiligheter i hjertet av Torrevieja Bare 400 m fra Playa del Cura

Førsteklasses beliggenhet i sentrum av Torrevieja
Dette nye boligbygget har en uovertruffen beliggenhet i sentrum av Torrevieja, bare 400 m fra Playa del Cura. Omgitt av butikker, supermarkeder, restauranter og daglige tjenester, tilbyr det alt du trenger innen gangavstand. Området gir også tilgang til parker, fritidssoner og grønne områder, og skaper en perfekt balanse mellom urbane bekvemmeligheter og øyeblikk av avslapning.

Moderne boliger med 2 og 3 soverom
Prosjektet tilbyr et utvalg av leiligheter med 2 og 3 soverom, inkludert penthouse-leiligheter, noen av dem med private solterrasser. Hver bolig er designet i moderne stil, med åpen planløsning, store terrasser og integrerte kjøkken i amerikansk stil. Badene er fullt utstyrt med møbler, dusjvegger og gulvvarme. Kjøkkenene inkluderer hvitevarer, og hver leilighet har forhåndsinstallert kanalisert klimaanlegg. Valgfri underjordisk parkering og bod er tilgjengelig.

Fasiliteter i resort-stil for velvære
Beboerne kan nyte en rekke eksklusive fasiliteter. Første etasje har et fullt utstyrt treningsstudio, ideelt for daglige treningsøkter. Solariet på taket er en ekte oase for avslapning med solsenger, finsk sauna og et minibasseng. Både heisen og trappen går direkte til taket for maksimal bekvemmelighet og tilgjengelighet.

Bo i et unikt natur- og kystmiljø
Torrevieja er kjent for sitt varme middelhavsklima, med en gjennomsnittlig årstemperatur på 20 ºC, noe som gjør det til et perfekt sted å bo hele året. Byen er kjent for sine naturlige saltlaguner og den beskyttede naturparken La Mata og Torrevieja, som ligger bare 4 km fra boligkomplekset. De rosa og grønne innsjøene, de naturskjønne turstiene og den rike biologiske mangfoldigheten tilbyr en sunn og inspirerende livsstil.

Avstander til viktige severdigheter
Playa del Cura 0,4 km
Torrevieja Marina 1 km
La Mata naturpark 4 km
Villamartin Golf 8 km
Alicante lufthavn 45 km
Murcia lufthavn 60 km

Opplev middelhavslivsstilen
Ikke gå glipp av muligheten til å eie et moderne hjem i en av Costa Blancas mest attraktive kystbyer. Kontakt oss i dag for å avtale et besøk og sikre deg en plass i dette eksepsjonelle nye boligprosjektet.

Plassering

Kontakt oss Send forespørsel

Responsable del tratamiento: Mediaterrean y Mar Eindom, SL, Finalidad del tratamiento: Gestión y control de los servicios ofrecidos a través de la página Web de Servicios inmobiliarios, Envío de información a traves de newsletter y otros, Legitimación: Por consentimiento, Destinatarios: No se cederan los datos, salvo para elaborar contabilidad, Derechos de las personas interesadas: Acceder, rectificar y suprimir los datos, solicitar la portabilidad de los mismos, oponerse altratamiento y solicitar la limitación de éste, Procedencia de los datos: El Propio interesado, Información Adicional: Puede consultarse la información adicional y detallada sobre protección de datos Aquí.

© 2026 Medimar Eiendom · · Juridisk merknad Privatliv Cookies Web kart

Design and CRM: Mediaelx

Send forespørsel WhatsApp