Penthouse · Nýbygging Alicante - Costa Blanca · Torrevieja

Einkenni

Önnur lögun

Svefnherbergi: 2
Baðherbergi: 2
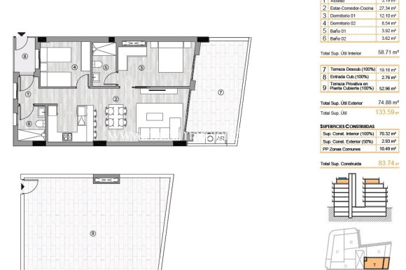
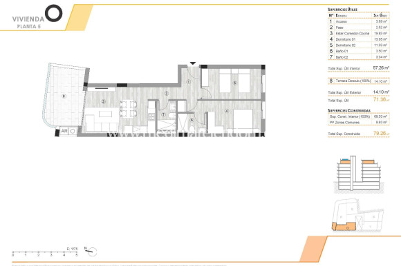
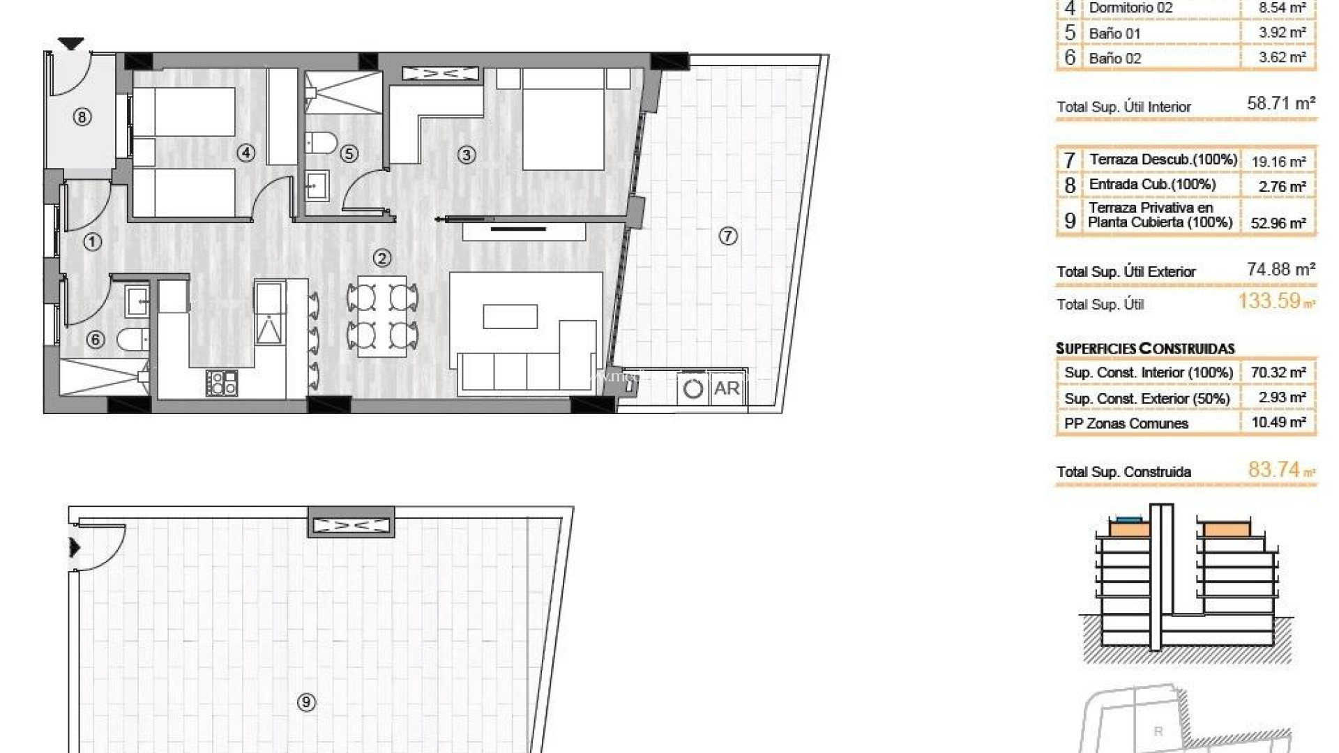
Byggir: 79m2
Pool:
Near Schools
Lähellä lastenpuistoja
Lähellä bussilinjaa
Gym
Location: Coastal
Parking - Space
Beach: 400 Meters
Useable Build Space: 83 Msq.
Terrace: 72 Msq.
Near Commercial Center
Sólbaðsstofa: 53 fermetrar
Communal Pool
Gated
Air Conditioning: Pre-Installed
Double Bedrooms: 2
Lyfta/lyfta
Gera fyrirspurn

Lýsing

Nýbyggðar íbúðir í hjarta Torrevieja Aðeins 400 m frá Playa del Cura Frábær staðsetning í miðbæ Torrevieja Þetta nýja íbúðarhúsnæði er staðsett á óviðjafnanlegum stað í miðbæ Torrevieja, aðeins 400 m frá Playa del Cura. Umkringt verslunum, matvöruverslunum, veitingastöðum og daglegri þjónustu býður það upp á allt sem þú þarft í göngufæri. Svæðið býður einnig upp á aðgang að almenningsgörðum, afþreyingarsvæðum og grænum svæðum, sem skapar fullkomna jafnvægi milli þæginda í þéttbýli og slökunarstunda. Nútímaleg heimili með 2 og 3 svefnherbergjum Þróunin býður upp á úrval af 2 og 3 svefnherbergja íbúðum, þar á meðal þakíbúðum, sumum með sérþakverönd. Hvert heimili er hannað í nútímalegum stíl, með opnu skipulagi, stórum svölum og innbyggðum eldhúsum í amerískum stíl. Baðherbergin eru fullbúin húsgögnum, sturtuklefa og gólfhita. Eldhúsin eru með tækjum og hver íbúð er með foruppsetningu fyrir loftkælingu. Valfrjáls bílastæði neðanjarðar og geymslur eru í boði. Aðstaða í dvalarstaðastíl fyrir vellíðan Íbúar geta notið góðs af fjölbreyttum þægindum. Á jarðhæðinni er fullbúin líkamsræktarstöð, tilvalin fyrir daglegar æfingar. Sólstofan á þakinu býður upp á sannkallaða slökunarparadís með sólbekkjum, finnsku gufubaði og lítilli sundlaug. Bæði lyfta og stigi tengjast beint upp á þakið fyrir hámarks þægindi og aðgengi. Að búa í einstöku náttúrulegu og strandnæru umhverfi Torrevieja er þekkt fyrir hlýtt Miðjarðarhafsloftslag, með meðalhita upp á 20ºC á ári, sem gerir það að fullkomnum stað til að búa á allt árið. Borgin er fræg fyrir náttúruleg saltlón sín og verndaða náttúrugarðinn La Mata og Torrevieja, sem er staðsettur aðeins 4 km frá hverfinu. Bleiku og grænu vötnin, fallegar gönguleiðir og rík líffræðilegur fjölbreytileiki bjóða upp á heilbrigðan og innblásandi lífsstíl. Fjarlægðir til helstu áhugaverðra staða Playa del Cura 0,4 km Torrevieja Marina 1 km La Mata náttúrugarðurinn 4 km Villamartin Golf 8 km Alicante flugvöllur 45 km Murcia flugvöllur 60 km Upplifðu Miðjarðarhafslífsstílinn Missið ekki af tækifærinu til að eignast nútímalegt heimili í einni af eftirsóttustu strandborgum Costa Blanca. Hafðu samband við okkur í dag til að bóka heimsókn og tryggja þér sæti í þessu einstaka nýja verkefni.

Staðsetning

Hafðu samband við okkur Gera fyrirspurn

Responsable del tratamiento: Mediaterrean y Mar Eindom, SL, Finalidad del tratamiento: Gestión y control de los servicios ofrecidos a través de la página Web de Servicios inmobiliarios, Envío de información a traves de newsletter y otros, Legitimación: Por consentimiento, Destinatarios: No se cederan los datos, salvo para elaborar contabilidad, Derechos de las personas interesadas: Acceder, rectificar y suprimir los datos, solicitar la portabilidad de los mismos, oponerse altratamiento y solicitar la limitación de éste, Procedencia de los datos: El Propio interesado, Información Adicional: Puede consultarse la información adicional y detallada sobre protección de datos Aquí.

© 2026 Medimar Eiendom · All rights reserved · Legal athugið Privacy Cookies Web Map

Design and CRM: Mediaelx

Gera fyrirspurn WhatsApp