€543.000
5.876.075 NOK
Send forespørsel Kontakt

Leilighet · Nybygg Alicante - Costa Blanca · Villajoyosa

€543.000
5.876.075 NOK
Send forespørsel Kontakt

Kjennetegn

Tilleggsfunksjoner

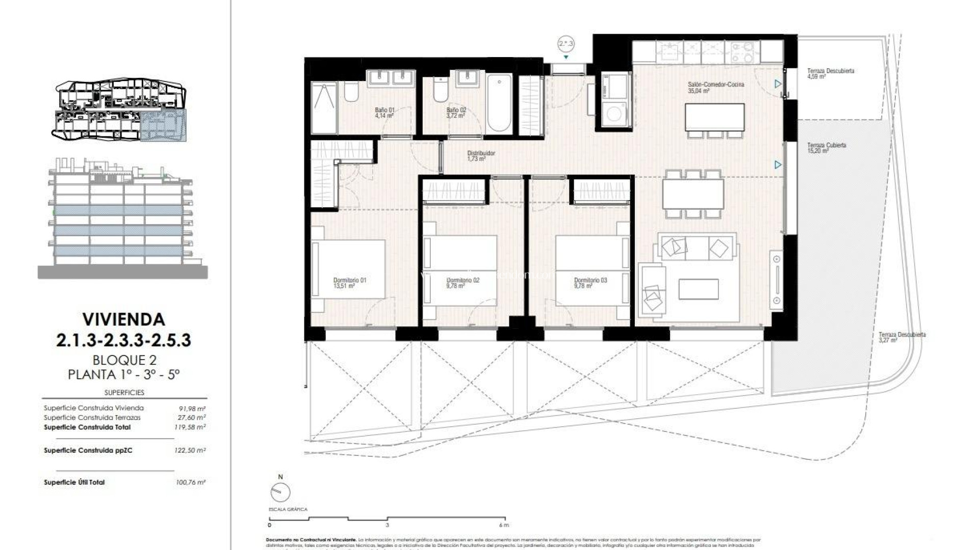
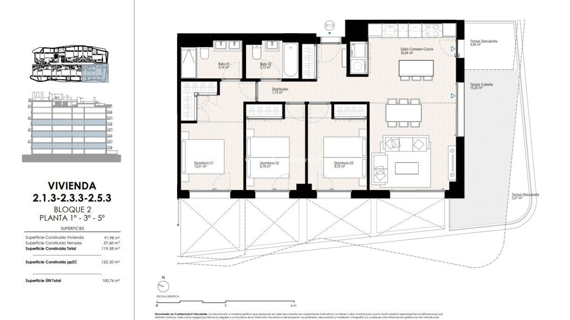
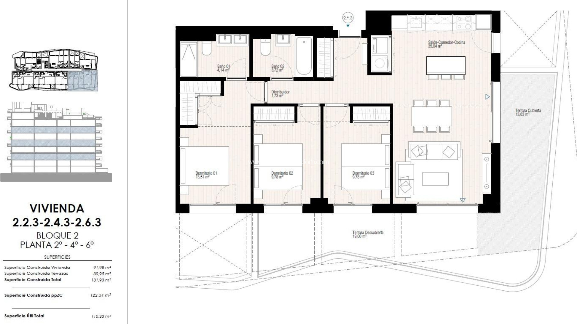
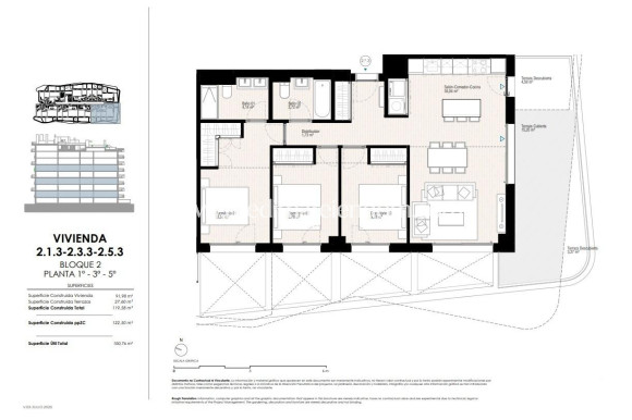
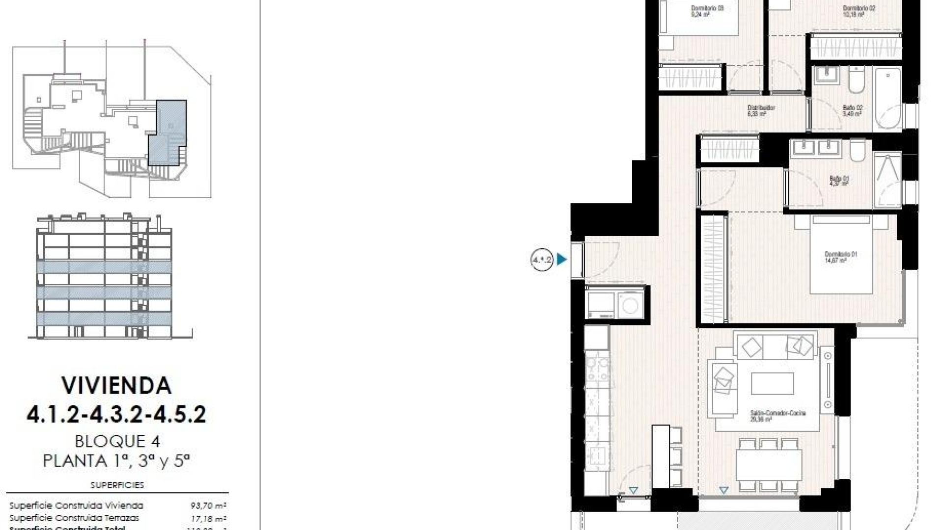
Soverom: 3
Baderom: 2
Inne: 122m2
Basseng: Ja
Number of Parking Spaces: 1
Location: Coastal, Urbanisation
Heis/heis
Views: Sea
Near Schools
Double Bedrooms: 3
Jacuzzi
Gym
Parking - Space
Beach: 400 Meters
Terrace: 17 Msq.
Useable Build Space: 91 Msq.
Near Commercial Center
Oppbevaring / Trastero
Communal Pool
Gated
Solarium: Yes
Send forespørsel

Beskrivelse

Luksusresort i Villajoyosa - et paradis ved havet Oppdag et unikt boligkompleks i Playa del Torres Dette eksklusive nybygget ligger mindre enn 5 minutters gange fra den rolige Playa del Torres i Villajoyosa, og tilbyr 164 moderne leiligheter og toppleiligheter med 1 til 3 soverom. Området er designet for å tilby den ultimate livsstilen, og kombinerer luksus, avslapning og enestående fasiliteter i rolige middelhavsomgivelser. Eksepsjonelle fasiliteter for alle beboerne Hjertet i dette prosjektet er Roof Top, som ligger på taket av blokk 2. Dette gjennomtenkte området har et fantastisk basseng med panoramautsikt, chill-out-områder, en grillsone, et flerbruksområde og et lysthus som er perfekt for sosialt samvær eller for å slappe av. Innendørs sosial salong, ideell for gourmetmiddager med venner eller som et kontorfellesskap. Komplekset har også noe for de som elsker vann: Bassenger i tropisk stil med tilgang til stranden. Et oppvarmet svømmebasseng, et barnebasseng og et oppvarmet boblebad. Treningsentusiaster kan glede seg over: Treningssentre innendørs og utendørs, komplett med en calisthenics-sirkel. En puttinggreen og minigolf for fritidsaktiviteter. Moderne hjem med førsteklasses funksjoner Hver leilighet er utstyrt med: Et fullt utstyrt kjøkken med hvitevarer av høy kvalitet, inkludert kjøleskap, mikrobølgeovn, stekeovn, oppvaskmaskin og integrert vaskemaskin/tørketrommel. Energieffektive aerotermiske systemer for varmtvann og klimaanlegg. Gulvvarme med strålevarme på badene. PVC-vinduer av høy kvalitet med varmeisolasjon og doble vinduer. Privat parkeringsplass og lagringsplass for ekstra bekvemmelighet. Bygningen har energiklassifisering A, noe som sikrer maksimal effektivitet og bærekraft. Perfekt beliggenhet i Villajoyosa Dette komplekset ligger i Playa del Torres, og tilbyr et fredelig tilfluktssted omgitt av naturskjønnhet. Strandens krystallklare vann og turkise fargetoner danner et idyllisk bakteppe for avslapning. Anlegget har en praktisk beliggenhet: 2 km fra Villajoyosas sjarmerende sentrum. 10 km fra Benidorm, med sitt pulserende natteliv og shopping. 30 minutter med bil til Alicante lufthavn. Villajoyosa, kjent for sine fargerike hus og rike historie, er fortsatt en autentisk middelhavsperle. Byen ble nylig kåret til «Beste hemmelige reisemål i Europa 2024» av European Best Destinations, og her blandes tradisjon, naturskjønnhet og ro. Drømmehuset ditt venter i Playa del Torres Opplev det beste av moderne livsstil i et naturparadis. Med sin førsteklasses beliggenhet, luksuriøse fasiliteter og moderne design er dette prosjektet perfekt for deg som ønsker deg et hjem ved sjøen. Kontakt oss i dag for å avtale et besøk og gjøre denne fantastiske eiendommen til din!

Plassering

Kontakt oss Send forespørsel

Responsable del tratamiento: Mediaterrean y Mar Eindom, SL, Finalidad del tratamiento: Gestión y control de los servicios ofrecidos a través de la página Web de Servicios inmobiliarios, Envío de información a traves de newsletter y otros, Legitimación: Por consentimiento, Destinatarios: No se cederan los datos, salvo para elaborar contabilidad, Derechos de las personas interesadas: Acceder, rectificar y suprimir los datos, solicitar la portabilidad de los mismos, oponerse altratamiento y solicitar la limitación de éste, Procedencia de los datos: El Propio interesado, Información Adicional: Puede consultarse la información adicional y detallada sobre protección de datos Aquí.

© 2026 Medimar Eiendom · · Juridisk merknad Privatliv Cookies Web kart

Design and CRM: Mediaelx

Send forespørsel WhatsApp