€970.000
€970.000
Göra en förfrågan Kontakta

Villa · Nybyggnad Alicante - Costa Blanca · Polop

€970.000
€970.000
Göra en förfrågan Kontakta

Egenskaper

Sovrum: 4
Badrum: 3
Byggd: 208m2
Tomt: 400m2
Slå samman: Ja
Solarium: Yes
Private Pool
Garden
Views: Sea
Near Schools
Double Bedrooms: 4
Number of Parking Spaces: 2
Nära träd
Games Room
Beach: 8000 Meters
Under-Build / Basement
Parking - Space
Location: Rural, Mountain, Urbanisation
Terrace: 160 Msq.
Laundry Room
Useable Build Space: 139 Msq.
Near Commercial Center
Förvaring / Trastero
Toalett: 1
Gated
Göra en förfrågan

Beskrivning

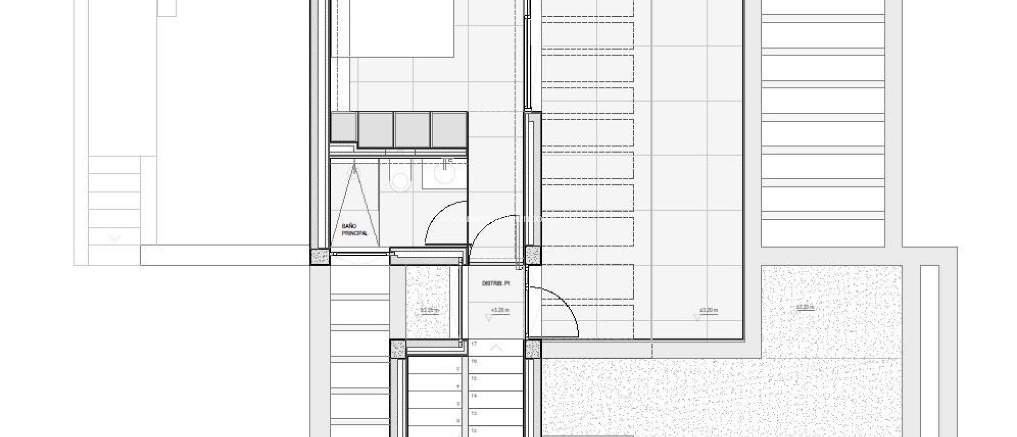
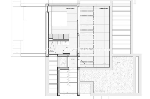
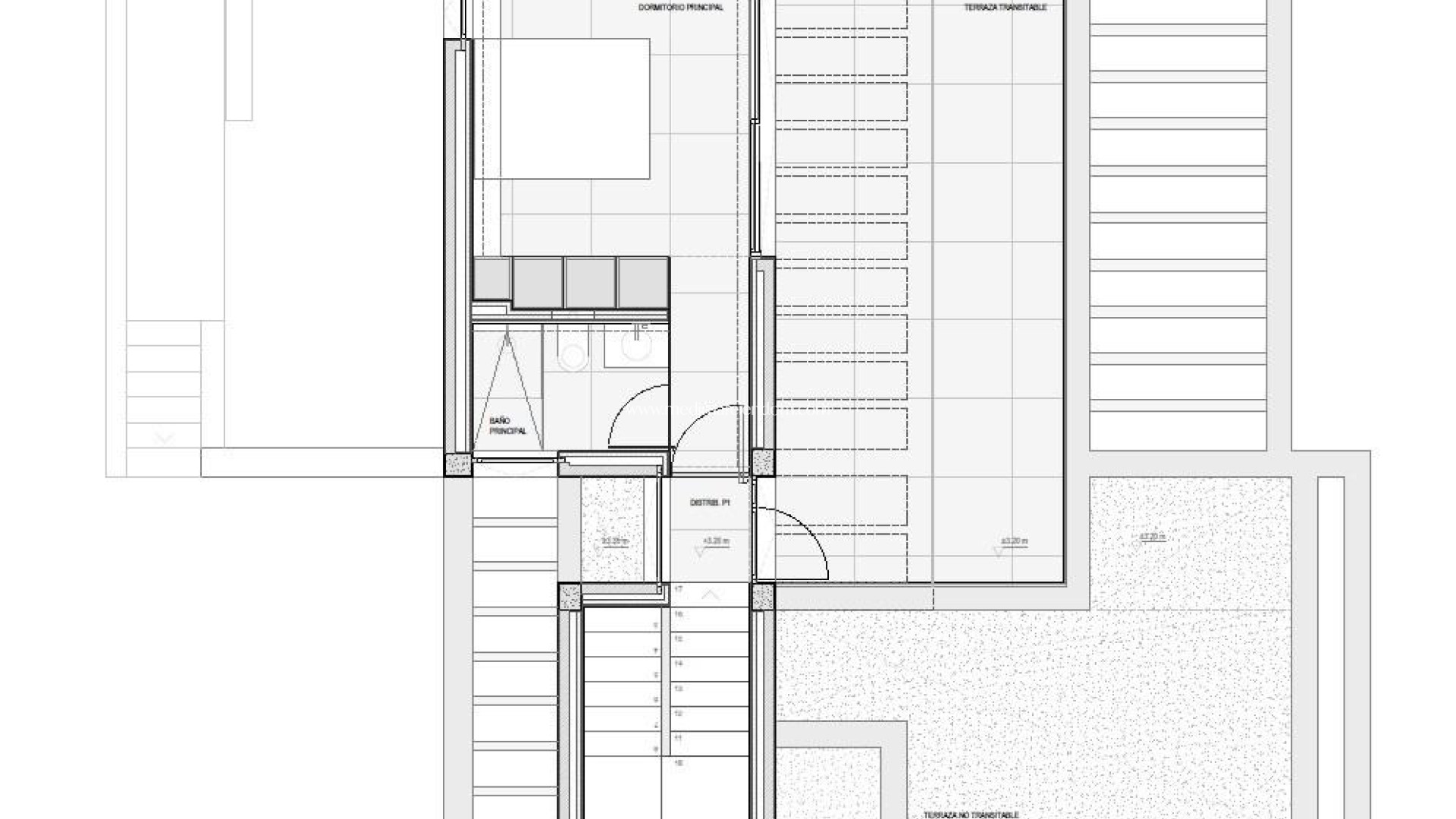
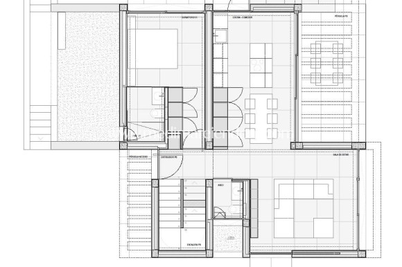
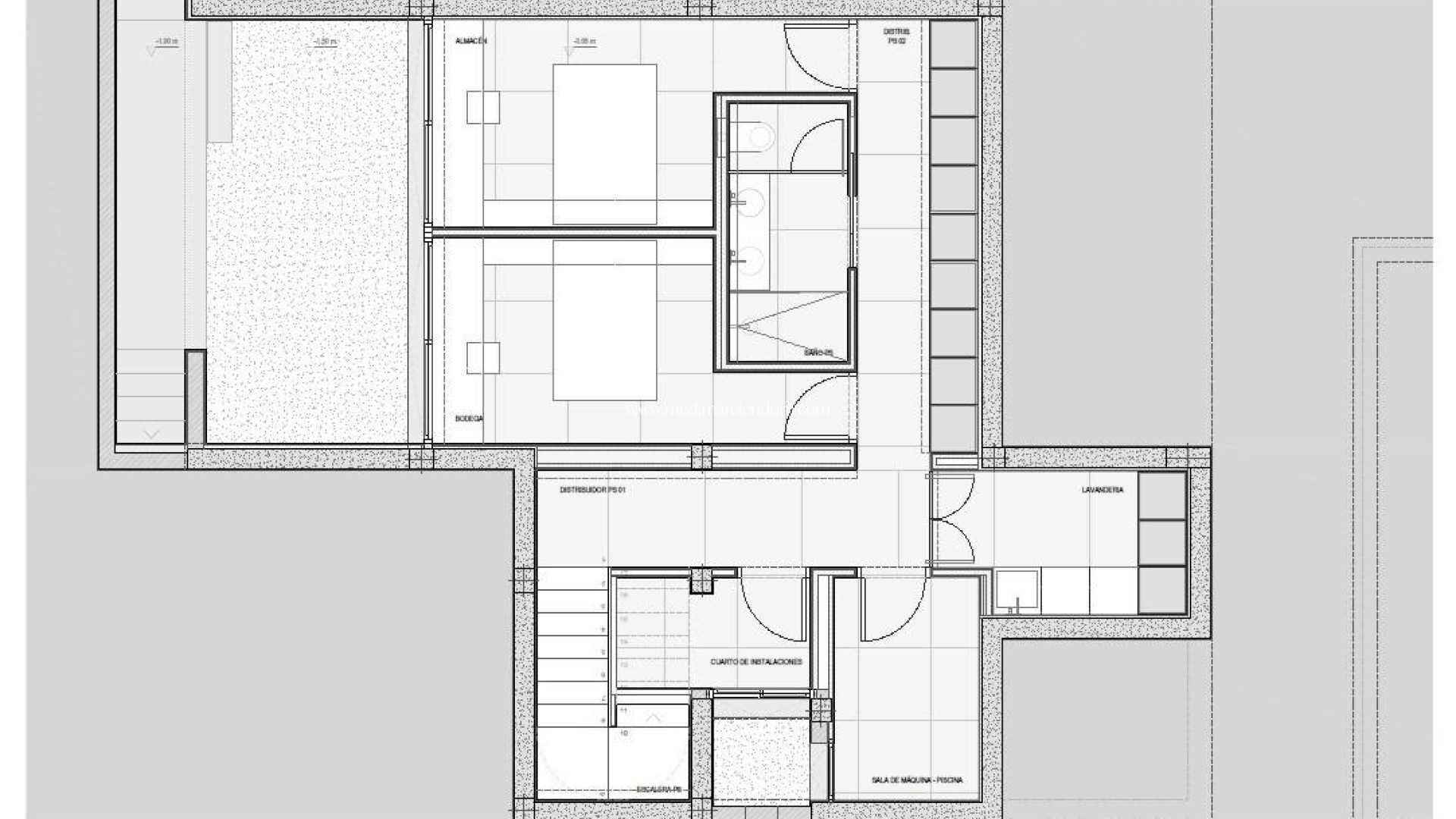
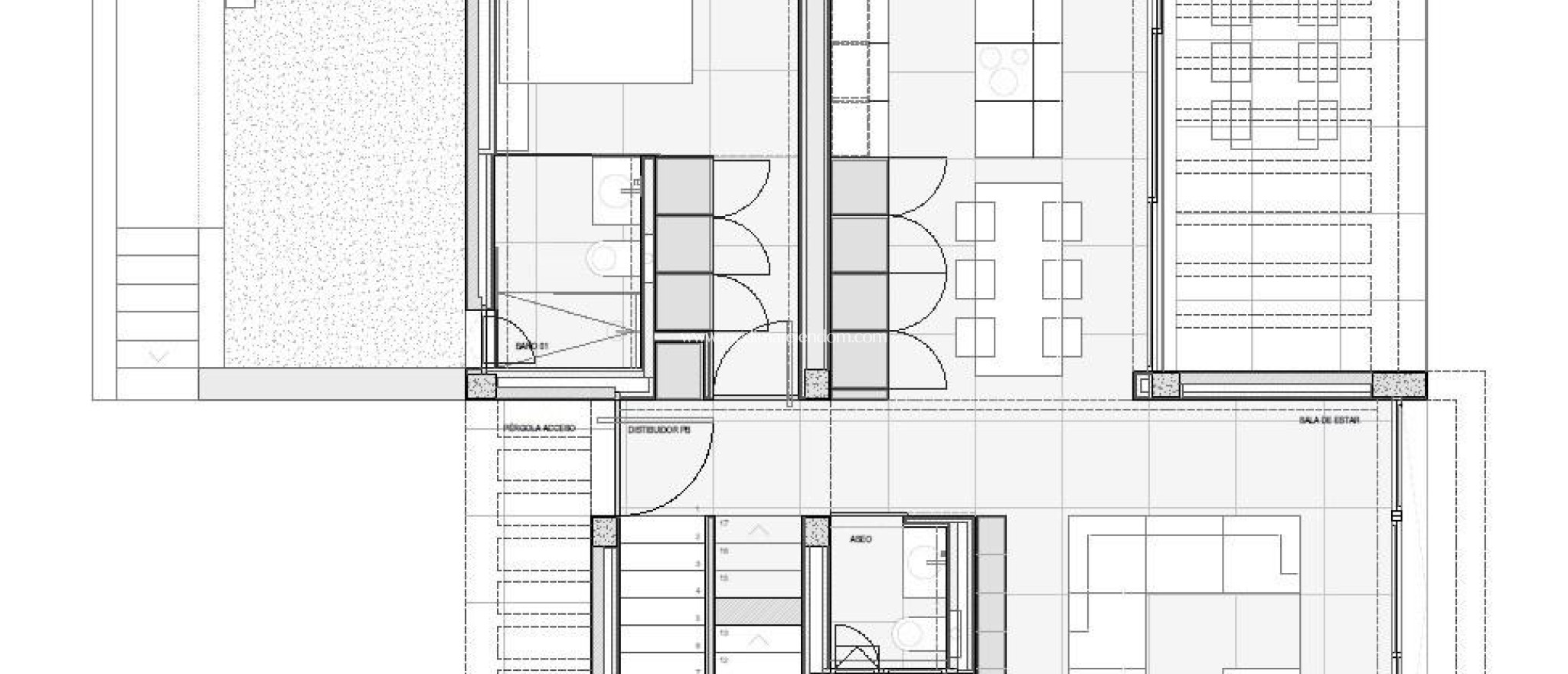
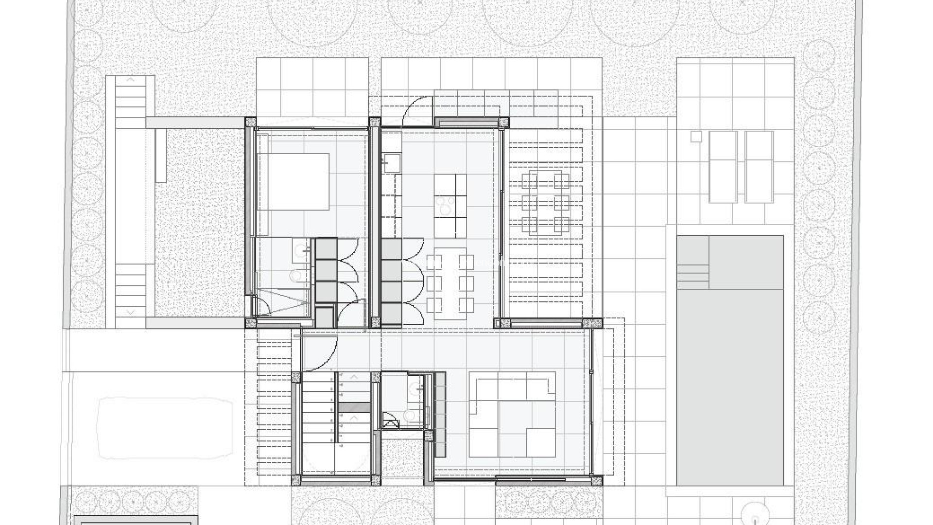
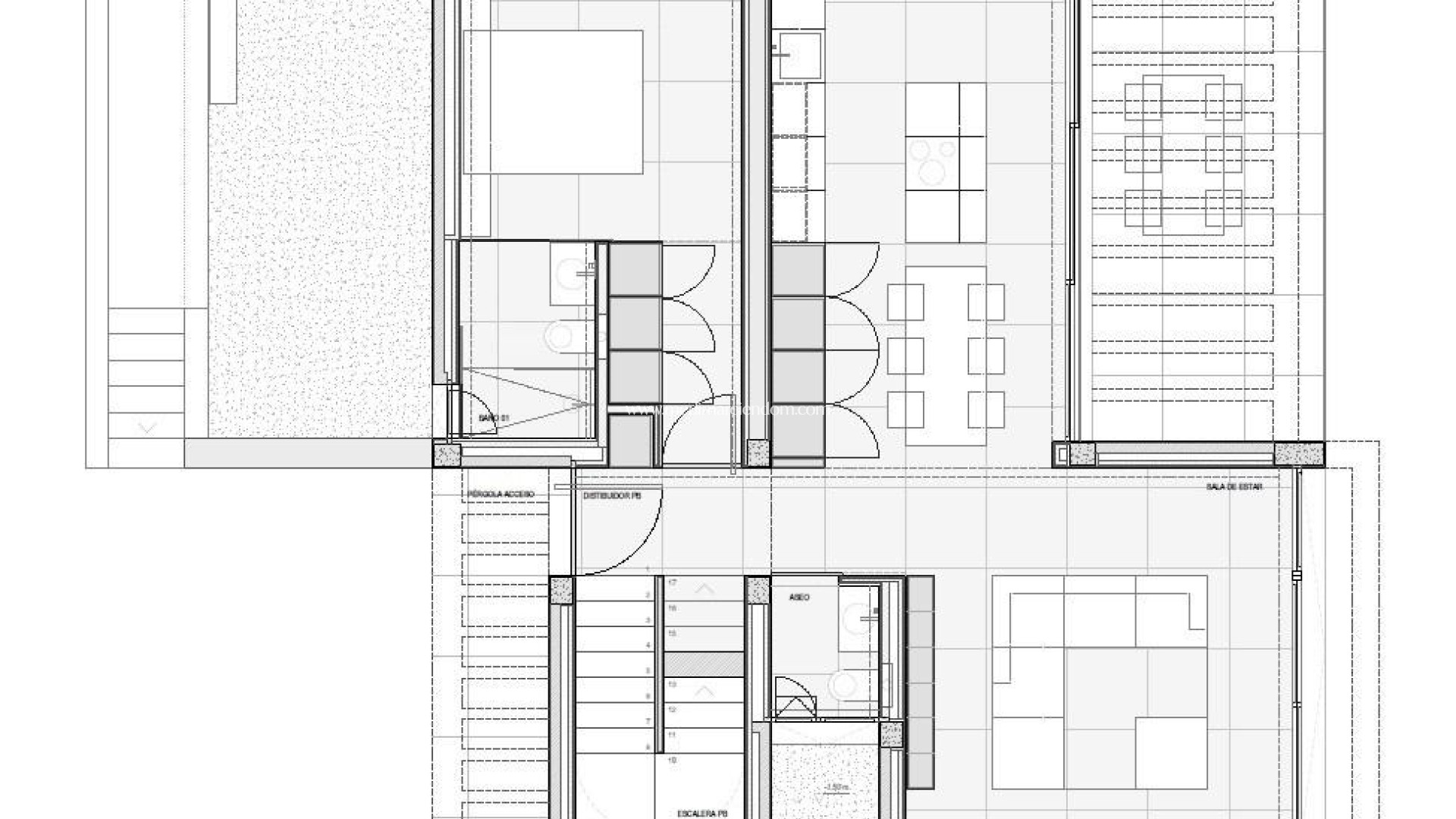
Nybyggd lyxvilla med havsutsikt i La Alberca Polop Modern design i en lugn bergsmiljö Denna exceptionella nybyggda villa ligger i La Alberca, ett lugnt bostadsområde i bergen i Polop. Fastigheten är omgiven av skog och natur och erbjuder panoramautsikt över Medelhavet, bergen och den historiska staden Polop. Villan är designad med vertikal arkitektonisk elegans och kombinerar avskildhet, funktionalitet och ett smidigt inomhus- och utomhusliv. Polop är en charmig by på Costa Blanca som är känd för sin traditionella atmosfär och naturskönhet. Villan ligger nära alla tjänster i La Nucia, inklusive butiker, restauranger, idrottsanläggningar och skolor. Stränderna och livliga kuststäder som Benidorm och Altea ligger bara 15 minuter bort. Genomtänkt planlösning på tre våningar På bottenvåningen välkomnas du av en entréhall med inbyggd garderob och gästtoalett. På denna våning finns ett sovrum med eget badrum och fönster som kan öppnas från golv till tak och vetter mot en privat sidoterrass. Det ljusa vardagsrummet och matsalen i öppen planlösning ansluter direkt till en pergola-täckt terrass och den privata saltvattenpoolen, vilket skapar en harmonisk livsstil inomhus och utomhus. Översta våningen är helt dedikerad till mastersviten. Denna privata våning erbjuder ett sovrum med eget badrum och tillgång till en spektakulär 40 m2 stor terrass med fantastisk panoramautsikt över havet och bergen, vilket garanterar maximal avskildhet och komfort. Källarvåningen har ytterligare två sovrum med stora fönster som vetter mot en vackert utformad nedsänkt innergård som fyller rummet med naturligt ljus. Ett delat badrum, ett fullt utrustat tvättrum med vitvaror från Haier och två rymliga teknik- och förrådsrum kompletterar denna våning. Premiumfunktioner och energieffektivitet Villan har högkvalitativa ytbehandlingar och avancerade system, såsom: Central köksö med integrerade BOSCH-vitvaror Bänkskivor i natursten inomhus och utomhus Panoramafönster med solskyddat förstärkt glas Mitsubishi aerotermiskt luftkonditioneringssystem Förinstallation för golvvärme Energieffektivitetsklass A Förinstallation för smart hem-system Privat parkering för två fordon Den anlagda medelhavsträdgården med automatisk bevattning och en elegant innergård på nedre plan ökar avskildheten och avkopplingen. Taket är förberett för installation av solpaneler. Utmärkt läge och avstånd Polop centrum 2 km La Nucia 4 km Benidorms stränder 12 km Altea 10 km Villaitana Golf 14 km Alicante flygplats 65 km Upptäck din privata tillflyktsort i Polop Denna moderna villa med havsutsikt erbjuder design, avskildhet och komfort i en av de mest attraktiva naturmiljöerna på Costa Blanca. Kontakta oss idag för att boka en privat visning och säkra ditt nya hem i La Alberca Polop.

Plats

Kontakta oss Göra en förfrågan

Responsable del tratamiento: Mediaterrean y Mar Eindom, SL, Finalidad del tratamiento: Gestión y control de los servicios ofrecidos a través de la página Web de Servicios inmobiliarios, Envío de información a traves de newsletter y otros, Legitimación: Por consentimiento, Destinatarios: No se cederan los datos, salvo para elaborar contabilidad, Derechos de las personas interesadas: Acceder, rectificar y suprimir los datos, solicitar la portabilidad de los mismos, oponerse altratamiento y solicitar la limitación de éste, Procedencia de los datos: El Propio interesado, Información Adicional: Puede consultarse la información adicional y detallada sobre protección de datos Aquí.

© 2026 Medimar Eiendom · All rights reserved · Juridisk anteckning Privatliv Cookies Web karta

Design and CRM: Mediaelx

Göra en förfrågan WhatsApp