Виллы · Новостройки Alicante - Costa Blanca · Polop

Характеристики

Дополнительные возможности

спальни: 4
В ванных комнатах: 3
построен: 208m2
участок: 400m2
Бассейн: да
Under-Build / Basement
Parking - Space
Location: Rural, Mountain, Urbanisation
Terrace: 160 Msq.
Laundry Room
Useable Build Space: 139 Msq.
Near Commercial Center
Хранение / Трастеро
Туалет: 1
Gated
Solarium: Yes
Private Pool
Garden
Views: Sea
Near Schools
Double Bedrooms: 4
Number of Parking Spaces: 2
Рядом с деревьями
Games Room
Beach: 8000 Meters
Делать запрос

Описание

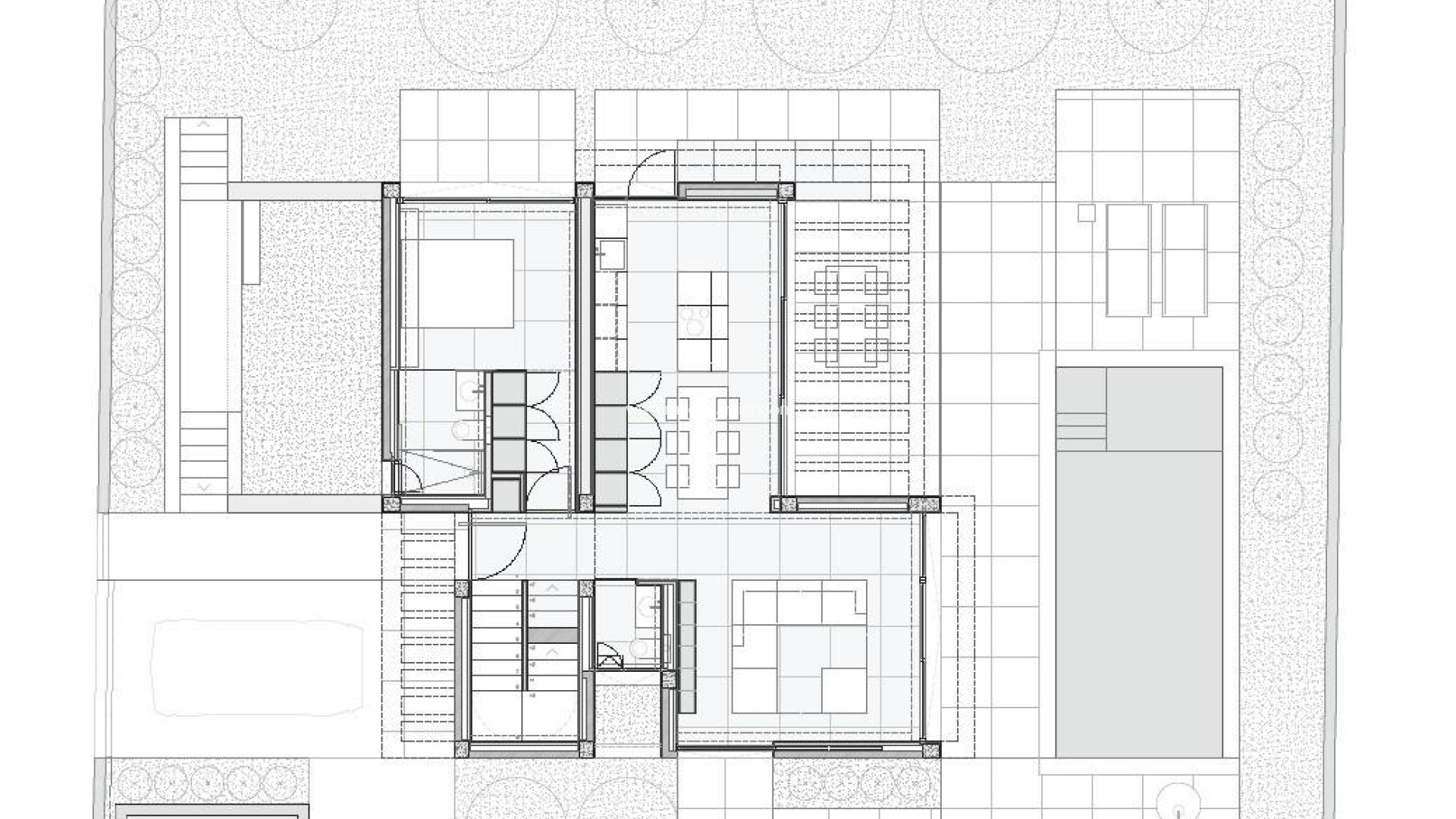
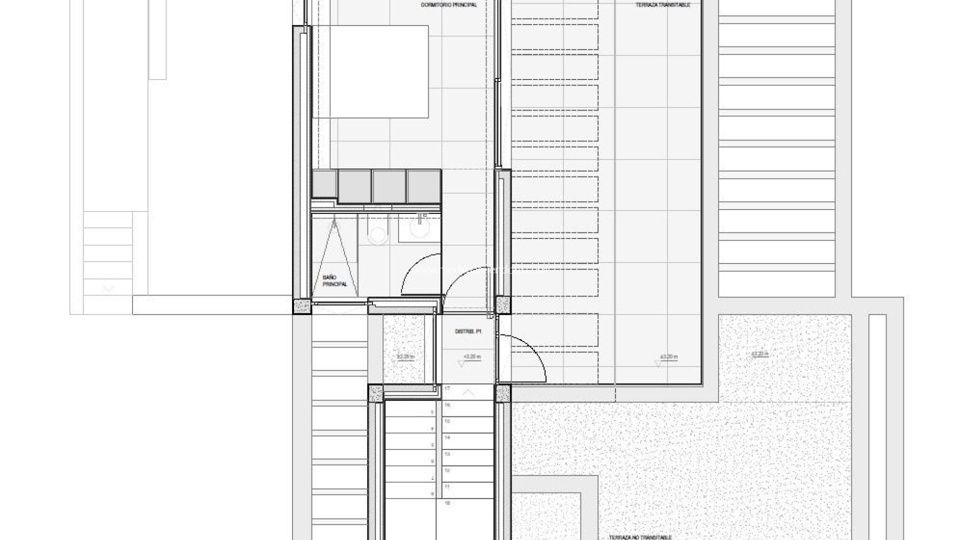
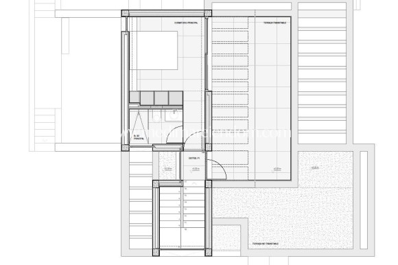
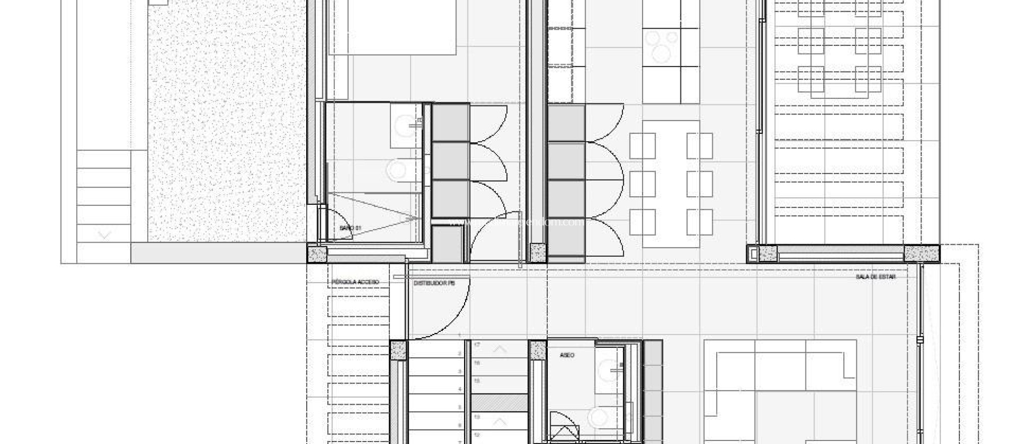
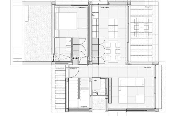
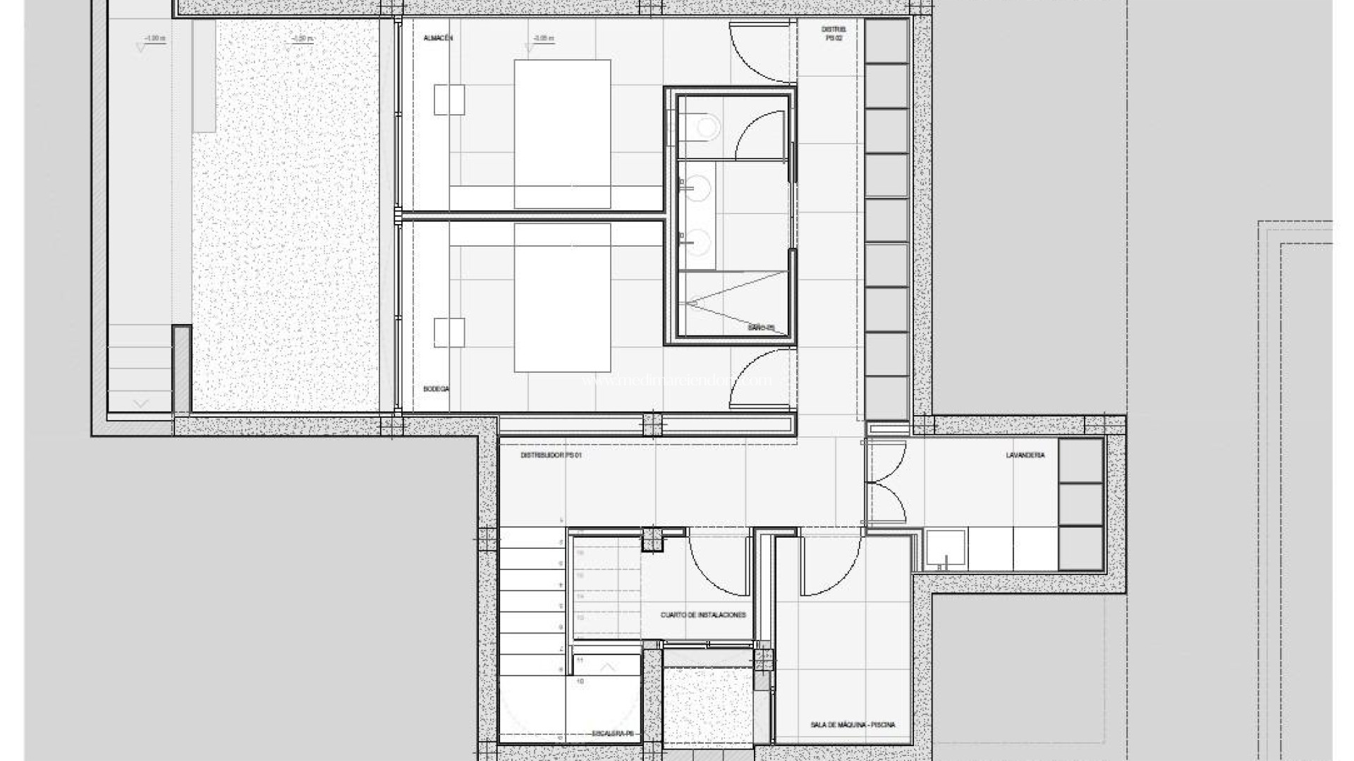
Новая роскошная вилла с видом на море в Ла Альберка Полоп Современный дизайн в тихом горном окружении Эта исключительная новая вилла расположена в Ла Альберка, тихом жилом районе в горах Полопа. Окруженная лесом и природой, вилла предлагает панорамный вид на Средиземное море, горы и исторический город Полоп. Вилла, спроектированная с вертикальной архитектурной элегантностью, сочетает в себе уединение, функциональность и плавный переход между внутренним и внешним пространством. Полоп — очаровательная деревня на побережье Коста-Бланка, известная своей традиционной атмосферой и природной красотой. Вилла находится недалеко от всех удобств Ла-Нучи, включая магазины, рестораны, спортивные центры и школы. Пляжи и оживленные прибрежные города, такие как Бенидорм и Альтеа, находятся всего в 15 минутах езды. Тщательно продуманная планировка на трех уровнях На первом этаже вас встречает прихожая со встроенным шкафом и гостевым туалетом. На этом уровне находится одна спальня с ванной комнатой и подъемными окнами от пола до потолка, выходящими на частную боковую террасу. Светлая открытая гостиная и столовая напрямую соединяются с террасой, покрытой перголой, и частным бассейном с морской водой, создавая гармоничный стиль жизни внутри и снаружи дома. Верхний этаж предназначен исключительно для главной спальни. Этот частный уровень предлагает спальню с ванной комнатой и выходом на впечатляющую террасу площадью 40 м2 с захватывающим панорамным видом на море и горы, обеспечивая максимальную конфиденциальность и комфорт. На цокольном этаже расположены две дополнительные спальни с большими окнами, выходящими на красиво оформленный заглубленный двор, который наполняет пространство естественным светом. Общая ванная комната, полностью оборудованная прачечная с техникой Haier и две просторные технические и кладовые комнаты дополняют этот этаж. Премиум-оснащение и энергоэффективность Вилла включает в себя высококачественную отделку и передовые системы, такие как: Центральная кухня с островком и встроенной бытовой техникой BOSCH Столешницы из натурального камня внутри и снаружи Панорамные окна с солнцезащитным армированным стеклом Аэротермальная система кондиционирования Mitsubishi Предварительная установка подогрева полов Класс энергоэффективности A Предварительная установка системы «умный дом» Частная парковка на два автомобиля Ландшафтный средиземноморский сад с автоматической системой полива и элегантный внутренний двор на нижнем уровне создают атмосферу уединения и релаксации. Крыша подготовлена для установки солнечных панелей. Отличное расположение и расстояния Центр Полопа 2 км Ла-Нусия 4 км Пляжи Бенидорма 12 км Альтеа 10 км Villaitana Golf 14 км Аэропорт Аликанте 65 км Откройте для себя свой частный рай в Полопе Эта современная вилла с видом на море предлагает дизайн, уединение и комфорт в одном из самых привлекательных природных уголков Коста-Бланки. Свяжитесь с нами сегодня, чтобы договориться о частном просмотре и обеспечить себе новый дом в Ла Альберка Полоп.

Место нахождения

Свяжитесь с нами Делать запрос

Responsable del tratamiento: Mediaterrean y Mar Eindom, SL, Finalidad del tratamiento: Gestión y control de los servicios ofrecidos a través de la página Web de Servicios inmobiliarios, Envío de información a traves de newsletter y otros, Legitimación: Por consentimiento, Destinatarios: No se cederan los datos, salvo para elaborar contabilidad, Derechos de las personas interesadas: Acceder, rectificar y suprimir los datos, solicitar la portabilidad de los mismos, oponerse altratamiento y solicitar la limitación de éste, Procedencia de los datos: El Propio interesado, Información Adicional: Puede consultarse la información adicional y detallada sobre protección de datos Aquí.
Делать запрос WhatsApp