€970.000
€970.000
Eine Anfrage machen Kontakt

Villa · Neubauten Alicante - Costa Blanca · Polop

€970.000
€970.000
Eine Anfrage machen Kontakt

Charakteristik

Zusatzfunktionen

Schlafzimmer: 4
Das Badezimmer: 3
Gebaut: 208m2
Grundstück: 400m2
Schwimmbad: Ja
Laundry Room
Useable Build Space: 139 Msq.
Near Commercial Center
Lagerung / Trastero
Toilette: 1
Gated
Solarium: Yes
Private Pool
Garden
Views: Sea
Near Schools
Double Bedrooms: 4
Number of Parking Spaces: 2
In der Nähe von Bäumen
Games Room
Beach: 8000 Meters
Under-Build / Basement
Parking - Space
Location: Rural, Mountain, Urbanisation
Terrace: 160 Msq.
Eine Anfrage machen

Beschreibung

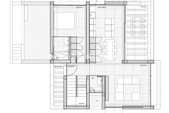
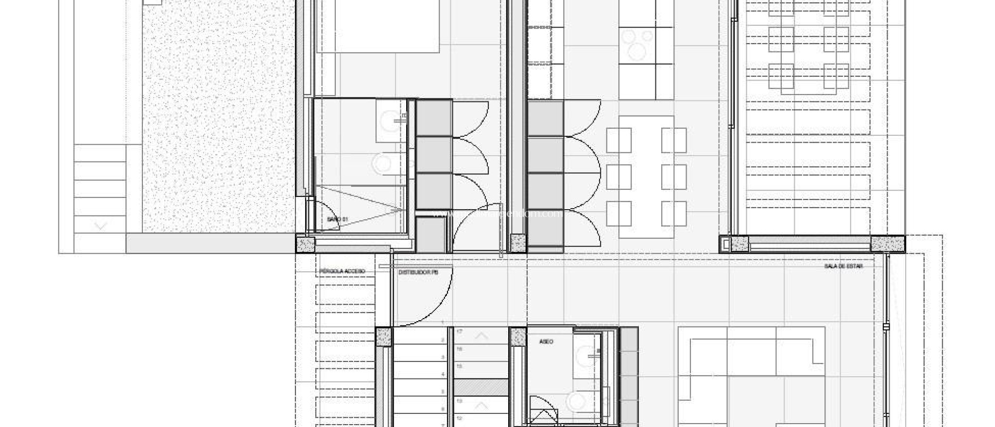
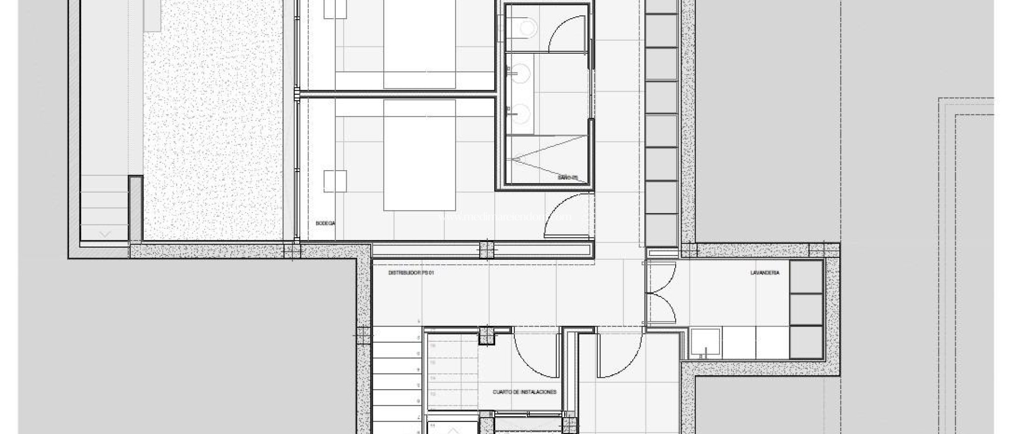
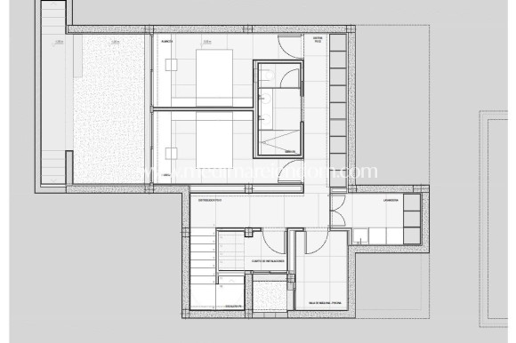
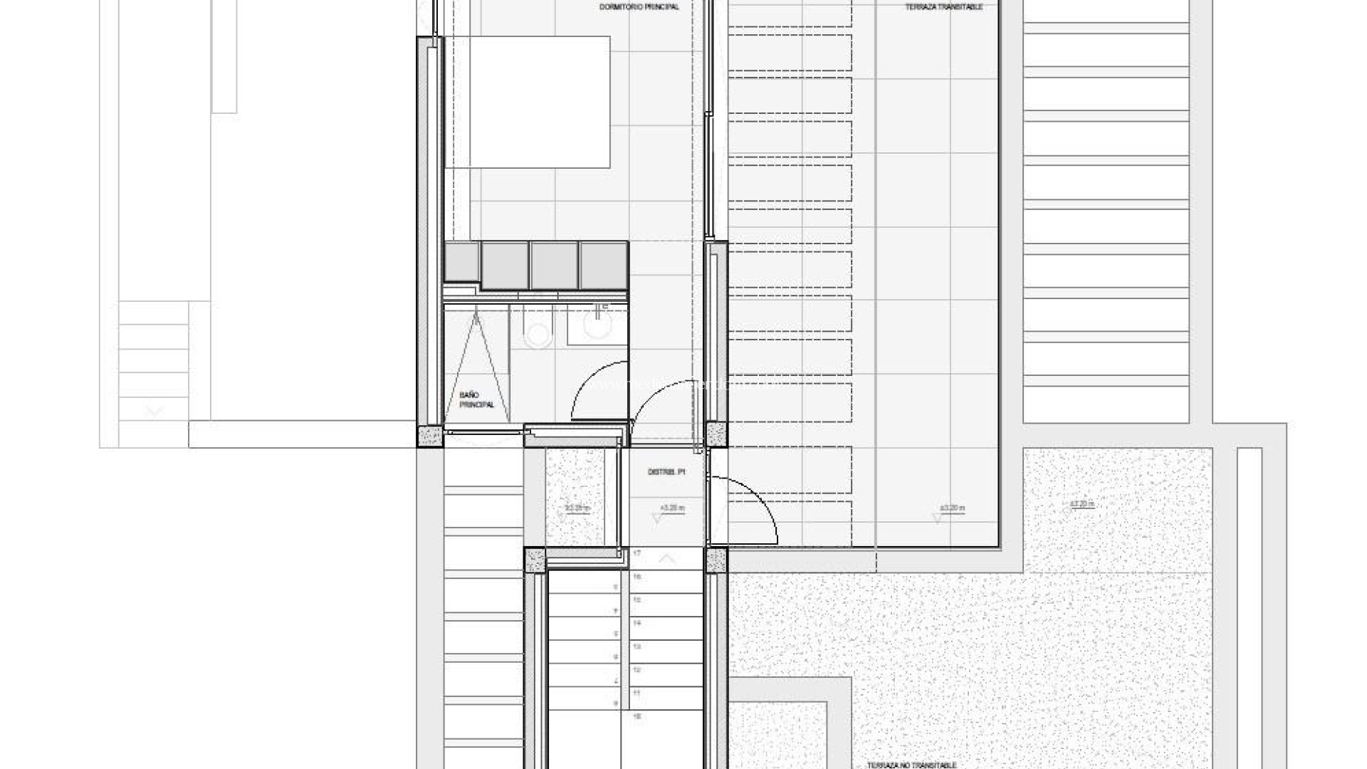
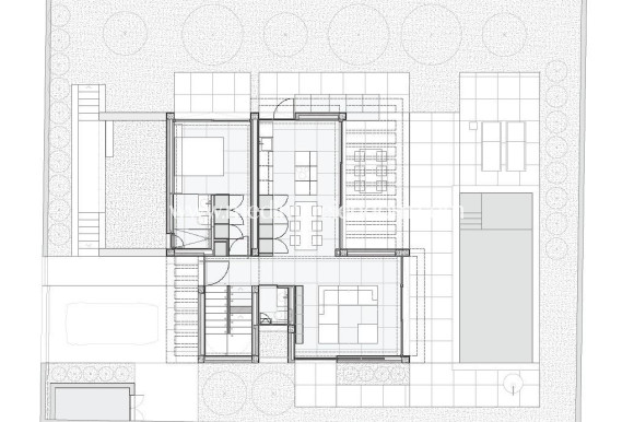
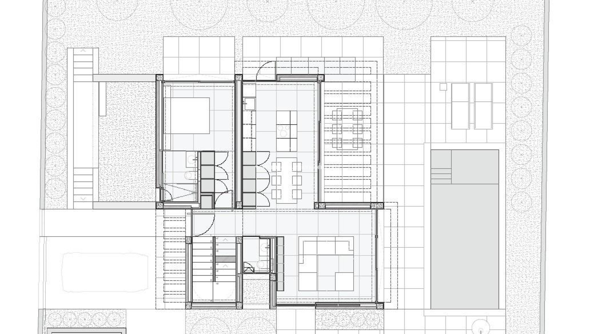
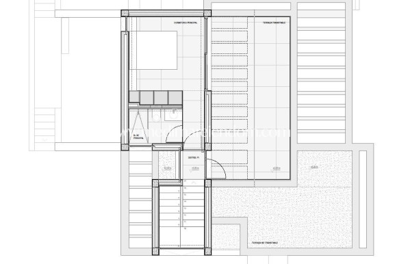
Neubau-Luxusvilla mit Meerblick in La Alberca Polop Modernes Design in ruhiger Berglandschaft Diese außergewöhnliche Neubauvilla befindet sich in La Alberca, einer ruhigen Wohngegend in den Bergen von Polop. Umgeben von Wald und Natur bietet das Anwesen einen Panoramablick auf das Mittelmeer, die Berge und die historische Stadt Polop. Die Villa wurde mit vertikaler architektonischer Eleganz entworfen und verbindet Privatsphäre, Funktionalität und nahtloses Wohnen im Innen- und Außenbereich. Polop ist ein charmantes Dorf an der Costa Blanca, das für seine traditionelle Atmosphäre und seine natürliche Schönheit bekannt ist. Die Villa liegt in der Nähe aller Dienstleistungen in La Nucia, darunter Geschäfte, Restaurants, Sportzentren und Schulen. Die Strände und lebhaften Küstenstädte wie Benidorm und Altea sind nur 15 Minuten entfernt. Durchdachte Aufteilung auf drei Ebenen Das Erdgeschoss empfängt Sie mit einer Eingangshalle mit Einbauschrank und Gästetoilette. Auf dieser Ebene befindet sich ein Schlafzimmer mit eigenem Bad und raumhohen, hochschiebbaren Fenstertüren, die auf eine private Seitenterrasse führen. Der helle, offene Wohn- und Essbereich ist direkt mit einer pergolaüberdachten Terrasse und dem privaten Salzwasserpool verbunden und schafft so einen harmonischen Lebensstil zwischen Innen- und Außenbereich. Die oberste Etage ist ausschließlich der Master-Suite vorbehalten. Diese private Etage bietet ein Schlafzimmer mit eigenem Bad und Zugang zu einer spektakulären 40 m² großen Terrasse mit atemberaubendem Panoramablick auf das Meer und die Berge, wodurch maximale Privatsphäre und Komfort gewährleistet sind. Im Untergeschoss befinden sich zwei weitere Schlafzimmer mit großen Fenstern, die auf einen wunderschön gestalteten versunkenen Innenhof blicken, der den Raum mit natürlichem Licht erfüllt. Ein gemeinsames Badezimmer, eine voll ausgestattete Waschküche mit Haier-Geräten und zwei geräumige Technik- und Abstellräume vervollständigen diese Etage. Hochwertige Ausstattung und Energieeffizienz Die Villa verfügt über eine hochwertige Ausstattung und fortschrittliche Systeme, wie zum Beispiel: Zentrale Inselküche mit integrierten BOSCH-Geräten Naturstein-Arbeitsplatten im Innen- und Außenbereich Panoramafenster mit sonnengeschütztem, verstärktem Glas Aerothermisches Klimasystem von Mitsubishi Vorinstallation für Fußbodenheizung Energieeffizienzklasse A Vorinstallation für Smart-Home-System Privater Parkplatz für zwei Fahrzeuge Der mediterrane Landschaftsgarten mit automatischer Bewässerung und ein eleganter Innenhof auf der unteren Ebene sorgen für Privatsphäre und Entspannung. Das Dach ist für die Installation von Sonnenkollektoren vorbereitet. Ausgezeichnete Lage und Entfernungen Zentrum von Polop 2 km La Nucia 4 km Strände von Benidorm 12 km Altea 10 km Villaitana Golf 14 km Flughafen Alicante 65 km Entdecken Sie Ihren privaten Rückzugsort in Polop Diese moderne Villa mit Meerblick bietet Design, Privatsphäre und Komfort in einer der attraktivsten Naturlandschaften der Costa Blanca. Kontaktieren Sie uns noch heute, um eine private Besichtigung zu vereinbaren und sich Ihr neues Zuhause in La Alberca Polop zu sichern.

Ort

Kontaktiere uns Eine Anfrage machen

Responsable del tratamiento: Mediaterrean y Mar Eindom, SL, Finalidad del tratamiento: Gestión y control de los servicios ofrecidos a través de la página Web de Servicios inmobiliarios, Envío de información a traves de newsletter y otros, Legitimación: Por consentimiento, Destinatarios: No se cederan los datos, salvo para elaborar contabilidad, Derechos de las personas interesadas: Acceder, rectificar y suprimir los datos, solicitar la portabilidad de los mismos, oponerse altratamiento y solicitar la limitación de éste, Procedencia de los datos: El Propio interesado, Información Adicional: Puede consultarse la información adicional y detallada sobre protección de datos Aquí.

© 2026 Medimar Eiendom · All rights reserved · Rechtlicher Hinweis Privatsphäre Cookies Web-Karte

Design and CRM: Mediaelx

Eine Anfrage machen WhatsApp