EINBÝLISHÚS · Nýbygging Alicante - Costa Blanca · Polop

Einkenni

Önnur lögun

Svefnherbergi: 4
Baðherbergi: 3
Byggir: 208m2
Söguþráður: 400m2
Pool:
Under-Build / Basement
Parking - Space
Location: Rural, Mountain, Urbanisation
Terrace: 160 Msq.
Laundry Room
Useable Build Space: 139 Msq.
Near Commercial Center
Geymsla / Geymsla
Salerni: 1
Gated
Solarium: Yes
Private Pool
Garden
Views: Sea
Near Schools
Double Bedrooms: 4
Number of Parking Spaces: 2
Lähellä puita
Games Room
Beach: 8000 Meters
Gera fyrirspurn

Lýsing

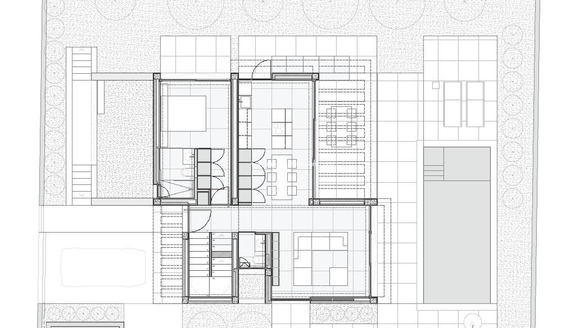
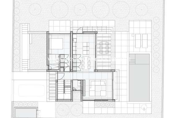
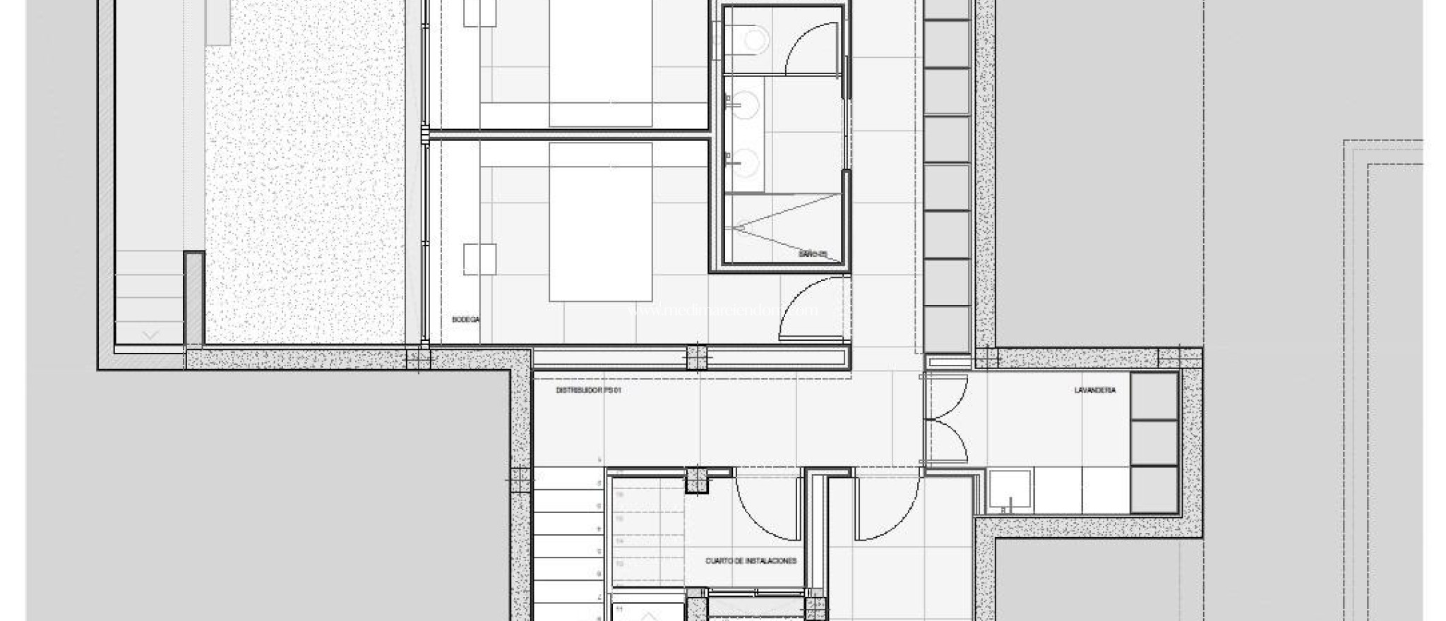
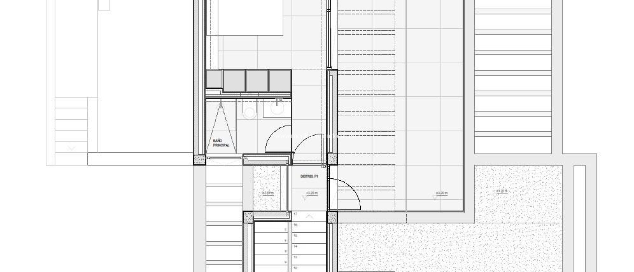
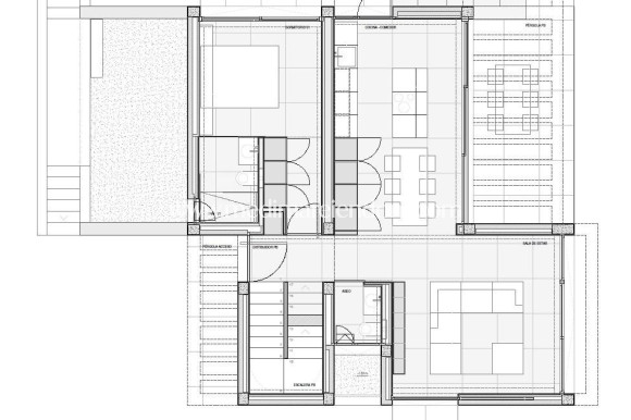
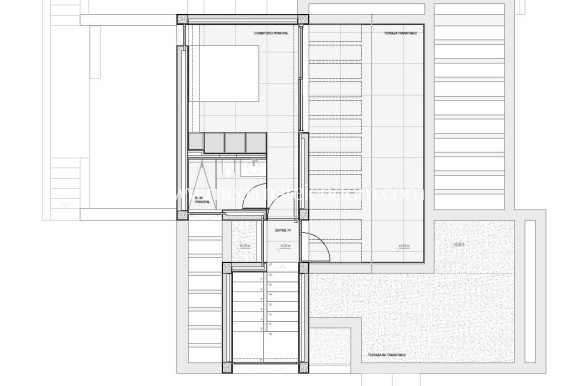
Nýbyggð lúxusvilla með sjávarútsýni í La Alberca Polop. Nútímaleg hönnun í friðsælu fjallaumhverfi. Þessi einstaka nýbyggða villa er staðsett í La Alberca, rólegu íbúðahverfi í fjöllum Polop. Umkringd skógi og náttúru býður eignin upp á útsýni yfir Miðjarðarhafið, fjöllin og sögulega bæinn Polop. Villan er hönnuð með lóðréttri byggingarlistarlegri glæsileika og sameinar næði, virkni og óaðfinnanlega inniveru og útiveru. Polop er heillandi þorp á Costa Blanca, þekkt fyrir hefðbundið andrúmsloft og náttúrufegurð. Villan er nálægt allri þjónustu í La Nucia, þar á meðal verslunum, veitingastöðum, íþróttamiðstöðvum og skólum. Strendurnar og líflegir strandbæir eins og Benidorm og Altea eru aðeins í 15 mínútna fjarlægð. Hugvitsamlega hönnuð dreifing á þremur hæðum. Aðalhæðin býður þig velkominn með forstofu með innbyggðum fataskáp og gestasalerni. Þessi hæð inniheldur eitt svefnherbergi með sérbaðherbergi og gólf-til-lofts glugga sem opnast út á einkaverönd. Björt opin stofa og borðstofa tengist beint við pergola-þakið verönd og einkasundlaug með saltvatni, sem skapar samræmdan inniveru og útiveru. Efsta hæðin er eingöngu tileinkuð hjónaherberginu. Þessi einkahæð býður upp á svefnherbergi með sérbaðherbergi og aðgang að stórkostlegri 40 fermetra verönd og stórkostlegu útsýni yfir sjóinn og fjöllin, sem tryggir hámarks næði og þægindi. Kjallarahæðin er með tveimur viðbótar svefnherbergjum með stórum gluggum sem snúa að fallega hönnuðum, niðursokknum garði sem fyllir rýmið af náttúrulegu ljósi. Sameiginlegt baðherbergi, fullbúið þvottahús með Haier tækjum og tvö rúmgóð tækni- og geymslurými fullkomna þessa hæð. Fyrsta flokks eiginleikar og orkunýting Villan er með hágæða frágangi og háþróuðum kerfum, svo sem: Miðlægri eldhúseyju með innbyggðum BOSCH tækjum Borðplötur úr náttúrusteini bæði inni og úti Víðáttumiklum gluggum með sólarvörn, styrktum gleri Mitsubishi aerothermal loftræstikerfi Fyrirfram uppsetning á gólfhita Orkunýtingarflokkur A Fyrirfram uppsetning á snjallheimiliskerfi Einkabílastæði fyrir tvö ökutæki Landslagaður Miðjarðarhafsgarður með sjálfvirkri áveitu og glæsilegur neðri hæð auka næði og slökun. Þakhæðin er undirbúin fyrir uppsetningu sólarsella. Frábær staðsetning og fjarlægðir: Miðbær Polop 2 km, La Nucia 4 km, strendur Benidorm 12 km, Altea 10 km, Villaitana Golf 14 km, Alicante flugvöllur 65 km. Uppgötvaðu þinn eigin einkastað í Polop. Þessi nútímalega villa með sjávarútsýni býður upp á hönnun, næði og þægindi í einu af fallegustu náttúruumhverfum Costa Blanca. Hafðu samband við okkur í dag til að bóka einkaskoðun og tryggja þér nýja heimilið þitt í La Alberca Polop.

Staðsetning

Hafðu samband við okkur Gera fyrirspurn

Responsable del tratamiento: Mediaterrean y Mar Eindom, SL, Finalidad del tratamiento: Gestión y control de los servicios ofrecidos a través de la página Web de Servicios inmobiliarios, Envío de información a traves de newsletter y otros, Legitimación: Por consentimiento, Destinatarios: No se cederan los datos, salvo para elaborar contabilidad, Derechos de las personas interesadas: Acceder, rectificar y suprimir los datos, solicitar la portabilidad de los mismos, oponerse altratamiento y solicitar la limitación de éste, Procedencia de los datos: El Propio interesado, Información Adicional: Puede consultarse la información adicional y detallada sobre protección de datos Aquí.

© 2026 Medimar Eiendom · All rights reserved · Legal athugið Privacy Cookies Web Map

Design and CRM: Mediaelx

Gera fyrirspurn WhatsApp