€970.000
€970.000
Göra en förfrågan Kontakta

Villa · Nybyggnad Alicante - Costa Blanca · Polop

€970.000
€970.000
Göra en förfrågan Kontakta

Egenskaper

Sovrum: 4
Badrum: 4
Byggd: 200m2
Tomt: 400m2
Slå samman: Ja
Under-Build / Basement
Parking - Space
Key Ready
Användbar byggyta: 100 Msq.
Terrace: 66 Msq.
Location: Rural, Mountain, Urbanisation
Laundry Room
Near Commercial Center
Förvaring / Trastero
Gated
Solarium: Yes
Private Pool
Garden
Views: Sea
Near Schools
Double Bedrooms: 4
Number of Parking Spaces: 2
Nära träd
Games Room
Beach: 8000 Meters
Göra en förfrågan

Beskrivning

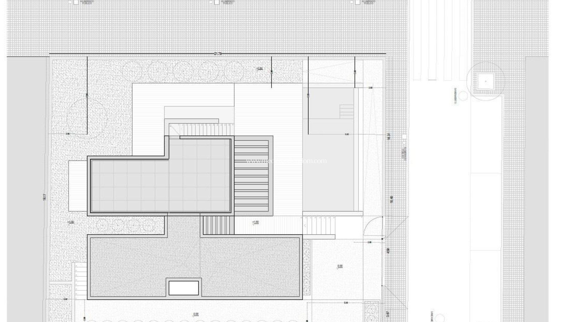
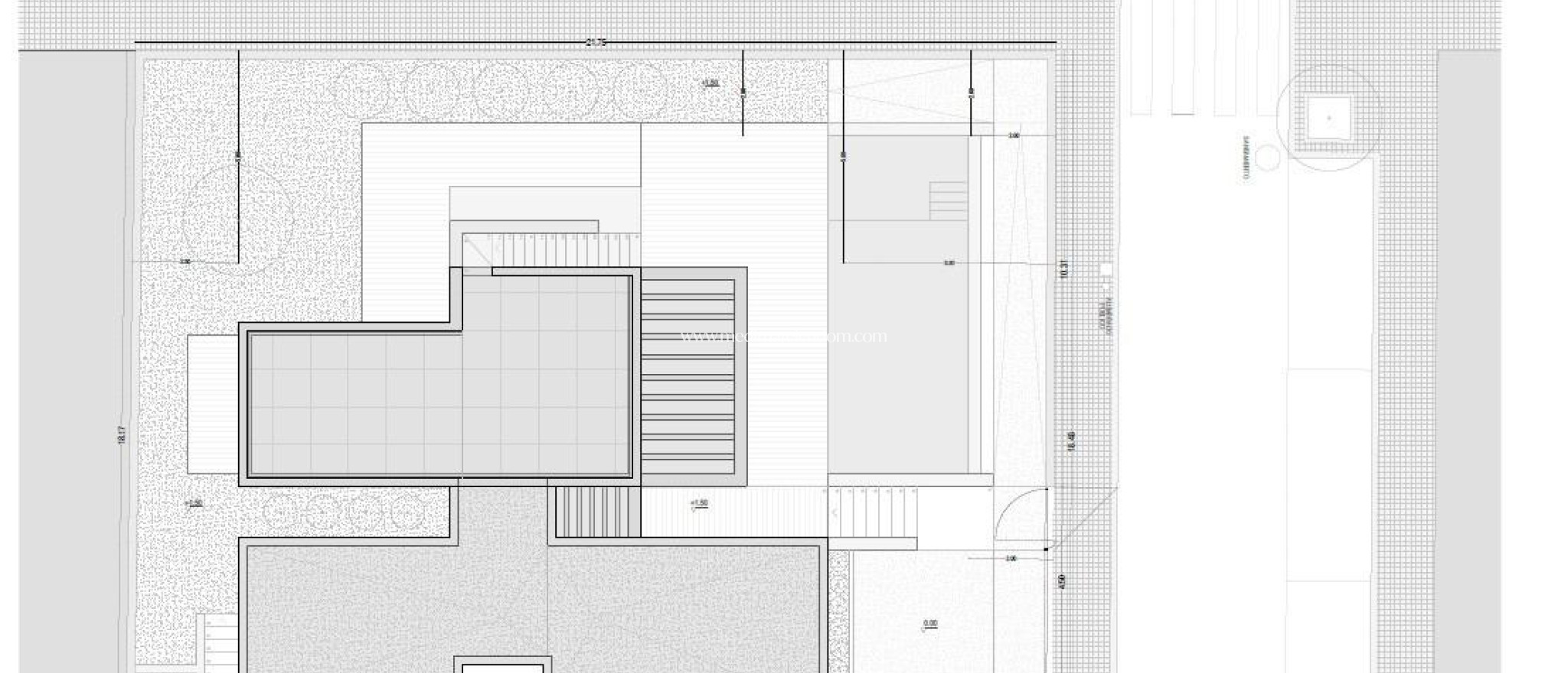
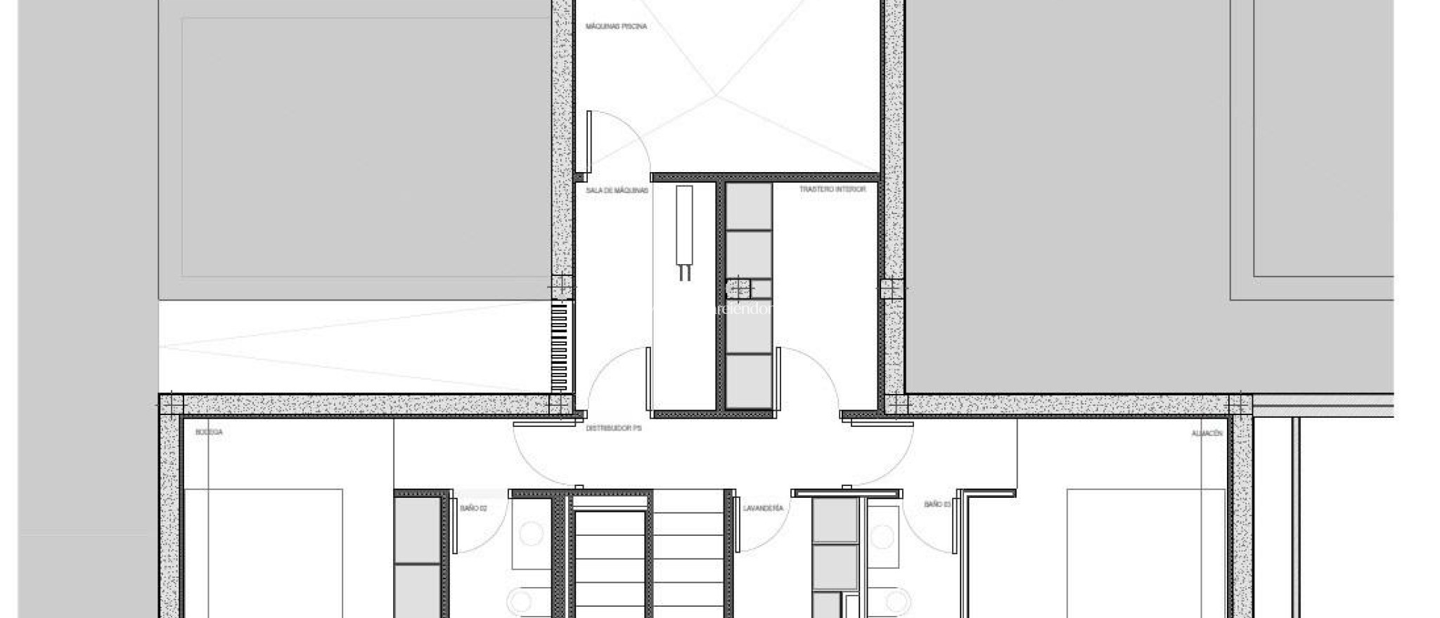
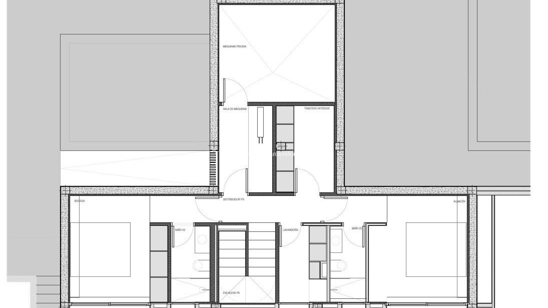
Nybyggd villa med havsutsikt i La Alberca Polop, redo att flytta in Lyxig modern villa i naturskön bergsmiljö Denna moderna villa är redo att flytta in och ligger i La Alberca, ett lugnt bostadsområde i Polop, omgivet av skog och berg. Fastigheten ligger på en höjd och har panoramautsikt över Medelhavet, bergen och den historiska stadskärnan i Polop. Villan erbjuder avskildhet, lugn och utmärkta förbindelser till kusten och närliggande städer. Polop är en charmig by i regionen Marina Baixa på Costa Blanca, känd för sin traditionella karaktär och natursköna omgivning. Fastigheten ligger nära alla tjänster i La Nucia, inklusive butiker, restauranger, idrottsanläggningar och skolor, medan stränderna och de livliga kuststäderna ligger bara en kort bilresa bort. Rymlig planlösning över huvudvåningen, källaren och solariet Villan är fördelad över en bottenvåning, källare och takterrass, vilket ger generöst med boyta och flexibilitet. På bottenvåningen leder en välkomnande entréhall med inbyggd garderob till två sovrum med egna badrum, inklusive en mastersvit med fönsterdörrar som kan öppnas och vetter mot en fransk balkong och terrass. Det öppna vardagsrummet och matplatsen ansluter smidigt till en täckt pergolaterrass och en privat saltvattenpool. Källarvåningen har ytterligare två sovrum med egna badrum och stora fönster, ett flexibelt lekrum eller biorum med vatten- och elanslutningar för en bar, ett fullt utrustat tvättrum med Haier-vitvaror och två tekniska förrådsrum. Solariet på taket erbjuder ett stort utomhusutrymme med panoramautsikt över havet och är förberett för framtida installation av solpaneler. Ett utekök, flera förvaringsskåp och en medelhavsinspirerad trädgård med automatisk bevattning kompletterar exteriören. Högklassiga funktioner och energieffektivitet Denna villa utmärker sig för sina förstklassiga ytbehandlingar och avancerade installationer, inklusive: Central köksö med integrerade BOSCH-vitvaror Bänkskivor i natursten inomhus och utomhus Förinstallation för golvvärme Mitsubishi aerotermiskt luftkonditioneringssystem Energieffektivitetsklass A Förinstallation för smarta hemsystem Saltvattenpool med valfri uppvärmning Privat parkering för två fordon Stora fönster med solskyddsglas maximerar det naturliga ljuset samtidigt som de garanterar komfort och säkerhet. Utmärkt läge och avstånd Polop centrum 2 km La Nucia 4 km Benidorm 12 km Altea 10 km Stränder 10 km Villaitana Golf 14 km Alicante flygplats 65 km Säkra ditt drömhus i Polop Denna exceptionella nyckelfärdiga villa kombinerar avskildhet, design och panoramautsikt i ett av de mest attraktiva inlandsområdena på Costa Blanca. Kontakta oss idag för att boka en privat visning och göra denna lyxvilla i La Alberca Polop till ditt nya hem.

Plats

Kontakta oss Göra en förfrågan

Responsable del tratamiento: Mediaterrean y Mar Eindom, SL, Finalidad del tratamiento: Gestión y control de los servicios ofrecidos a través de la página Web de Servicios inmobiliarios, Envío de información a traves de newsletter y otros, Legitimación: Por consentimiento, Destinatarios: No se cederan los datos, salvo para elaborar contabilidad, Derechos de las personas interesadas: Acceder, rectificar y suprimir los datos, solicitar la portabilidad de los mismos, oponerse altratamiento y solicitar la limitación de éste, Procedencia de los datos: El Propio interesado, Información Adicional: Puede consultarse la información adicional y detallada sobre protección de datos Aquí.

© 2026 Medimar Eiendom · All rights reserved · Juridisk anteckning Privatliv Cookies Web karta

Design and CRM: Mediaelx

Göra en förfrågan WhatsApp