€515.000
€515.000
Göra en förfrågan Kontakta

Villa · Nybyggnad Alicante - Costa Blanca · Benijofar

€515.000
€515.000
Göra en förfrågan Kontakta

Egenskaper

Sovrum: 3
Badrum: 3
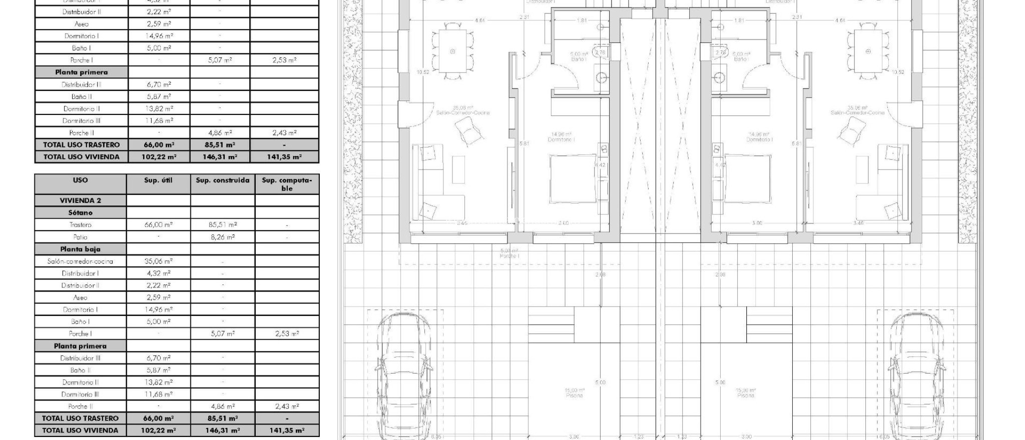
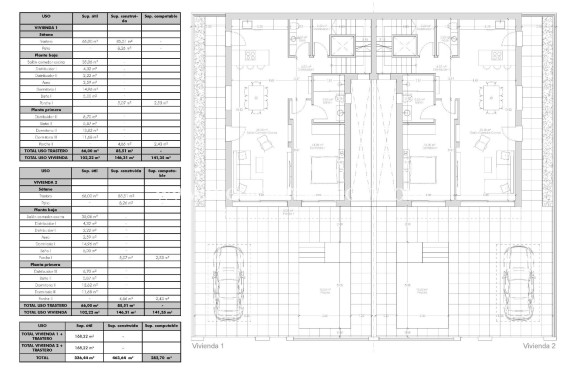
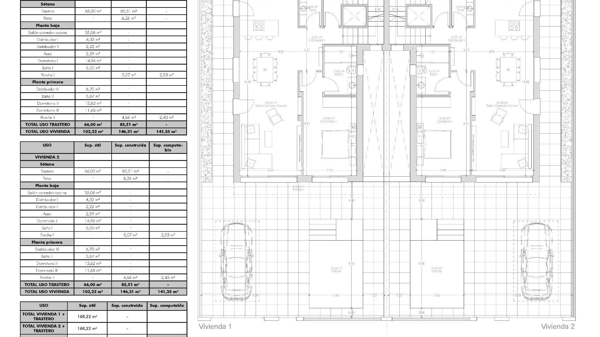
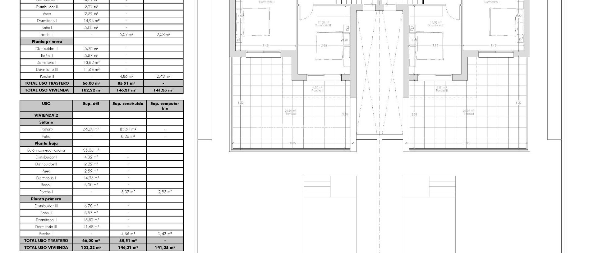
Byggd: 141m2
Tomt: 200m2
Slå samman: Ja
Terrace: 123 Msq.
Near Commercial Center
Gated
Solarium: Yes
Number of Parking Spaces: 1
Air Conditioning: Pre-Installed
Hiss/Lift
Private Pool
Garden
Near Schools
Double Bedrooms: 3
Nära busslinje
Beach: 8000 Meters
BBQ
Under-Build / Basement
Parking - Space
Location: Rural
Useable Build Space: 102 Msq.
Laundry Room
Göra en förfrågan

Beskrivning

Lyxiga nybyggda parhusvillor i Benijófar – Costa Blanca Living Privilegierat läge i Benijófar Dessa exklusiva nybyggda parhusvillor ligger i den charmiga staden Benijófar, ett av de mest eftertraktade områdena på Costa Blanca. Benijófar är känt för sin blandning av tradition och modern livsstil och erbjuder alla nödvändiga tjänster, inklusive stormarknader, apotek, banker, restauranger och lokala butiker. Bostadsområdet är strategiskt beläget bara 10 km från de gyllene stränderna i Guardamar del Segura och endast 30 km från Alicante flygplats, vilket gör det till en idealisk plats för både permanent boende och semestervistelser. Rymlig och modern design Varje villa har designats i en modern stil som maximerar utrymmet och det naturliga ljuset. Villorna har tre sovrum (ett på bottenvåningen och två på första våningen) och tre badrum (varav ett i källaren), vilket gör dem perfekta för familjer och gäster. Det öppna vardagsrummet med matplats flyter smidigt över i det fullt utrustade köket och skapar en varm och funktionell miljö. Stora fönster ger ljus i hela huset. Premiumfunktioner och extra Dessa villor utmärker sig genom sin högkvalitativa finish och genomtänkta detaljer: 66 m2 källare med badrum, galleri och tvättstuga Privat pool, solarium med grill och diskho Dekorativ öppen spis i vardagsrummet Privat parkering på tomten Hiss från källaren till översta våningen 3 solcellspaneler och LED-belysning i hela huset Förinstallerad luftkonditionering Fullt utrustade badrum med möbler och duschväggar Tomtstorlekar från 200 m2 Livsstil och omgivning Benijófar kombinerar charmen hos en traditionell spansk by med bekvämligheten hos moderna tjänster. Naturälskare kommer att njuta av den närliggande naturparken, perfekt för promenader och cykling. För golfentusiaster ligger La Marquesa Golf bara 5 km bort, medan flera andra toppbanor finns inom en radie av 15 km. Familjer kan besöka vattenparkerna i Rojales (4 km) och Torrevieja (12 km) eller utforska den livliga staden Torrevieja, som ligger bara 12 km bort. Utmärkta kommunikationer Villorna har enkel tillgång till motorvägarna N-332 och AP-7, vilket garanterar snabba förbindelser till Alicante, Elche, Orihuela Costa och Murcia. Området erbjuder en perfekt balans mellan lugn, bekvämligheter och tillgänglighet. Ditt drömhem på Costa Blanca Upplev lyx, komfort och medelhavsliv i dessa fantastiska nybyggda villor i Benijófar. Kontakta oss idag för mer information och för att boka en visning av ditt framtida hem.

Plats

Kontakta oss Göra en förfrågan

Responsable del tratamiento: Mediaterrean y Mar Eindom, SL, Finalidad del tratamiento: Gestión y control de los servicios ofrecidos a través de la página Web de Servicios inmobiliarios, Envío de información a traves de newsletter y otros, Legitimación: Por consentimiento, Destinatarios: No se cederan los datos, salvo para elaborar contabilidad, Derechos de las personas interesadas: Acceder, rectificar y suprimir los datos, solicitar la portabilidad de los mismos, oponerse altratamiento y solicitar la limitación de éste, Procedencia de los datos: El Propio interesado, Información Adicional: Puede consultarse la información adicional y detallada sobre protección de datos Aquí.

© 2026 Medimar Eiendom · All rights reserved · Juridisk anteckning Privatliv Cookies Web karta

Design and CRM: Mediaelx

Göra en förfrågan WhatsApp