€515.000
€515.000
Eine Anfrage machen Kontakt

Villa · Neubauten Alicante - Costa Blanca · Benijofar

€515.000
€515.000
Eine Anfrage machen Kontakt

Charakteristik

Zusatzfunktionen

Schlafzimmer: 3
Das Badezimmer: 3
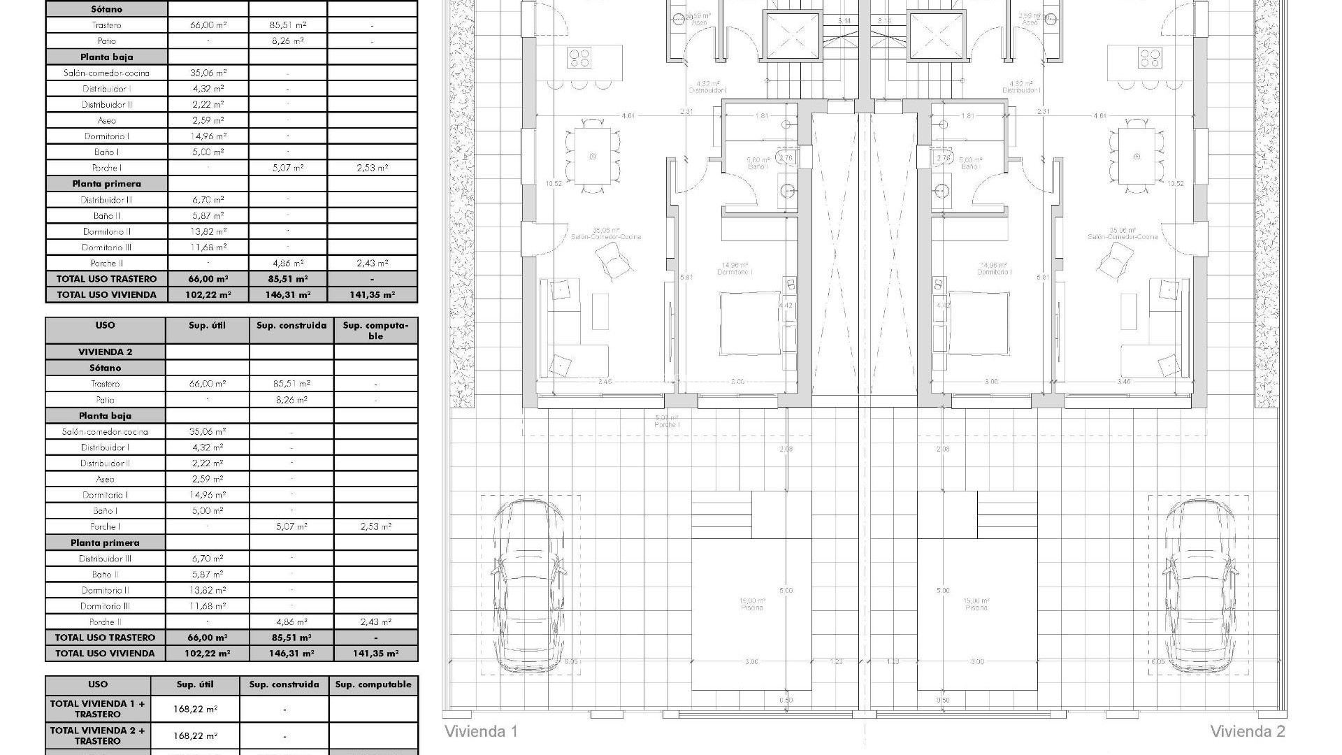
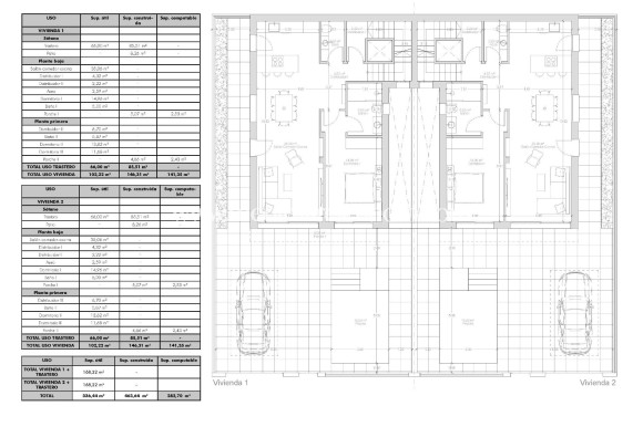
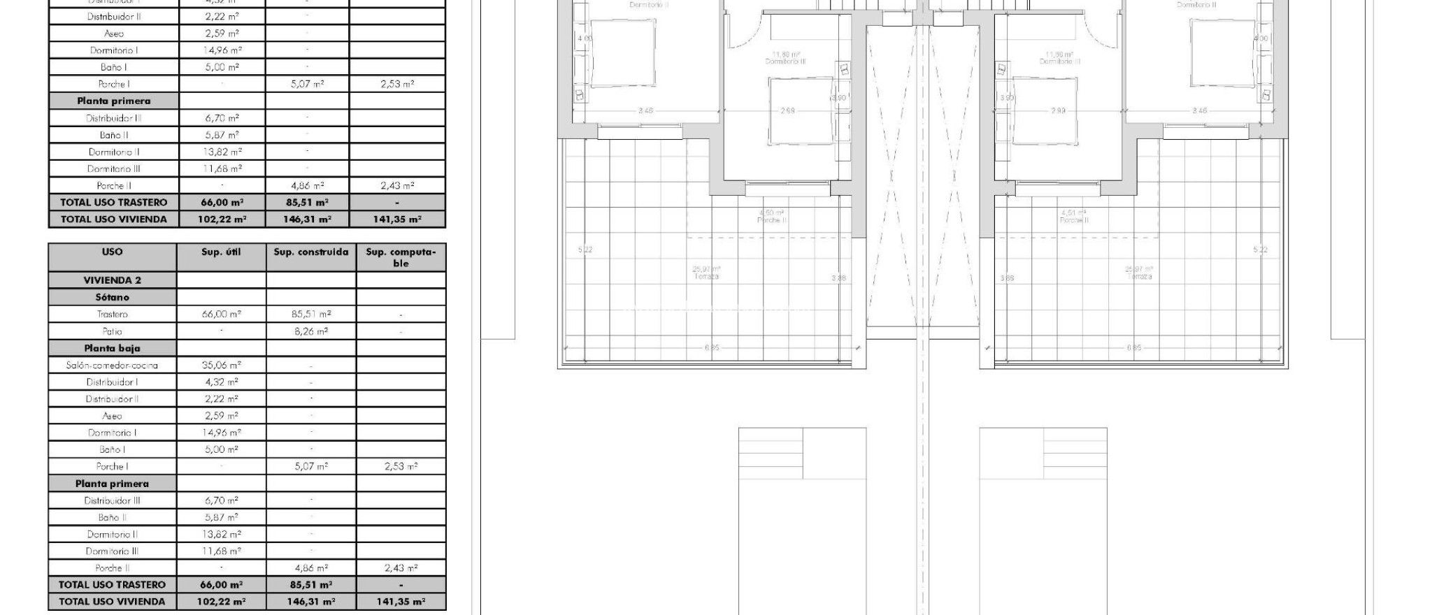
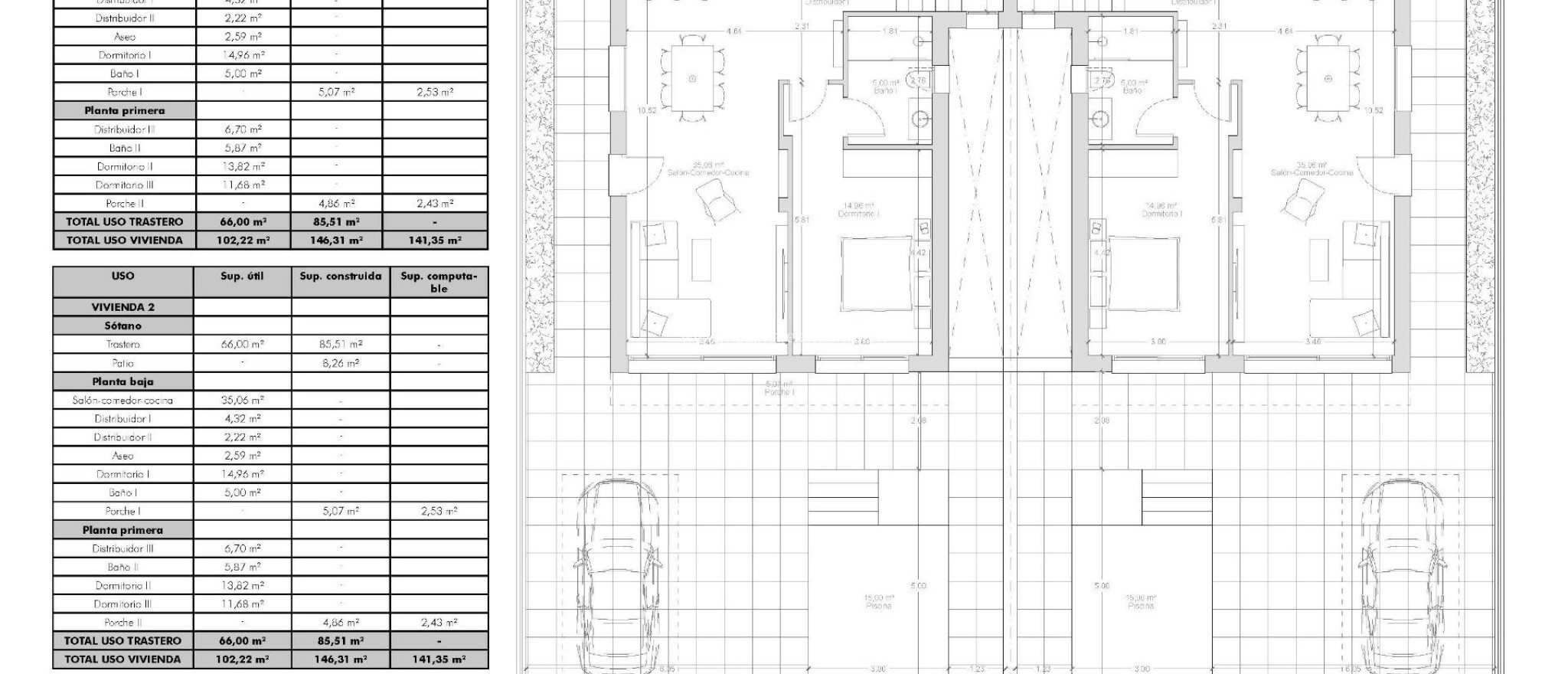
Gebaut: 141m2
Grundstück: 200m2
Schwimmbad: Ja
Nähe Buslinie
Beach: 8000 Meters
BBQ
Under-Build / Basement
Parking - Space
Location: Rural
Useable Build Space: 102 Msq.
Laundry Room
Terrace: 123 Msq.
Near Commercial Center
Gated
Solarium: Yes
Number of Parking Spaces: 1
Air Conditioning: Pre-Installed
Aufzug/Lift
Private Pool
Garden
Near Schools
Double Bedrooms: 3
Eine Anfrage machen

Beschreibung

Luxuriöse Doppelhaushälften in Benijófar – Leben an der Costa Blanca Privilegierte Lage in Benijófar Diese exklusiven Doppelhaushälften befinden sich in der charmanten Stadt Benijófar, einer der begehrtesten Gegenden an der Costa Blanca. Benijófar ist bekannt für seine Mischung aus Tradition und modernem Lebensstil und bietet alle wichtigen Dienstleistungen wie Supermärkte, Apotheken, Banken, Restaurants und lokale Geschäfte. Die Anlage ist strategisch günstig gelegen, nur 10 km von den goldenen Stränden von Guardamar del Segura und nur 30 km vom Flughafen Alicante entfernt, was sie zu einem idealen Ort für einen dauerhaften Wohnsitz oder einen Urlaubsaufenthalt macht. Geräumiges und modernes Design Jede Villa wurde in einem zeitgemäßen Stil entworfen, der den Raum und das natürliche Licht optimal nutzt. Die Aufteilung umfasst drei Schlafzimmer (eines im Erdgeschoss und zwei im ersten Stock) und drei Badezimmer (darunter eines im Untergeschoss), wodurch sie sich perfekt für Familien und Gäste eignen. Der offene Wohnbereich mit Essbereich geht nahtlos in die voll ausgestattete Küche über und schafft so eine warme und funktionale Umgebung. Große Fenster sorgen für viel Helligkeit im gesamten Haus. Hochwertige Ausstattung und Extras Diese Villen zeichnen sich durch ihre hochwertige Verarbeitung und durchdachten Details aus: 66 m² Keller mit Badezimmer, Galerie und Waschküche Privater Pool, Solarium mit Grill und Waschbecken Dekorativer Kamin im Wohnzimmer Privater Parkplatz auf dem Grundstück Aufzug vom Keller bis zum obersten Stockwerk 3 Photovoltaik-Solarmodule und LED-Beleuchtung im gesamten Haus Vorinstallierte Klimaanlage Komplett ausgestattete Badezimmer mit Möbeln und Duschwänden Grundstücksgrößen ab 200 m2 Lifestyle und Umgebung Benijófar verbindet den Charme eines traditionellen spanischen Dorfes mit den Annehmlichkeiten moderner Dienstleistungen. Naturliebhaber werden den nahe gelegenen Naturpark genießen, der sich ideal zum Wandern und Radfahren eignet. Für Golfbegeisterte ist der Golfplatz La Marquesa nur 5 km entfernt, während mehrere andere Top-Golfplätze im Umkreis von 15 km liegen. Familien können die Wasserparks in Rojales (4 km) und Torrevieja (12 km) besuchen oder die lebhafte Stadt Torrevieja selbst erkunden, die nur 12 km entfernt liegt. Hervorragende Anbindung Die Villen profitieren von einer guten Anbindung an die Autobahnen N-332 und AP-7, die eine schnelle Verbindung nach Alicante, Elche, Orihuela Costa und Murcia gewährleisten. Die Gegend bietet die perfekte Balance zwischen Ruhe, Annehmlichkeiten und Erreichbarkeit. Ihr Traumhaus an der Costa Blanca Erleben Sie Luxus, Komfort und mediterranes Wohnen in diesen atemberaubenden Neubau-Villen in Benijófar. Kontaktieren Sie uns noch heute für weitere Informationen und um einen Besichtigungstermin für Ihr zukünftiges Zuhause zu vereinbaren.

Ort

Kontaktiere uns Eine Anfrage machen

Responsable del tratamiento: Mediaterrean y Mar Eindom, SL, Finalidad del tratamiento: Gestión y control de los servicios ofrecidos a través de la página Web de Servicios inmobiliarios, Envío de información a traves de newsletter y otros, Legitimación: Por consentimiento, Destinatarios: No se cederan los datos, salvo para elaborar contabilidad, Derechos de las personas interesadas: Acceder, rectificar y suprimir los datos, solicitar la portabilidad de los mismos, oponerse altratamiento y solicitar la limitación de éste, Procedencia de los datos: El Propio interesado, Información Adicional: Puede consultarse la información adicional y detallada sobre protección de datos Aquí.

© 2026 Medimar Eiendom · All rights reserved · Rechtlicher Hinweis Privatsphäre Cookies Web-Karte

Design and CRM: Mediaelx

Eine Anfrage machen WhatsApp