€515.000
€515.000
Faire une enquête Contact

Villa · Nouvelle Construction Alicante - Costa Blanca · Benijofar

€515.000
€515.000
Faire une enquête Contact

Les caractéristiques

Caractéristiques supplémentaires

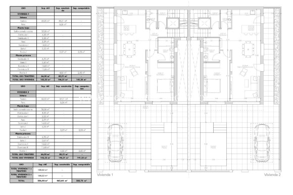
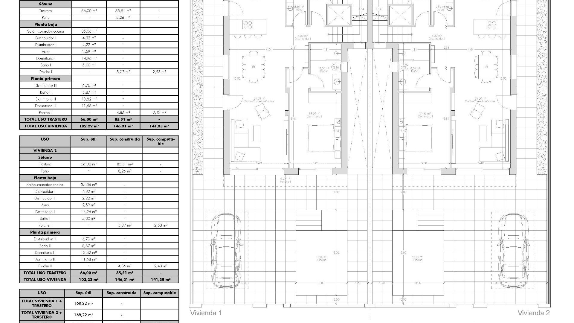
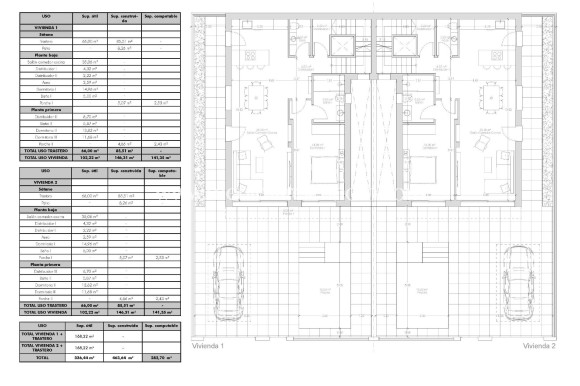
Chambres: 3
Salles de bain: 3
Construit: 141m2
Intrigue: 200m2
Piscine: Oui
BBQ
Under-Build / Basement
Parking - Space
Location: Rural
Useable Build Space: 102 Msq.
Laundry Room
Terrace: 123 Msq.
Near Commercial Center
Gated
Solarium: Yes
Number of Parking Spaces: 1
Air Conditioning: Pre-Installed
Ascenseur
Private Pool
Garden
Near Schools
Double Bedrooms: 3
Près d'une ligne de bus
Beach: 8000 Meters
Faire une enquête

La description

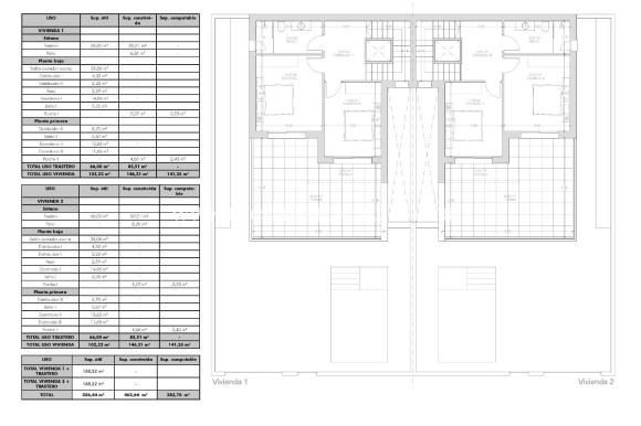
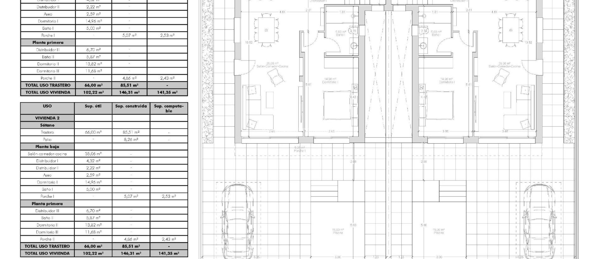
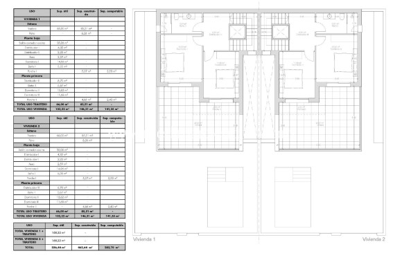
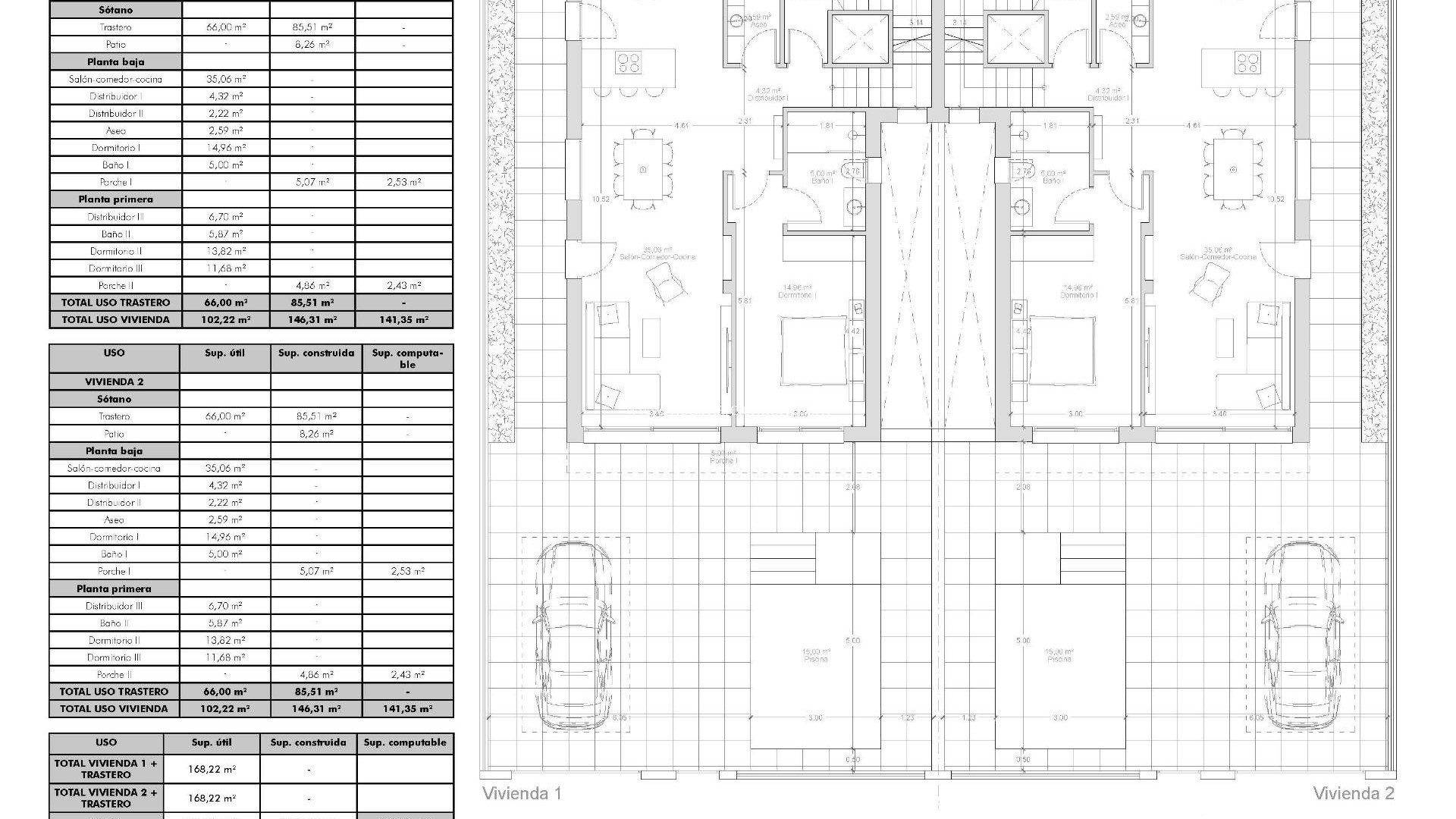
Villas jumelées de luxe neuves à Benijófar – Costa Blanca Living Emplacement privilégié à Benijófar Ces villas jumelées exclusives de construction neuve sont situées dans la charmante ville de Benijófar, l'une des zones les plus prisées de la Costa Blanca. Connue pour son mélange de tradition et de modernité, Benijófar offre tous les services essentiels, notamment des supermarchés, des pharmacies, des banques, des restaurants et des commerces de proximité. Le complexe est stratégiquement situé à seulement 10 km des plages dorées de Guardamar del Segura et à 30 km de l'aéroport d'Alicante, ce qui en fait un emplacement idéal pour une résidence permanente ou des séjours de vacances. Conception spacieuse et moderne Chaque villa a été conçue dans un style contemporain, optimisant l'espace et la lumière naturelle. La distribution comprend trois chambres (une au rez-de-chaussée et deux au premier étage) et trois salles de bains (dont une au sous-sol), ce qui les rend parfaites pour les familles et les invités. Le salon ouvert avec coin repas s'ouvre sur la cuisine entièrement équipée, créant un environnement chaleureux et fonctionnel. De grandes fenêtres renforcent la luminosité dans toute la maison. Caractéristiques haut de gamme et extras Ces villas se distinguent par leurs finitions de haute qualité et leurs détails soignés : Sous-sol de 66 m² avec salle de bains, galerie et buanderie Piscine privée, solarium avec barbecue et évier Cheminée décorative dans le salon Parking privé sur le terrain Ascenseur du sous-sol au dernier étage 3 panneaux solaires photovoltaïques et éclairage LED dans toute la maison Climatisation préinstallée Salles de bains entièrement équipées avec meubles et parois de douche Superficie des terrains à partir de 200 m2 Mode de vie et environnement Benijófar allie le charme d'un village espagnol traditionnel à la commodité des services modernes. Les amoureux de la nature apprécieront le parc naturel voisin, idéal pour la randonnée et le vélo. Pour les amateurs de golf, le club de golf La Marquesa se trouve à seulement 5 km, tandis que plusieurs autres parcours de premier ordre sont situés dans un rayon de 15 km. Les familles peuvent se rendre aux parcs aquatiques de Rojales (4 km) et Torrevieja (12 km), ou explorer la ville animée de Torrevieja, à seulement 12 km. Excellente connectivité Les villas bénéficient d'un accès facile aux autoroutes N-332 et AP-7, assurant des liaisons rapides vers Alicante, Elche, Orihuela Costa et Murcie. La région offre un équilibre parfait entre tranquillité, commodités et accessibilité. Votre maison de rêve sur la Costa Blanca Découvrez le luxe, le confort et la vie méditerranéenne dans ces superbes villas neuves à Benijófar. Contactez-nous dès aujourd'hui pour obtenir plus de détails et organiser une visite de votre future maison.

Emplacement

Contactez nous Faire une enquête

Responsable del tratamiento: Mediaterrean y Mar Eindom, SL, Finalidad del tratamiento: Gestión y control de los servicios ofrecidos a través de la página Web de Servicios inmobiliarios, Envío de información a traves de newsletter y otros, Legitimación: Por consentimiento, Destinatarios: No se cederan los datos, salvo para elaborar contabilidad, Derechos de las personas interesadas: Acceder, rectificar y suprimir los datos, solicitar la portabilidad de los mismos, oponerse altratamiento y solicitar la limitación de éste, Procedencia de los datos: El Propio interesado, Información Adicional: Puede consultarse la información adicional y detallada sobre protección de datos Aquí.

© 2026 Medimar Eiendom · All rights reserved · Mentions légales Intimité Cookies Plan du site

Design et CRM: Mediaelx

Faire une enquête WhatsApp