EINBÝLISHÚS · Nýbygging Alicante - Costa Blanca · Benijofar

Einkenni

Önnur lögun

Svefnherbergi: 3
Baðherbergi: 3
Byggir: 141m2
Söguþráður: 200m2
Pool:
Useable Build Space: 102 Msq.
Laundry Room
Terrace: 123 Msq.
Near Commercial Center
Gated
Solarium: Yes
Number of Parking Spaces: 1
Air Conditioning: Pre-Installed
Lyfta/lyfta
Private Pool
Garden
Near Schools
Double Bedrooms: 3
Lähellä bussilinjaa
Beach: 8000 Meters
BBQ
Under-Build / Basement
Parking - Space
Location: Rural
Gera fyrirspurn

Lýsing

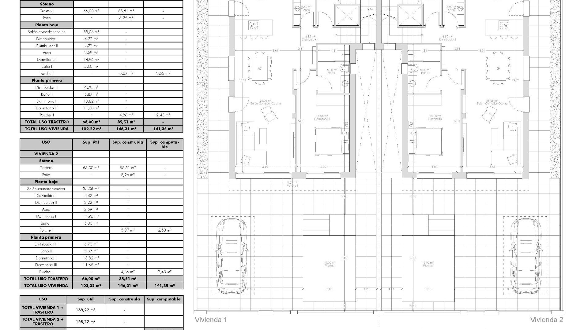
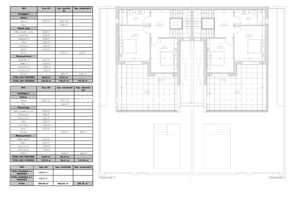
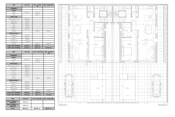
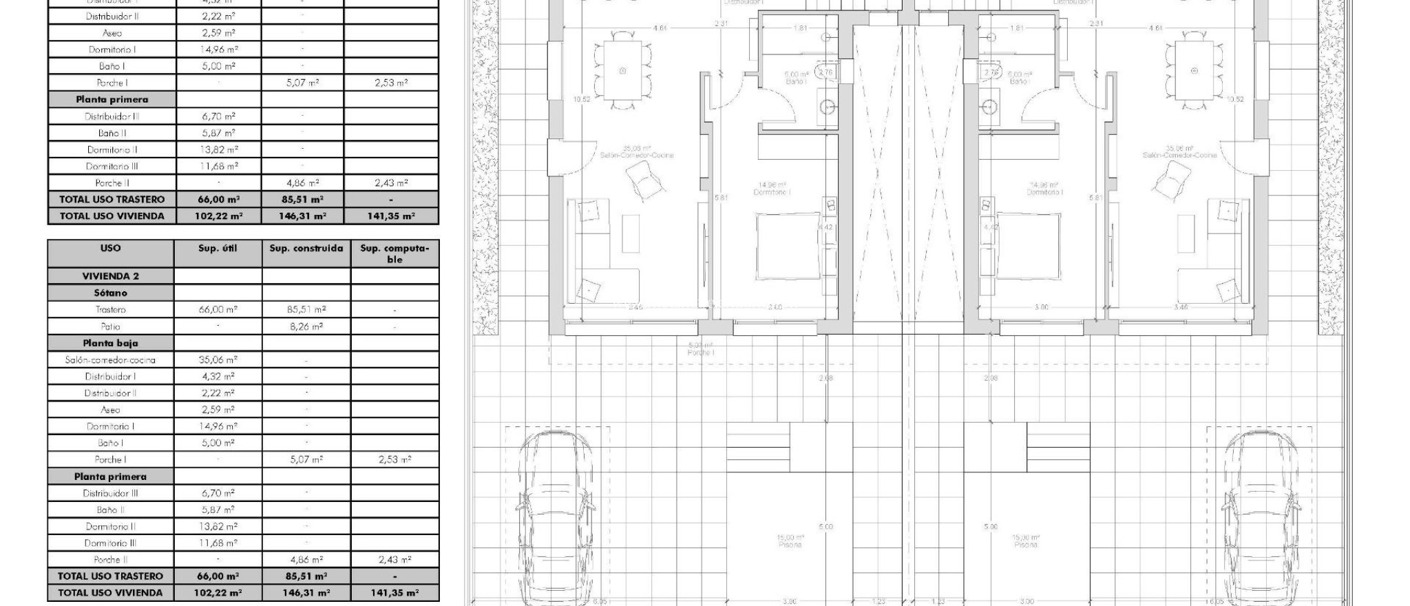
Nýbyggðar lúxus parhús í Benijófar – Costa Blanca Living Forréttindastaður í Benijófar Þessar nýbyggðu parhús eru staðsettar í heillandi bænum Benijófar, einu eftirsóttasta svæði á Costa Blanca. Benijófar er þekkt fyrir blöndu af hefð og nútímalegum lífsstíl og býður upp á alla nauðsynlega þjónustu, þar á meðal matvöruverslanir, apótek, banka, veitingastaði og staðbundnar verslanir. Þróunin er vel staðsett aðeins 10 km frá gullnum ströndum Guardamar del Segura og aðeins 30 km frá Alicante flugvelli, sem gerir hana að kjörnum stað bæði fyrir fasta búsetu og frídvöl. Rúmgóð og nútímaleg hönnun Hver villa hefur verið hönnuð í nútímalegum stíl, sem hámarkar rými og náttúrulegt ljós. Dreifingin samanstendur af þremur svefnherbergjum (eitt á jarðhæð og tvö á fyrstu hæð) og þremur baðherbergjum (þar á meðal eitt í kjallaranum), sem gerir þær fullkomnar fyrir fjölskyldur og gesti. Opin stofa með borðkrók rennur óaðfinnanlega inn í fullbúið eldhús og skapar hlýlegt og hagnýtt umhverfi. Stórir gluggar auka birtu um allt heimilið. Aukahlutir og aukahlutir Þessar villur skera sig úr fyrir hágæða frágang og ígrundaðar smáatriði: 66 fermetra kjallari með baðherbergi, svalir og þvottahúsi Einkasundlaug, sólpallur með grilli og vaski Arinn í stofunni Einkabílastæði innan lóðarinnar Lyfta frá kjallara upp á efstu hæð 3 sólarsellur og LED lýsing um allt húsið Fyrirfram uppsett loftkæling Fullbúin baðherbergi með húsgögnum og sturtuklefa Lóðarstærðir frá 200 fermetrum Lífsstíll og umhverfi Benijófar sameinar sjarma hefðbundins spænsks þorps við þægindi nútímaþjónustu. Náttúruunnendur munu njóta náttúrugarðsins í nágrenninu, sem er fullkominn til gönguferða og hjólreiða. Fyrir golfáhugamenn er La Marquesa Golf aðeins 5 km í burtu, en nokkrir aðrir vinsælir golfvellir eru innan 15 km radíuss. Fjölskyldur geta heimsótt vatnsrennibrautagarðana í Rojales (4 km) og Torrevieja (12 km), eða skoðað líflegu borgina Torrevieja sjálfa, aðeins 12 km í burtu. Frábær tenging Villurnar njóta góðs af greiðum aðgangi að hraðbrautunum N-332 og AP-7, sem tryggir skjótar tengingar við Alicante, Elche, Orihuela Costa og Murcia. Svæðið býður upp á fullkomna jafnvægi rósemi, þæginda og aðgengis. Draumaheimilið þitt á Costa Blanca. Upplifðu lúxus, þægindi og Miðjarðarhafslíf í þessum glæsilegu nýbyggðu einbýlishúsum í Benijófar. Hafðu samband við okkur í dag til að fá frekari upplýsingar og bóka skoðun á framtíðarheimilinu þínu.

Staðsetning

Hafðu samband við okkur Gera fyrirspurn

Responsable del tratamiento: Mediaterrean y Mar Eindom, SL, Finalidad del tratamiento: Gestión y control de los servicios ofrecidos a través de la página Web de Servicios inmobiliarios, Envío de información a traves de newsletter y otros, Legitimación: Por consentimiento, Destinatarios: No se cederan los datos, salvo para elaborar contabilidad, Derechos de las personas interesadas: Acceder, rectificar y suprimir los datos, solicitar la portabilidad de los mismos, oponerse altratamiento y solicitar la limitación de éste, Procedencia de los datos: El Propio interesado, Información Adicional: Puede consultarse la información adicional y detallada sobre protección de datos Aquí.

© 2026 Medimar Eiendom · All rights reserved · Legal athugið Privacy Cookies Web Map

Design and CRM: Mediaelx

Gera fyrirspurn WhatsApp