€515.000
€515.000
Złóż zapytanie Kontakt

Willa · Nowo zbudowane Alicante - Costa Blanca · Benijofar

€515.000
€515.000
Złóż zapytanie Kontakt

Szczegóły oferty

Dodatkowe funkcje

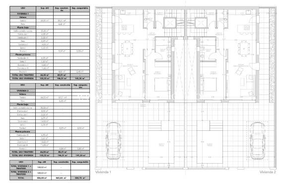
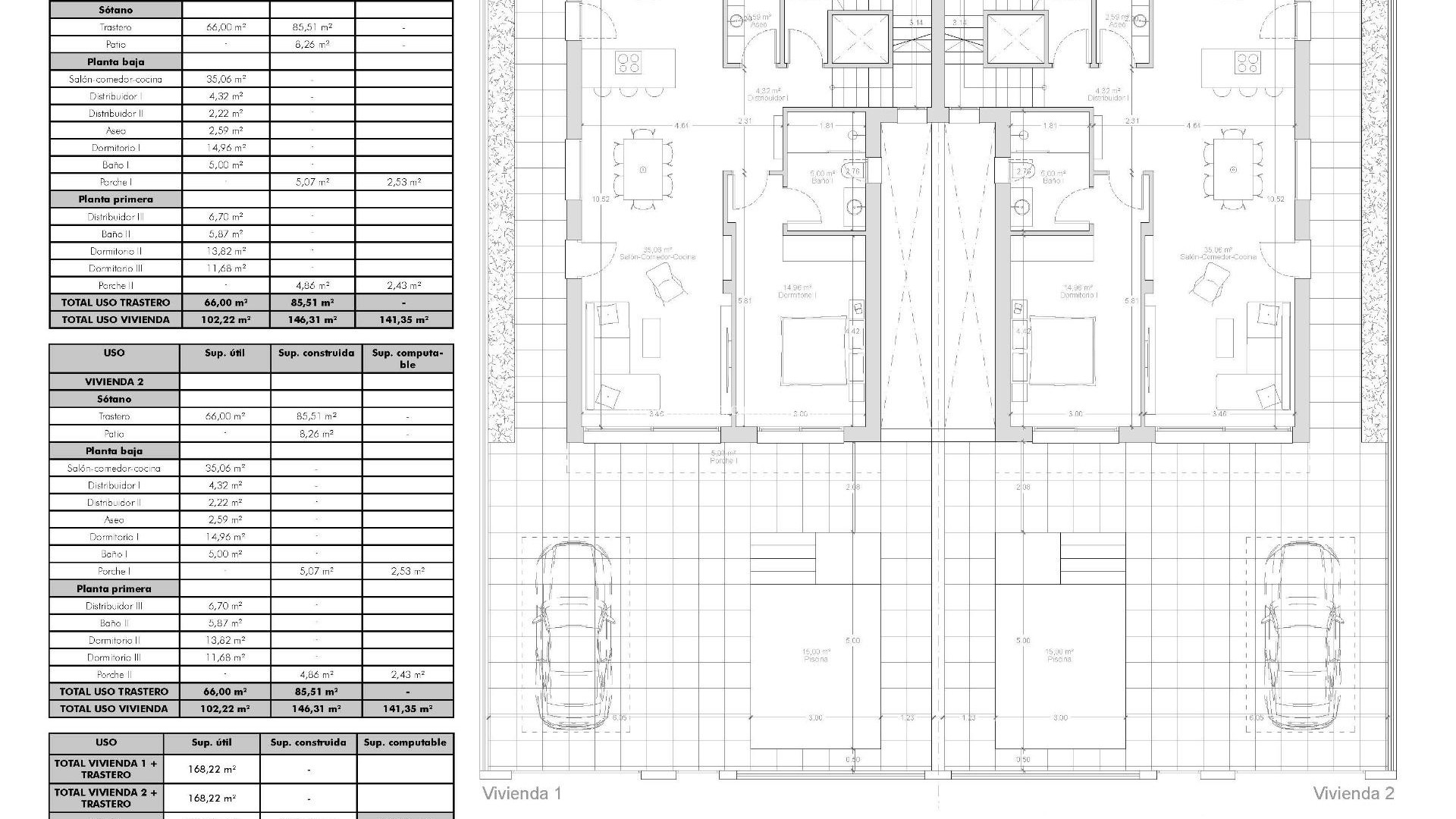
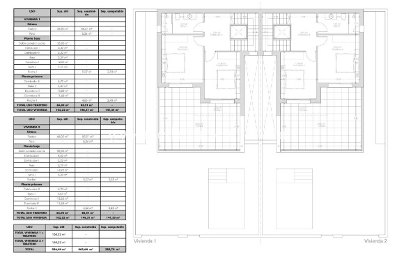
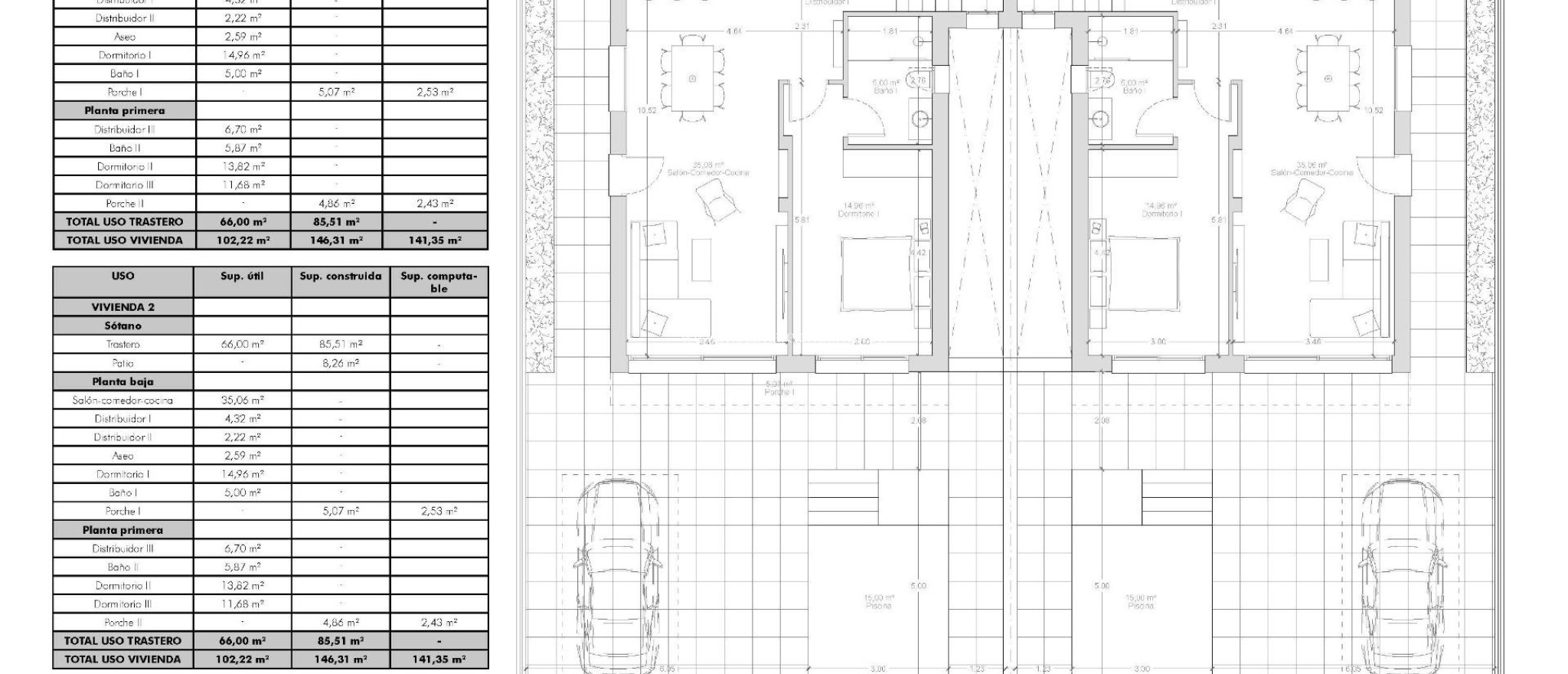
Sypialnie: 3
Łazienki: 3
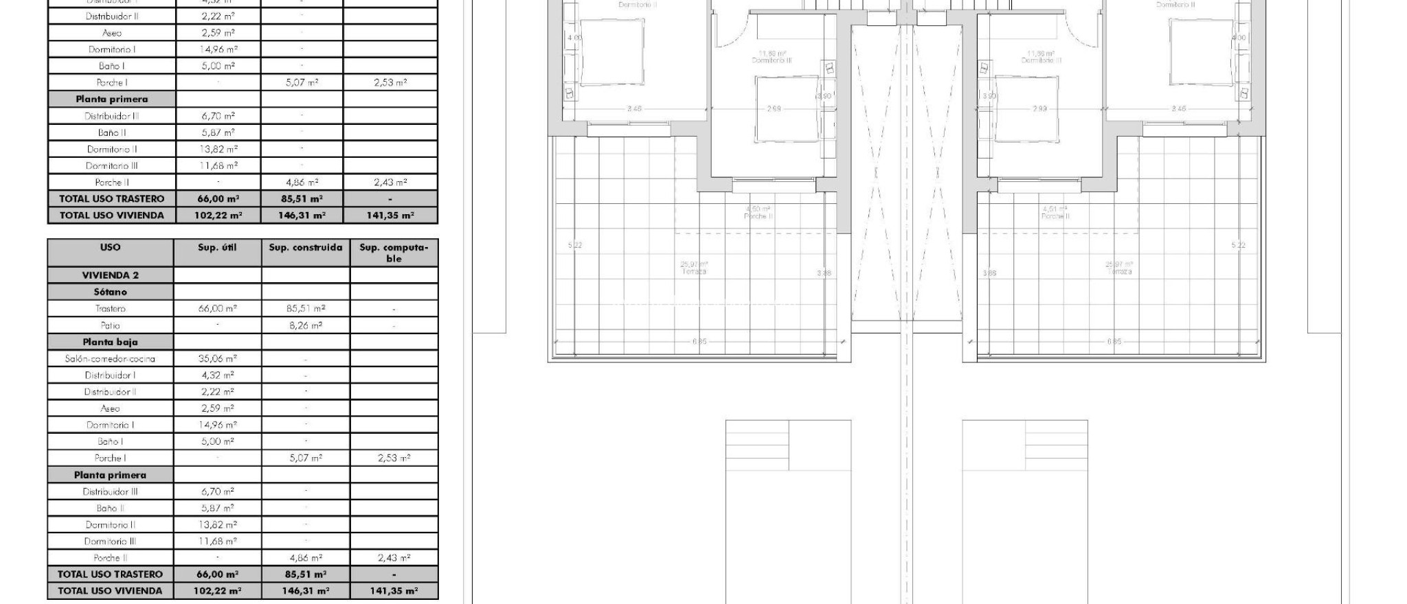
Powierzchnia: 141m2
Działka: 200m2
Basen: Tak
Useable Build Space: 102 Msq.
Laundry Room
Terrace: 123 Msq.
Near Commercial Center
Gated
Solarium: Yes
Number of Parking Spaces: 1
Air Conditioning: Pre-Installed
Winda
Private Pool
Garden
Near Schools
Double Bedrooms: 3
W pobliżu trasy autobusowej
Beach: 8000 Meters
BBQ
Under-Build / Basement
Parking - Space
Location: Rural
Złóż zapytanie

Opis

Luksusowe, nowo wybudowane bliźniacze wille w Benijófar – Costa Blanca Living Doskonała lokalizacja w Benijófar Te ekskluzywne, nowo wybudowane bliźniacze wille położone są w uroczej miejscowości Benijófar, jednej z najbardziej pożądanych lokalizacji na wybrzeżu Costa Blanca. Znane z połączenia tradycji i nowoczesnego stylu życia, Benijófar oferuje wszystkie niezbędne usługi, w tym supermarkety, apteki, banki, restauracje i lokalne sklepy. Osiedle jest strategicznie położone zaledwie 10 km od złotych plaż Guardamar del Segura i tylko 30 km od lotniska w Alicante, co czyni je idealnym miejscem zarówno do stałego zamieszkania, jak i na wakacje. Przestronny i nowoczesny projekt Każda willa została zaprojektowana w nowoczesnym stylu, maksymalizując przestrzeń i naturalne światło. Układ obejmuje trzy sypialnie (jedną na parterze i dwie na pierwszym piętrze) oraz trzy łazienki (w tym jedną w piwnicy), dzięki czemu idealnie nadają się dla rodzin i gości. Otwarty salon z jadalnią płynnie przechodzi do w pełni wyposażonej kuchni, tworząc ciepłe i funkcjonalne środowisko. Duże okna zwiększają jasność w całym domu. Najwyższej jakości wyposażenie i dodatki Wille te wyróżniają się wysokiej jakości wykończeniem i przemyślanymi detalami: Piwnica o powierzchni 66 m2 z łazienką, galerią i pralnią Prywatny basen, solarium z grillem i zlewem Ozdobny kominek w salonie Prywatny parking na terenie działki Winda z piwnicy na najwyższe piętro 3 panele fotowoltaiczne i oświetlenie LED w całym domu Wstępnie zainstalowana klimatyzacja W pełni wyposażone łazienki z meblami i kabinami prysznicowymi Działki o powierzchni od 200 m2 Styl życia i otoczenie Benijófar łączy w sobie urok tradycyjnej hiszpańskiej wioski z wygodą nowoczesnych usług. Miłośnicy przyrody będą zachwyceni pobliskim parkiem przyrodniczym, idealnym do spacerów i jazdy na rowerze. Miłośnicy golfa znajdą pole golfowe La Marquesa Golf w odległości zaledwie 5 km, a kilka innych najlepszych pól golfowych znajduje się w promieniu 15 km. Rodziny mogą odwiedzić parki wodne w Rojales (4 km) i Torrevieja (12 km) lub zwiedzić tętniące życiem miasto Torrevieja, oddalone o zaledwie 12 km. Doskonałe połączenia komunikacyjne Wille mają łatwy dostęp do autostrad N-332 i AP-7, co zapewnia szybkie połączenie z Alicante, Elche, Orihuela Costa i Murcją. Okolica oferuje idealną równowagę między spokojem, udogodnieniami i dostępnością. Twój wymarzony dom na Costa Blanca Doświadcz luksusu, komfortu i śródziemnomorskiego stylu życia w tych wspaniałych nowych willach w Benijófar. Skontaktuj się z nami już dziś, aby uzyskać więcej informacji i umówić się na oglądanie swojego przyszłego domu.

Lokalizacja

Skontaktuj się z nami Złóż zapytanie

Responsable del tratamiento: Mediaterrean y Mar Eindom, SL, Finalidad del tratamiento: Gestión y control de los servicios ofrecidos a través de la página Web de Servicios inmobiliarios, Envío de información a traves de newsletter y otros, Legitimación: Por consentimiento, Destinatarios: No se cederan los datos, salvo para elaborar contabilidad, Derechos de las personas interesadas: Acceder, rectificar y suprimir los datos, solicitar la portabilidad de los mismos, oponerse altratamiento y solicitar la limitación de éste, Procedencia de los datos: El Propio interesado, Información Adicional: Puede consultarse la información adicional y detallada sobre protección de datos Aquí.

© 2026 Medimar Eiendom · Wszelkie prawa zastrzeżone · Nota prawna Prywatność Cookies Mapa strony

Projektowanie i CRM: Mediaelx

Złóż zapytanie WhatsApp