€970.000
€970.000
Een vraag doen Contact

Villa · Nieuw gebouw Alicante - Costa Blanca · Polop

€970.000
€970.000
Een vraag doen Contact

Kenmerken

Extra functies

Slaapkamers: 4
Badkamers: 4
Gebouwd: 200m2
Plot: 400m2
Zwembad: Ja
Gated
Solarium: Yes
Private Pool
Garden
Views: Sea
Near Schools
Double Bedrooms: 4
Number of Parking Spaces: 2
Dichtbij bomen
Games Room
Beach: 8000 Meters
Under-Build / Basement
Parking - Space
Key Ready
Bruikbare bouwruimte: 100 Msq.
Terrace: 66 Msq.
Location: Rural, Mountain, Urbanisation
Laundry Room
Near Commercial Center
Opslag / Trastero
Een vraag doen

Beschrijving

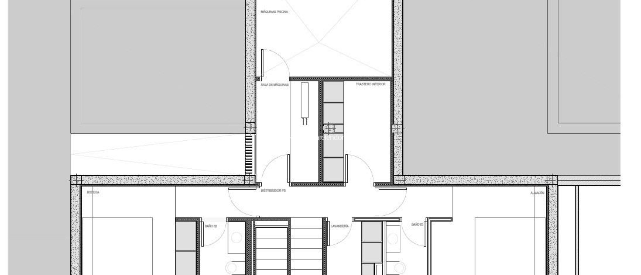
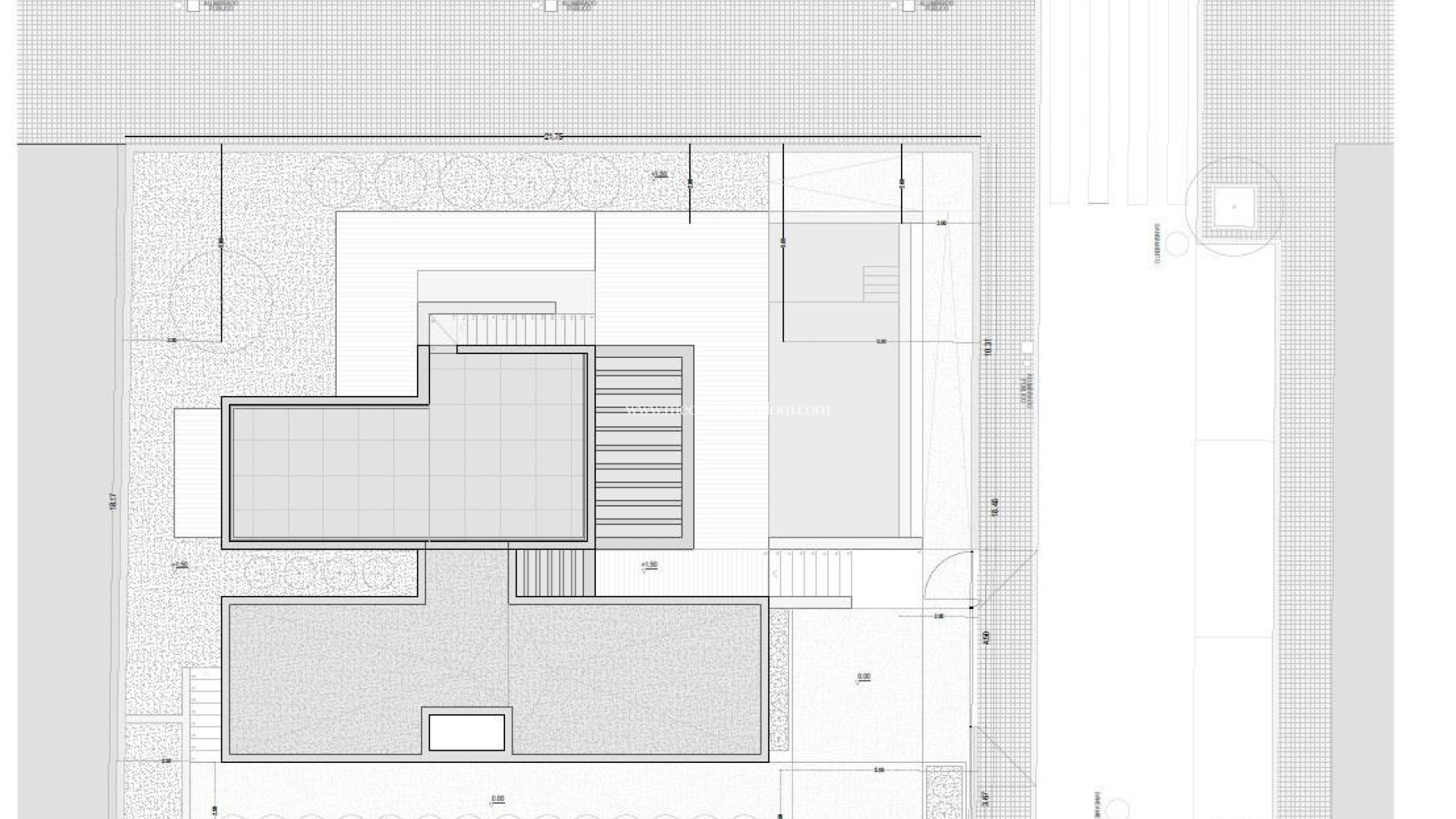
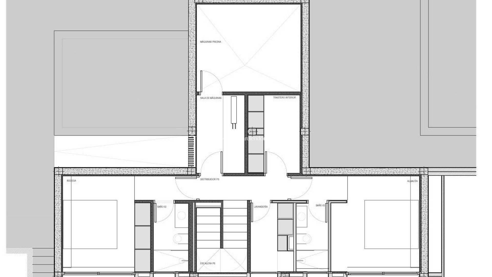
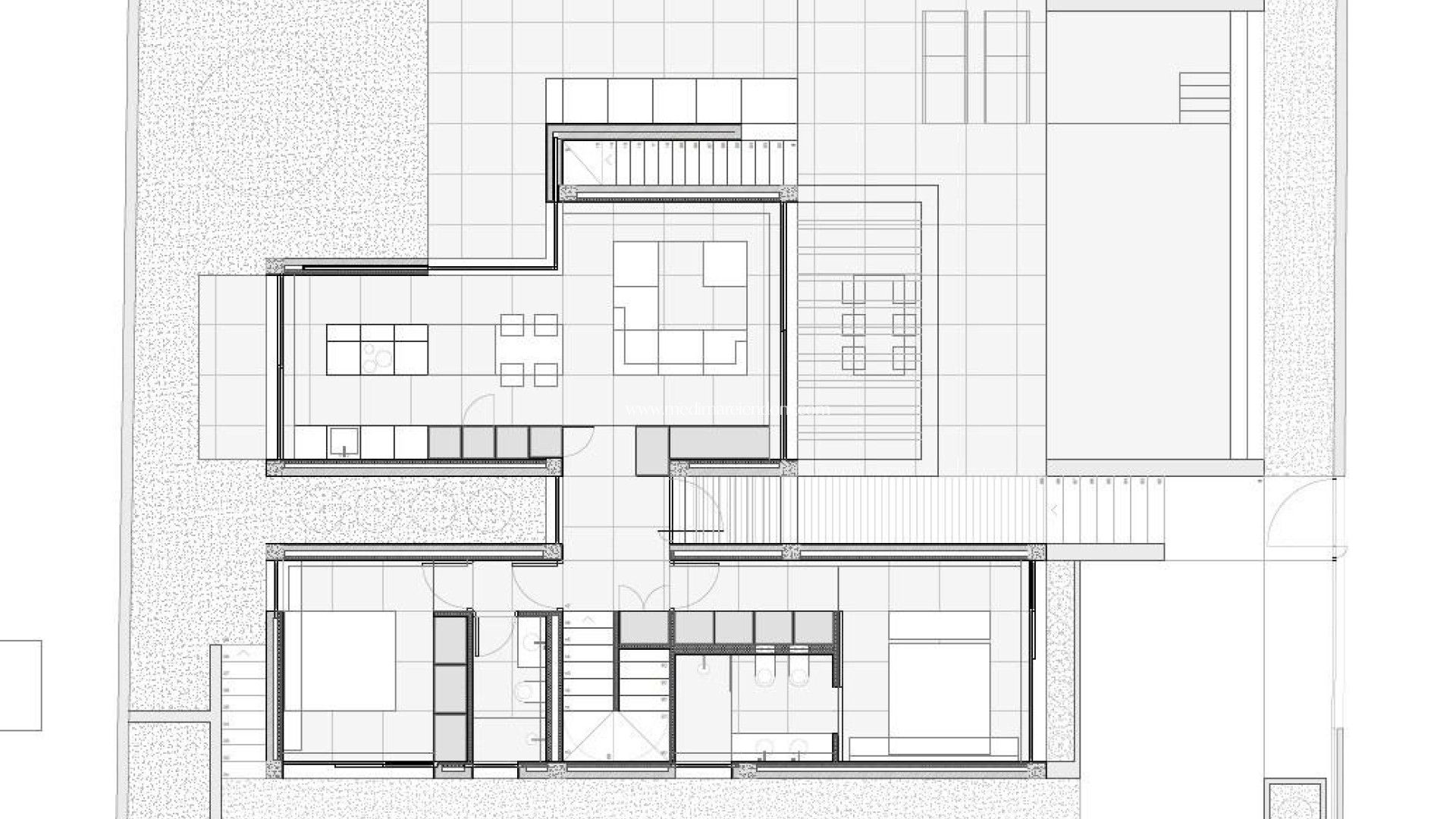
Sleutelklare nieuwbouwwoning met uitzicht op zee in La Alberca Polop Luxe moderne villa in een natuurlijke bergachtige omgeving Deze sleutelklare moderne villa is gelegen in La Alberca, een rustige woonwijk van Polop, omgeven door bossen en bergen. Door de verhoogde ligging geniet de woning van een panoramisch uitzicht op de Middellandse Zee, de bergen en het historische centrum van Polop. De villa biedt privacy, rust en uitstekende verbindingen met de kust en nabijgelegen steden. Polop is een charmant dorpje in de regio Marina Baixa aan de Costa Blanca, bekend om zijn traditionele karakter en natuurlijke omgeving. De woning ligt dicht bij alle voorzieningen in La Nucia, waaronder winkels, restaurants, sportcentra en scholen, terwijl de stranden en levendige kustplaatsen op slechts een klein eindje rijden liggen. Ruime indeling over de begane grond, kelder en solarium De villa is verdeeld over een begane grond, kelder en solarium op het dak, en biedt royale leefruimte en flexibiliteit. Op de begane grond leidt een uitnodigende hal met ingebouwde kledingkast naar twee slaapkamers met eigen badkamer, waaronder een master suite met openslaande ramen naar een Juliette-balkon en terras. De open woon- en eetkamer sluit naadloos aan op een overdekt pergolaterras en een privézwembad met zout water. De kelderverdieping beschikt over twee extra slaapkamers met eigen badkamer en grote ramen, een flexibele speelkamer of bioscoopzaal met water- en elektriciteitsaansluitingen voor een bar, een volledig uitgeruste wasruimte met Haier-apparatuur en twee technische opslagruimtes. Het solarium op het dak biedt een ruime buitenruimte met panoramisch uitzicht op zee en is voorbereid voor de toekomstige installatie van zonnepanelen. Een buitenkeuken, meerdere opbergkasten en een mediterraan aangelegde tuin met automatische irrigatie maken het exterieur compleet. Hoogwaardige voorzieningen en energie-efficiëntie Deze villa onderscheidt zich door zijn hoogwaardige afwerking en geavanceerde installaties, waaronder: Centraal keukeneiland met geïntegreerde BOSCH-apparatuur Natuurstenen werkbladen binnen en buiten Voorbereiding voor vloerverwarming Mitsubishi aerothermisch airconditioningsysteem Energie-efficiëntieklasse A Voorbereiding voor smart home-systeem Zoutwaterzwembad met optionele verwarming Privé parkeerplaats voor twee voertuigen Grote ramen met zonwerend glas maximaliseren het natuurlijke licht en zorgen tegelijkertijd voor comfort en veiligheid. Uitstekende locatie en afstanden Centrum van Polop 2 km La Nucia 4 km Benidorm 12 km Altea 10 km Stranden 10 km Villaitana Golf 14 km Luchthaven Alicante 65 km Verzeker uzelf van uw droomhuis in Polop Deze uitzonderlijke, instapklare villa combineert privacy, design en een panoramisch uitzicht in een van de aantrekkelijkste gebieden in het binnenland van de Costa Blanca. Neem vandaag nog contact met ons op voor een privébezichtiging en maak van deze luxe villa in La Alberca Polop uw nieuwe thuis.

Plaats

Neem contact met ons op Een vraag doen

Responsable del tratamiento: Mediaterrean y Mar Eindom, SL, Finalidad del tratamiento: Gestión y control de los servicios ofrecidos a través de la página Web de Servicios inmobiliarios, Envío de información a traves de newsletter y otros, Legitimación: Por consentimiento, Destinatarios: No se cederan los datos, salvo para elaborar contabilidad, Derechos de las personas interesadas: Acceder, rectificar y suprimir los datos, solicitar la portabilidad de los mismos, oponerse altratamiento y solicitar la limitación de éste, Procedencia de los datos: El Propio interesado, Información Adicional: Puede consultarse la información adicional y detallada sobre protección de datos Aquí.

© 2026 Medimar Eiendom · All rights reserved · Colofon Privacy Cookies Web plan

Design and CRM: Mediaelx

Een vraag doen WhatsApp