EINBÝLISHÚS · Nýbygging Alicante - Costa Blanca · Polop

Einkenni

Önnur lögun

Svefnherbergi: 4
Baðherbergi: 4
Byggir: 200m2
Söguþráður: 400m2
Pool:
Under-Build / Basement
Parking - Space
Key Ready
Notabar byggyta: 100 Msq.
Terrace: 66 Msq.
Location: Rural, Mountain, Urbanisation
Laundry Room
Near Commercial Center
Geymsla / Geymsla
Gated
Solarium: Yes
Private Pool
Garden
Views: Sea
Near Schools
Double Bedrooms: 4
Number of Parking Spaces: 2
Lähellä puita
Games Room
Beach: 8000 Meters
Gera fyrirspurn

Lýsing

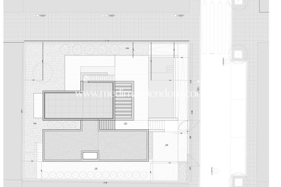
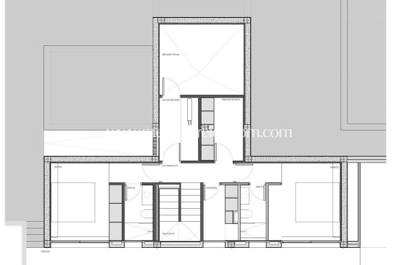
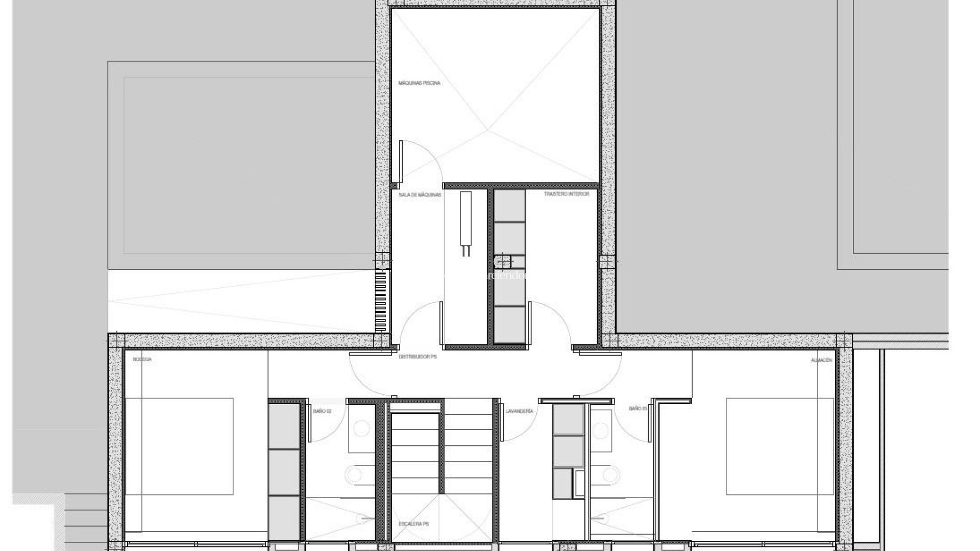
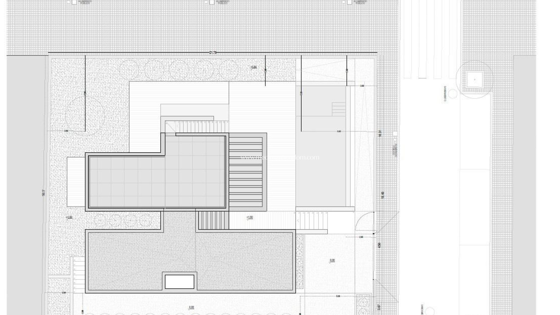
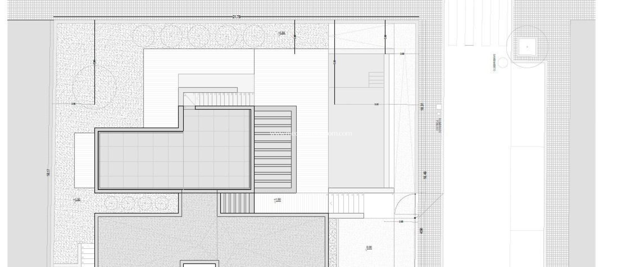
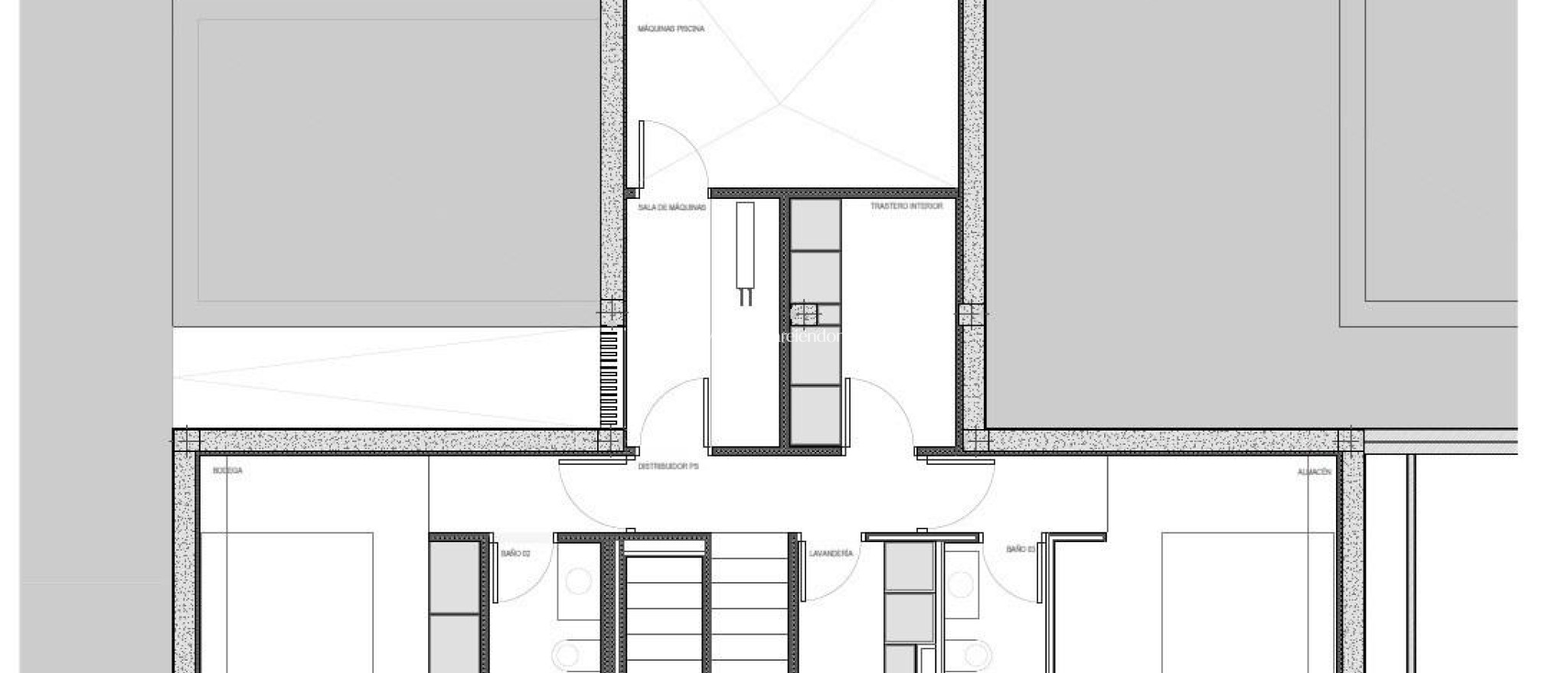
Nýbyggð einbýlishús með sjávarútsýni í La Alberca Polop. Lúxus nútímaleg einbýlishús í náttúrulegu fjallaumhverfi. Þessi nútímalega einbýlishús er staðsett í La Alberca, rólegu íbúðahverfi í Polop, umkringt skógi og fjöllum. Staðsett á hæðum, býður eignin upp á útsýni yfir Miðjarðarhafið, fjöllin og sögulega miðbæ Polop. Einbýlishúsið býður upp á næði, ró og frábæra tengingu við ströndina og nærliggjandi bæi. Polop er heillandi þorp í Marina Baixa svæðinu á Costa Blanca, þekkt fyrir hefðbundinn karakter og náttúrulegt umhverfi. Eignin er nálægt allri þjónustu í La Nucia, þar á meðal verslunum, veitingastöðum, íþróttamiðstöðvum og skólum, en strendur og líflegir strandbæir eru í stuttri akstursfjarlægð. Rúmgott skipulag á aðalhæðinni. Kjallari og þakverönd. Einbýlishúsið er dreift á aðalhæð, kjallara og þakverönd, sem býður upp á rúmgott rými og sveigjanleika. Á aðalhæðinni er notaleg forstofa með innbyggðum fataskáp sem leiðir inn í tvö svefnherbergi með sérbaðherbergi, þar á meðal hjónaherbergi með upphækkanlegum glugga sem opnast út á Juliette svalir og verönd. Opið stofu- og borðstofa tengist óaðfinnanlega við yfirbyggða pergóluverönd og einkasundlaug með saltvatni. Kjallari býður upp á tvö viðbótar svefnherbergi með sérbaðherbergi og stórum gluggum, sveigjanlegt leikherbergi eða kvikmyndahús með tengingum fyrir vatn og rafmagn fyrir bar, fullbúið þvottahús með Haier tækjum og tvær tæknilegar geymslur. Þakveröndin býður upp á rúmgott útirými með útsýni yfir sjóinn og er undirbúin fyrir uppsetningu sólarsella í framtíðinni. Útieldhús, fjölmargir geymsluskápar og landslagaður garður í Miðjarðarhafsstíl með sjálfvirkri áveitu fullkomna ytra byrðina. Hágæða eiginleikar og orkunýting Þessi villa sker sig úr fyrir fyrsta flokks frágang og háþróaða uppsetningu, þar á meðal: Miðlæg eldhúseyja með innbyggðum BOSCH tækjum Borðplötur úr náttúrusteini bæði inni og úti Gólfhiti fyrir uppsetningu Mitsubishi aerothermal loftræstikerfi Orkunýtingarflokkur A fyrir uppsetningu fyrir snjallheimiliskerfi Saltvatnssundlaug með valfrjálsri upphitun Einkabílastæði fyrir tvö ökutæki Stórir gluggar með sólarvörn hámarka náttúrulegt ljós og tryggja þægindi og öryggi. Frábær staðsetning og fjarlægðir. Miðbær Polop 2 km. La Nucia 4 km. Benidorm 12 km. Altea 10 km. Strendur 10 km. Villaitana Golf 14 km. Alicante flugvöllur 65 km. Tryggðu þér draumaheimilið í Polop. Þessi einstaka, tilbúna villa sameinar næði, hönnun og útsýni á einu af aðlaðandi svæðum Costa Blanca. Hafðu samband við okkur í dag til að bóka einkaskoðun og gera þessa lúxusvillu í La Alberca Polop að nýja heimili þínu.

Staðsetning

Hafðu samband við okkur Gera fyrirspurn

Responsable del tratamiento: Mediaterrean y Mar Eindom, SL, Finalidad del tratamiento: Gestión y control de los servicios ofrecidos a través de la página Web de Servicios inmobiliarios, Envío de información a traves de newsletter y otros, Legitimación: Por consentimiento, Destinatarios: No se cederan los datos, salvo para elaborar contabilidad, Derechos de las personas interesadas: Acceder, rectificar y suprimir los datos, solicitar la portabilidad de los mismos, oponerse altratamiento y solicitar la limitación de éste, Procedencia de los datos: El Propio interesado, Información Adicional: Puede consultarse la información adicional y detallada sobre protección de datos Aquí.

© 2026 Medimar Eiendom · All rights reserved · Legal athugið Privacy Cookies Web Map

Design and CRM: Mediaelx

Gera fyrirspurn WhatsApp