€2.850.000
€2.850.000
Gera fyrirspurn Viltu samband við

EINBÝLISHÚS · Nýbygging Alicante - Costa Blanca · Benissa

€2.850.000
€2.850.000
Gera fyrirspurn Viltu samband við

Einkenni

Önnur lögun

Svefnherbergi: 4
Baðherbergi: 3
Byggir: 342m2
Söguþráður: 800m2
Pool:
Salerni: 1
Gated
Solarium: Yes
Location: Coastal, Urbanisation
Private Pool
Garden
Views: Sea
Near Schools
Useable Build Space: 290 Msq.
Double Bedrooms: 4
Number of Parking Spaces: 2
Lähellä puita
Lähellä bussilinjaa
Gym
Under-Build / Basement
Parking - Space
Beach: 150 Meters
Terrace: 157 Msq.
Near Commercial Center
Geymsla / Geymsla
Gera fyrirspurn

Lýsing

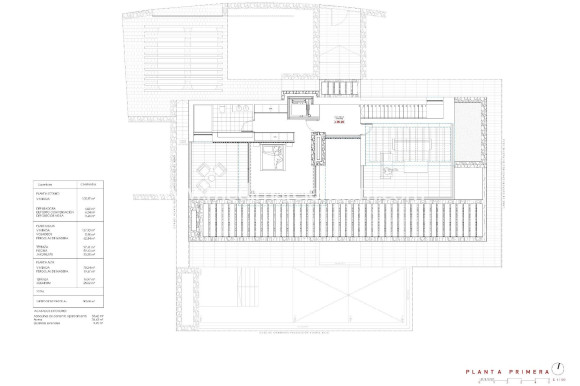
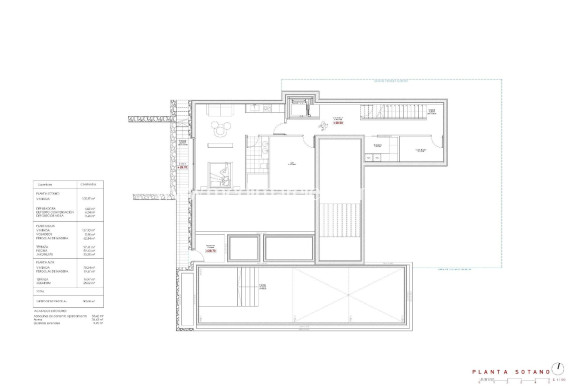
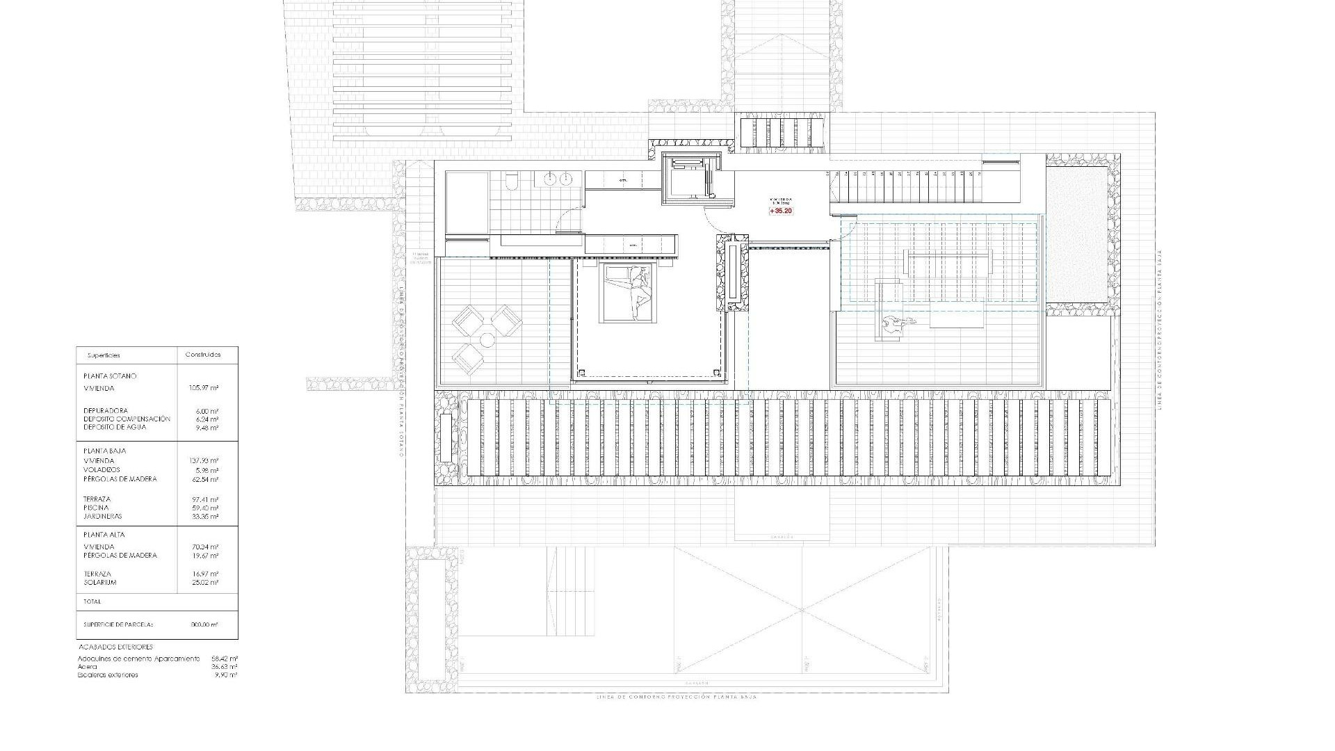
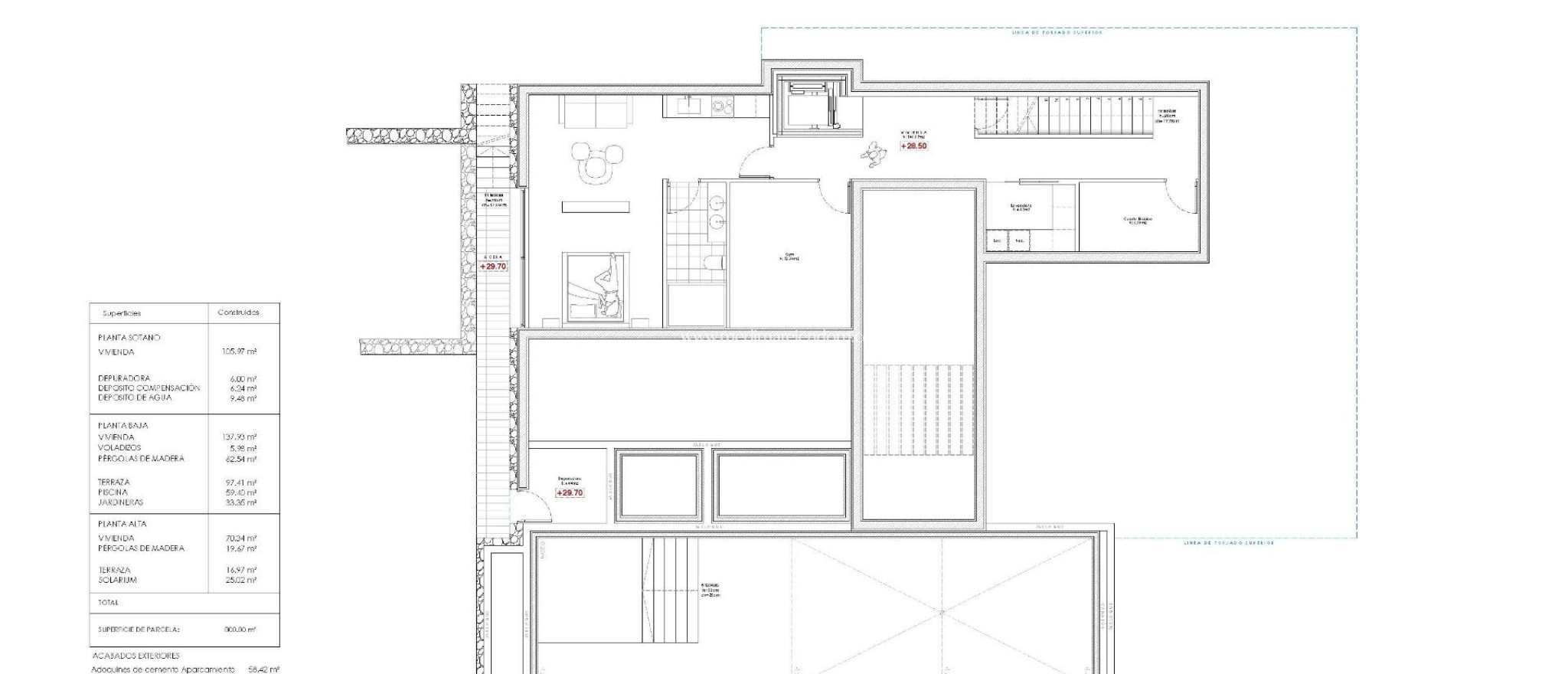
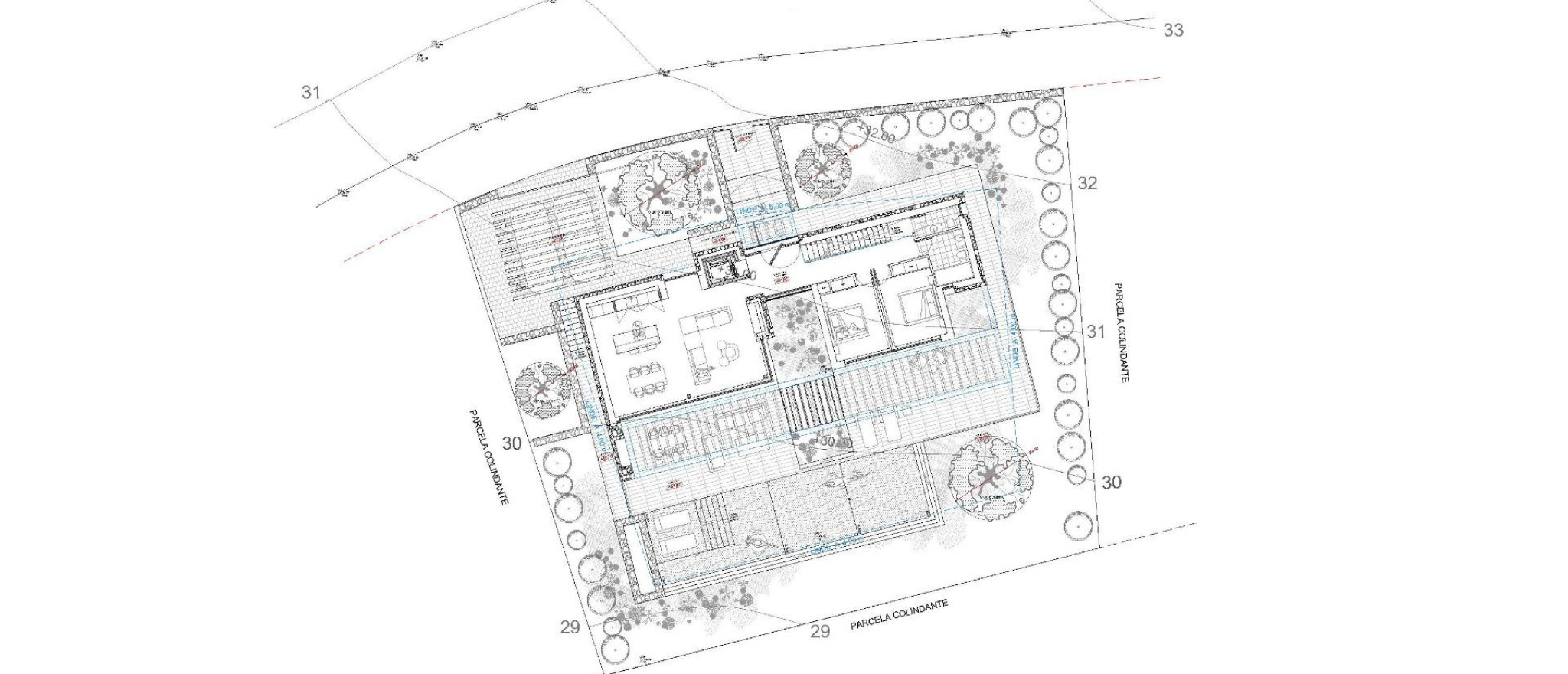
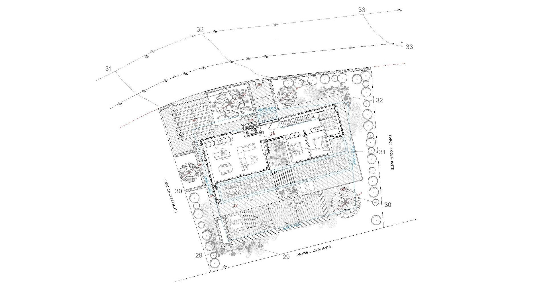
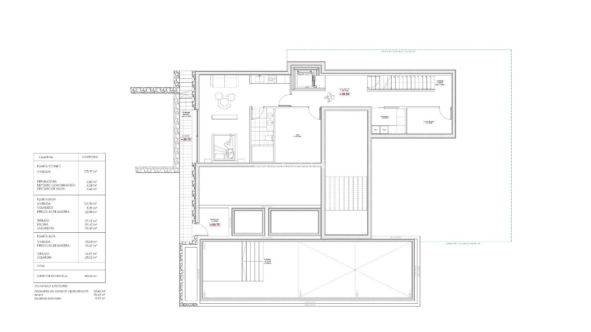
Nútímaleg einbýlishús með útsýni yfir sjóinn í La Fustera, Benissa Costa Þessi einstaka nýbyggða einbýlishús, hannað af þekktum arkitekt og þróað af staðbundnum byggingaraðila með meira en 20 ára reynslu, stendur á 800 fermetra lóð aðeins nokkrum skrefum frá La Fustera ströndinni. Arkitektúrinn blandar saman Miðjarðarhafshlýju og nútímalegri glæsileika og sameinar náttúrustein, tré og mjúka hlutlausa tóna og fellur óaðfinnanlega að strandlandslaginu. Með heildarbyggingarflatarmál upp á 716 fermetra, dreift á þrjár hæðir - kjallara, jarðhæð og fyrstu hæð - býður einbýlishúsið upp á fullkomna jafnvægi milli virkni, hönnunar og þæginda. Kjallari Neðri hæðin, 105,97 fermetrar, er hönnuð bæði með tilliti til hagnýtingar og afþreyingar í huga. Hún inniheldur fullbúið líkamsræktarstöð, þvottahús og tæknileg svæði, með möguleika á að aðlaga viðbótarrými sem vínkjallara, kvikmyndahús eða fjölnota herbergi. Á þessari hæð eru einnig síunarkerfi sundlaugarinnar og vatnstankar, sem tryggir skilvirka stjórnun allra tæknilegra uppsetninga. Jarðhæð Aðalhæðin, 137,93 m², er björt og opin, með skipulagi sem fangar kjarna Miðjarðarhafslífsins. Rúmgóð stofa, borðstofa og eldhús opnast út um stóra gólf-til-lofts glugga út á aðalveröndina og sundlaugina, sem rammar inn ótrúlegt útsýni yfir hafið sem skilgreinir karakter þessa heimilis. Tvö tveggja manna svefnherbergi, baðherbergi og gestasalerni fullkomna þessa hæð og veita þægindi og virkni. Úti er pergola úr tré sem skyggir á útisetustofuna og borðstofuna, umkringd gróskumiklum görðum, sólarveröndum og 59,40 m² sundlaug sem rennur sjónrænt saman við hafið. Fyrsta hæð Efri hæðin, 70,19 m², er frátekin fyrir hjónaherbergið - einkaherbergi með fataherbergi, sérbaðherbergi og stórri einkaverönd með stórkostlegu útsýni yfir Miðjarðarhafið. Annað svefnherbergi eða skrifstofurými fullkomnar þessa hæð, sem veitir einnig aðgang að 25,02 m² sólstofu, tilvalinni til að slaka á í sólinni og njóta kyrrðar umhverfisins. Ytra byrði og staðsetning Þessi eign er staðsett í rólegri íbúðagötu umkringd nútímalegum einbýlishúsum, aðeins 3 mínútna göngufjarlægð frá La Fustera ströndinni (150m), Mandala Beach Bar & Restaurant og nauðsynlegum þægindum eins og matvöruverslunum og þjónustu á staðnum. Þessi villa er hönnuð með áherslu á birtu, rými og samfellda inni- og útiveru og innifelur nútíma Miðjarðarhafslífsstíl - glæsileg, afslappuð og í fullkomnu samræmi við stórkostlegt útsýni yfir hafið. Tryggðu þér draumavilluna þína í La Fustera, Benissa Costa, og upplifðu fullkominn Miðjarðarhafslífsstíl með stórkostlegu útsýni yfir hafið og óviðjafnanlegum þægindum.

Staðsetning

Hafðu samband við okkur Gera fyrirspurn

Responsable del tratamiento: Mediaterrean y Mar Eindom, SL, Finalidad del tratamiento: Gestión y control de los servicios ofrecidos a través de la página Web de Servicios inmobiliarios, Envío de información a traves de newsletter y otros, Legitimación: Por consentimiento, Destinatarios: No se cederan los datos, salvo para elaborar contabilidad, Derechos de las personas interesadas: Acceder, rectificar y suprimir los datos, solicitar la portabilidad de los mismos, oponerse altratamiento y solicitar la limitación de éste, Procedencia de los datos: El Propio interesado, Información Adicional: Puede consultarse la información adicional y detallada sobre protección de datos Aquí.

© 2026 Medimar Eiendom · All rights reserved · Legal athugið Privacy Cookies Web Map

Design and CRM: Mediaelx

Gera fyrirspurn WhatsApp