€2.850.000
€2.850.000
Faire une enquête Contact

Villa · Nouvelle Construction Alicante - Costa Blanca · Benissa

€2.850.000
€2.850.000
Faire une enquête Contact

Les caractéristiques

Caractéristiques supplémentaires

Chambres: 4
Salles de bain: 3
Construit: 342m2
Intrigue: 800m2
Piscine: Oui
Près d'une ligne de bus
Gym
Under-Build / Basement
Parking - Space
Beach: 150 Meters
Terrace: 157 Msq.
Near Commercial Center
Stockage / Trastero
Toilettes : 1
Gated
Solarium: Yes
Location: Coastal, Urbanisation
Private Pool
Garden
Views: Sea
Near Schools
Useable Build Space: 290 Msq.
Double Bedrooms: 4
Number of Parking Spaces: 2
Près des arbres
Faire une enquête

La description

Villa contemporaine avec vue panoramique sur la mer à La Fustera, Benissa Costa

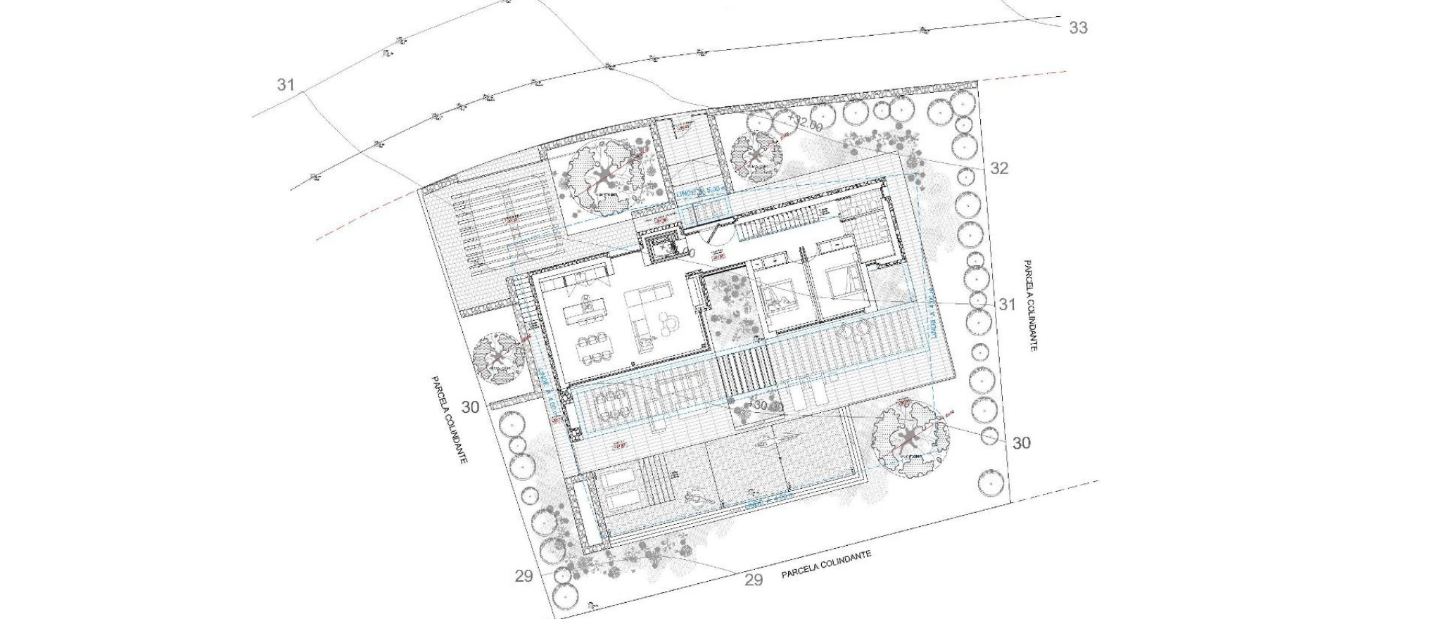
Cette villa exclusive de construction récente, conçue par un architecte de renom et développée par un promoteur local ayant plus de 20 ans d'expérience, est située sur un terrain de 800 m² à quelques pas de la plage de La Fustera.

Alliant la chaleur méditerranéenne à l'élégance contemporaine, l'architecture combine la pierre naturelle, le bois et des tons neutres doux, s'intégrant parfaitement au paysage côtier.

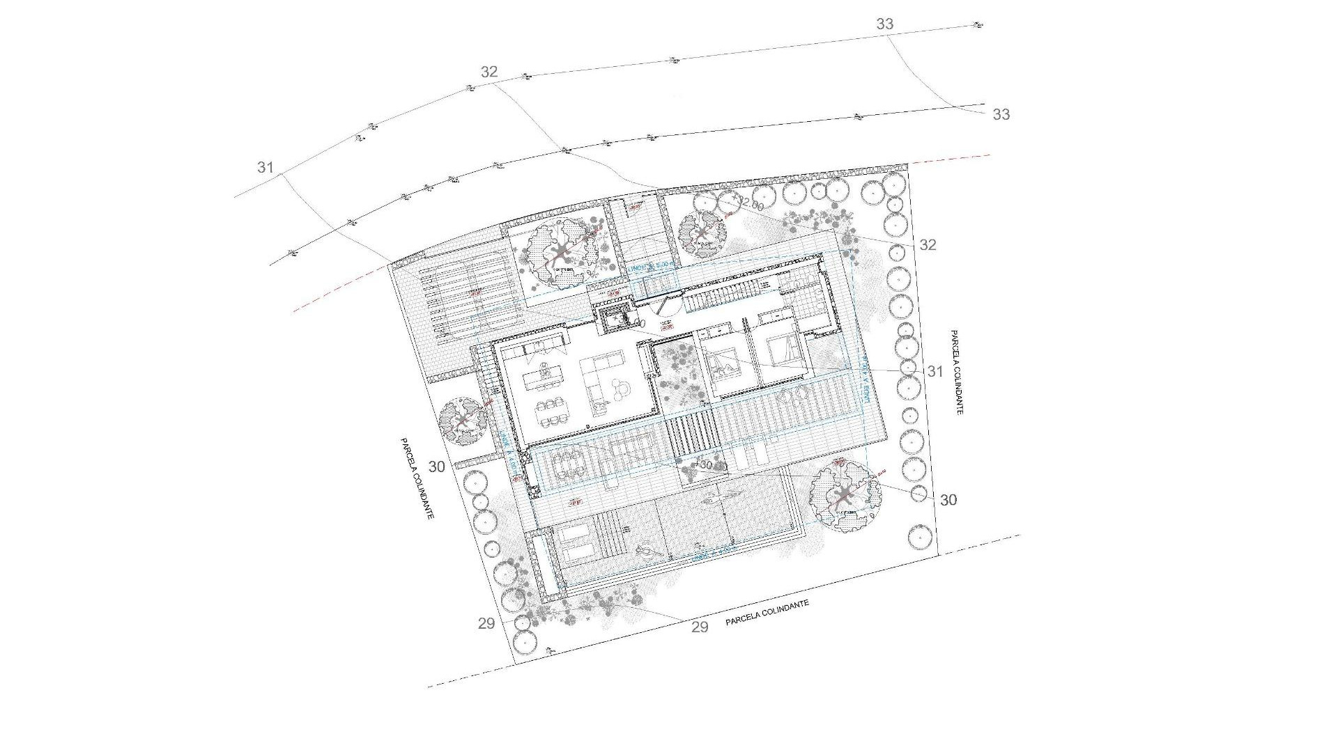
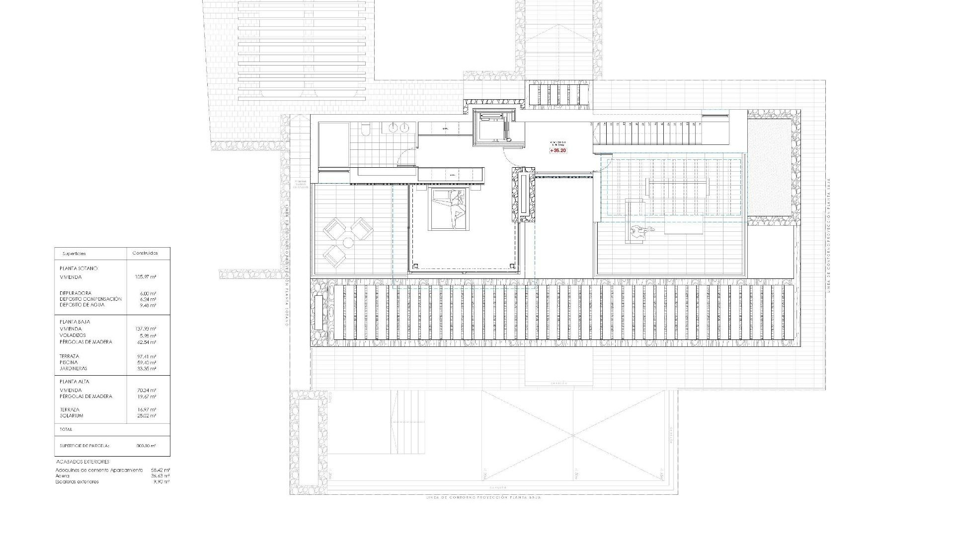
Avec une surface totale de 716 m² répartis sur trois niveaux - sous-sol, rez-de-chaussée et premier étage - la villa offre un équilibre parfait entre fonctionnalité, design et confort.

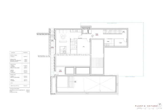
Sous-sol
Le sous-sol de 105,97 m² est conçu à la fois pour être pratique et pour les loisirs. Il comprend une salle de sport entièrement équipée, une buanderie et des espaces techniques, avec la possibilité d'adapter des espaces supplémentaires pour en faire une cave à vin, un cinéma ou une salle polyvalente. Ce niveau abrite également le système de filtration de la piscine et les réservoirs d'eau, assurant une gestion efficace de toutes les installations techniques.

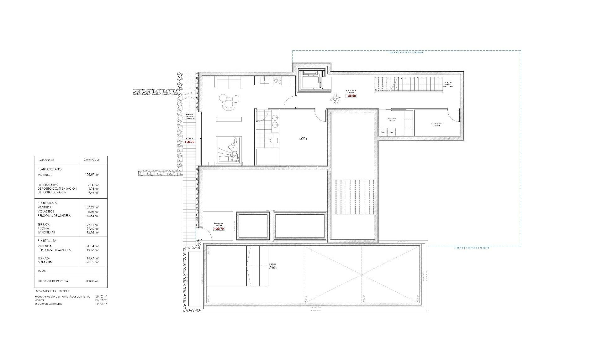
Rez-de-chaussée
Le niveau principal, d'une superficie de 137,93 m², se déploie dans un espace ouvert et lumineux qui capture l'essence même de la vie méditerranéenne. Le salon spacieux, la salle à manger et la cuisine s'ouvrent par de grandes baies vitrées sur la terrasse principale et la piscine à débordement, offrant une vue panoramique incroyable sur la mer qui définit le caractère de cette maison.
Deux chambres doubles, une salle de bain complète et des toilettes pour invités complètent cet étage, offrant confort et fonctionnalité. À l'extérieur, une pergola en bois ombrage le salon et la salle à manger extérieurs, entourés de jardins luxuriants, de terrasses ensoleillées et d'une piscine à débordement de 59,40 m² qui se confond visuellement avec la mer.

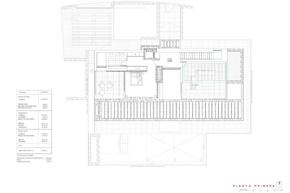
Premier étage
Le niveau supérieur, d'une superficie de 70,19 m², est réservé à la suite parentale, un refuge privé comprenant un dressing, une salle de bains attenante et une grande terrasse privée offrant une vue imprenable sur la mer Méditerranée. Une deuxième chambre ou un espace bureau complète cet étage, qui donne également accès à un solarium de 25,02 m², idéal pour se détendre au soleil et profiter de la sérénité des environs.

Extérieur et emplacement
Située dans une rue résidentielle calme entourée de villas modernes, cette propriété bénéficie d'un emplacement exceptionnel à seulement 3 minutes à pied de la plage de La Fustera (150 m), du Mandala Beach Bar & Restaurant et des commodités essentielles telles que les supermarchés et les services locaux.

Conçue en mettant l'accent sur la lumière, l'espace et la fluidité entre l'intérieur et l'extérieur, cette villa incarne le style de vie méditerranéen moderne : élégant, détendu et en parfaite harmonie avec ses spectaculaires vues panoramiques sur la mer.

Assurez-vous la villa de vos rêves à La Fustera, Benissa Costa, et adoptez le style de vie méditerranéen ultime avec des vues imprenables sur la mer et un confort inégalé.

Emplacement

Contactez nous Faire une enquête

Responsable del tratamiento: Mediaterrean y Mar Eindom, SL, Finalidad del tratamiento: Gestión y control de los servicios ofrecidos a través de la página Web de Servicios inmobiliarios, Envío de información a traves de newsletter y otros, Legitimación: Por consentimiento, Destinatarios: No se cederan los datos, salvo para elaborar contabilidad, Derechos de las personas interesadas: Acceder, rectificar y suprimir los datos, solicitar la portabilidad de los mismos, oponerse altratamiento y solicitar la limitación de éste, Procedencia de los datos: El Propio interesado, Información Adicional: Puede consultarse la información adicional y detallada sobre protección de datos Aquí.

© 2026 Medimar Eiendom · All rights reserved · Mentions légales Intimité Cookies Plan du site

Design et CRM: Mediaelx

Faire une enquête WhatsApp