Виллы · Новостройки Alicante - Costa Blanca · Benissa

Характеристики

Дополнительные возможности

спальни: 4
В ванных комнатах: 3
построен: 342m2
участок: 800m2
Бассейн: да
Gated
Solarium: Yes
Location: Coastal, Urbanisation
Private Pool
Garden
Views: Sea
Near Schools
Useable Build Space: 290 Msq.
Double Bedrooms: 4
Number of Parking Spaces: 2
Рядом с деревьями
Рядом с автобусным маршрутом
Gym
Under-Build / Basement
Parking - Space
Beach: 150 Meters
Terrace: 157 Msq.
Near Commercial Center
Хранение / Трастеро
Туалет: 1
Делать запрос

Описание

Современная вилла с панорамным видом на море в Ла-Фустера, Бенисса-Коста

Эта эксклюзивная вилла новой постройки, спроектированная известным архитектором и построенная местным застройщиком с более чем 20-летним опытом, расположена на участке площадью 800 м² всего в нескольких шагах от пляжа Ла-Фустера.

Сочетая в себе средиземноморское тепло и современную элегантность, архитектура виллы объединяет натуральный камень, дерево и мягкие нейтральные тона, гармонично вписываясь в прибрежный ландшафт.

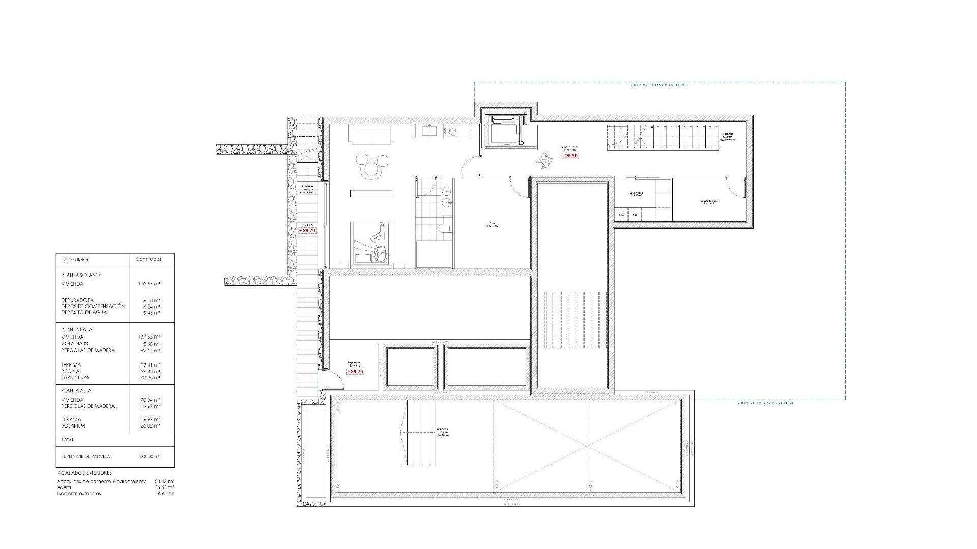
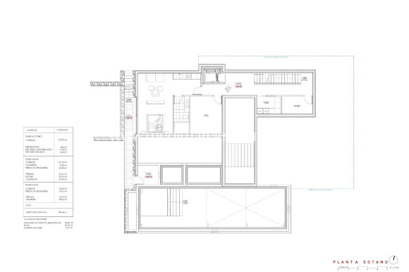
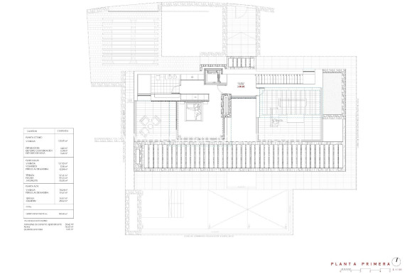
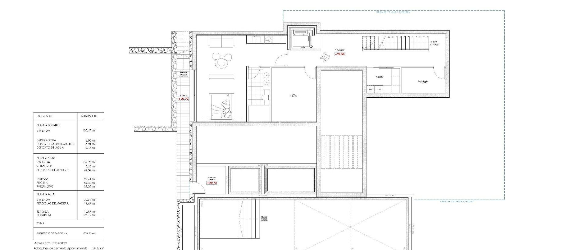
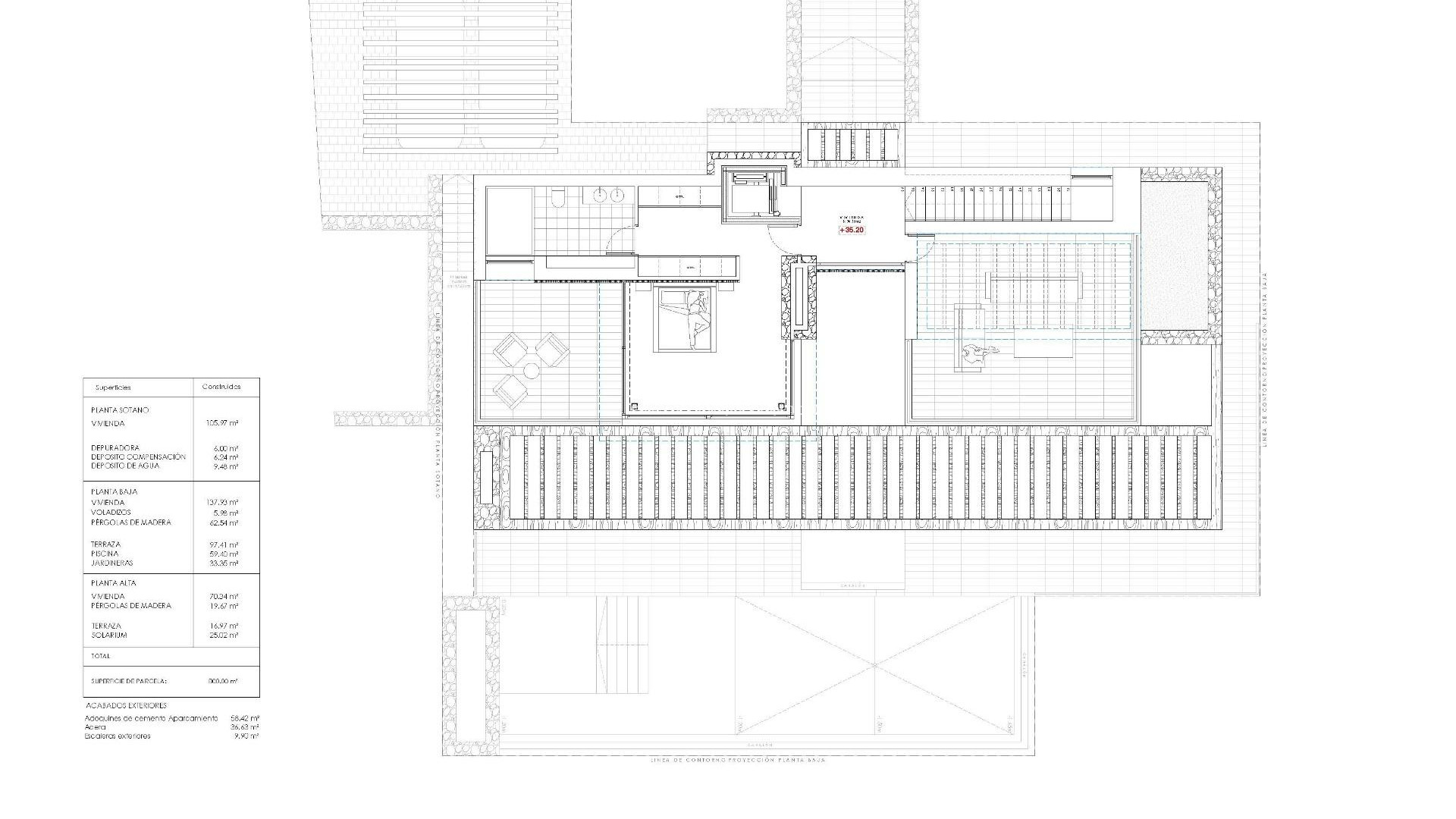
Общая площадь виллы составляет 716 м², распределенных на три уровня — подвал, первый этаж и второй этаж — и обеспечивает идеальный баланс между функциональностью, дизайном и комфортом.

Подвал
Нижний этаж площадью 105,97 м² спроектирован с учетом как практичности, так и досуга. Он включает в себя полностью оборудованный тренажерный зал, прачечную и технические помещения, с возможностью адаптации дополнительных пространств под винный погреб, кинотеатр или многофункциональный зал. На этом уровне также размещены система фильтрации бассейна и резервуары для воды, что обеспечивает эффективное управление всеми техническими установками.

Первый этаж
Основной уровень площадью 137,93 м² представляет собой светлую открытую планировку, которая отражает суть средиземноморского стиля жизни. Просторная гостиная, столовая и кухня открываются через большие окна от пола до потолка на главную террасу и бассейн-инфинити, обрамляя невероятные панорамные виды на море, которые определяют характер этого дома.
Две спальни с двуспальными кроватями, полностью оборудованная ванная комната и гостевой туалет дополняют этот этаж, обеспечивая комфорт и функциональность. Снаружи деревянная пергола затеняет открытую гостиную и обеденную зону, окруженные пышными садами, солнечными террасами и пейзажным бассейном площадью 59,40 м², который визуально сливается с морем.

Первый этаж
Верхний уровень площадью 70,19 м² отведён под главную спальню — уединённое место с гардеробной, ванной комнатой и большой частной террасой с захватывающим видом на Средиземное море. Вторая спальня или кабинет дополняют этот этаж, который также имеет выход на солярий площадью 25,02 м², идеально подходящий для отдыха под солнцем и наслаждения спокойствием окружающей обстановки.

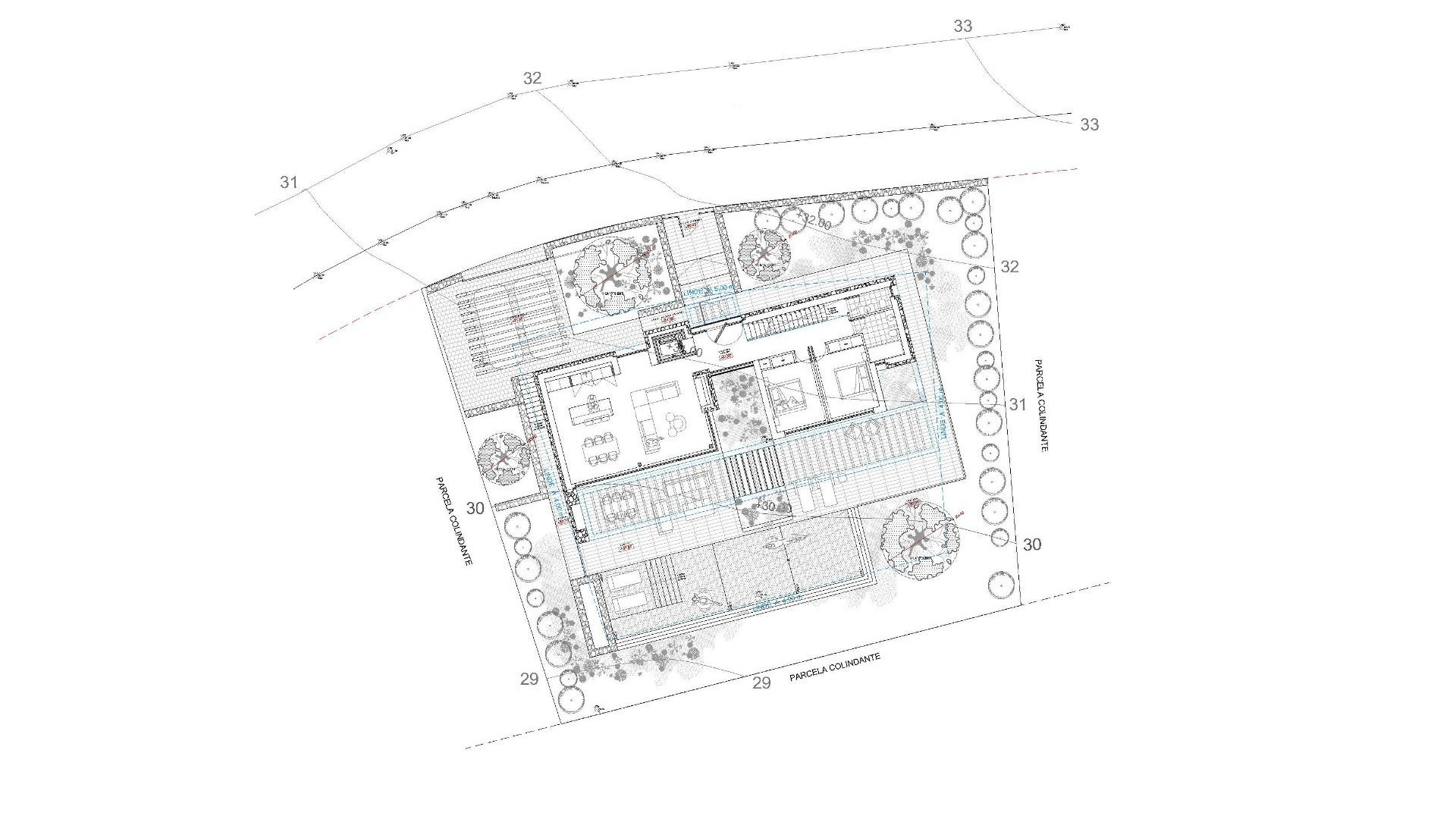
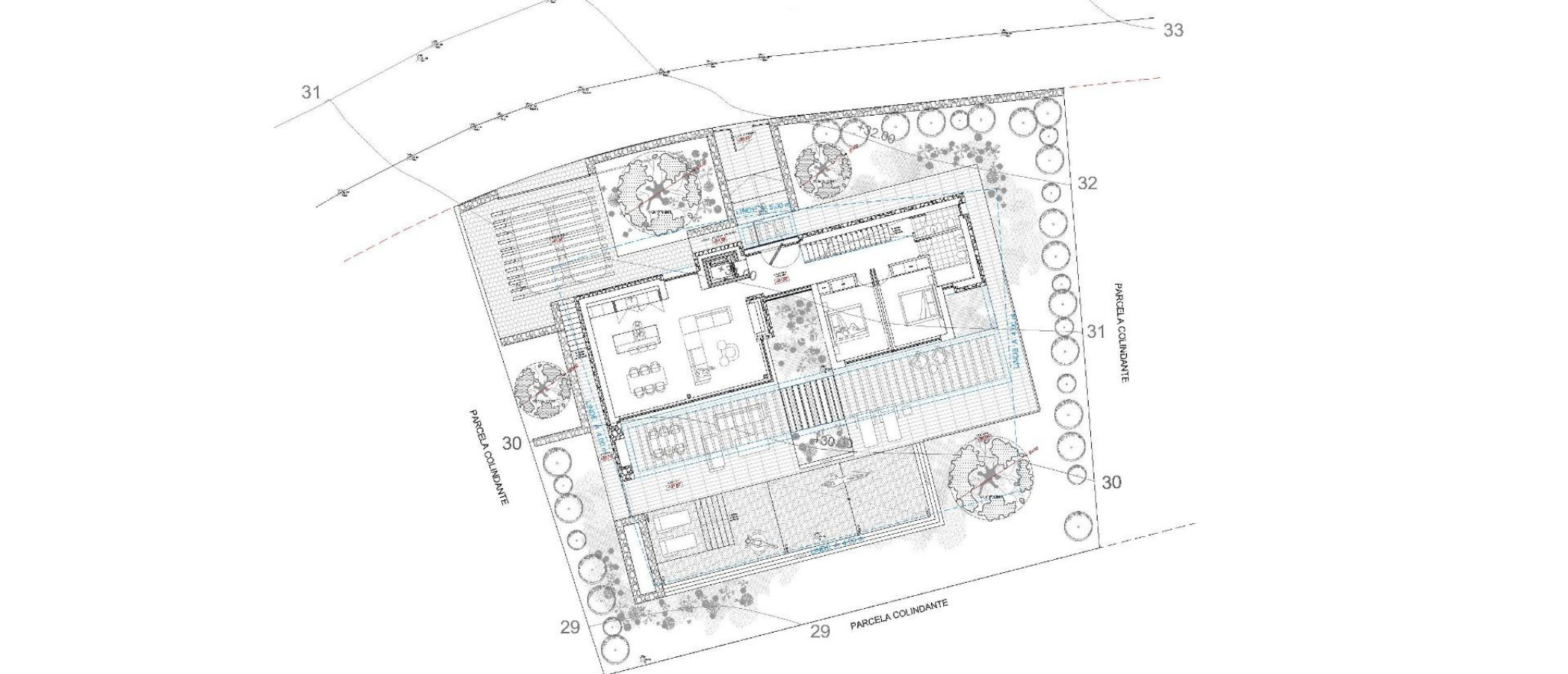
Экстерьер и расположение
Расположенная на тихой жилой улице, окруженной современными виллами, эта недвижимость имеет исключительное расположение всего в 3 минутах ходьбы от пляжа Ла Фустера (150 м), бара-ресторана Mandala Beach Bar & Restaurant и основных удобств, таких как супермаркеты и местные услуги.

Эта вилла, спроектированная с акцентом на свет, пространство и плавный переход между внутренними и внешними помещениями, воплощает современный средиземноморский стиль жизни — элегантный, расслабленный и в полной гармонии с впечатляющими панорамными видами на море.

Приобретите виллу своей мечты в Ла Фустера, Бенисса Коста, и насладитесь средиземноморским стилем жизни с захватывающими видами на море и непревзойденным комфортом.

Место нахождения

Свяжитесь с нами Делать запрос

Responsable del tratamiento: Mediaterrean y Mar Eindom, SL, Finalidad del tratamiento: Gestión y control de los servicios ofrecidos a través de la página Web de Servicios inmobiliarios, Envío de información a traves de newsletter y otros, Legitimación: Por consentimiento, Destinatarios: No se cederan los datos, salvo para elaborar contabilidad, Derechos de las personas interesadas: Acceder, rectificar y suprimir los datos, solicitar la portabilidad de los mismos, oponerse altratamiento y solicitar la limitación de éste, Procedencia de los datos: El Propio interesado, Información Adicional: Puede consultarse la información adicional y detallada sobre protección de datos Aquí.
Делать запрос WhatsApp