€2.450.000
€2.450.000
Gera fyrirspurn Viltu samband við

EINBÝLISHÚS · Nýbygging Alicante - Costa Blanca · Benissa

€2.450.000
€2.450.000
Gera fyrirspurn Viltu samband við

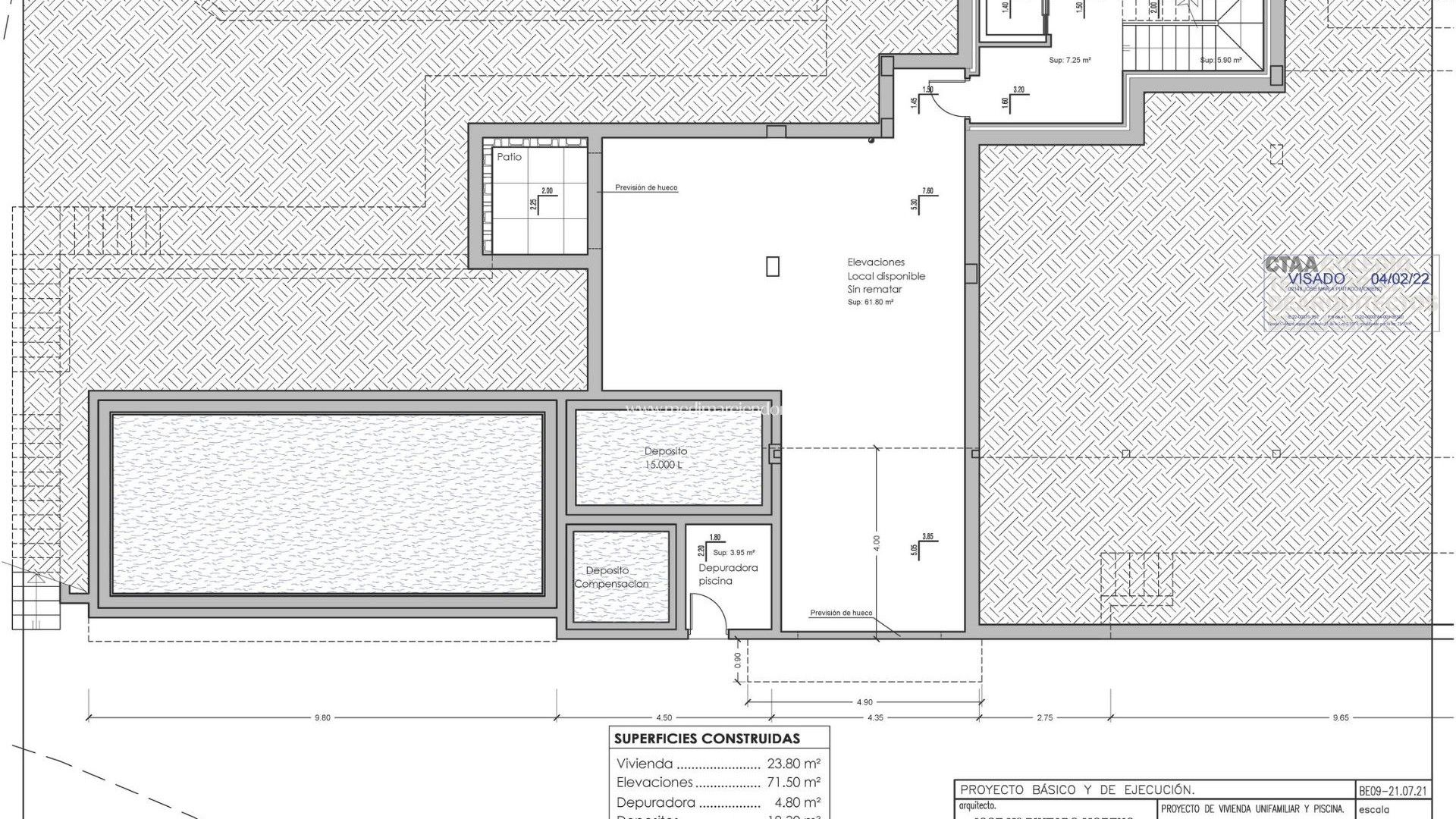
Einkenni

Önnur lögun

Svefnherbergi: 4
Baðherbergi: 5
Byggir: 436m2
Söguþráður: 1.530m2
Pool:
Gated
Lyfta/lyfta
Private Pool
Garden
Views: Sea
Near Schools
Double Bedrooms: 4
Number of Parking Spaces: 2
Lähellä puita
Location: Coastal, Mountain, Urbanisation
Under-Build / Basement
Parking - Space
Useable Build Space: 180 Msq.
Beach: 2200 Meters
Terrace: 80 Msq.
Near Commercial Center
Salerni: 1
Gera fyrirspurn

Lýsing

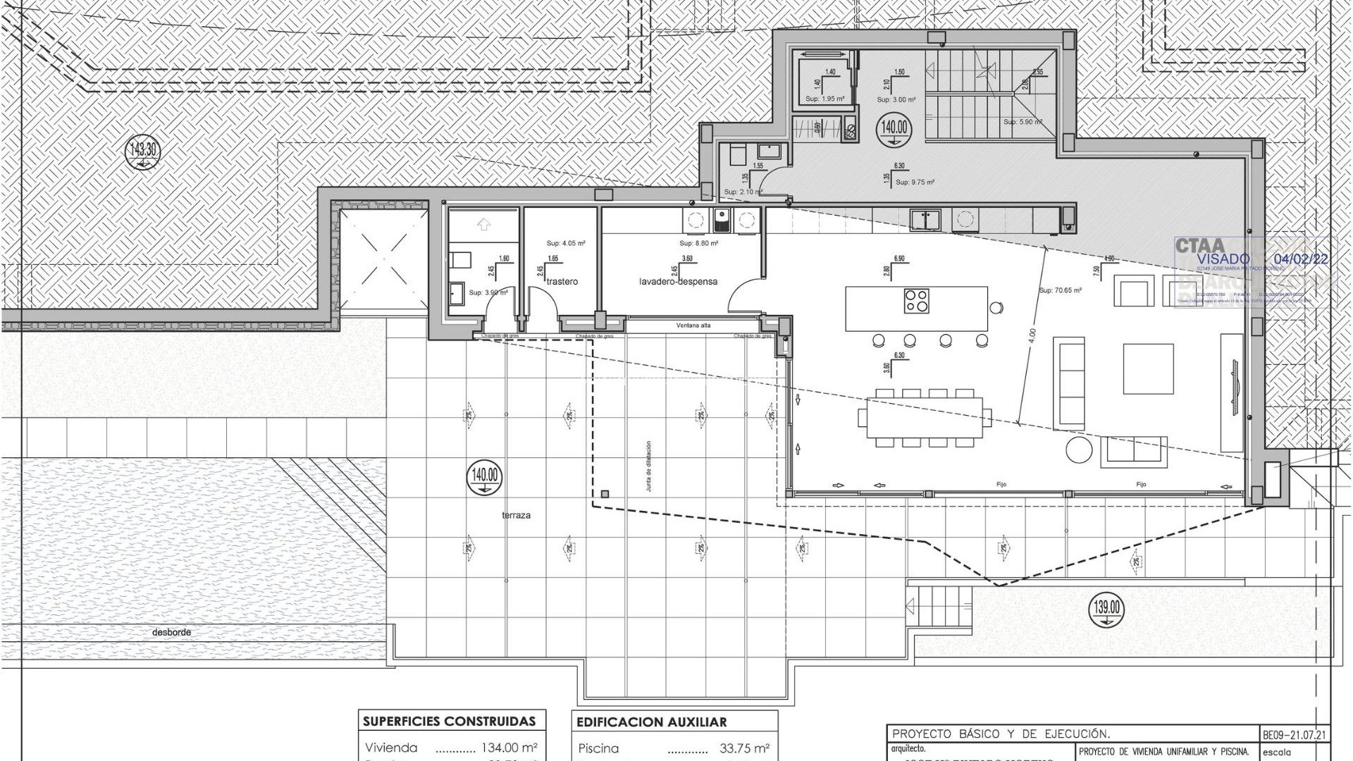
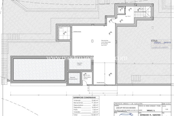
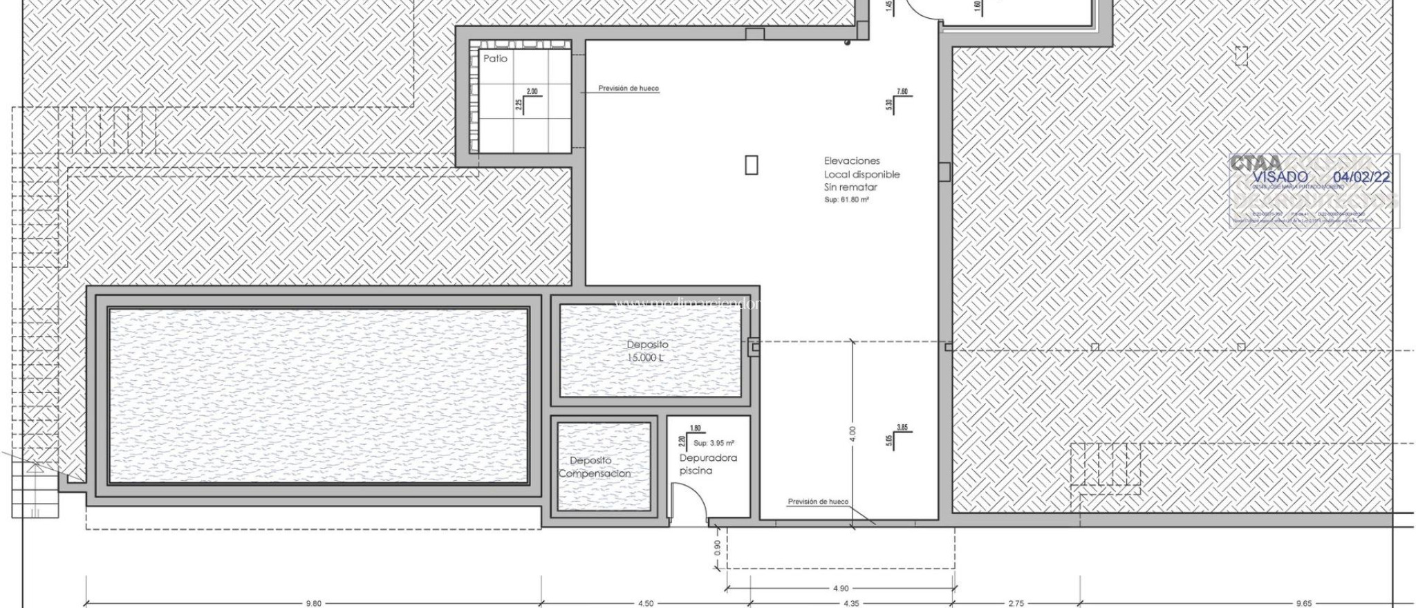
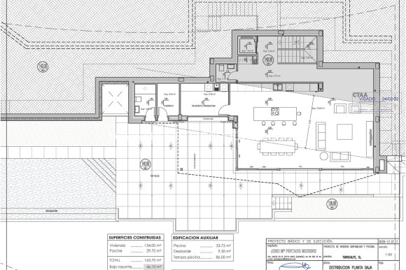
Nýbyggð lúxusvilla með útsýni yfir sjóinn í Raco de Galeno, Benissa Costa. Sérstök staðsetning á Costa Blanca. Staðsett í virta þéttbýlishverfinu Raco de Galeno í Benissa Costa, býður þessi lúxusvilla upp á fullkomna blöndu af nútímalegri hönnun og Miðjarðarhafssjarma. Eignin er aðeins 2 km frá næstu ströndum og aðeins 5 km frá AP-7 hraðbrautinni, sem veitir skjótan aðgang að Moraira, Calpe og öðrum þekktum áfangastöðum á Costa Blanca. Alicante-alþjóðaflugvöllurinn er í um 80 km fjarlægð, en virtir golfvellir eins og Club de Golf Ifach og Altea Golf eru innan 10 til 15 km. Nútímaleg byggingarlist og rúmgóð innrétting. Villan er hönnuð til að hámarka náttúrulegt ljós og stórkostlegt útsýni yfir sjóinn og er með nútímalega byggingarlist með stórum gluggum frá gólfi til lofts og óaðfinnanlegri samþættingu inni og úti. Húsið er dreift yfir margar hæðir og tengt saman með einkalyftu og býður upp á fjögur rúmgóð svefnherbergi, hvert með en-suite baðherbergi, auk auka gestasalernis. Hjónaherbergið er með beinum aðgangi að einkaverönd með stórkostlegu útsýni yfir Miðjarðarhafið. Framúrskarandi stofa og skemmtirými Opið stofu- og borðstofa er ásamt fullbúnu hönnunareldhúsi með fyrsta flokks tækjum, tilvalið bæði fyrir daglegt líf og samkomur. Rúmgóðar veröndir umkringja eignina og skapa fjölmörg slökunar- og skemmtisvæði utandyra. Lúxus útivist Hápunktur þessarar villu er óendanleikasundlaugin með útsýni yfir strandlengjuna. Rúmgóð verönd við sundlaugina býður upp á fullkomið rými til að sólbaða sig, borða utandyra eða njóta ógleymanlegra sólsetra með fjölskyldu og vinum. Fyrsta flokks eiginleikar og þægindi Þessi nýbyggða villa er með háþróaðri snjallheimilistækni, gólfhita og loftkælingu, sem tryggir þægindi allt árið um kring. Eignin býður einnig upp á neðanjarðarhæð með nægu rými fyrir viðbótarnotkun. Tilvalið sem fasteign eða frístundahús Með fullkomnu byggingarleyfi og áætlaðri lokun innan 18 mánaða frá pöntun, býður þessi villa upp á einstakt tækifæri til að eignast nútímalegt meistaraverk á einum eftirsóttasta stað á Costa Blanca. Nálægð hennar við sandströndir, heillandi strandbæi, smábátahöfn, verslunarsvæði og útivist eykur aðdráttarafl hennar bæði fyrir fasta búsetu og sem lúxusfrídvalarstað. Tryggðu þér draumavilluna þína í Raco de Galeno, Benissa Costa, og upplifðu fullkomna Miðjarðarhafslífsstíl með stórkostlegu útsýni yfir hafið og óviðjafnanlegum þægindum.

Staðsetning

Hafðu samband við okkur Gera fyrirspurn

Responsable del tratamiento: Mediaterrean y Mar Eindom, SL, Finalidad del tratamiento: Gestión y control de los servicios ofrecidos a través de la página Web de Servicios inmobiliarios, Envío de información a traves de newsletter y otros, Legitimación: Por consentimiento, Destinatarios: No se cederan los datos, salvo para elaborar contabilidad, Derechos de las personas interesadas: Acceder, rectificar y suprimir los datos, solicitar la portabilidad de los mismos, oponerse altratamiento y solicitar la limitación de éste, Procedencia de los datos: El Propio interesado, Información Adicional: Puede consultarse la información adicional y detallada sobre protección de datos Aquí.

© 2026 Medimar Eiendom · All rights reserved · Legal athugið Privacy Cookies Web Map

Design and CRM: Mediaelx

Gera fyrirspurn WhatsApp