€2.300.000
€2.300.000
Gera fyrirspurn Viltu samband við

EINBÝLISHÚS · Nýbygging Alicante - Costa Blanca · Moraira_Teulada

€2.300.000
€2.300.000
Gera fyrirspurn Viltu samband við

Einkenni

Önnur lögun

Svefnherbergi: 4
Baðherbergi: 4
Byggir: 350m2
Söguþráður: 913m2
Pool:
Location: Coastal, Mountain
Double Bedrooms: 4
Number of Parking Spaces: 2
Lähellä puita
Parking - Space
Useable Build Space: 240 Msq.
Beach: 1800 Meters
Laundry Room
Terrace: 110 Msq.
Heating: Yes
Geymsla / Geymsla
Salerni: 1
Gated
Private Pool
Garden
Views: Sea
Near Schools
Gera fyrirspurn

Lýsing

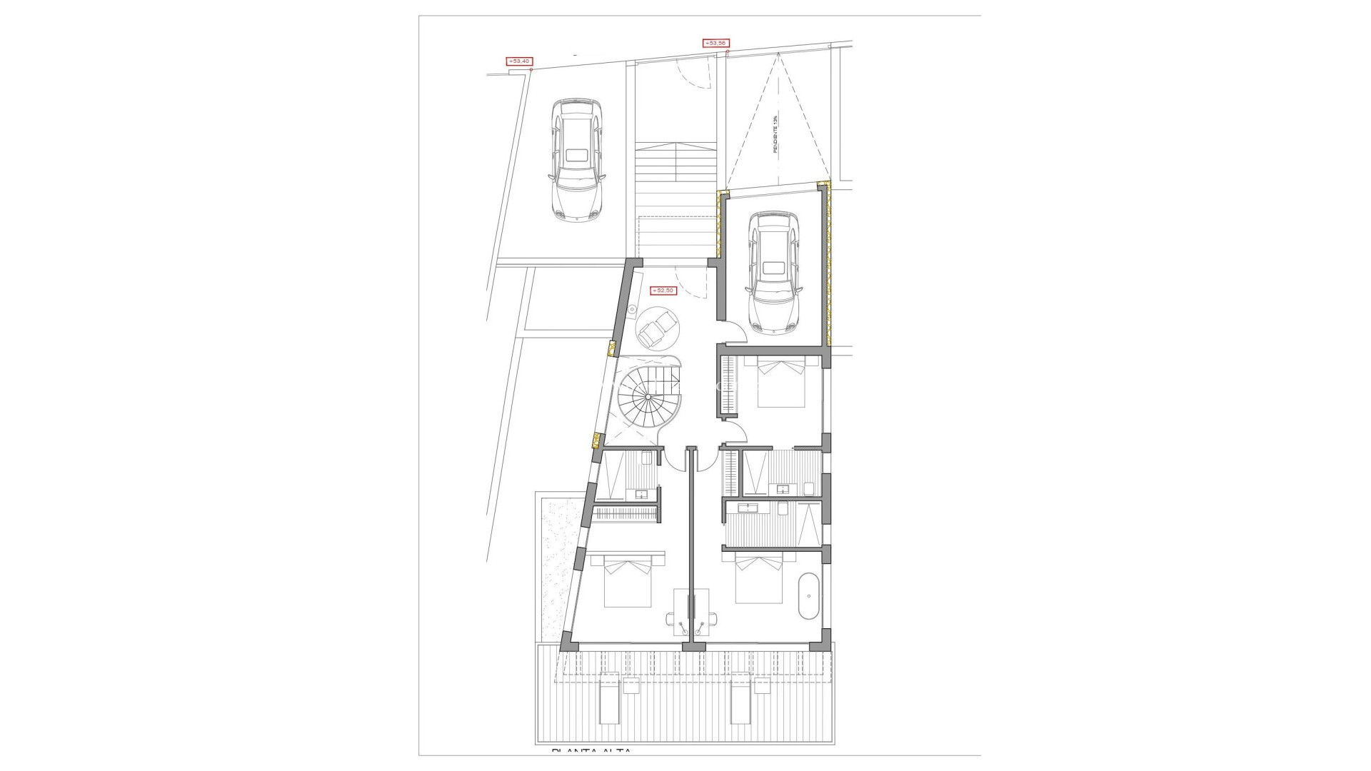
Nýbyggð lúxusvilla með sjávarútsýni í Moraira. Frábær staðsetning nálægt ströndinni og miðbænum. Þessi lúxusvilla í Moraira er staðsett á fullkomnum stað, aðeins 1,8 km frá ströndinni og líflega miðbænum, og býður upp á fullkomna jafnvægi milli næði og þæginda. Moraira, heillandi strandbær á Costa Blanca, er þekktur fyrir fínar sandstrendur, kristaltært vatn og Miðjarðarhafslífsstíl. Bærinn státar af fjölbreyttu úrvali af veitingastöðum, börum, matvöruverslunum og líflegri smábátahöfn. Alicante-alþjóðaflugvöllurinn er í um 90 km fjarlægð (1 klst. og 15 mínútur) um A7 hraðbrautina, en Valencia-flugvöllurinn er í svipaðri fjarlægð til norðurs, sem gerir aðgengi einfaldan og þægilegan. Nútímaleg hönnun með rúmgóðum innréttingum. Byggð á rúmgóðri 912 fermetra lóð, er þessi villa með samtals 350 fermetra byggingarflatarmáli á tveimur hæðum. Húsið samanstendur af 4 svefnherbergjum með sérbaðherbergjum ásamt gestasalerni, allt frágengið með hágæða efnum. Jarðhæðin er með björtu opnu stofu- og borðstofurými sem tengist óaðfinnanlega nútímalegu eldhúsi með miðlægri eyju. Þaðan opnast stórar rennihurðir beint út á veröndina, sumareldhúsið og einkasundlaugina. Svefnherbergi með sérbaðherbergi, gestasalerni, þvottahús og fjölnota herbergi fullkomna þessa hæð. Glæsileg efri hæð með sjávarútsýni Hönnuðarstigi liggur upp á efri hæðina, þar sem eru þrjú viðbótar svefnherbergi með sérbaðherbergjum, auk rúmgóðrar forstofu og sérveröndar með stórkostlegu sjávarútsýni. Eignin býður einnig upp á bílskúr, einkabílastæði, gólfhita, loftkælingu, tvöfalda glerjun og styrkta öryggishurð, sem tryggir hámarks þægindi og hugarró. Útivist Miðjarðarhafsoasis Ytra byrðið hefur verið hannað sem einkarekinn athvarf, þar sem sameinast landslagaðir garðar, bæði yfirbyggðar og opnar verönd, einkasundlaug með útisturtu og grillsvæði sem er fullkomið til skemmtunar. Suðausturáttin tryggir mikið náttúrulegt ljós allan daginn, sem gerir hvert horn villunnar bjart og velkomið. Lífsstíll í Moraira Moraira er þekkt fyrir afslappaða en samt alþjóðlega stemningu. Fjölskyldur munu elska örugga sandströndina, en náttúruunnendur geta notið stórkostlegra gönguleiða við ströndina með útsýni yfir Peñón de Ifach í Calpe, sem er aðeins 12 km í burtu. Golfunnendur munu einnig finna frábæra golfvelli innan 10 til 15 km. Draumavillan þín bíður þín. Upplifðu lúxuslíf í Moraira með þessari einstöku villu. Hafðu samband við okkur í dag til að bóka skoðun og gera þessa Miðjarðarhafsparadís að þínu nýja heimili.

Staðsetning

Hafðu samband við okkur Gera fyrirspurn

Responsable del tratamiento: Mediaterrean y Mar Eindom, SL, Finalidad del tratamiento: Gestión y control de los servicios ofrecidos a través de la página Web de Servicios inmobiliarios, Envío de información a traves de newsletter y otros, Legitimación: Por consentimiento, Destinatarios: No se cederan los datos, salvo para elaborar contabilidad, Derechos de las personas interesadas: Acceder, rectificar y suprimir los datos, solicitar la portabilidad de los mismos, oponerse altratamiento y solicitar la limitación de éste, Procedencia de los datos: El Propio interesado, Información Adicional: Puede consultarse la información adicional y detallada sobre protección de datos Aquí.

© 2026 Medimar Eiendom · All rights reserved · Legal athugið Privacy Cookies Web Map

Design and CRM: Mediaelx

Gera fyrirspurn WhatsApp