€1.890.000
€1.890.000
Göra en förfrågan Kontakta

Villa · Nybyggnad Alicante - Costa Blanca · Benissa

€1.890.000
€1.890.000
Göra en förfrågan Kontakta

Egenskaper

Sovrum: 3
Badrum: 3
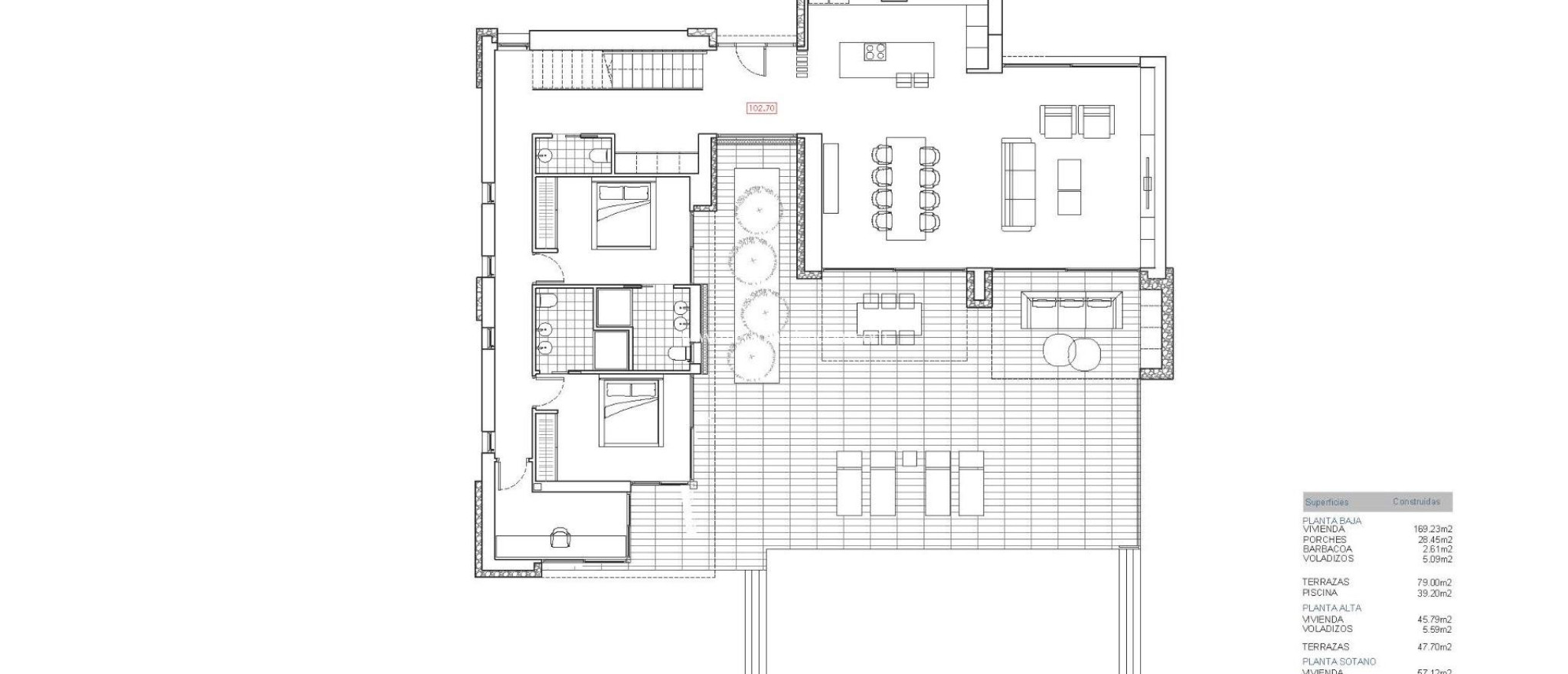
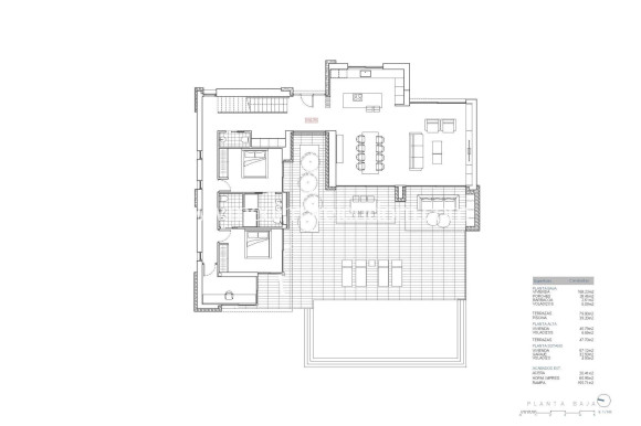
Byggd: 351m2
Tomt: 1.021m2
Slå samman: Ja
Near Schools
Double Bedrooms: 3
Number of Parking Spaces: 2
BBQ
Plats: Kustnära
Beach: 2000 Meters
Parking - Space
Useable Build Space: 214 Msq.
Laundry Room
Heating: Yes
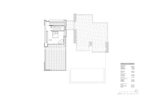
Terrace: 156 Msq.
Toalett: 1
Gated
Solarium: Yes
Private Pool
Garden
Views: Sea
Göra en förfrågan

Beskrivning

Lyxig nybyggd villa med havsutsikt i San Jaime, Benissa Exklusiv bostad i ett förstklassigt läge på Costa Blanca Denna exceptionella nybyggda villa ligger i det prestigefyllda området San Jaime i Benissa och erbjuder havsutsikt, avskildhet och modern medelhavsdesign bara 2 km från stranden. Fastigheten ligger på en lugn återvändsgata och garanterar lugn och ro samtidigt som den ligger nära viktiga tjänster och fritidsfaciliteter på norra Costa Blanca. San Jaime är ett av de mest eftertraktade bostadsområdena i Benissa Costa, känt för sina eleganta villor, gröna omgivningar och närhet till golfbanor, stränder och charmiga kuststäder. Villan ligger på en generös tomt på 1021 m2 med en total byggnadsyta på 351 m2 och är för närvarande under uppbyggnad med strukturen färdigställd. Genomtänkt design i tre våningar Denna moderna villa är fördelad på tre noggrant planerade våningar, som kombinerar funktionalitet med raffinerad estetik. Entréplanet har ett privat garage, tvättstuga och teknikrum, vilket säkerställer att praktiska utrymmen diskret integreras i den övergripande designen. På huvudvåningen ansluter det öppna vardagsrummet och matrummet sömlöst till ett fullt utrustat kök, vilket skapar en ljus och välkomnande atmosfär som är idealisk för vardagsliv och underhållning. Denna våning har också två rymliga sovrum, båda med eget badrum. Uteplatsen och den privata poolen utökar boytan och erbjuder en idealisk miljö för att koppla av, äta och njuta av det medelhavsklimatet med vacker havsutsikt. Övre våningen är reserverad för mastersviten, komplett med eget badrum och direkt tillgång till en stor öppen terrass där du kan njuta av panoramautsikt och fridfulla solnedgångar. Högklassiga specifikationer och modern komfort Villan levereras med högkvalitativa ytbehandlingar och avancerade system för att säkerställa maximal komfort och effektivitet, inklusive: Fullt utrustat kök med vitvaror Designade badrum med möbler Elektriska persienner Videointercom och larmsystem Aerotermiskt system för varmvatten och golvvärme Fullt installerad luftkonditionering Utmärkt läge nära golf, stränder och service Fastigheten ligger intill Club de Golf Ifach och nära den populära stormarknaden Pepe La Sal. Kusten och vikarna i Benissa Costa ligger bara 2 km bort. Avstånd till viktiga sevärdheter Strand 2 km Moraira 5 km Calpe 8 km Club de Golf Ifach 0,5 km Alicante flygplats 80 km Valencia flygplats 110 km Säkra din drömvilla i Benissa Costa Denna enastående villa kombinerar modern arkitektur, havsutsikt och ett privilegierat läge i San Jaime. Kontakta oss idag för mer information eller för att boka en privat visning av denna exklusiva nybyggda fastighet i Benissa.

Plats

Kontakta oss Göra en förfrågan

Responsable del tratamiento: Mediaterrean y Mar Eindom, SL, Finalidad del tratamiento: Gestión y control de los servicios ofrecidos a través de la página Web de Servicios inmobiliarios, Envío de información a traves de newsletter y otros, Legitimación: Por consentimiento, Destinatarios: No se cederan los datos, salvo para elaborar contabilidad, Derechos de las personas interesadas: Acceder, rectificar y suprimir los datos, solicitar la portabilidad de los mismos, oponerse altratamiento y solicitar la limitación de éste, Procedencia de los datos: El Propio interesado, Información Adicional: Puede consultarse la información adicional y detallada sobre protección de datos Aquí.

© 2026 Medimar Eiendom · All rights reserved · Juridisk anteckning Privatliv Cookies Web karta

Design and CRM: Mediaelx

Göra en förfrågan WhatsApp