€1.890.000
€1.890.000
Gera fyrirspurn Viltu samband við

EINBÝLISHÚS · Nýbygging Alicante - Costa Blanca · Benissa

€1.890.000
€1.890.000
Gera fyrirspurn Viltu samband við

Einkenni

Önnur lögun

Svefnherbergi: 3
Baðherbergi: 3
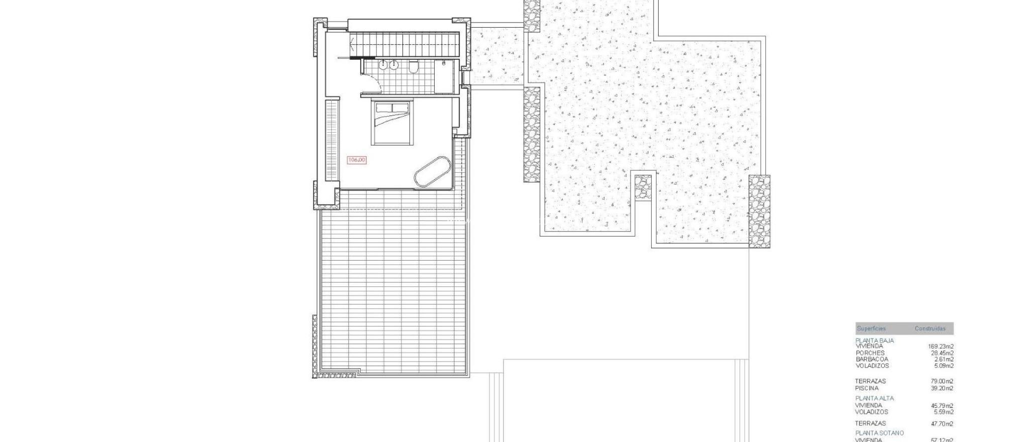
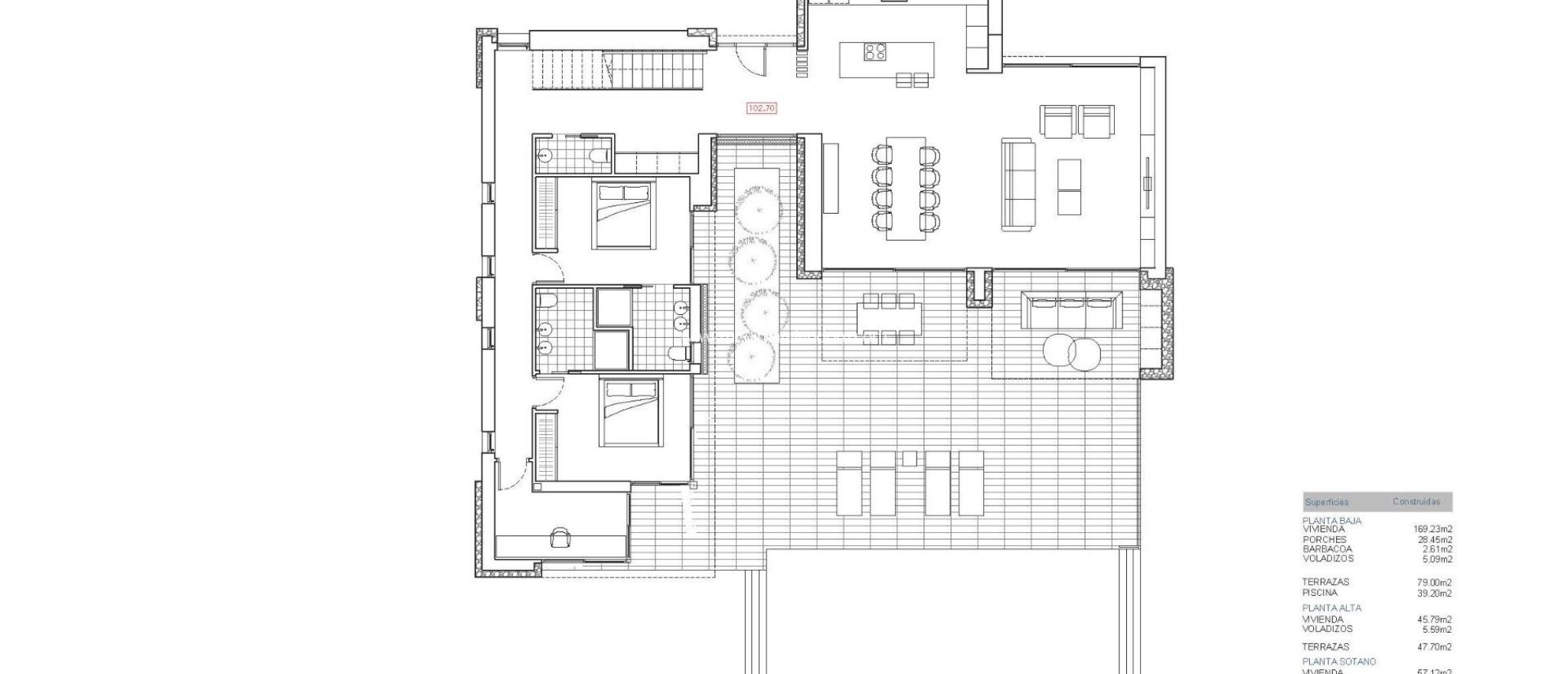
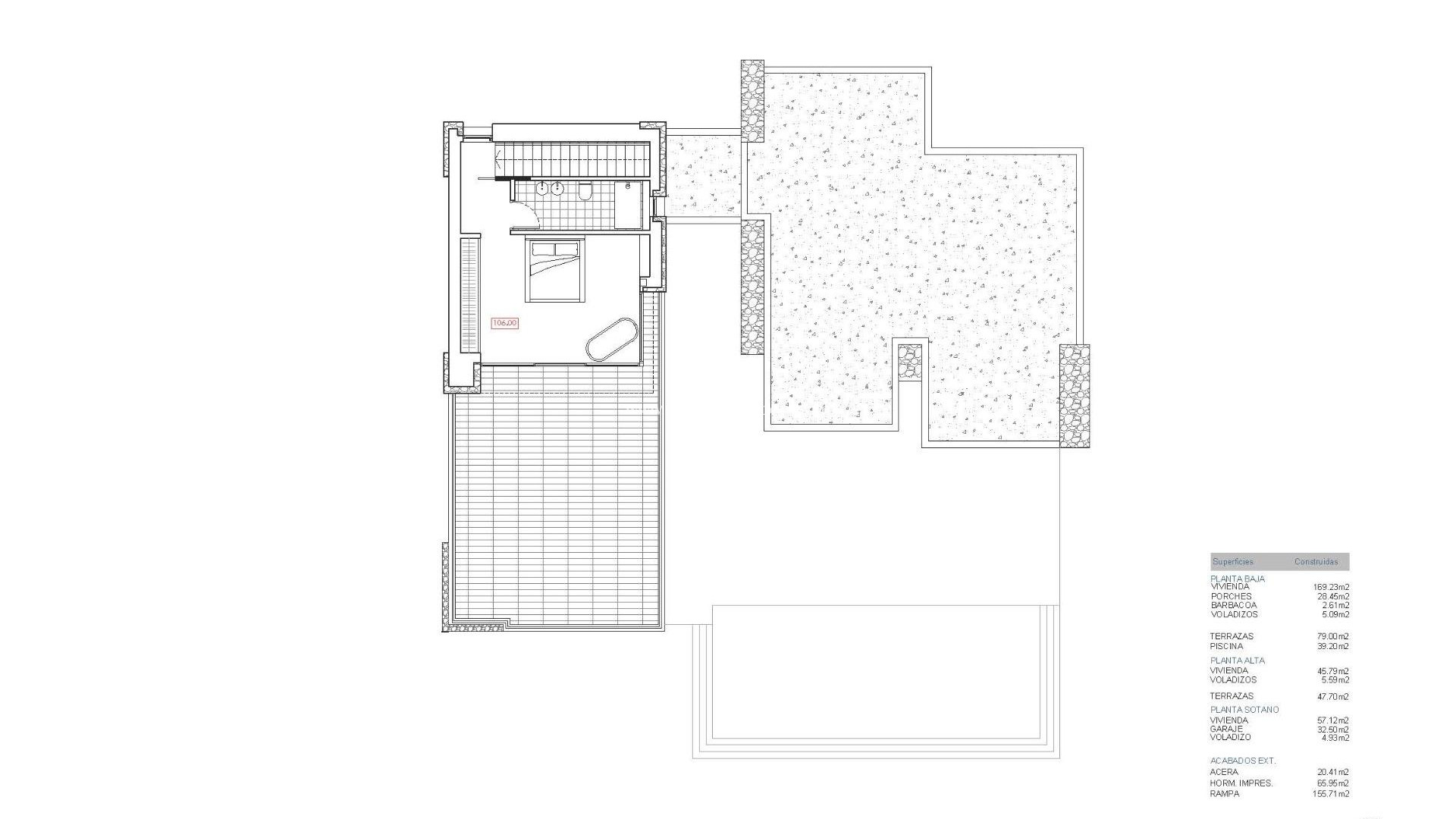
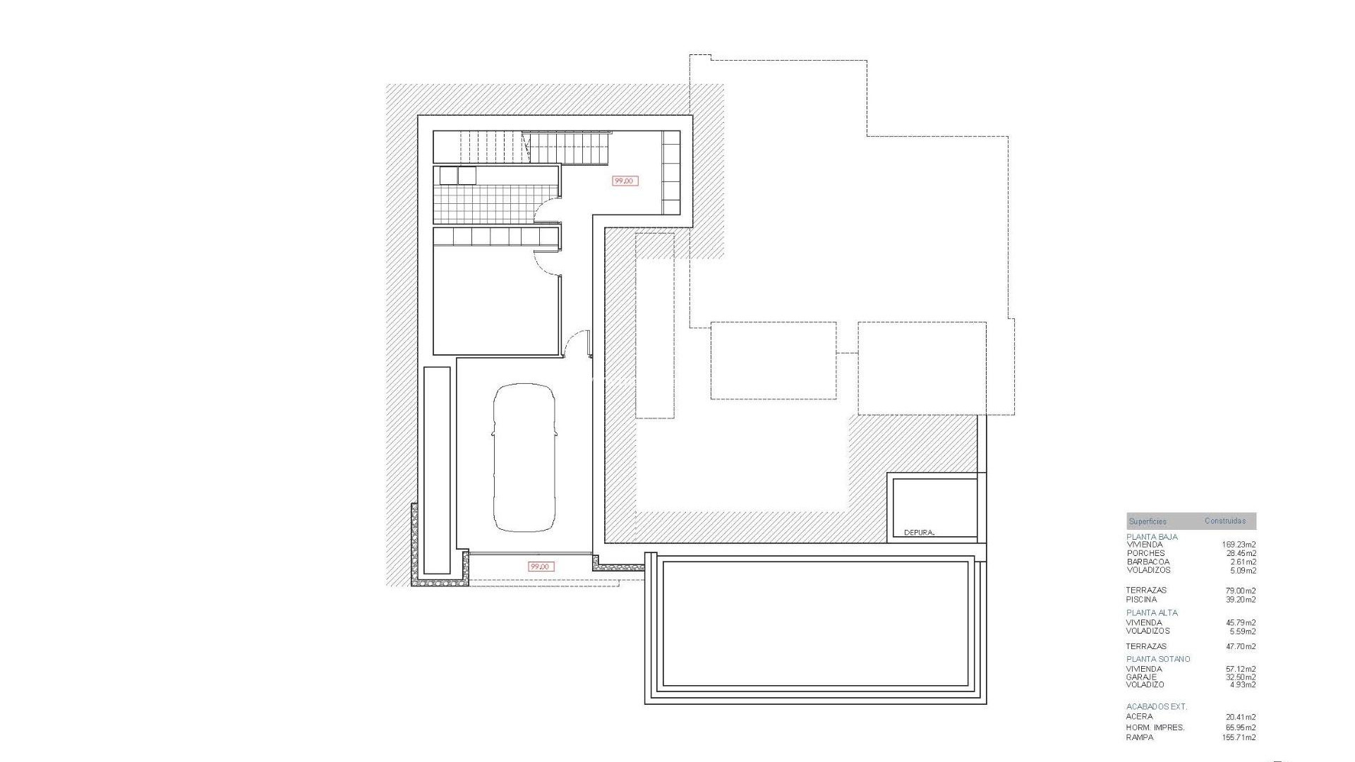
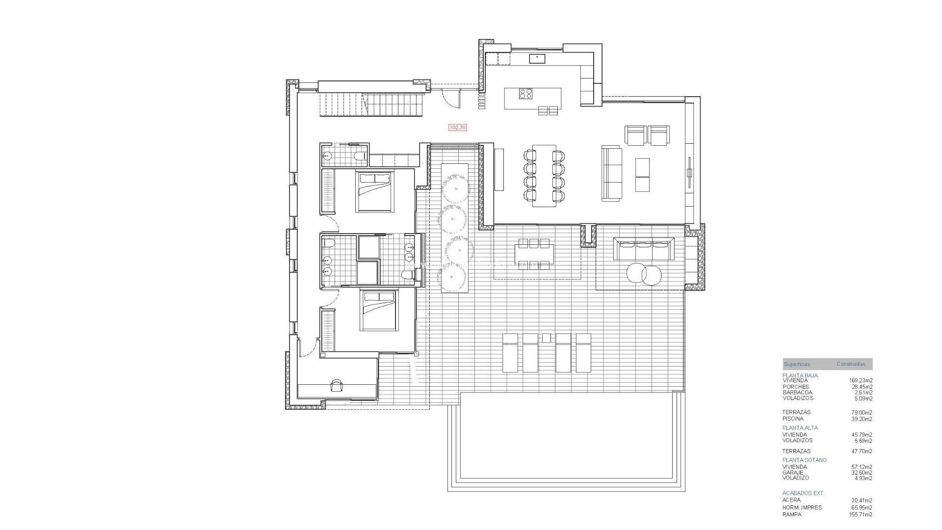
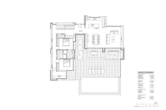
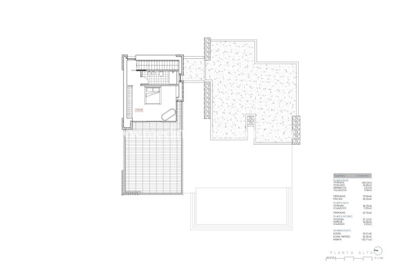
Byggir: 351m2
Söguþráður: 1.021m2
Pool:
Gated
Solarium: Yes
Private Pool
Garden
Views: Sea
Near Schools
Double Bedrooms: 3
Number of Parking Spaces: 2
BBQ
Location: Coastal
Beach: 2000 Meters
Parking - Space
Useable Build Space: 214 Msq.
Laundry Room
Heating: Yes
Terrace: 156 Msq.
Salerni: 1
Gera fyrirspurn

Lýsing

Nýbyggð lúxusvilla með sjávarútsýni í San Jaime, Benissa. Sérstök íbúð á frábærum stað á Costa Blanca. Staðsett á virta San Jaime svæðinu í Benissa, býður þessi einstaka nýbyggða villa upp á sjávarútsýni, næði og nútímalega Miðjarðarhafshönnun, aðeins 2 km frá ströndinni. Eignin er staðsett í rólegri botnlangagötu og tryggir ró en er samt nálægt nauðsynlegri þjónustu og afþreyingaraðstöðu á norðurhluta Costa Blanca. San Jaime er eitt eftirsóttasta íbúðasvæðið á Benissa Costa, þekkt fyrir glæsilegar villur, grænt umhverfi og nálægð við golfvelli, strendur og heillandi strandbæi. Villan stendur á rúmgóðri 1021 fermetra lóð með samtals 351 fermetra byggingarflatarmáli og er nú í byggingu og byggingin fullgerð. Hugvitsamlega hönnuð á þremur hæðum. Þessi nútímalega villa er dreift á þrjár vandlega skipulögðar hæðir sem sameina virkni og fágaða fagurfræði. Aðalhæðin sameinar einkabílskúr, þvottahús og tæknirými, sem tryggir að hagnýt rými séu felld inn í heildarhönnunina á nærfærinn hátt. Á aðalhæðinni tengist opin stofa og borðstofa óaðfinnanlega við fullbúið eldhús og skapar bjart og notalegt andrúmsloft sem er tilvalið fyrir daglegt líf og skemmtanir. Þessi hæð býður einnig upp á tvö rúmgóð svefnherbergi, hvort með sérbaðherbergi. Útiveröndin og einkasundlaugin stækka stofuna og bjóða upp á kjörinn stað til að slaka á, borða og njóta Miðjarðarhafsloftslagsins með fallegu útsýni yfir hafið. Efri hæðin er tileinkuð hjónaherberginu, með sérbaðherbergi og beinum aðgangi að stórri, opinni verönd þar sem hægt er að njóta útsýnis og friðsælla sólseturs. Fyrsta flokks eiginleikar og nútímaleg þægindi Villan er afhent með hágæða frágangi og fullkomnum kerfum til að tryggja hámarks þægindi og skilvirkni, þar á meðal: Fullbúið eldhús með tækjum Hönnuð baðherbergi með húsgögnum Rafmagnsgardínur Myndsímakerfi og viðvörunarkerfi Hitakerfi fyrir heitt vatn og gólfhita Fullbúið loftkæling Frábær staðsetning nálægt golfvelli, ströndum og þjónustu Eignin er staðsett við hliðina á Club de Golf Ifach og nálægt vinsæla matvöruversluninni Pepe La Sal. Strandlengjan og víkurnar í Benissa Costa eru aðeins 2 km í burtu. Fjarlægðir að helstu áhugaverðum stöðum: Strönd 2 km, Moraira 5 km, Calpe 8 km, Golfklúbbur Ifach 0,5 km, Alicante flugvöllur 80 km, Valencia flugvöllur 110 km. Tryggðu þér draumavilluna þína í Benissa Costa. Þessi einstaka villa sameinar nútímalega byggingarlist, útsýni yfir sjóinn og frábæra staðsetningu í San Jaime. Hafðu samband við okkur í dag til að fá frekari upplýsingar eða til að bóka einkaskoðun á þessari einstöku nýbyggðu eign í Benissa.

Staðsetning

Hafðu samband við okkur Gera fyrirspurn

Responsable del tratamiento: Mediaterrean y Mar Eindom, SL, Finalidad del tratamiento: Gestión y control de los servicios ofrecidos a través de la página Web de Servicios inmobiliarios, Envío de información a traves de newsletter y otros, Legitimación: Por consentimiento, Destinatarios: No se cederan los datos, salvo para elaborar contabilidad, Derechos de las personas interesadas: Acceder, rectificar y suprimir los datos, solicitar la portabilidad de los mismos, oponerse altratamiento y solicitar la limitación de éste, Procedencia de los datos: El Propio interesado, Información Adicional: Puede consultarse la información adicional y detallada sobre protección de datos Aquí.

© 2026 Medimar Eiendom · All rights reserved · Legal athugið Privacy Cookies Web Map

Design and CRM: Mediaelx

Gera fyrirspurn WhatsApp