€1.890.000
€1.890.000
Make an enquiry Contact

Villa · New build Alicante - Costa Blanca · Benissa

€1.890.000
€1.890.000
Make an enquiry Contact

Features

Additional Features

Bedrooms: 3
Bathrooms: 3
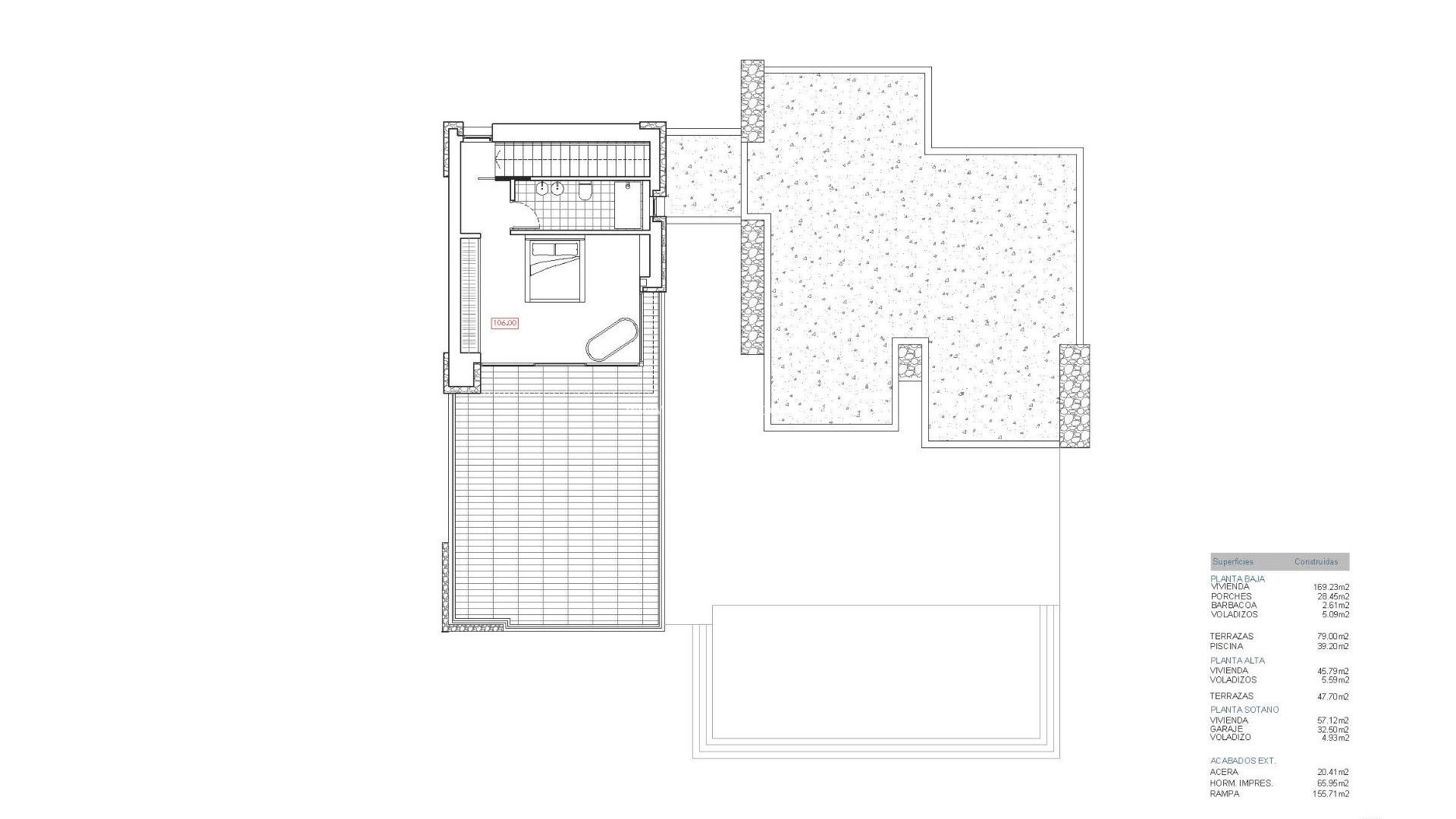
Built: 351m2
Plot: 1.021m2
Pool: Yes
Near Schools
Double Bedrooms: 3
Number of Parking Spaces: 2
BBQ
Location: Coastal
Beach: 2000 Meters
Parking - Space
Useable Build Space: 214 Msq.
Laundry Room
Heating: Yes
Terrace: 156 Msq.
Toilet: 1
Gated
Solarium: Yes
Private Pool
Garden
Views: Sea
Make an enquiry

Description

Luxury New Build Villa with Sea Views in San Jaime, Benissa Exclusive Residence in a Prime Costa Blanca Location Located in the prestigious San Jaime area of Benissa, this exceptional new build villa offers sea views, privacy and contemporary Mediterranean design just 2 km from the beach. Set on a quiet cul de sac, the property guarantees tranquility while remaining close to essential services and leisure facilities on the Northern Costa Blanca. San Jaime is one of the most sought after residential zones in Benissa Costa, known for its elegant villas, green surroundings and proximity to golf courses, beaches and charming coastal towns. The villa sits on a generous 1021 m2 plot with a total built area of 351 m2 and is currently under construction with the structure completed. Thoughtfully Designed Over Three Levels This modern villa is distributed across three carefully planned floors, combining functionality with refined aesthetics. The entrance level integrates a private garage, laundry area and technical room, ensuring that practical spaces are discreetly incorporated into the overall design. On the main floor, the open plan living and dining area connects seamlessly with a fully equipped kitchen, creating a bright and welcoming atmosphere ideal for everyday living and entertaining. This level also features two spacious bedrooms, each with its own en suite bathroom. The outdoor terrace and private swimming pool extend the living space, offering an ideal setting to relax, dine and enjoy the Mediterranean climate with beautiful sea views. The upper floor is dedicated to the master suite, complete with en suite bathroom and direct access to a large open terrace where you can enjoy panoramic views and peaceful sunsets. Premium Specifications and Modern Comfort The villa is delivered with high quality finishes and advanced systems to ensure maximum comfort and efficiency, including: Fully furnished kitchen with appliances Designer bathrooms with furniture Electric blinds Video intercom and alarm system Aerothermal system for hot water and underfloor heating Fully installed ducted air conditioning Prime Location Near Golf, Beaches and Services The property is located next to Club de Golf Ifach and close to the popular Pepe La Sal supermarket. The coastline and coves of Benissa Costa are just 2 km away. Distances to Key Points of Interest Beach 2 km Moraira 5 km Calpe 8 km Club de Golf Ifach 0.5 km Alicante Airport 80 km Valencia Airport 110 km Secure Your Dream Villa in Benissa Costa This outstanding villa combines modern architecture, sea views and a privileged location in San Jaime. Contact us today for more information or to arrange a private viewing of this exclusive new build property in Benissa.

Location

Contact us Make an enquiry

Responsable del tratamiento: Mediaterrean y Mar Eindom, SL, Finalidad del tratamiento: Gestión y control de los servicios ofrecidos a través de la página Web de Servicios inmobiliarios, Envío de información a traves de newsletter y otros, Legitimación: Por consentimiento, Destinatarios: No se cederan los datos, salvo para elaborar contabilidad, Derechos de las personas interesadas: Acceder, rectificar y suprimir los datos, solicitar la portabilidad de los mismos, oponerse altratamiento y solicitar la limitación de éste, Procedencia de los datos: El Propio interesado, Información Adicional: Puede consultarse la información adicional y detallada sobre protección de datos Aquí.

© 2026 Medimar Eiendom · All rights reserved · Legal Privacy Cookies Web map

Design and CRM: Mediaelx

Make an enquiry WhatsApp