€2.450.000
€2.450.000
Göra en förfrågan Kontakta

Villa · Nybyggnad Alicante - Costa Blanca · Benissa

€2.450.000
€2.450.000
Göra en förfrågan Kontakta

Egenskaper

Sovrum: 4
Badrum: 5
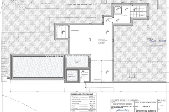
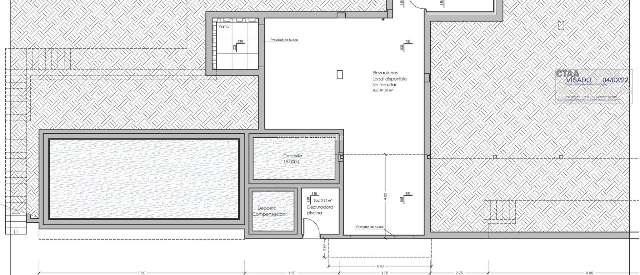
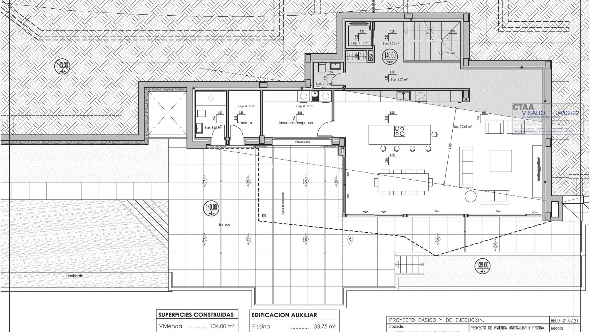
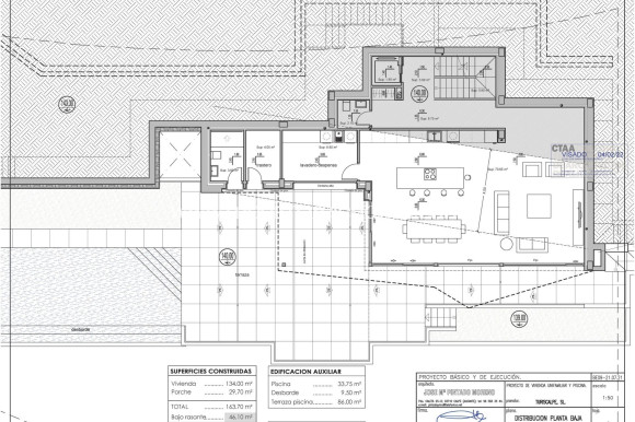
Byggd: 436m2
Tomt: 1.530m2
Slå samman: Ja
Gated
Hiss/Lift
Private Pool
Garden
Views: Sea
Near Schools
Double Bedrooms: 4
Number of Parking Spaces: 2
Nära träd
Location: Coastal, Mountain, Urbanisation
Under-Build / Basement
Parking - Space
Useable Build Space: 180 Msq.
Beach: 2200 Meters
Terrace: 80 Msq.
Near Commercial Center
Toalett: 1
Göra en förfrågan

Beskrivning

Lyxig nybyggd villa med panoramautsikt över havet i Raco de Galeno, Benissa Costa Exklusivt läge på Costa Blanca Denna lyxiga villa ligger i den prestigefyllda urbanisationen Raco de Galeno i Benissa Costa och erbjuder en perfekt kombination av modern design och medelhavscharm. Fastigheten ligger bara 2 km från närmaste stränder och endast 5 km från motorvägen AP-7, vilket ger snabb tillgång till Moraira, Calpe och andra kända destinationer på Costa Blanca. Alicante internationella flygplats ligger cirka 80 km bort, medan prestigefyllda golfbanor som Club de Golf Ifach och Altea Golf ligger inom 10 till 15 km. Modern arkitektur och rymliga interiörer Villan är designad för att maximera det naturliga ljuset och den spektakulära havsutsikten och har modern arkitektur med stora fönster från golv till tak och en sömlös integration mellan inomhus och utomhus. Huset är fördelat på flera våningar och förbundet med en privat hiss och erbjuder fyra rymliga sovrum, alla med eget badrum, plus en extra gästtoalett. Master bedroom har direkt tillgång till en privat terrass med vidsträckt utsikt över Medelhavet. Exceptionella bostads- och sällskapsutrymmen Det öppna vardagsrummet och matsalen kompletteras av ett fullt utrustat designerkök med förstklassiga vitvaror, perfekt för både vardagsliv och middagsbjudningar. Stora terrasser omger fastigheten och skapar flera utomhusområden för avkoppling och underhållning. Lyxig utomhuslivsstil Höjdpunkten i denna villa är dess infinitypool med panoramautsikt över kusten. En generös terrass vid poolen är den perfekta platsen för solbad, uteservering eller för att njuta av oförglömliga solnedgångar med familj och vänner. Premiumfunktioner och komfort Denna nybyggda villa har avancerad smart hemteknik, golvvärme och luftkonditionering, vilket garanterar komfort året runt. Fastigheten har även en källare med gott om utrymme för ytterligare användningsområden. Idealisk som permanentbostad eller semesterhus Med bygglov och förväntad färdigställande inom 18 månader efter bokning är denna villa en unik möjlighet att äga ett modernt mästerverk i ett av de mest eftertraktade lägena på Costa Blanca. Närheten till sandstränder, charmiga kuststäder, marinor, shoppingområden och utomhusaktiviteter ökar dess attraktionskraft både som permanentbostad och som exklusiv semesterbostad. Säkra din drömvilla i Raco de Galeno, Benissa Costa, och omfamna den ultimata medelhavslivsstilen med fantastisk havsutsikt och oöverträffad komfort.

Plats

Kontakta oss Göra en förfrågan

Responsable del tratamiento: Mediaterrean y Mar Eindom, SL, Finalidad del tratamiento: Gestión y control de los servicios ofrecidos a través de la página Web de Servicios inmobiliarios, Envío de información a traves de newsletter y otros, Legitimación: Por consentimiento, Destinatarios: No se cederan los datos, salvo para elaborar contabilidad, Derechos de las personas interesadas: Acceder, rectificar y suprimir los datos, solicitar la portabilidad de los mismos, oponerse altratamiento y solicitar la limitación de éste, Procedencia de los datos: El Propio interesado, Información Adicional: Puede consultarse la información adicional y detallada sobre protección de datos Aquí.

© 2026 Medimar Eiendom · All rights reserved · Juridisk anteckning Privatliv Cookies Web karta

Design and CRM: Mediaelx

Göra en förfrågan WhatsApp