€2.450.000
€2.450.000
Eine Anfrage machen Kontakt

Villa · Neubauten Alicante - Costa Blanca · Benissa

€2.450.000
€2.450.000
Eine Anfrage machen Kontakt

Charakteristik

Zusatzfunktionen

Schlafzimmer: 4
Das Badezimmer: 5
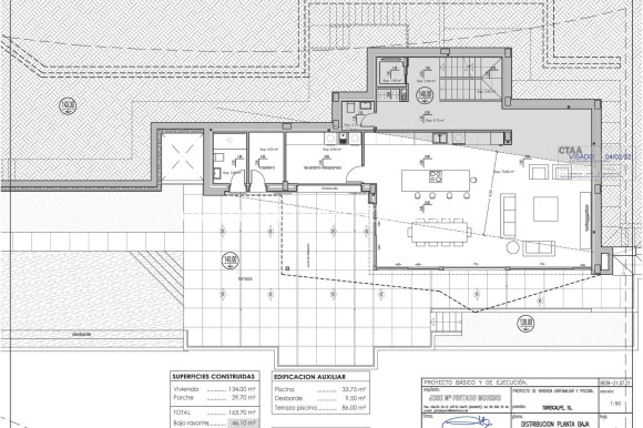
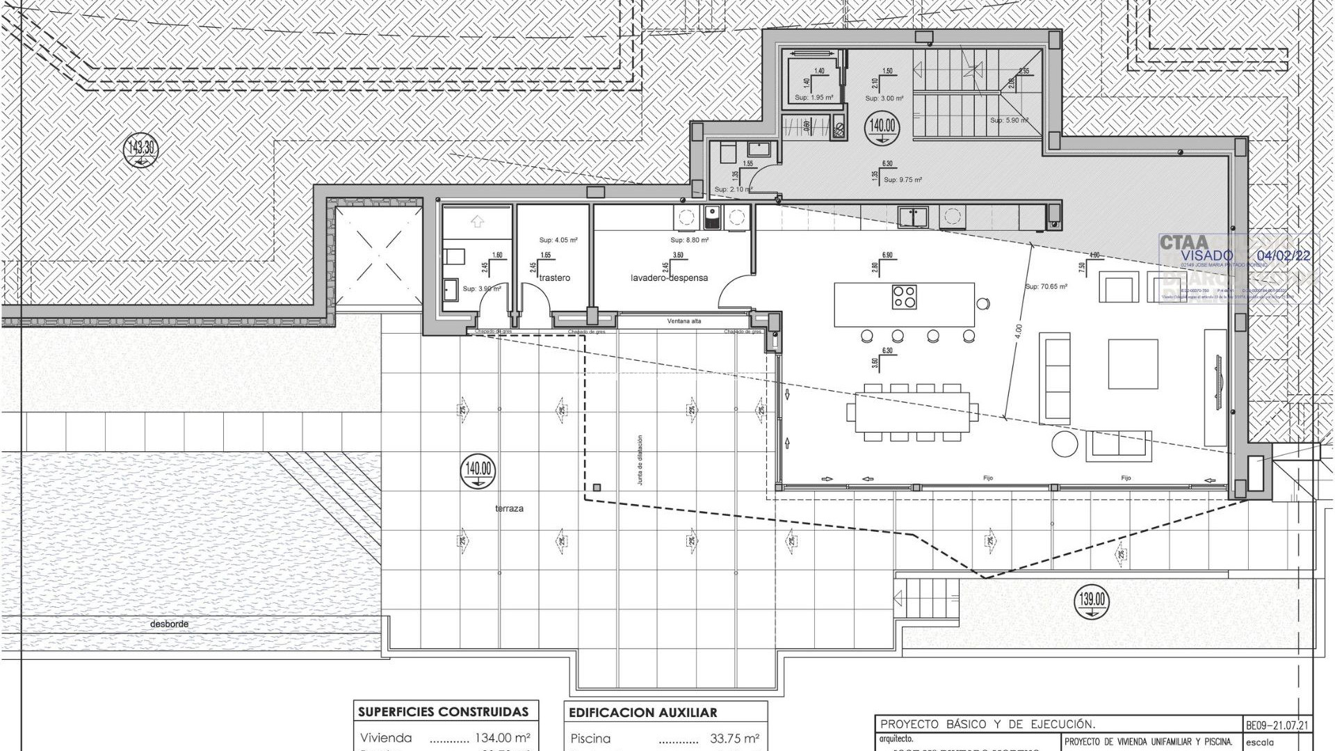
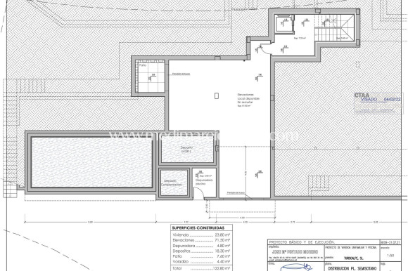
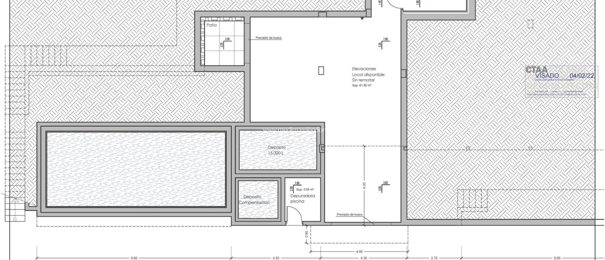
Gebaut: 436m2
Grundstück: 1.530m2
Schwimmbad: Ja
Near Commercial Center
Toilette: 1
Gated
Aufzug/Lift
Private Pool
Garden
Views: Sea
Near Schools
Double Bedrooms: 4
Number of Parking Spaces: 2
In der Nähe von Bäumen
Under-Build / Basement
Parking - Space
Useable Build Space: 180 Msq.
Beach: 2200 Meters
Terrace: 80 Msq.
Location: Mountain, Urbanisation
Eine Anfrage machen

Beschreibung

Luxuriöse Neubauvilla mit Panoramameerblick in Raco de Galeno, Benissa Costa Exklusive Lage an der Costa Blanca Diese Luxusvilla befindet sich in der prestigeträchtigen Urbanisation Raco de Galeno in Benissa Costa und bietet eine perfekte Kombination aus modernem Design und mediterranem Charme. Die Immobilie liegt nur 2 km von den nächsten Stränden und nur 5 km von der Autobahn AP-7 entfernt, sodass Moraira, Calpe und andere bekannte Reiseziele an der Costa Blanca schnell erreichbar sind. Der internationale Flughafen Alicante ist etwa 80 km entfernt, während renommierte Golfplätze wie der Club de Golf Ifach und Altea Golf innerhalb von 10 bis 15 km liegen. Moderne Architektur und großzügige Innenräume Die Villa wurde so konzipiert, dass sie maximalen Lichteinfall und einen spektakulären Meerblick bietet. Sie verfügt über eine zeitgenössische Architektur mit großen raumhohen Fenstern und einer nahtlosen Integration von Innen- und Außenbereich. Das Haus erstreckt sich über mehrere Ebenen und ist durch einen privaten Aufzug verbunden. Es bietet vier geräumige Schlafzimmer, jedes mit eigenem Bad, sowie ein zusätzliches Gäste-WC. Die Master-Suite verfügt über einen direkten Zugang zu einer privaten Terrasse mit weitreichendem Blick auf das Mittelmeer. Außergewöhnliche Wohn- und Unterhaltungsräume Der offene Wohn- und Essbereich wird durch eine voll ausgestattete Designerküche mit hochwertigen Geräten ergänzt, die sich sowohl für den Alltag als auch für gesellige Zusammenkünfte eignet. Das Anwesen ist von weitläufigen Terrassen umgeben, die mehrere Bereiche zum Entspannen und Unterhalten im Freien schaffen. Luxuriöser Outdoor-Lifestyle Das Highlight dieser Villa ist der Infinity-Pool mit Panoramablick auf die Küste. Eine großzügige Terrasse am Pool bietet den perfekten Ort zum Sonnenbaden, für Mahlzeiten im Freien oder um unvergessliche Sonnenuntergänge mit Familie und Freunden zu genießen. Premium-Ausstattung und Komfort Diese neu gebaute Villa verfügt über fortschrittliche Smart-Home-Technologie, Fußbodenheizung und eine Klimaanlage, die das ganze Jahr über für Komfort sorgen. Das Anwesen bietet außerdem ein Untergeschoss mit viel Platz für zusätzliche Nutzungen. Ideal als Dauer- oder Ferienwohnsitz Mit einer vollständigen Baugenehmigung und einer voraussichtlichen Fertigstellung innerhalb von 18 Monaten nach der Reservierung bietet diese Villa eine einmalige Gelegenheit, ein zeitgenössisches Meisterwerk in einer der begehrtesten Lagen an der Costa Blanca zu erwerben. Die Nähe zu Sandstränden, charmanten Küstenstädten, Yachthäfen, Einkaufsmöglichkeiten und Outdoor-Aktivitäten erhöht die Attraktivität sowohl als Dauerwohnsitz als auch als hochwertiger Rückzugsort für den Urlaub. Sichern Sie sich Ihre Traumvilla in Raco de Galeno, Benissa Costa, und genießen Sie den ultimativen mediterranen Lebensstil mit atemberaubendem Meerblick und unvergleichlichem Komfort.

Ort

Kontaktiere uns Eine Anfrage machen

Responsable del tratamiento: Mediaterrean y Mar Eindom, SL, Finalidad del tratamiento: Gestión y control de los servicios ofrecidos a través de la página Web de Servicios inmobiliarios, Envío de información a traves de newsletter y otros, Legitimación: Por consentimiento, Destinatarios: No se cederan los datos, salvo para elaborar contabilidad, Derechos de las personas interesadas: Acceder, rectificar y suprimir los datos, solicitar la portabilidad de los mismos, oponerse altratamiento y solicitar la limitación de éste, Procedencia de los datos: El Propio interesado, Información Adicional: Puede consultarse la información adicional y detallada sobre protección de datos Aquí.

© 2026 Medimar Eiendom · All rights reserved · Rechtlicher Hinweis Privatsphäre Cookies Web-Karte

Design and CRM: Mediaelx

Eine Anfrage machen WhatsApp