€498.000
€498.000
Göra en förfrågan Kontakta

Villa · Nybyggnad Alicante - Costa Blanca · Aspe

€498.000
€498.000
Göra en förfrågan Kontakta

Egenskaper

Sovrum: 3
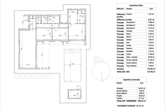
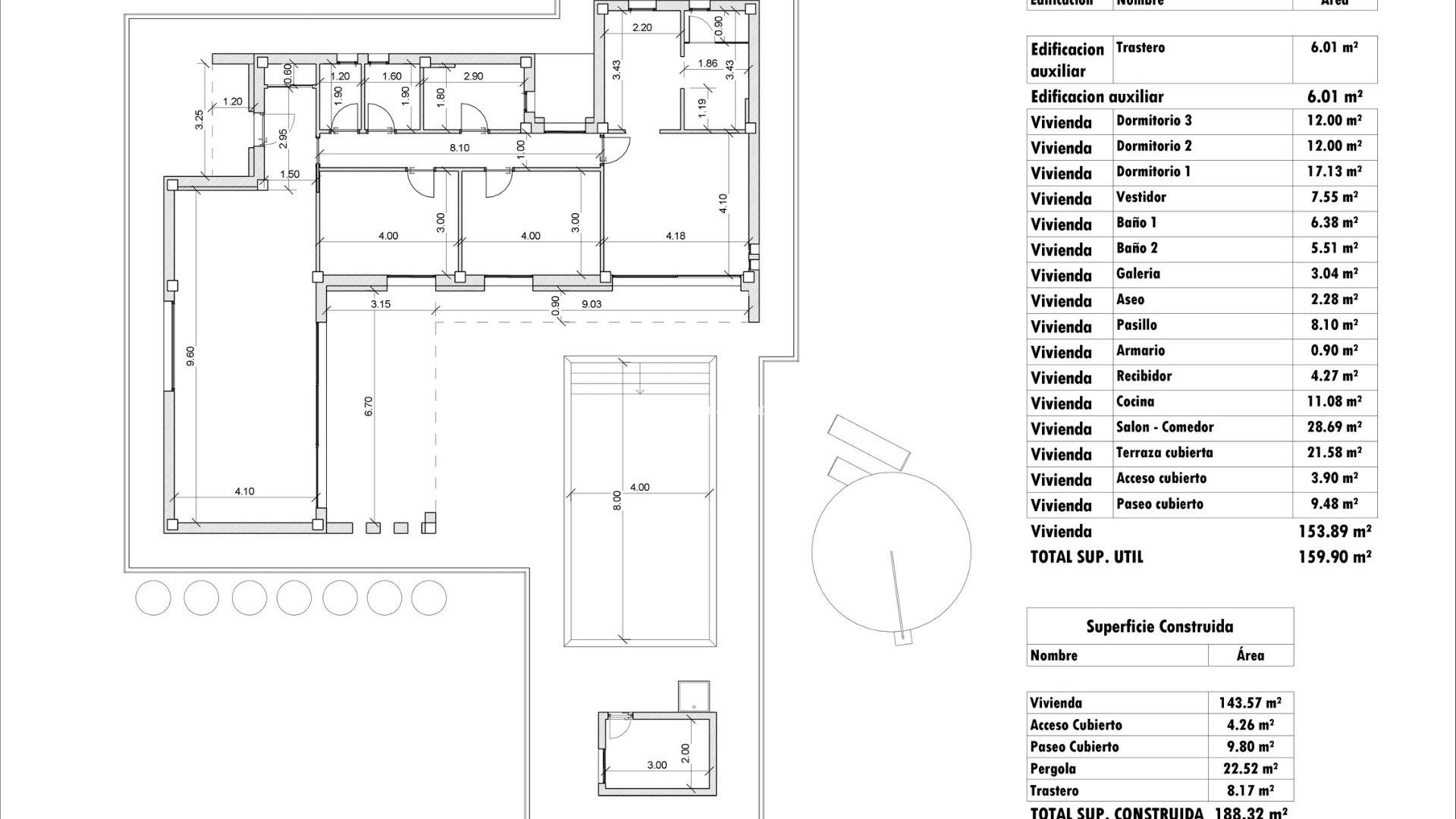
Badrum: 3
Byggd: 188m2
Tomt: 13.172m2
Slå samman: Ja
Gated
Number of Parking Spaces: 1
Air Conditioning: Pre-Installed
Private Pool
Garden
Near Schools
Double Bedrooms: 3
Terrace: 36 Msq.
Parking - Space
Useable Build Space: 159 Msq.
Location: Rural, Mountain
Beach: 25000 Meters
Förvaring / Trastero
Göra en förfrågan

Beskrivning

Nybyggda villor belägna i Aspe. Nybyggda villor med flera modeller att välja mellan med 2, 3 eller 4 sovrum, med en eller två våningar och byggda med platta eller struktur: beroende på modell och tomtval beräknas det exakta priset. Alla villor byggs på rustika tomter på över 10 000 m2, varav cirka 2 500 m2 kommer att stängslas in. Villorna har ett öppet kök med vardagsrum, inbyggda garderober, privat pool, veranda, förråd och utomhusparkeringsplats. Det finns flera tomter att välja mellan. För prisberäkningen har en tomt med ett pris på 77 500 euro använts (om en annan tomt väljs betalas eller krediteras skillnaden enligt tomtens pris). Byggs på egen bekostnad, leverans inom cirka 12 månader från beviljandet av bygglov. Om du letar efter en lugn miljö, nära typiska spanska byar långt från turistmassorna, omgiven av berg, med en mycket stor tomt och cirka 30 minuter från havet, är detta ditt hem. Aspe är en typisk spansk by med alla tjänster för det dagliga livet, omgiven av berg och med flera naturområden i närheten där du kan vandra eller cykla mountainbike. Beläget 25 km från stranden, 9 km från Elche och cirka 20 km från Alicante flygplats.

Plats

Kontakta oss Göra en förfrågan

Responsable del tratamiento: Mediaterrean y Mar Eindom, SL, Finalidad del tratamiento: Gestión y control de los servicios ofrecidos a través de la página Web de Servicios inmobiliarios, Envío de información a traves de newsletter y otros, Legitimación: Por consentimiento, Destinatarios: No se cederan los datos, salvo para elaborar contabilidad, Derechos de las personas interesadas: Acceder, rectificar y suprimir los datos, solicitar la portabilidad de los mismos, oponerse altratamiento y solicitar la limitación de éste, Procedencia de los datos: El Propio interesado, Información Adicional: Puede consultarse la información adicional y detallada sobre protección de datos Aquí.

© 2026 Medimar Eiendom · All rights reserved · Juridisk anteckning Privatliv Cookies Web karta

Design and CRM: Mediaelx

Göra en förfrågan WhatsApp