EINBÝLISHÚS · Nýbygging Alicante - Costa Blanca · Aspe

Einkenni

Önnur lögun

Svefnherbergi: 3
Baðherbergi: 3
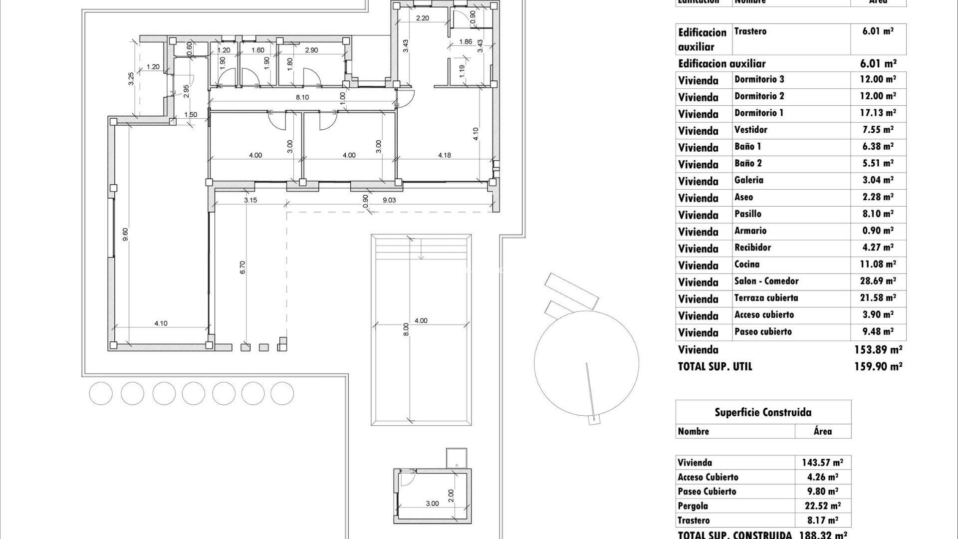
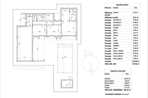
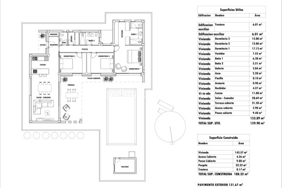
Byggir: 188m2
Söguþráður: 13.172m2
Pool:
Useable Build Space: 159 Msq.
Location: Rural, Mountain
Beach: 25000 Meters
Geymsla / Geymsla
Gated
Number of Parking Spaces: 1
Air Conditioning: Pre-Installed
Private Pool
Garden
Near Schools
Double Bedrooms: 3
Terrace: 36 Msq.
Parking - Space
Gera fyrirspurn

Lýsing

Nýbyggðar einbýlishús staðsett í sveitarfélaginu Aspe. Nýbyggð einbýlishús í nokkrum gerðum til að velja úr, með 2, 3 eða 4 svefnherbergjum, á einni eða tveimur hæðum og byggð með hellum eða með burðarvirki: eftir gerð og lóð sem valin er verður nákvæmt verð reiknað út. Allar einbýlishúsin eru byggð á sveitalegum lóðum sem eru yfir 10.000 m2, þar af verða um 2.500 m2 girtar af. Einbýlishúsin eru með opnu eldhúsi með stofu, innbyggðum fataskápum, einkasundlaug, verönd, geymslu og bílastæði utandyra. Það eru nokkrar lóðir til að velja úr. Verðið er miðað við lóð sem er verðlögð á £77.500 (ef önnur lóð er valin verður mismunurinn greiddur eða færður til baka í samræmi við lóðarverð). Sjálfsbyggingarverkefni, afhending á um það bil 12 mánuðum frá veitingu leyfisins. Ef þú ert að leita að rólegu umhverfi, nálægt dæmigerðum spænskum þorpum fjarri ferðamannafjölda, umkringd fjöllum, með mjög stórri lóð og um 30 mínútum frá sjónum, þá er þetta heimilið þitt. Aspe er dæmigert spænskt þorp með öllum þægindum fyrir daglegt líf, umkringt fjöllum og með nokkrum náttúrusvæðum í nágrenninu þar sem hægt er að fara í gönguferðir eða fjallahjólreiðar. Staðsett 25 km frá ströndinni, 9 km frá Elche og um 20 km frá Alicante flugvellinum.

Staðsetning

Hafðu samband við okkur Gera fyrirspurn

Responsable del tratamiento: Mediaterrean y Mar Eindom, SL, Finalidad del tratamiento: Gestión y control de los servicios ofrecidos a través de la página Web de Servicios inmobiliarios, Envío de información a traves de newsletter y otros, Legitimación: Por consentimiento, Destinatarios: No se cederan los datos, salvo para elaborar contabilidad, Derechos de las personas interesadas: Acceder, rectificar y suprimir los datos, solicitar la portabilidad de los mismos, oponerse altratamiento y solicitar la limitación de éste, Procedencia de los datos: El Propio interesado, Información Adicional: Puede consultarse la información adicional y detallada sobre protección de datos Aquí.

© 2026 Medimar Eiendom · All rights reserved · Legal athugið Privacy Cookies Web Map

Design and CRM: Mediaelx

Gera fyrirspurn WhatsApp