Виллы · Новостройки Alicante - Costa Blanca · Aspe

Характеристики

Дополнительные возможности

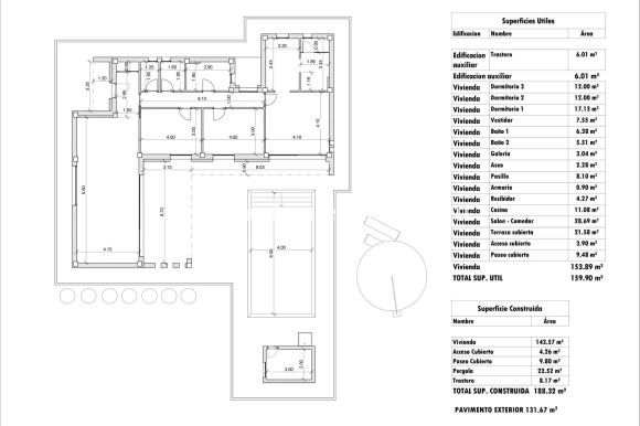
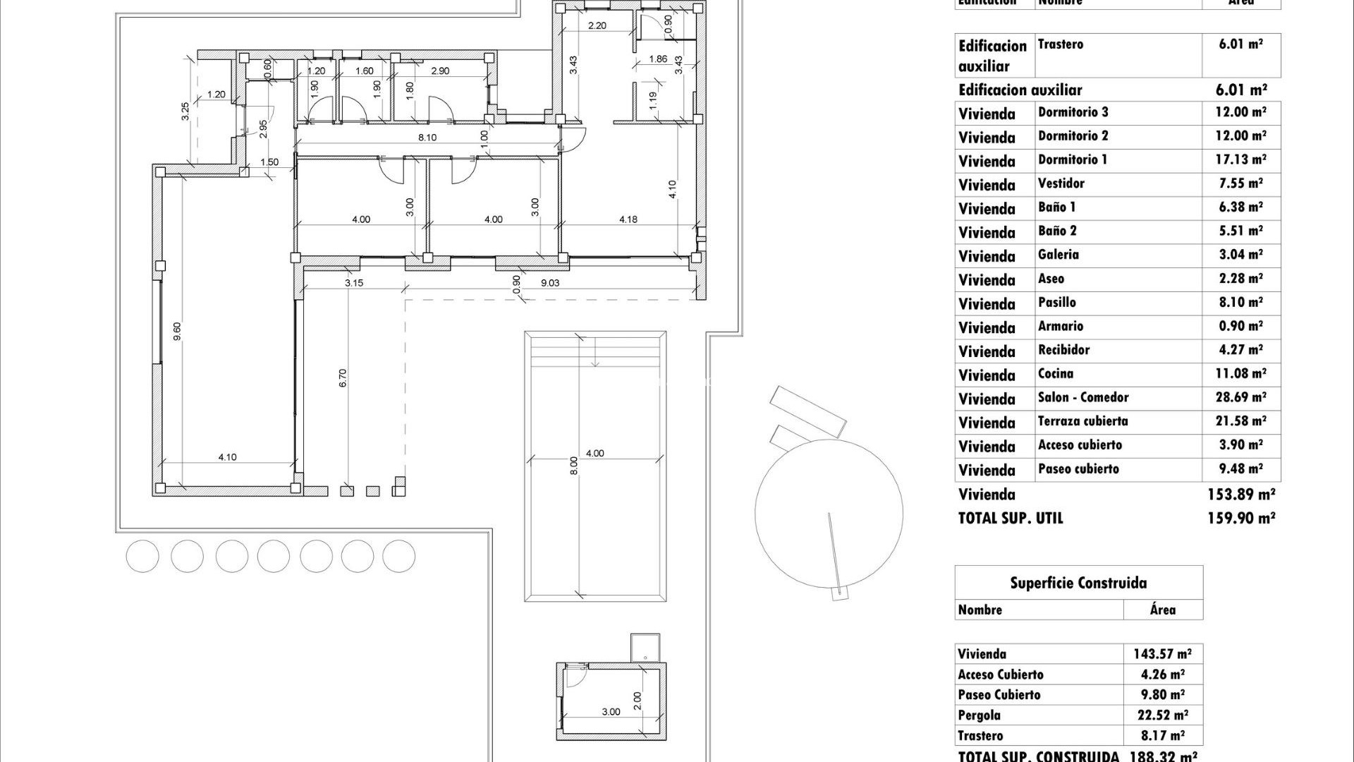
спальни: 3
В ванных комнатах: 3
построен: 188m2
участок: 13.172m2
Бассейн: да
Beach: 25000 Meters
Хранение / Трастеро
Gated
Number of Parking Spaces: 1
Air Conditioning: Pre-Installed
Private Pool
Garden
Near Schools
Double Bedrooms: 3
Terrace: 36 Msq.
Parking - Space
Useable Build Space: 159 Msq.
Location: Rural, Mountain
Делать запрос

Описание

Новые виллы, расположенные в районе Аспе. Новые виллы с несколькими моделями на выбор: 2, 3 или 4 спальни, один или два этажа, построенные с использованием плит или каркаса: точная цена будет рассчитана в зависимости от выбранной модели и участка. Все виллы построены на участках площадью более 10 000 м2, из которых около 2500 м2 будут огорожены. Виллы располагают американской кухней с гостиной, встроенными шкафами, частным бассейном, верандой, кладовой и открытой парковкой. На выбор предлагается несколько участков, для расчета цены был взят участок стоимостью 77 500 евро (при выборе другого участка разница в цене будет доплачена или вычтена из стоимости). Строительство ведется на условиях самофинансирования, сдача объекта в эксплуатацию - примерно через 12 месяцев с момента получения лицензии. Если вы ищете тихое место, недалеко от типичных испанских деревень, вдали от массового туризма, в окружении гор, с очень большим участком и в 30 минутах от моря, то это ваш дом. Аспе - типичная испанская деревня со всеми удобствами для повседневной жизни, окруженная горами и несколькими природными заповедниками, где можно заняться пешим туризмом или кататься на горных велосипедах. Расположен в 25 км от пляжа, в 9 км от Эльче и в 20 км от аэропорта Аликанте.

Место нахождения

Изображений

Свяжитесь с нами Делать запрос

Responsable del tratamiento: Mediaterrean y Mar Eindom, SL, Finalidad del tratamiento: Gestión y control de los servicios ofrecidos a través de la página Web de Servicios inmobiliarios, Envío de información a traves de newsletter y otros, Legitimación: Por consentimiento, Destinatarios: No se cederan los datos, salvo para elaborar contabilidad, Derechos de las personas interesadas: Acceder, rectificar y suprimir los datos, solicitar la portabilidad de los mismos, oponerse altratamiento y solicitar la limitación de éste, Procedencia de los datos: El Propio interesado, Información Adicional: Puede consultarse la información adicional y detallada sobre protección de datos Aquí.
Делать запрос WhatsApp