Bungalow á efstu hæð · Nýbygging Almeria · Mojacar

Einkenni

Önnur lögun

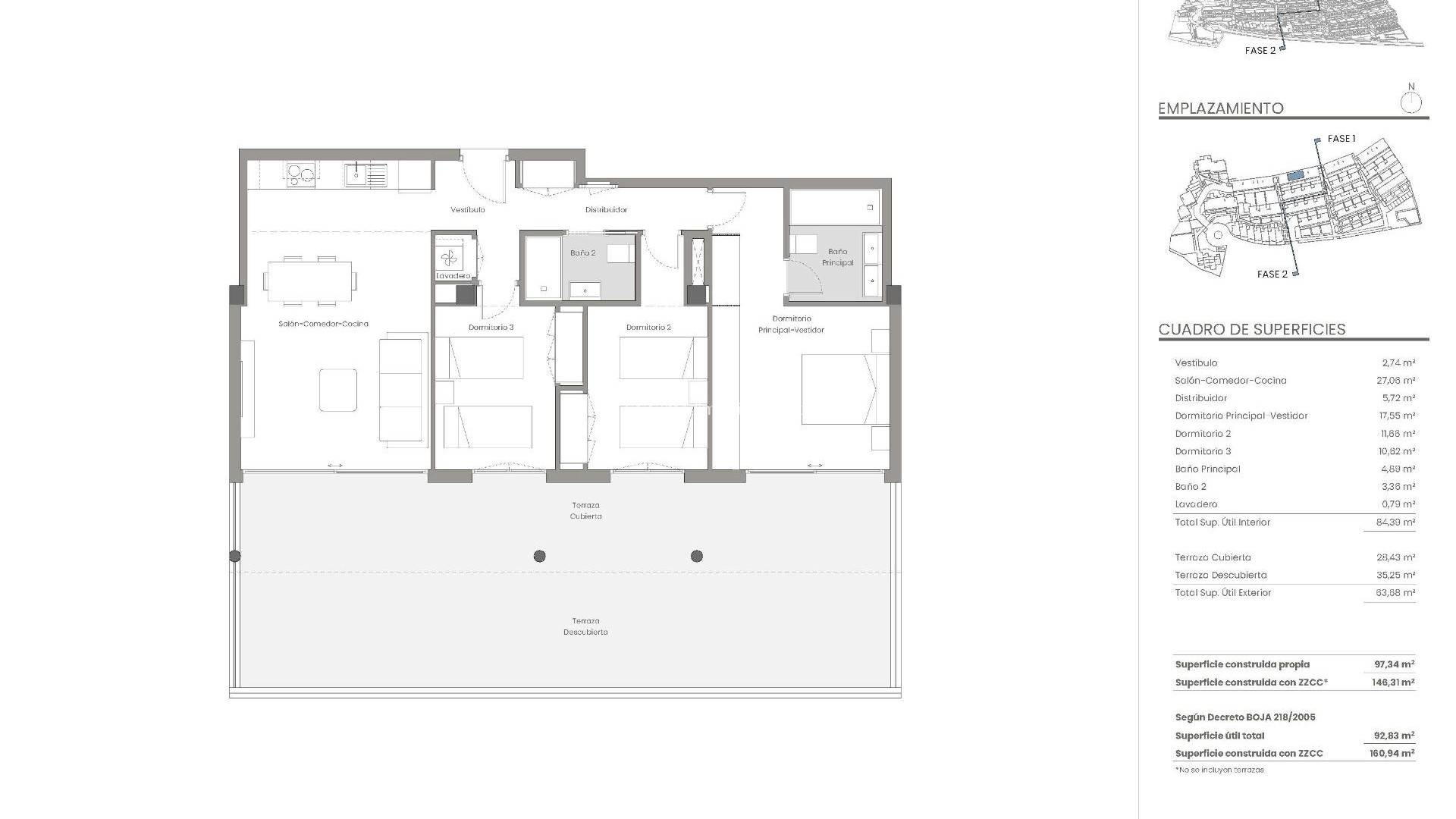
Svefnherbergi: 3
Baðherbergi: 2
Byggir: 160m2
Pool:
Lähellä golfkenttää / golfkeskuksen kiinteistöä
First Line to the Sea
Location: Coastal, Urbanisation
Lyfta/lyfta
Views: Sea
Near Schools
Double Bedrooms: 3
Parking - Space
Useable Build Space: 92 Msq.
Terrace: 63 Msq.
Beach: 200 Meters
Near Commercial Center
Geymsla / Geymsla
Communal Pool
Gated
Number of Parking Spaces: 1
Gera fyrirspurn

Lýsing

Nýbyggingar íbúða og þakíbúða við ströndina til sölu í Macenas, Almería. Nútímaleg strandlíf í lokuðu úrræði við Miðjarðarhafið. Uppgötvaðu nýja og einstaka íbúðabyggð í Macenas, Almería, sem er hönnuð til að bjóða upp á einstaka Miðjarðarhafslífsstíl. Þetta nútímalega, lokaða hverfi býður upp á 125 heimili með 1, 2 og 3 svefnherbergjum, þar á meðal stórkostlegum þakíbúðum, rúmgóðum íbúðum á jarðhæð með einkagörðum og valfrjálsum einkasundlaugum. Hver eign státar af stórum svölum með útsýni yfir hafið, fullkomnum til að njóta strandloftslagsins allt árið um kring. Bílskúr og geymsla fylgja hverju heimili. Fyrsta flokks hönnun og sjálfbær bygging. Arkitektúrinn blandar saman nútímalegum glæsileika og Miðjarðarhafsstíl, að fullu samþættan stórkostlegu náttúruumhverfi Macenas. Úrræðið er byggt með sjálfbærum efnum og innfæddum landslagi og stuðlar að ábyrgri lífsstíl í sátt við umhverfið. Heimilin eru með fullbúnum eldhúsum, þar á meðal fyrsta flokks heimilistækjum, loftkælingu og styrktum öryggishurðum. Framúrskarandi sameiginleg rými og þægindi á staðnum. Íbúðabyggðin býður upp á fjölbreytt úrval af fyrsta flokks þægindum sem lyfta daglegri lífsreynslu þinni. Íbúar hafa aðgang að: Útisundlaug með óendanleika Innisundlaug með upphitaðri slökunarverönd og sólstofu með sjávarútsýni Félagsmiðstöð með veitingastað og setustofu Heilsumiðstöð og snyrtistofur Verslanum og fullbúinni íþróttamiðstöð Allt er hannað til að stuðla að afslappaðri og heilbrigðum lífsstíl, hvort sem þú ert að leita að varanlegri búsetu, frístundastað eða fjárfestingu í einni af bestu strandlengjusvæðum Almería. Fyrsta flokks staðsetning við ströndina í Macenas Þetta þróunarverkefni er staðsett við sjávarsíðuna og aðeins skrefum frá ströndinni, og nýtur frábærs umhverfis nálægt verndaða náttúrusvæðinu Cabo de Gata. Svæðið býður upp á einstaka blöndu af ósnortinnu landslagi, Miðjarðarhafsströndum og vaxandi úrvali af hágæða þjónustu. Það felur einnig í sér framtíðar 18 holu golfvöll sem er samþættur innfæddum gróðri og vistfræðilegum lausnum. Helstu áhugaverðir staðir í nágrenninu: Playa de Macenas – 200 m, Mojácar Pueblo – 6 km, Marina de la Torre Golf – 9 km, Parque Natural de Cabo de Gata – 30 km, Almería borg – 88 km, Almería flugvöllur – 77 km. Miðjarðarhafsferð þín bíður þín. Ekki missa af þessu tækifæri til að eignast stílhreint og sjálfbært heimili við sjóinn í einni af einstökustu þróunarverkefnum Almería. Hafðu samband við okkur í dag til að fá frekari upplýsingar eða til að bóka skoðun á þessu einstaka úrræði í Macenas.

Staðsetning

Hafðu samband við okkur Gera fyrirspurn

Responsable del tratamiento: Mediaterrean y Mar Eindom, SL, Finalidad del tratamiento: Gestión y control de los servicios ofrecidos a través de la página Web de Servicios inmobiliarios, Envío de información a traves de newsletter y otros, Legitimación: Por consentimiento, Destinatarios: No se cederan los datos, salvo para elaborar contabilidad, Derechos de las personas interesadas: Acceder, rectificar y suprimir los datos, solicitar la portabilidad de los mismos, oponerse altratamiento y solicitar la limitación de éste, Procedencia de los datos: El Propio interesado, Información Adicional: Puede consultarse la información adicional y detallada sobre protección de datos Aquí.

© 2026 Medimar Eiendom · All rights reserved · Legal athugið Privacy Cookies Web Map

Design and CRM: Mediaelx

Gera fyrirspurn WhatsApp