€369.000
€369.000
Göra en förfrågan Kontakta

Villa · Nybyggnad Alicante - Costa Blanca · Los Montesinos

€369.000
€369.000
Göra en förfrågan Kontakta

Egenskaper

Sovrum: 3
Badrum: 3
Byggd: 110m2
Tomt: 185m2
Slå samman: Ja
Near Schools
Double Bedrooms: 3
Parking - Space
Location: Rural, Urbanisation
Beach: 9000 Meters
Useable Build Space: 91 Msq.
Laundry Room
Terrace: 118 Msq.
Gated
Number of Parking Spaces: 1
Air Conditioning: Pre-Installed
Private Pool
Garden
Göra en förfrågan

Beskrivning

Moderna nybyggda villor i La Herrada Los Montesinos med privat pool

Exklusivt bostadsprojekt i en lugn miljö
Beläget i den prestigefyllda urbanisationen La Herrada i Los Montesinos, erbjuder detta exklusiva projekt med 16 moderna villor avskildhet, komfort och en utmärkt livskvalitet. La Herrada är känt för sin lugna bostadsmiljö, närheten till dagliga bekvämligheter och sitt privilegierade läge mellan de berömda saltsjöarna Torrevieja och La Mata. Det är en idealisk plats för dem som söker en avslappnad och hälsosam medelhavslivsstil i södra Costa Blanca.

Modern design med optimerade interiörutrymmen
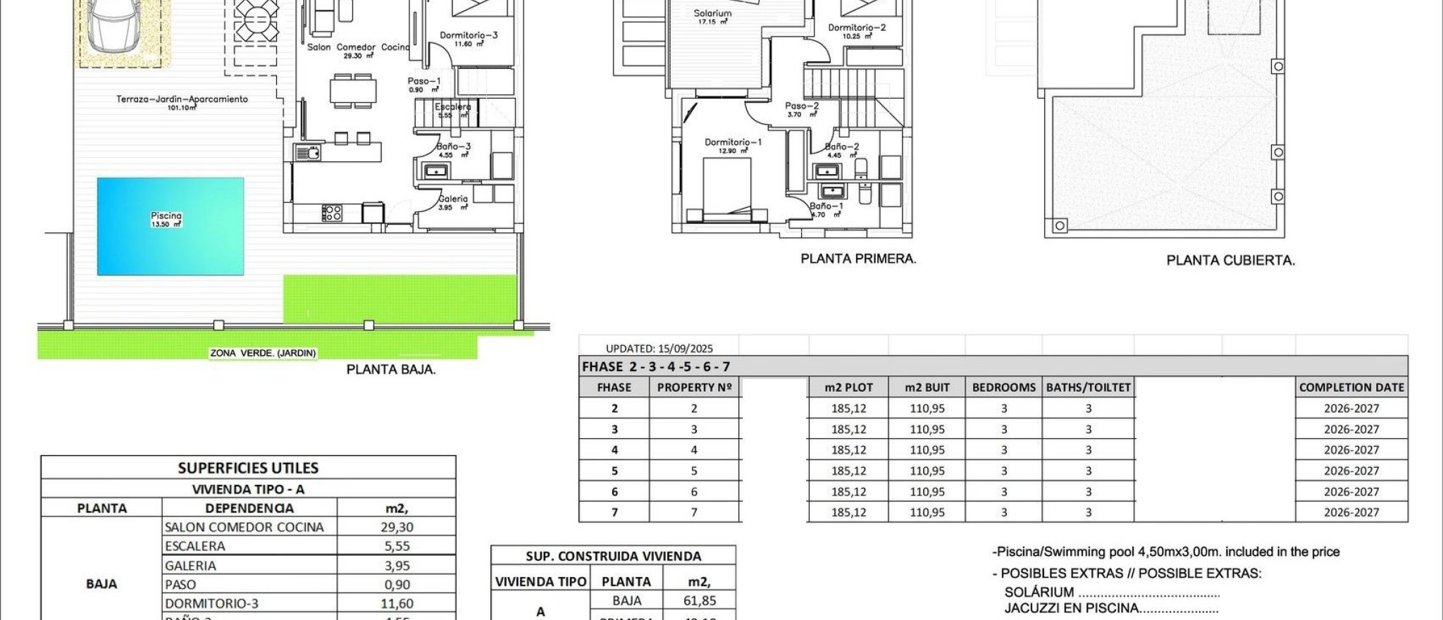
Varje villa har 110 m² välplanerad boyta fördelad på två våningar, utformad för att maximera naturligt ljus och funktionalitet. Fastigheterna är byggda på tomter från 185 m² och erbjuder generösa utomhusområden som är perfekta för solbad, underhållning eller avkoppling vid den privata poolen.

Bekväm planlösning över två våningar
På bottenvåningen finns ett öppet vardagsrum med ett fullt integrerat kök och direkt tillgång till trädgården och poolområdet. På denna våning finns också ett sovrum, ett komplett badrum och en praktisk tvättstuga.
På övervåningen finns två rymliga sovrum, båda med eget badrum, varav ett är en suite. Båda sovrummen har tillgång till en privat öppen terrass på 17 m². För dem som vill ha ännu mer utomhusutrymme finns ett solarium på taket tillgängligt mot en extra kostnad.

Högkvalitativa ytbehandlingar och moderna funktioner
Villorna har högkvalitativa ytbehandlingar såsom badrumsmöbler, speglar, duschväggar och golvvärme i alla badrum. Det finns förinstallation för luftkonditionering, en motoriserad infartsgrind, privat parkering på tomten och en gated bostadsområde via en privat intern gata.

Utmärkt läge nära viktiga bekvämligheter och attraktioner
Stränderna i Guardamar och Torrevieja 9 km
La Marquesa Golf, La Finca Golf och Vistabella Golf inom 5 km
Alicante flygplats 29 km
Naturparker, saltsjöar, cykelvägar och vandringsleder i närheten

Bo bekvämt i hjärtat av Costa Blanca
Dessa nybyggda villor i Los Montesinos erbjuder den perfekta kombinationen av modern komfort, naturskön omgivning och utmärkt tillgänglighet. Oavsett om du letar efter en permanent bostad eller ett fritidshus, erbjuder detta bostadsområde allt du behöver för att njuta av en lugn och bekväm medelhavslivsstil. Kontakta oss idag för att boka en visning och säkra ditt nya hem i La Herrada.

Plats

Kontakta oss Göra en förfrågan

Responsable del tratamiento: Mediaterrean y Mar Eindom, SL, Finalidad del tratamiento: Gestión y control de los servicios ofrecidos a través de la página Web de Servicios inmobiliarios, Envío de información a traves de newsletter y otros, Legitimación: Por consentimiento, Destinatarios: No se cederan los datos, salvo para elaborar contabilidad, Derechos de las personas interesadas: Acceder, rectificar y suprimir los datos, solicitar la portabilidad de los mismos, oponerse altratamiento y solicitar la limitación de éste, Procedencia de los datos: El Propio interesado, Información Adicional: Puede consultarse la información adicional y detallada sobre protección de datos Aquí.

© 2026 Medimar Eiendom · All rights reserved · Juridisk anteckning Privatliv Cookies Web karta

Design and CRM: Mediaelx

Göra en förfrågan WhatsApp