EINBÝLISHÚS · Nýbygging Alicante - Costa Blanca · Los Montesinos

Einkenni

Önnur lögun

Svefnherbergi: 3
Baðherbergi: 3
Byggir: 110m2
Söguþráður: 185m2
Pool:
Private Pool
Garden
Near Schools
Double Bedrooms: 3
Parking - Space
Location: Rural, Urbanisation
Beach: 9000 Meters
Useable Build Space: 91 Msq.
Laundry Room
Terrace: 118 Msq.
Gated
Number of Parking Spaces: 1
Air Conditioning: Pre-Installed
Gera fyrirspurn

Lýsing

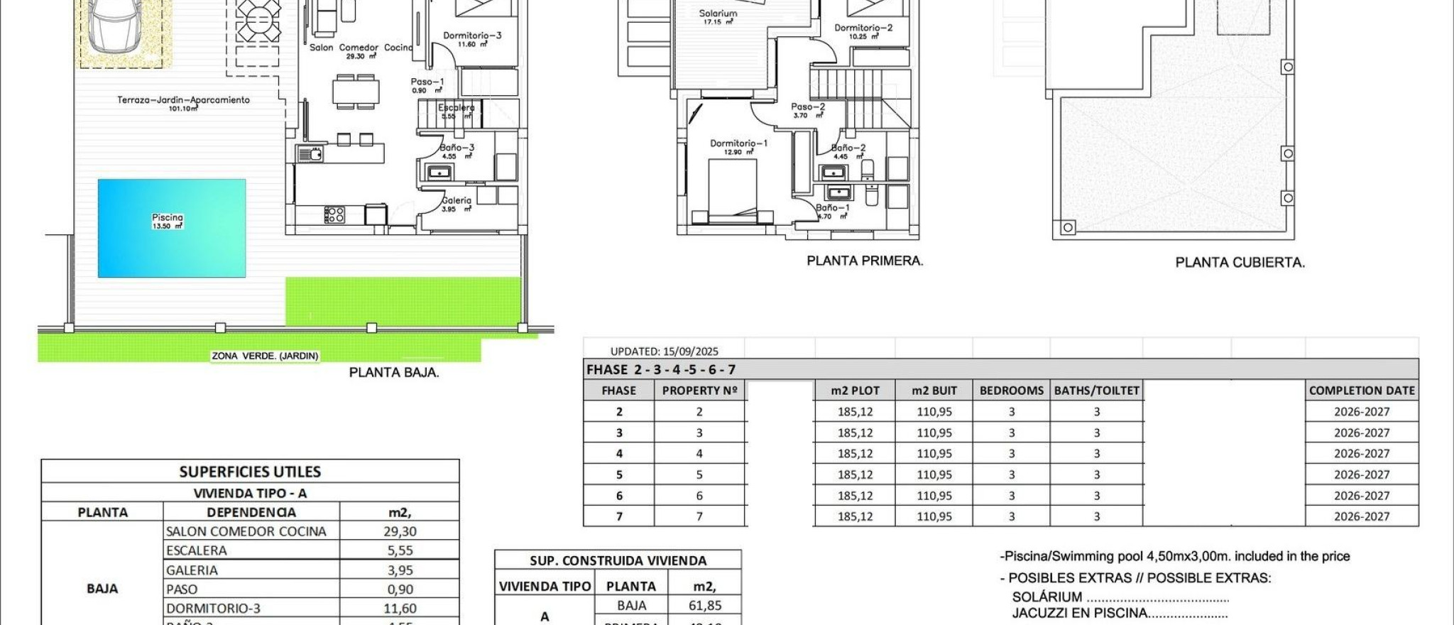
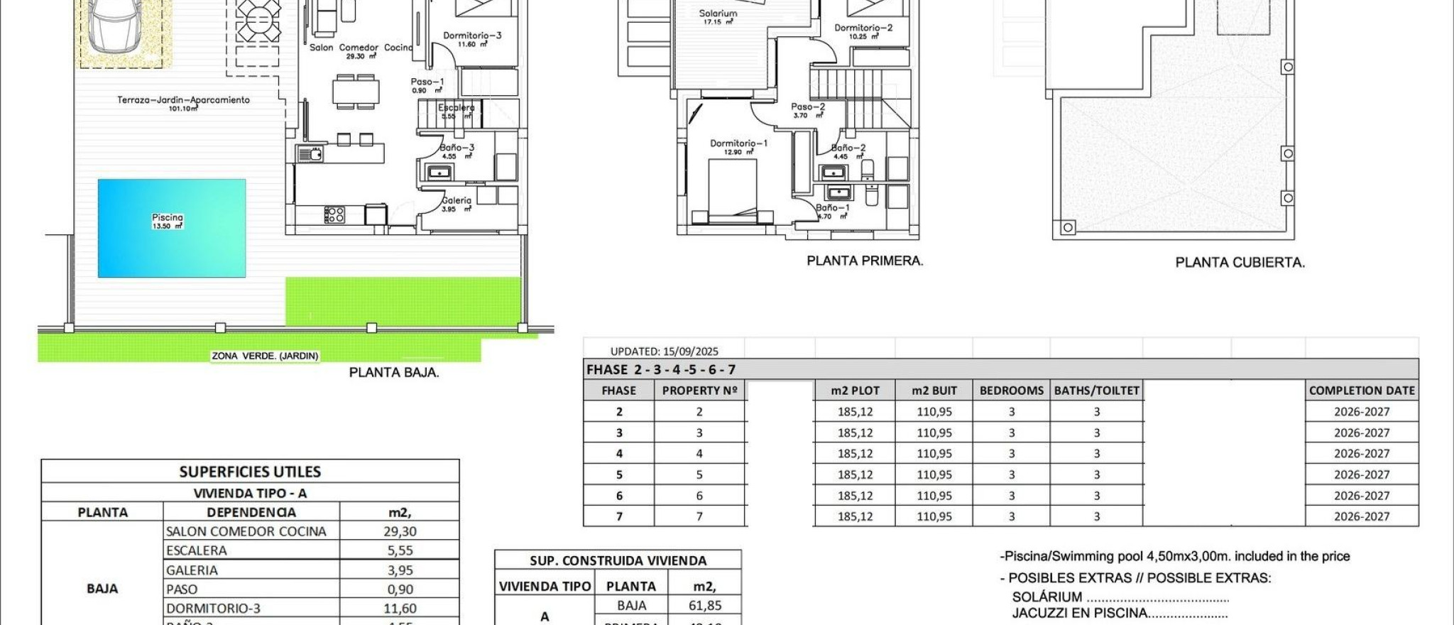
Nýbyggðar nútímalegar einbýlishús í La Herrada Los Montesinos með einkasundlaug. Sérstakt íbúðarverkefni í friðsælu umhverfi. Staðsett í virta þéttbýlishverfinu La Herrada í Los Montesinos, býður þetta einkaréttarþróunarverkefni með 16 nútímalegum einbýlishúsum upp á næði, þægindi og framúrskarandi lífsgæði. La Herrada er þekkt fyrir rólega íbúðaandrúmsloft, nálægð við daglega þjónustu og frábæra staðsetningu sína milli frægu saltvatnanna Torrevieja og La Mata. Það er tilvalin staðsetning fyrir þá sem leita að afslappaðri og heilbrigðri Miðjarðarhafslífsstíl í suðurhluta Costa Blanca. Nútímaleg hönnun með hámarksnýtingu innanhúss. Hver einbýlishús er með 110 m² vel skipulagðu íbúðarrými sem er dreift á tvær hæðir, hannað til að hámarka náttúrulegt ljós og virkni. Eignin er byggð á lóðum frá 185 m² og býður upp á rúmgóð útisvæði sem eru fullkomin til sólbaða, skemmtunar eða slökunar við einkasundlaugina. Þægilegt skipulag á tveimur hæðum. Jarðhæðin er með opna stofu með fullbúnu eldhúsi og beinum aðgangi að garðinum og sundlaugarsvæðinu. Þessi hæð inniheldur einnig eitt svefnherbergi, baðherbergi og þægilegt þvottahús. Á efri hæðinni eru tvö rúmgóð svefnherbergi, hvort með sér baðherbergi, annað þeirra með sér baðherbergi. Báðar svefnherbergin hafa aðgang að 17 fermetra einkaverönd. Fyrir þá sem vilja enn meira útirými er hægt að fá þakverönd með sólpalli sem aukagjald. Hágæða frágangur og nútímalegir eiginleikar Einbýlishúsin eru með hágæða frágangi eins og baðherbergishúsgögnum, speglum, sturtuklefa og gólfhita í öllum baðherbergjum. Uppsetning á loftkælingu, hliði fyrir vélknúin ökutæki, einkabílastæði á lóðinni og lokað aðkomurými fyrir íbúa um einkagötu. Frábær staðsetning Nálægt helstu þægindum og áhugaverðum stöðum Strendur Guardamar og Torrevieja 9 km La Marquesa Golf, La Finca Golf og Vistabella Golf innan 5 km Alicante flugvöllur 29 km Náttúrugarðar, saltvötn, hjólaleiðir og gönguleiðir í nágrenninu Lifðu þægilega í hjarta Costa Blanca Þessar nýbyggðu einbýlishús í Los Montesinos bjóða upp á fullkomna blöndu af nútíma þægindum, náttúrulegu umhverfi og frábæru aðgengi. Hvort sem þú ert að leita að fastri búsetu eða frístundahúsi, þá býður þetta þróunarverkefni upp á allt sem þú þarft til að njóta friðsæls og þægilegs Miðjarðarhafslífsstíls. Hafðu samband við okkur í dag til að bóka skoðun og tryggja þér nýja heimilið þitt í La Herrada.

Staðsetning

Hafðu samband við okkur Gera fyrirspurn

Responsable del tratamiento: Mediaterrean y Mar Eindom, SL, Finalidad del tratamiento: Gestión y control de los servicios ofrecidos a través de la página Web de Servicios inmobiliarios, Envío de información a traves de newsletter y otros, Legitimación: Por consentimiento, Destinatarios: No se cederan los datos, salvo para elaborar contabilidad, Derechos de las personas interesadas: Acceder, rectificar y suprimir los datos, solicitar la portabilidad de los mismos, oponerse altratamiento y solicitar la limitación de éste, Procedencia de los datos: El Propio interesado, Información Adicional: Puede consultarse la información adicional y detallada sobre protección de datos Aquí.

© 2026 Medimar Eiendom · All rights reserved · Legal athugið Privacy Cookies Web Map

Design and CRM: Mediaelx

Gera fyrirspurn WhatsApp