Penthouse · Новостройки Almeria · Vera

Характеристики

Дополнительные возможности

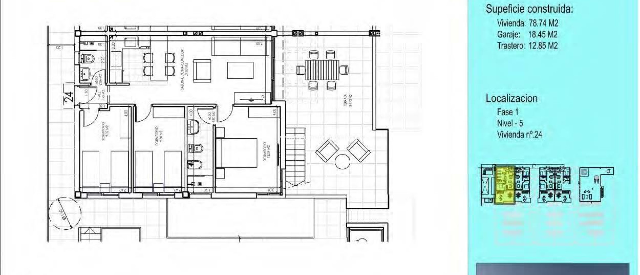
спальни: 3
В ванных комнатах: 2
построен: 78m2
Бассейн: да
Хранение / Трастеро
Communal Pool
Gated
Solarium: Yes
Number of Parking Spaces: 1
Location: Coastal, Urbanisation
Лифт/подъемник
Views: Sea
Near Schools
Double Bedrooms: 3
Parking - Space
Useable Build Space: 70 Msq.
Terrace: 104 Msq.
Beach: 700 Meters
Furnished
Near Commercial Center
Делать запрос

Описание

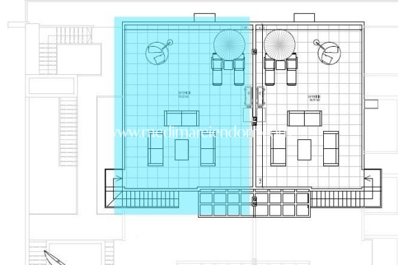
Новые апартаменты с видом на море в Вера-Плайя, Альмерия Откройте для себя этот исключительный новый жилой комплекс в Вера-Плайя, предлагающий 27 современных апартаментов в первой фазе строительства. Этот проект, разработанный с целью объединить комфорт, функциональность и потрясающие виды на Средиземное море, идеально подходит для тех, кто ищет стильный и удобный дом на побережье Коста-де-Альмерия. Современные дома с видом на море Каждая квартира была тщательно спроектирована, чтобы максимально использовать естественное освещение и возможность жизни на свежем воздухе. На выбор предлагаются планировки с 1, 2 и 3 спальнями, с частными садами на первых этажах, просторными террасами на средних этажах и пентхаусами с частными соляриями. Благодаря террасному дизайну, все дома имеют открытые террасы с потрясающим видом на море. Качественная отделка и полностью оборудованные дома Каждая недвижимость полностью меблирована и оборудована, готова к заселению. Особенности: Меблированная кухня с бытовой техникой Полностью оборудованные ванные комнаты с современной сантехникой Система кондиционирования Частная парковка и кладовая Эксклюзивные удобства Изюминкой этого жилого комплекса является общий бассейн, окруженный ландшафтными садами, создающий идеальное место для отдыха, принятия солнечных ванн и семейного досуга. Выгодное расположение в Вера-Плайя Вера-Плайя славится своими длинными песчаными пляжами, непринужденным образом жизни и отличными удобствами. Комплекс расположен в тихом, но хорошо связанном районе с легким доступом к услугам и транспорту. Основные расстояния: Пляж: 700 м Гольф-курорт Desert Springs: 8 км Центр города Вера: 5 км Пристань для яхт и рестораны Гарруча: 6 км Торговый парк Мохакар: 10 км Аэропорт Альмерия: 85 км (около 1 часа) Станция высокоскоростного поезда AVE (в стадии строительства): 3 км Идеальный дом или возможность для инвестиций Если вы ищете постоянное место жительства, место для отдыха или надежную инвестицию, эти новые апартаменты в Вера-Плайя предлагают отличное соотношение цены и качества в одном из самых привлекательных прибрежных районов Альмерии. Сделайте Вера-Плайя своим новым домом и насладитесь идеальным сочетанием современной жизни, видом на море и средиземноморским образом жизни. Свяжитесь с нами сегодня, чтобы запланировать визит и приобрести недвижимость своей мечты на побережье Коста-де-Альмерия.

Место нахождения

Свяжитесь с нами Делать запрос

Responsable del tratamiento: Mediaterrean y Mar Eindom, SL, Finalidad del tratamiento: Gestión y control de los servicios ofrecidos a través de la página Web de Servicios inmobiliarios, Envío de información a traves de newsletter y otros, Legitimación: Por consentimiento, Destinatarios: No se cederan los datos, salvo para elaborar contabilidad, Derechos de las personas interesadas: Acceder, rectificar y suprimir los datos, solicitar la portabilidad de los mismos, oponerse altratamiento y solicitar la limitación de éste, Procedencia de los datos: El Propio interesado, Información Adicional: Puede consultarse la información adicional y detallada sobre protección de datos Aquí.
Делать запрос WhatsApp