Апартаменты · Новостройки Almeria · Vera

Характеристики

Дополнительные возможности

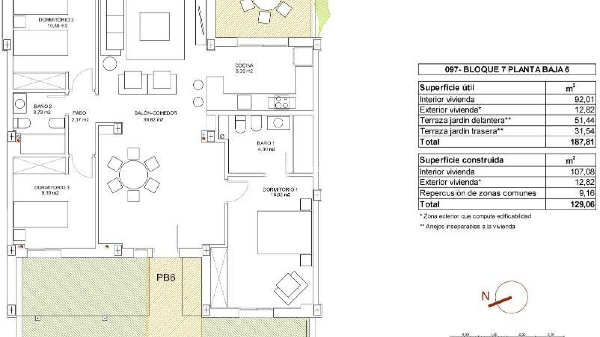
спальни: 3
В ванных комнатах: 2
построен: 107m2
Бассейн: да
Рядом с гольфом / гольф-курортом
Location: Coastal, Urbanisation
Air Conditioning: Pre-Installed
Лифт/подъемник
Garden
Double Bedrooms: 3
Gym
Parking - Space
Beach: 400 Meters
Useable Build Space: 92 Msq.
Terrace: 83 Msq.
Communal Pool
Gated
Number of Parking Spaces: 1
Делать запрос

Описание

НОВЫЙ ЖИЛОЙ КОМПЛЕКС В ВЕРЕ Новый жилой комплекс апартаментов в Вере всего в 400 м от огромного пляжа Вера под названием "El Playazo". Типология: первый этаж с двумя частными садами, по одному в каждой ориентации, что позволяет вам наслаждаться солнцем или тенью, когда вы хотите, в зависимости от времени суток или сезона года. На первых этажах есть террасы, а в пентхаусах - большие солярии. Все квартиры имеют потолки увеличенной высоты (2,95 м), что создает ощущение простора. Кухня полностью меблирована и оборудована, объединена с гостиной-столовой с барной зоной. Двери и встроенные шкафы покрыты белым лаком, а пол сделан из ламинированного дерева. Кондиционирование воздуха "горячий-холодный" и горячая вода генерируются современным аэротермическим устройством DAIKIN, технология, позволяющая экономить до 70% электроэнергии по сравнению с традиционными системами. Все ванные комнаты оснащены душем вместо ванны, утопленными зеркалами, а также каменной столешницей и стеклянной перегородкой в главной ванной комнате. Жалюзи в гостиной и главной спальне - электрические, герметичные и с регулируемыми планками. Сады и солярий поставляются с полами, отделанными искусственной травой и красивым мощением, имитирующим дерево. Каждый дом включает частное открытое парковочное место. Каждый блок продвижения имеет независимый лифт. Как здания, так и квартиры имеют ряд биоклиматических архитектурных характеристик (ориентация, изоляция, окна и ставни, беседки), которые позволяют оптимально регулировать естественную вентиляцию, температуру и свет в течение различных сезонов года. Коммунальные зоны состоят из пешеходных площадей и зеленых зон, с большим бассейном для взрослых и еще одним для детей на центральной площади. Вся урбанизация не имеет архитектурных барьеров для инвалидов. Здесь гарантированы спокойствие и релаксация. Вера - одно из лучших натуристских мест в Европе, признанное за качество и чистоту своих вод. Она предлагает шесть километров пляжей (Лас-Маринас-Болага, Пуэрто-Рей, Эль-Плайясо, Квитапеллехос). Вера граничит с такими известными туристическими направлениями, как Мохакар и пещеры Альмансора. Жилой комплекс расположен примерно в 1,5 часах езды от аэропорта Мурсия - Корвера и примерно в 2 часах езды от аэропорта Аликанте.

Место нахождения

Свяжитесь с нами Делать запрос

Responsable del tratamiento: Mediaterrean y Mar Eindom, SL, Finalidad del tratamiento: Gestión y control de los servicios ofrecidos a través de la página Web de Servicios inmobiliarios, Envío de información a traves de newsletter y otros, Legitimación: Por consentimiento, Destinatarios: No se cederan los datos, salvo para elaborar contabilidad, Derechos de las personas interesadas: Acceder, rectificar y suprimir los datos, solicitar la portabilidad de los mismos, oponerse altratamiento y solicitar la limitación de éste, Procedencia de los datos: El Propio interesado, Información Adicional: Puede consultarse la información adicional y detallada sobre protección de datos Aquí.
Делать запрос WhatsApp