Penthouse · Nýbygging Almeria · Vera

Einkenni

Önnur lögun

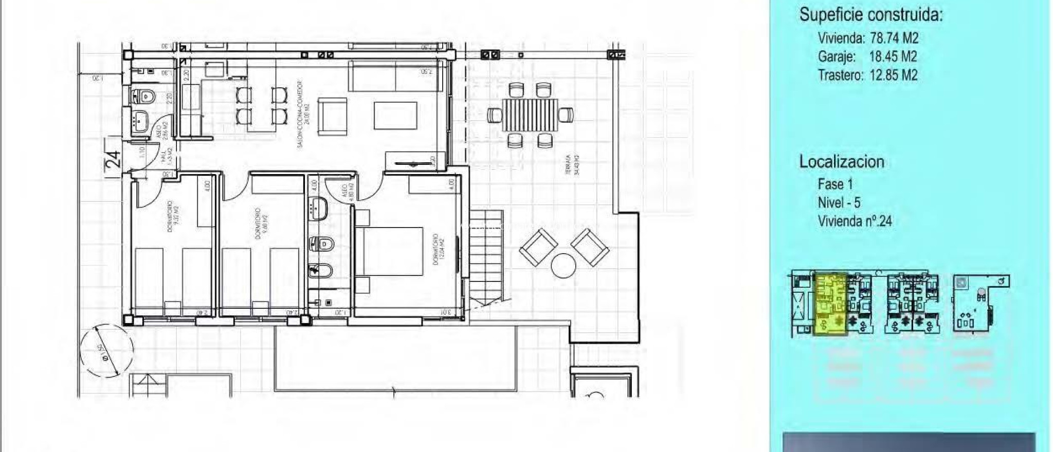
Svefnherbergi: 3
Baðherbergi: 2
Byggir: 78m2
Pool:
Parking - Space
Useable Build Space: 70 Msq.
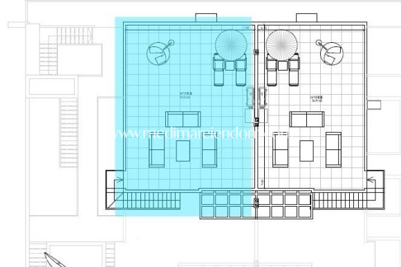
Terrace: 104 Msq.
Beach: 700 Meters
Furnished
Near Commercial Center
Geymsla / Geymsla
Communal Pool
Gated
Solarium: Yes
Number of Parking Spaces: 1
Location: Coastal, Urbanisation
Lyfta/lyfta
Views: Sea
Near Schools
Double Bedrooms: 3
Gera fyrirspurn

Lýsing

Nýbyggðar íbúðir með sjávarútsýni í Vera Playa, Almería. Uppgötvaðu þetta einstaka nýja íbúðabyggðarþróunarverkefni í Vera Playa, sem býður upp á 27 nútímalegar íbúðir í fyrsta áfanga. Verkefnið er hannað til að sameina þægindi, virkni og stórkostlegt útsýni yfir Miðjarðarhafið og er tilvalið fyrir þá sem leita að heimili á Costa de Almería með stíl og þægindum. Nútímaleg heimili með sjávarútsýni. Hver íbúð hefur verið vandlega hönnuð til að hámarka náttúrulegt ljós og útiveru. Möguleikarnir eru á 1, 2 og 3 svefnherbergja skipulag, þar sem jarðhæðir eru með einkagörðum, miðhæðir með rúmgóðum svölum og þakíbúðir með einkasólbaði. Þökk sé raðhúsahönnuninni njóta öll heimilin yfirbyggðra svalir með stórkostlegu útsýni yfir hafið. Vandað frágangur og fullbúin heimili. Hver eign er fullbúin og búin, tilbúin til innflutnings. Eiginleikar eru meðal annars: Húsgögnum fullbúin eldhús með tækjum innifalin. Fullbúin baðherbergi með nútímalegum innréttingum. Loftræstingarkerfi. Einkabílastæði og geymsla. Sérstök samfélagsaðstaða. Hápunktur þessa íbúðabyggðar er sameiginleg sundlaug, umkringd landslagsgörðum, sem skapar fullkomna rýmið til að slaka á, sólbaða sig og njóta fjölskyldutíma. Frábær staðsetning í Vera Playa Vera Playa er þekkt fyrir langar sandstrendur, afslappaðan lífsstíl og framúrskarandi þægindi. Þróunin er staðsett á rólegu en samt vel tengdu svæði með greiðum aðgangi að þjónustu og samgöngum. Helstu vegalengdir eru meðal annars: Strönd: 700 m Desert Springs golfvöllur: 8 km Miðbær Vera: 5 km Garrucha smábátahöfn og veitingastaðir: 6 km Mojácar viðskiptamiðstöð: 10 km Almería flugvöllur: 85 km (u.þ.b. 1 klukkustund) Háhraða AVE lestarstöð (í byggingu): 3 km Tilvalið heimili eða fjárfestingartækifæri Hvort sem þú ert að leita að varanlegri búsetu, frístað eða öruggri fjárfestingu, þá bjóða þessar nýbyggðu íbúðir í Vera Playa upp á frábært verðmæti á einum eftirsóttasta strandlengjuáfangastað Almería. Gerðu Vera Playa að nýja heimili þínu og upplifðu fullkomna samsetningu af nútímalífi, sjávarútsýni og Miðjarðarhafslífsstíl. Hafðu samband við okkur í dag til að bóka heimsókn og tryggja þér draumaeignina þína á Costa de Almería.

Staðsetning

Hafðu samband við okkur Gera fyrirspurn

Responsable del tratamiento: Mediaterrean y Mar Eindom, SL, Finalidad del tratamiento: Gestión y control de los servicios ofrecidos a través de la página Web de Servicios inmobiliarios, Envío de información a traves de newsletter y otros, Legitimación: Por consentimiento, Destinatarios: No se cederan los datos, salvo para elaborar contabilidad, Derechos de las personas interesadas: Acceder, rectificar y suprimir los datos, solicitar la portabilidad de los mismos, oponerse altratamiento y solicitar la limitación de éste, Procedencia de los datos: El Propio interesado, Información Adicional: Puede consultarse la información adicional y detallada sobre protección de datos Aquí.

© 2026 Medimar Eiendom · All rights reserved · Legal athugið Privacy Cookies Web Map

Design and CRM: Mediaelx

Gera fyrirspurn WhatsApp